发布时间:2020-04-30

乐大姐
FM104.8《家在苏州--乐大姐说装修》栏目特邀嘉宾,
赫博别墅设计创始人之一;
多次受邀成为院校家居的授课讲师;
98年至今,
为万千家庭打造幸福家居同时,也相互成为了好朋友。
任何与装修有关的问题,欢迎您添加乐大姐微信:13382102277,
乐大姐会为您做一对一解答。

一起散步
一起看电影
一起逛街吃饭
每件共同经历的小事
都成为了彼此的独家记忆
本案是中年夫妻的养老住所,之所以买这套房子是因为离女儿家比较近,方便照顾。业主的女儿眼光独到,喜欢时尚的事物,看惯了传统与繁复,更喜欢简单大气与质感且不落俗套,而业主也喜欢清爽简单的风格,一家人的喜好不谋而合,最终选定为现代简约风。


本案的亮点在于空间与色彩的完美交织,客厅作为家中招待客人的主要区域,需有一定的庄重感,沙发背景墙选用原木色,地板上铺设了灰色地毯,沙发、茶几、挂画、立式台灯,整体的搭配摆放紧凑但不拥挤,一如朋友间相处一般,君子之交淡如水,距离恰好最适宜。


软装陈设则为家带去独特的调性。简约的单人靠椅与L型长沙发将客厅的悠闲表达得淋漓尽致,亮眼的抽象挂画静置于沙发背景墙的一侧,淡蓝色的布艺沙发和多色靠枕使整个灰色简约空间多了一些自然灵动之感。
慵懒午后蜷缩在沙发上,看着透过窗帘散落进来的阳光照耀在小摆件上,拖出时光的影子,仿佛整个世界只剩下了此刻的这份安谧,静守时光。



电视背景墙摒弃了繁琐复杂的装饰,直接采用爵士白大理石矮墙造型,还原最纯粹的视觉概念,透露着高冷范,也经得起时间的考验,让客厅看起来更有质感,空间更为简约大气。
而电视背景墙大理石肌理如流水般接连着客厅,在色彩上打破了黑灰的界限,为空间注入了活力。底部的镂空设计,让原本简洁的空间多了一些立体收纳。











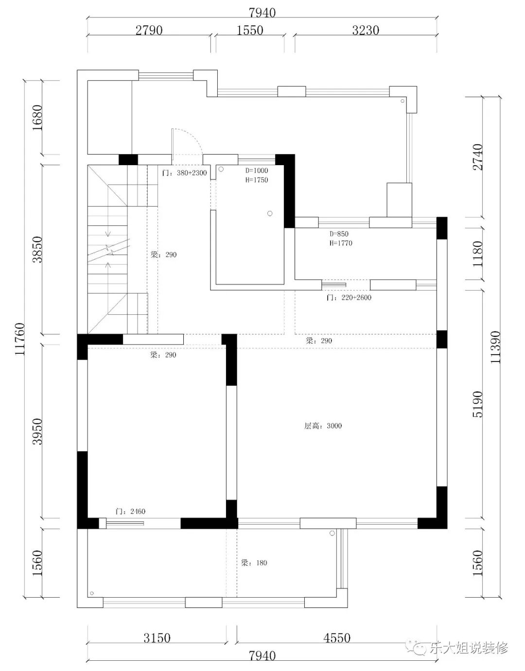
一楼原始户型图

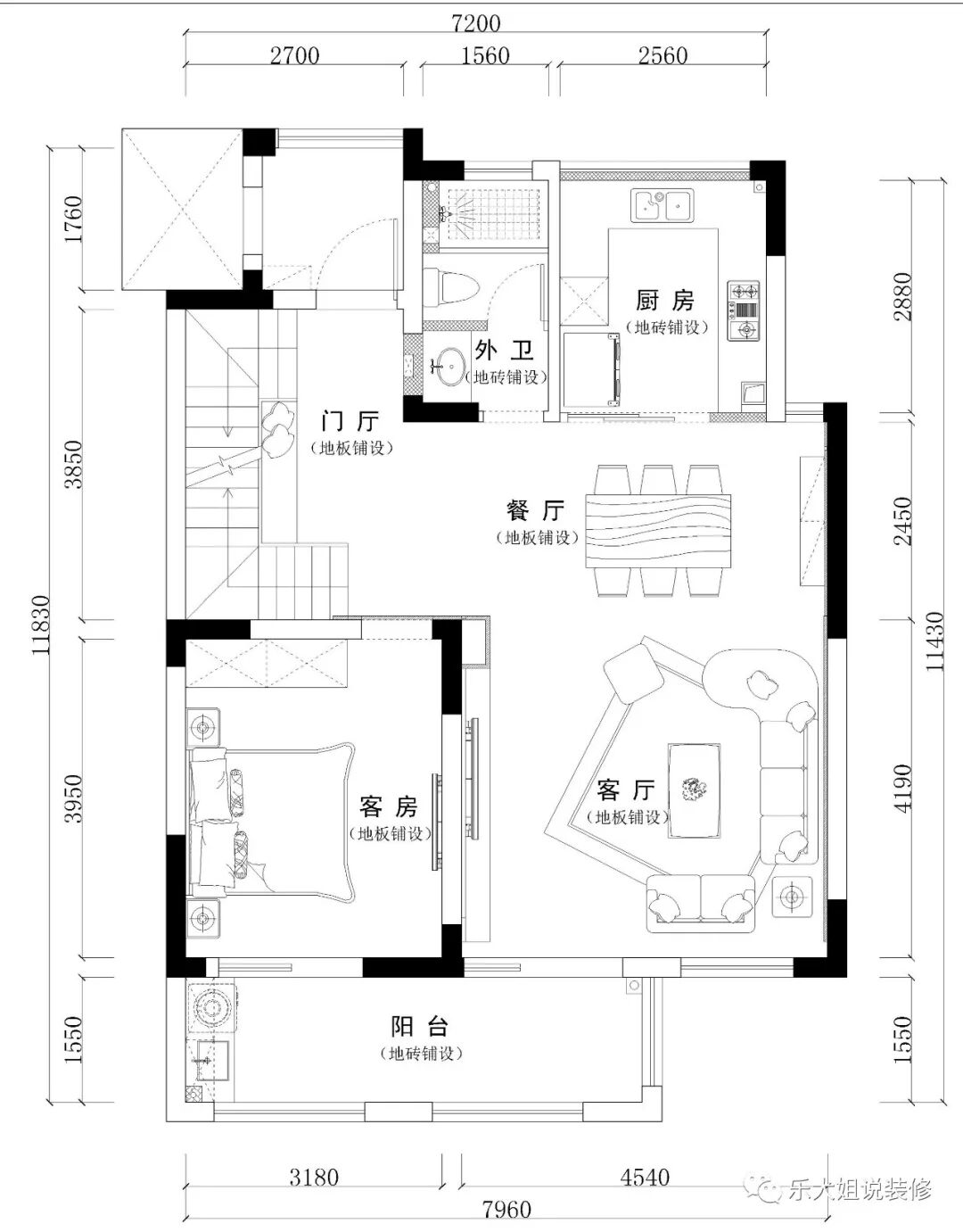
一楼改造后户型图

二楼原始户型图

二楼改造后户型图

阁楼原始户型图

阁楼改造后户型图
叠墅本身可塑性就比较强,原始户型有很多赠送面积,零碎但不整体,所以需要打通与合并;
乐大姐团队设计师将厨房外扩,房型拉正,与外卫形成一面整体,也使动线合理;
楼上套房归整后,使卫生间功能齐全且使用舒适。

https://vr.justeasy.cn/view/7688644.html?from=timeline&isappinstalled=0

如果您觉得乐大姐说的内容很有价值
欢迎分享转发至您的朋友圈
让更多的朋友都能轻松装修,自在生活!
当然,您也可以添加乐大姐微信号13382100888
或扫描下方的二维码
说出您的装修难题、让乐大姐为您答疑解惑
不管您是装修完工了
还是即将装修的
或者正在装修的
乐大姐一定知无不言,言无不尽




在看是一种鼓励|分享是最好支持
点击右下角 写留言 发表你的心声
我们期待与您的交流
长按二维码添加乐大姐微信号
装修不烦 大姐来谈