发布时间:2020-04-30

乐大姐
FM104.8《家在苏州--乐大姐说装修》栏目特邀嘉宾,
赫博别墅设计创始人之一;
多次受邀成为院校家居的授课讲师;
98年至今,
为万千家庭打造幸福家居同时,也相互成为了好朋友。
任何与装修有关的问题,欢迎您添加乐大姐微信:13382102277,
乐大姐会为您做一对一解答。

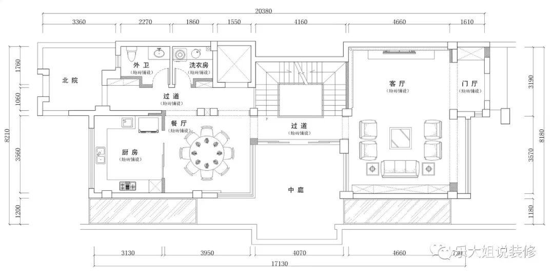
本案和乐大姐团队2018年施工的合润御府是同小区同户型(略有不同),业主看了上一套的户型改造后很是喜欢,于是重点的一层布局基本上参照上一套的规划,房间的分布则根据自身定制。同样是几代人长久居住,风格上业主要求不能陈旧,需采取新式手法,在房间与储藏满足的基础上更多注重的是舒适和美观。







电视背景墙和玄关背景虽采用的是现代材质的爵士白大理石,但却以近乎白描的线条抒写着山水悠然的意境,与中式雅居的“清”巧妙融合,浑然一体,白色与灰色交织的设计让空间轻柔起来,岁月仿佛静止一般,现世静好。





餐厅位于整个一层的北边,不论是采光还是通风最易受限,乐大姐团队设计师采用开放交融式设计,通过门洞、镂空隔断、采光玻璃等打通餐厅的四面墙,让厨房、客厅、外卫、洗衣房与餐厅之间连通,提升空间开阔度,也是对现代生活方式的回归与重塑。
留白的墙面和壁龛的设计更为凸显立体感,空间形状的鲜明对比,于方寸之间自成天地。






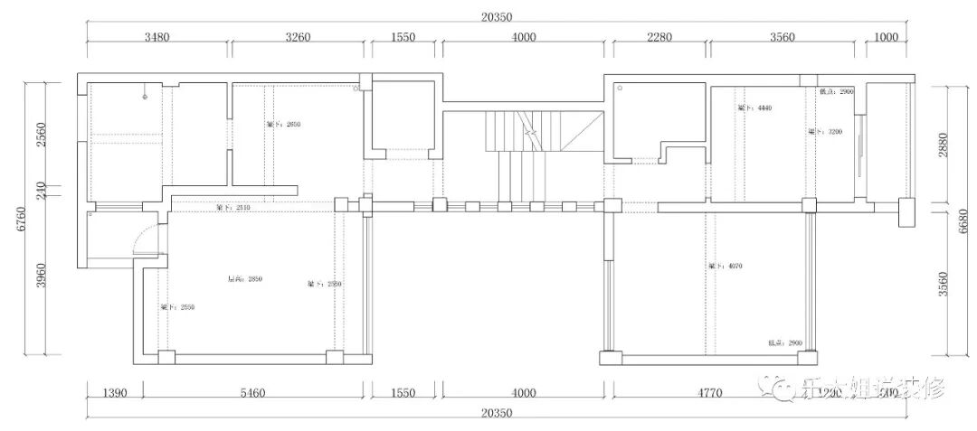
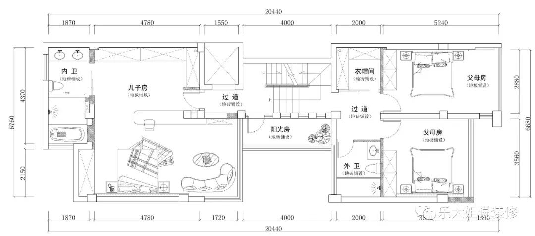
二层的儿子房与其他空间之间既相互包含又独特独立,在延续一楼客厅新中式灰色、原木色的主色调搭配基础上,设计师根据卧室主人的年龄与审美习惯,去繁化简,对传统注入新的活力,调和出温润柔融的现代简约风居室空间。


儿子房的设计以大方舒适为前提,注意发挥结构构成本身的形式美,设计师将原有的一个房间扩充进了儿子房,扩充的区域做为衣帽间,休闲阳台及卫生间也被划分进了卧室形成一个大套间,这样儿子的活动基本都能在自己的卧室完成,既开阔又有私密性。
原结构墙面被改造成具有结构感的木质多功能书桌,增添了一个办公学习空间,让功能更加丰富。






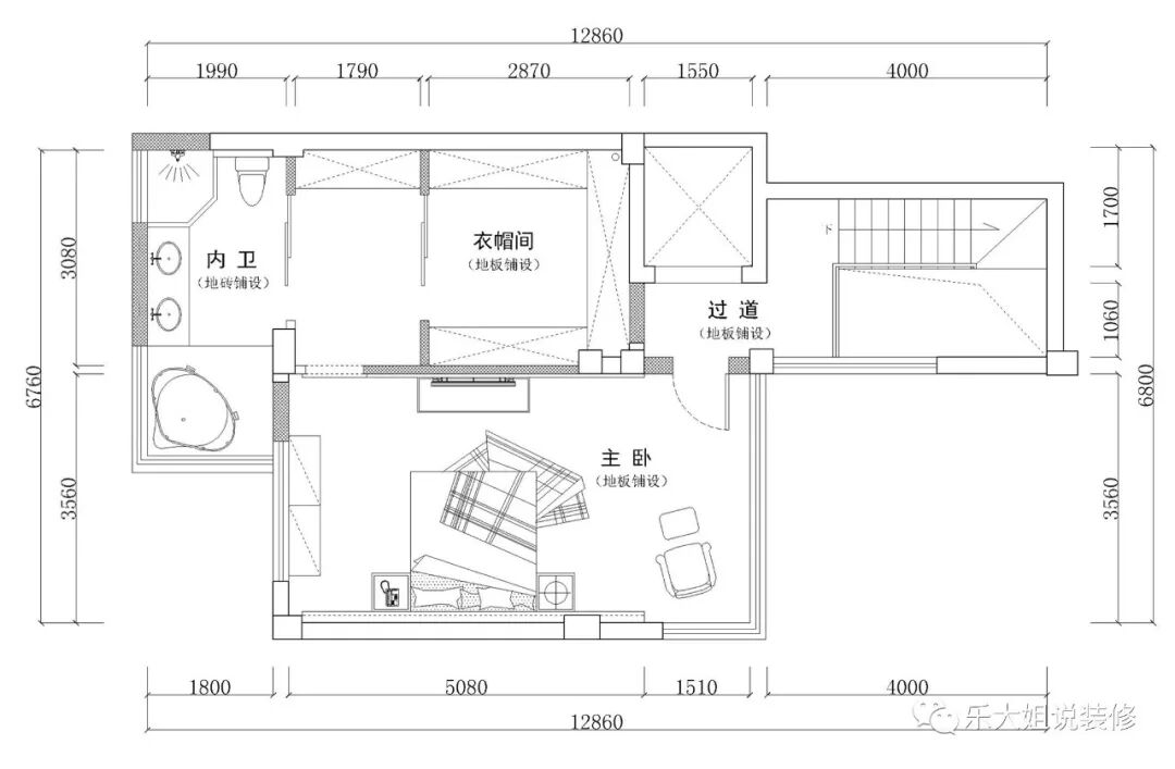
整个三层都是主卧空间,除了睡眠空间外,还增设了独立的衣帽间、卫生间及配套的休闲阳台,让整个卧室功能更完善。
主卧延续一楼的新中式风格,诗意氤氲的中式情调,清雅的柔白色中,含蓄蕴藉的深蓝与石绿丰富着空间的气质,金属吊灯暖光盈盈,床头背景墙上一幅喜鹊登梅图,共将“凌寒吐艳暗香萦,疏蕊虬枝丽影横。神韵冰魂昭日月,登梅喜鹊报春情。”的诗情画意细细勾勒,简约中有道不尽的意蕴悠扬。


床头柜、台灯、吊灯、电视柜、地毯,等等,看似简单的布置却又在细节处透露着不平凡,房内还设计了春凳,便于衣物和床上用品的临时摆放。


在偶尔的清晨或傍晚,当我们已不再忙碌,想和你一起在这里坐坐,聊聊以往的糗事,谈谈过去的甜蜜,饮一杯茶,找找曾经的记忆。
















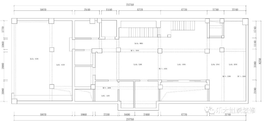
原始结构中一层的楼梯比较单一和突兀,所以一层通往负一层的楼梯拆除重改,使得楼梯宽敞大气;
乐大姐团队设计师将过道与餐厅外扩,使得室内宽敞方正,中庭也正气;
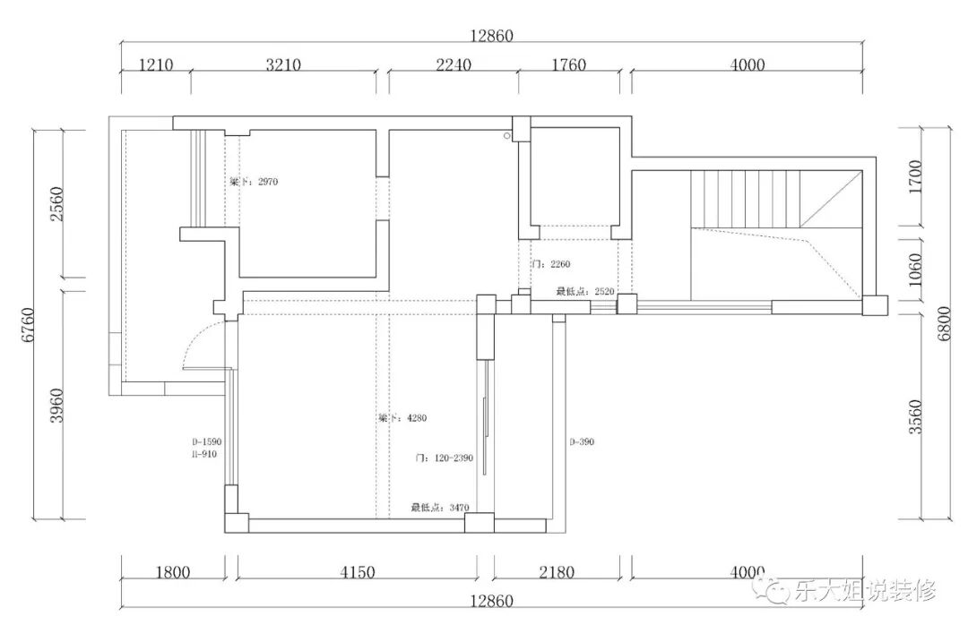
楼上原始结构比较复杂,基本都打通重新规划以确保每个房间都有采光和通风,同时在设计时也将每个家庭成员的需求都考虑到。



https://vr.justeasy.cn/view/7882341.html?from=timeline&isappinstalled=0

如果您觉得乐大姐说的内容很有价值
欢迎分享转发至您的朋友圈
让更多的朋友都能轻松装修,自在生活!
当然,您也可以添加乐大姐微信号13382100888
或扫描下方的二维码
说出您的装修难题、让乐大姐为您答疑解惑
不管您是装修完工了
还是即将装修的
或者正在装修的
乐大姐一定知无不言,言无不尽




在看是一种鼓励|分享是最好支持
点击右下角 写留言 发表你的心声
我们期待与您的交流
长按二维码添加乐大姐微信号
装修不烦 大姐来谈