发布时间:2020-04-30

乐大姐
FM104.8《家在苏州--乐大姐说装修》栏目特邀嘉宾,
赫博别墅设计创始人之一;
多次受邀成为院校家居的授课讲师;
98年至今,
为万千家庭打造幸福家居同时,也相互成为了好朋友。
任何与装修有关的问题,欢迎您添加乐大姐微信:13382102277,
乐大姐会为您做一对一解答。

知命之年
悄然来临
归来半生
细数心愿
不过是
为爱人实现心中的梦想
为父母建造一个舒适的居所
为孩子打造一个成长的乐园
心之所乐 为爱齐家
本案是业主准备以后养老居住的,位于大阳山景区边上,周边环境非常好,属于改善型住宅。业主装修经验非常丰富,已经装修过三套房了。男业主说“老婆喜欢住新房子,没办法,基本七八年换一套房,对装修要求非常高,从自建别墅时装修到后来一套别墅,再到一套公寓装修”。而女业主也说“她之所以装修那么频繁,就是因为喜欢住新房子”,不过这套房子叔叔阿姨说应该是最后一次装修了,是他们的收官之作,会一直住下去。
本案装修风格选择的是欧式轻奢,装修发展了那么多年,设计早已不分国界,不分年龄段了,虽然业主即将到了退休的年纪,通常这个年龄段的人会习惯性地应该选择稳重的深木纹色,但是实际上设计符合自己想要的才最重要,装修不能随大流,人云亦云,一定要对自己未来负责,方案设计需要量身定制!
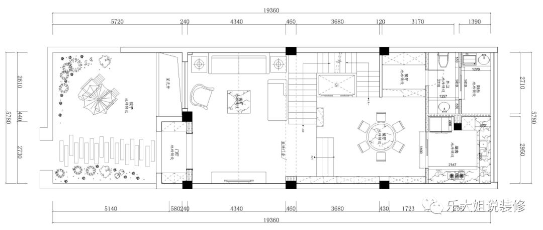
客厅/Living Room

本案围绕当代欧式雅致生活倡导的人群生活方式展开,乐大姐团队设计师在设计中打破了纯古典欧式设计的观念,将古典的皇家装饰元素融入了现代风格设计,使整个空间高贵不失典雅。客厅大气、简约、沉稳,采用了马赛克、壁纸,石材等高档材质,没有过多累赘复杂的造型,体现了主人的内蕴品性。




在楼梯旁,以沙发的自然摆放形成的空间。灯光的发散,创造氛围。金属质感的台灯、挂画与抱枕的组合,不累赘浮华,将轻奢演绎到极致,带来浪漫休闲感。


餐厅/Dining Room

中国人讲究“食”,看重一日三餐。餐厅是我们增进感情,享受美食的地方,圆形餐桌象征团团圆圆,无形中拉近家人的距离,让人真正放松下来。一家人围坐在一起,讲述着日常的趣事,生活便是如此。

客厅与餐厅之间象征性利用楼梯/电梯作为功能区的划分,通透的功能区布局令主体空间显得更加开阔。餐厅以米色软装打底搭配乳白色的靠墙餐边柜来衬托奢华与雅致,时尚别致的吊灯和大理石台面的餐桌形成一种和谐的美感。精致的餐具以及花束装饰,每一个细小的布局和装饰,都足以体现出业主对设计品质的追求。
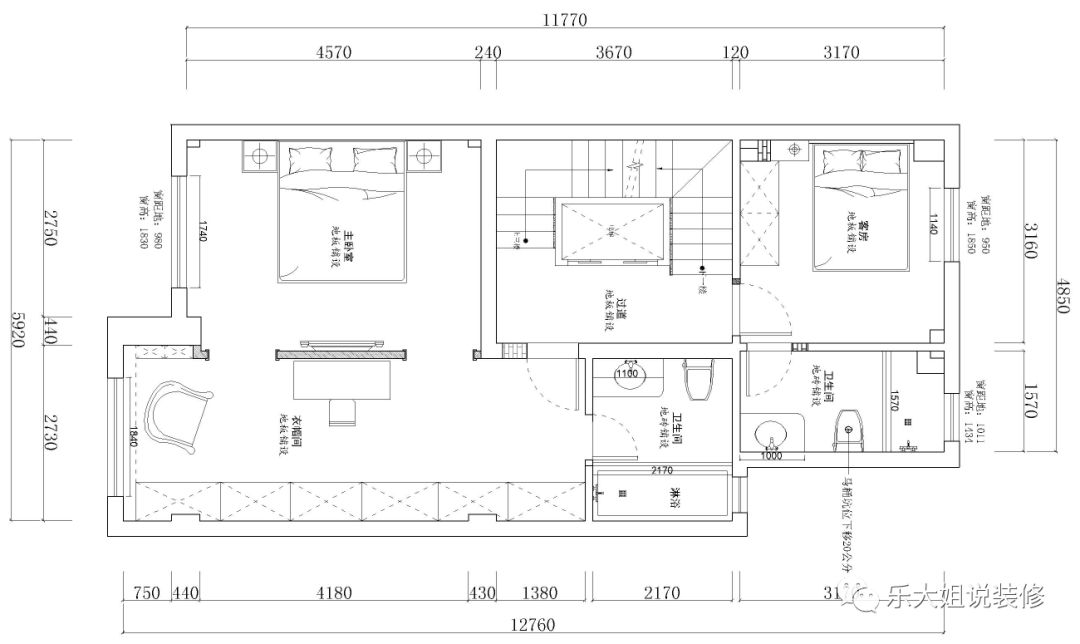
主卧/Master Room


主卧设计乐大姐团队设计师选用欧式曲线感家具,卷曲的纹理渲染着穆雅的居室氛围。木质、金属、软包材料的运用,增加了质感的丰富性。空间内的美感由饰面上的纹理一层层的延展开仿佛低语着古老的诗歌。从细腻的墙布纹理,到家具软包和装饰材料,配上灯带的氛围光源和台灯的点光源,营造轻松惬意的生活氛围。整个空间既符合业主的审美,又不失时尚的格调。


女儿房/Daughter's Room





小孙女房/Little Granddaughter's Room


粉色是永远的少女心,乐大姐团队设计师在大开大合的欧式轻奢风中为业主的小孙女儿保留了一角粉嫩的小天地,将天真、童趣和美好留在这里,为孩子的成长营造了一个甜蜜温馨的环境。床头背景两边靠墙式式的衣柜,充分地利用了室内空间。


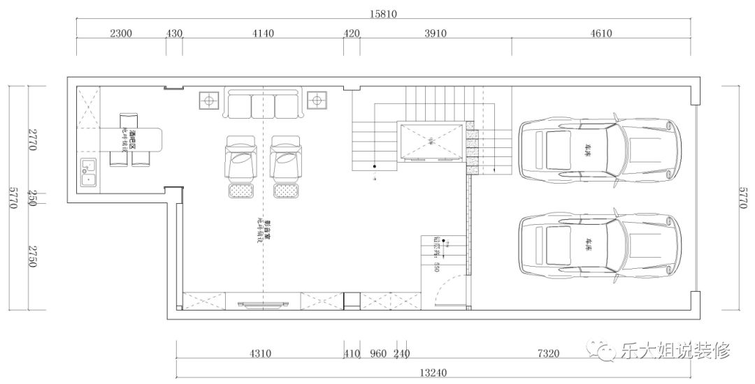
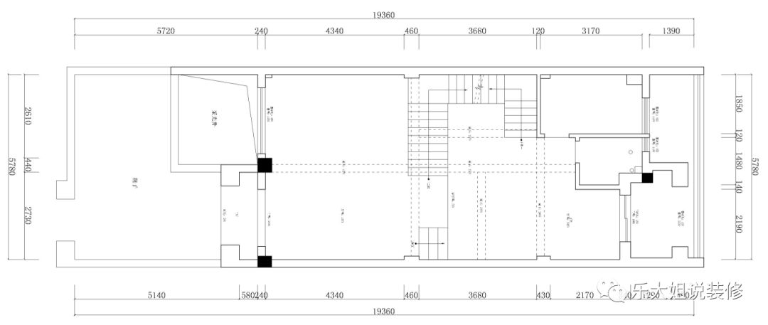
地下室/Basement





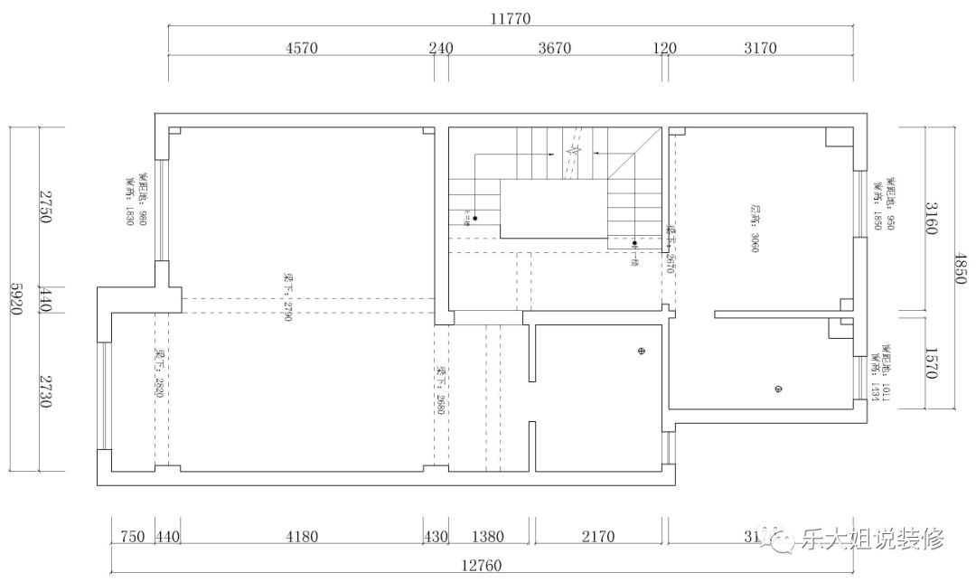
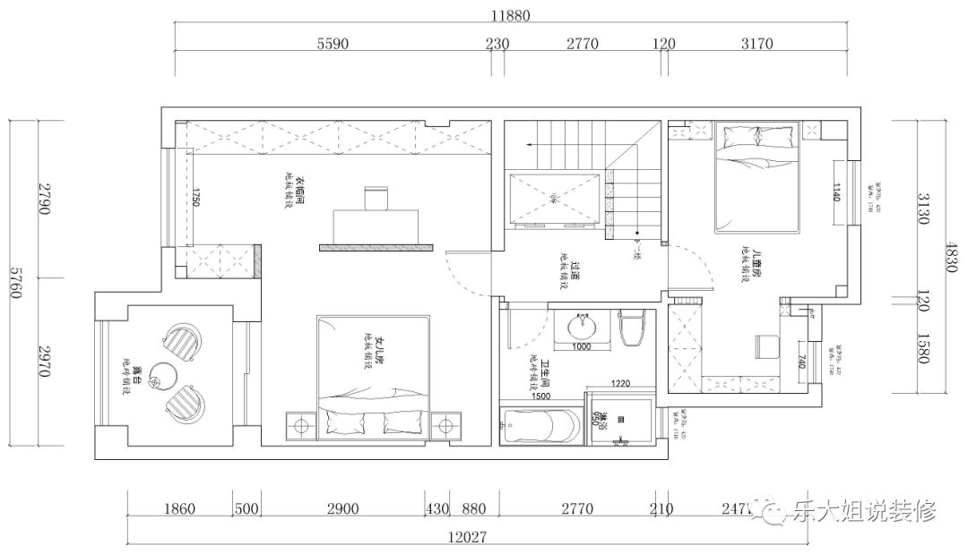
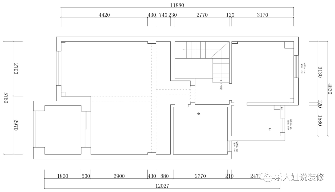
平面方案/Flat Plan








全景图/Panorama

https://vr.justeasy.cn/view/5569470.html?from=singlemessage

如果您觉得乐大姐说的内容很有价值
欢迎分享转发至您的朋友圈
让更多的朋友都能轻松装修,自在生活!
当然,您也可以添加乐大姐微信号13382100888
或扫描下方的二维码
说出您的装修难题、让乐大姐为您答疑解惑
不管您是装修完工了
还是即将装修的
或者正在装修的
乐大姐一定知无不言,言无不尽



在看是一种鼓励|分享是最好支持
点击右下角 写留言 发表你的心声
我们期待与您的交流
长按二维码添加乐大姐微信号
装修不烦 大姐来谈