发布时间:2020-04-30

乐大姐
FM104.8《家在苏州--乐大姐说装修》栏目特邀嘉宾,
赫博别墅设计创始人之一;
多次受邀成为院校家居的授课讲师;
98年至今,
为万千家庭打造幸福家居同时,也相互成为了好朋友。
任何与装修有关的问题,欢迎您添加乐大姐微信:13382102277,
乐大姐会为您做一对一解答。
2019.7.1-2019.8.31
100套选自苏州、昆山、张家港、常熟、无锡等地设计作品
齐聚一堂
这是一场 设计盛宴
历时62天、数万业主朋友直接参与投票的江浙地区
“百变户型·百套样板房设计大赛” 圆满落幕

Part 1












家,就是一家人在一起享受天伦之乐的地方!






Part 2
昆山森林半岛业主访谈
乐大姐团队实现了我对家最期待的样子下次装修还找乐大姐
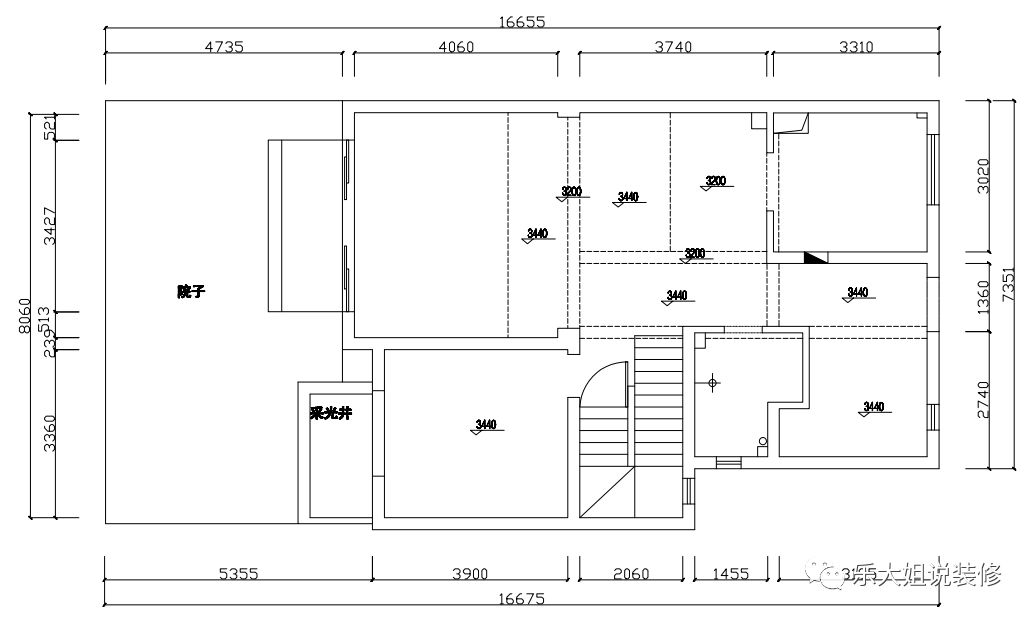
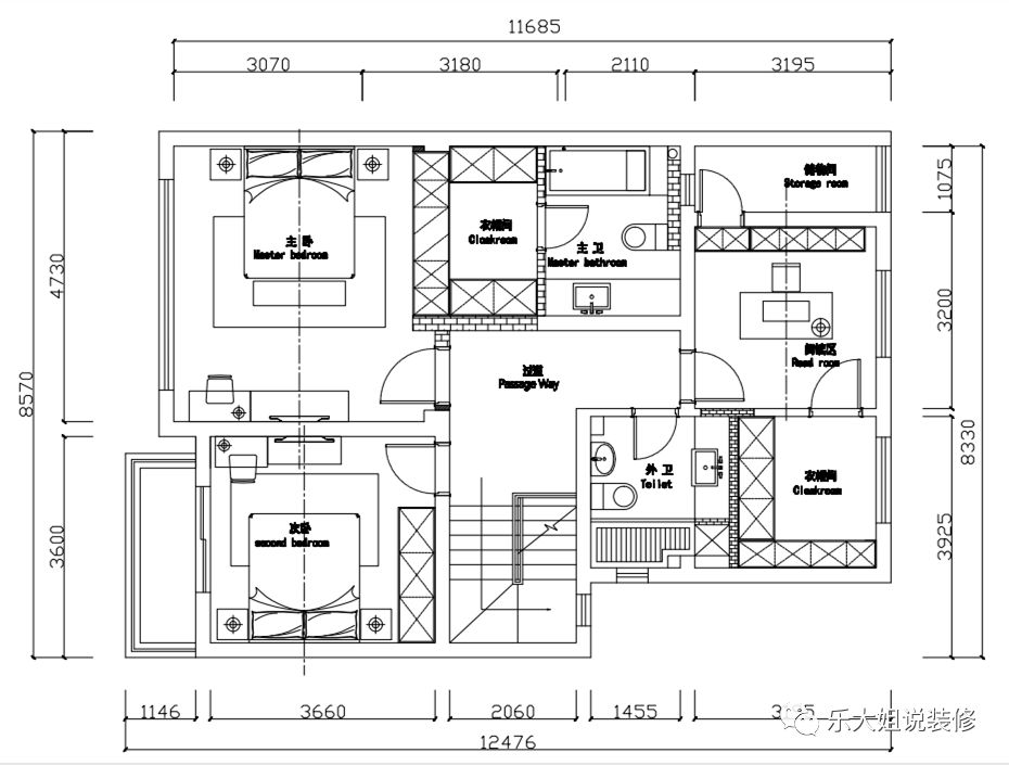
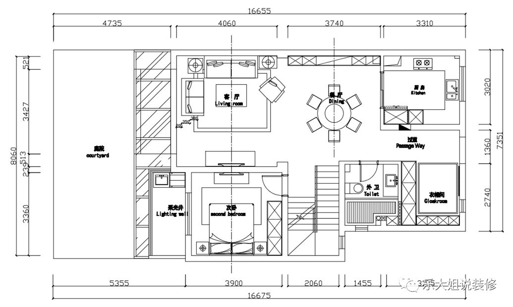
从开工到即将竣工,俞业主夫妇参与的过程并不多,而设计落地还原度达到了80%以上。现在工程基本上要完工了,准备年前就搬进新家,等儿子娶了媳妇感觉生活就更完美了,俞先生说乐大姐团队实现了他对家最期待的样子。
昆山森林半岛业主访谈








业主故事
本案是父母给儿子准备的婚房,位于昆山。业主夫妻之前有自己装修过房子,但是过程太操心!程序太繁琐!周期太长!感觉心神俱疲!累得慌!但是最后却没有达到自己想要的效果!这次儿子的婚房装修就比较注重省心和效果!就想找一个能给她的新居做出效果的公司,过程中尽量不要参与,特别不能装修中各种加钱!设计方面,以儿子的意见为主,儿子喜欢中式风格,但是业主夫妻考虑到儿子才20岁左右,怕中式过于沉闷,时间长了儿子会不喜欢,乐大姐全案设计团队结合双方的意见最后敲定为港式新中式,儿子看了后非常喜欢,觉得打破了他对中式风格的认知。




如果您觉得乐大姐说的内容很有价值
欢迎分享转发至您的朋友圈
让更多的朋友都能轻松装修,自在生活!
当然,您也可以添加乐大姐微信号13382100888
或扫描下方的二维码
说出您的装修难题、让乐大姐为您答疑解惑
不管您是装修完工了
还是即将装修的
或者正在装修的
乐大姐一定知无不言,言无不尽




在看是一种鼓励|分享是最好支持
点击右下角 写留言 发表你的心声
我们期待与您的交流
长按二维码添加乐大姐微信号
装修不烦 大姐来谈