
乐大姐
FM104.8《家在苏州--乐大姐说装修》栏目特邀嘉宾,
赫博别墅设计创始人之一;
多次受邀成为院校家居的授课讲师;
98年至今,
为万千家庭打造幸福家居同时,也相互成为了好朋友。
任何与装修有关的问题,欢迎您添加乐大姐微信:13382102277,
乐大姐会为您做一对一解答。
在木星朴树 - 乐人·Live:朴树“好好地II”巡回演唱会上海站(Live)
项目名称:合润御府(独栋)
项目面积:548㎡
项目风格:新中式
项目性质:全屋整装
项目状态:正在施工
本案是业主第三次装修了,业主家现在的情况是三代人分开住的,对这套房的计划是:四代同堂!乐大姐团队设计师跟业主见面的聊天中感觉到这家人亲情感很足,谈到老父母亲(年纪应该有七、八十岁了)!感觉像说孩子一样!老父母亲就是想住别墅!喜欢“上有天下有地”的感觉!这也是买这套房其中一个重要原因。
业主一大家子对这套房子寄予厚望,房子刚买(还没有拿到)的时候就在外面看装修公司了!最终的选择他们很满意(之前的几次装修都经历过风风雨雨),新中式的效果让他们眼前一亮!另外,这套房子装修的总费用让他们很惊讶,因为身边不少朋友这几年都有装修别墅,入住价格比他们这套的费用高,关键效果不理想,还操心的要命!
新中式,文化沉淀留下的果实,它隔离了世外的喧嚣与嘈杂,拥有超凡脱俗的气质,也正是这一特质,使得本案业主在初次见到乐大姐团队设计师的设计方案时便确定了未来新家的轮廓。
对于四代同堂的业主一家来说,饱含文化底蕴的新中式缓冲了快节奏生活带来的焦虑感,也让新家充满了归属感,宁静祥和的古典氛围让人不自觉慢下来,思考生活,感受时间流逝。客厅的每一寸空间都极为讲究,中式元素与现代材质的巧妙结合,正是“删繁去奢,绘事后素”,达到“大美无言,大象无形”的气质感。简洁典雅的玫瑰椅,端正清秀的坐榻,气质雍容的茶几边桌,质感上乘的柔软地毯,赋予空间古雅、质朴又不失现代的美感;其古朴的造型与正统的设色,成双陈设的器物装饰,流丽轩昂的水晶吊灯,共同造就空间的秩序感与对称性,俨然大气。处在客厅,可以一边品茶一边透过落地窗欣赏庭院风景,庭院与玉兰花鸟沙发背景相互呼应,窗外的绿意漫进室内,倒是让人想起了那句“苔痕上阶绿,草色入帘青。”天圆地方是中国文化最重要的理念,设计师以“方圆之间”为设计理念,方中带圆,圆中见方,用纯粹的设计手法将古典韵味引用到每寸空间,与现代家居的碰撞也造就了新中式无懈可击的艺术美感。别墅是为年老的父母修建的,为了让他们有个自在又舒适的晚年生活,设计时不光院子考虑的闲适自然、意境悠远,在室内也是考虑了地暖、电梯等方便舒适的现代设施。
中式家居已然成传统文化的家居符号,流畅的结构线条和材质本身的纹理色泽流露内敛高贵的风范,空间转换可谓移步换景,新中式的韵味在餐厅之中已然藏不住了。背景墙上蓦然探出的花枝、磅礴的山水;精致的银边碟盘、晶莹奢华的碗筷、鲜翠通透的饰品,在金色枝叶的映衬下,平白多了几分耐人寻味。设计师在餐厅的光线设计上表现的淋漓尽致,运用了光线折射和反射以及光线的强度和暗度原理:顶面层级吊顶——让灯光自上倾泻而下;将过道一侧墙体打通,用中式元素加以装饰,且增加了透明反光玻璃——光线自四周包围而来,整个空间笼罩着一种清新雅致的气息。一家人在这个开放式的餐厅里团团圆圆在一起做饭、吃饭、聊天,满满的幸福感,这就是家的味道。

好的住宅是可以培养人的性格和心性的,空间关系处理得当,布置合理,心情也随之变得愉悦,做起事情来也会井井有条。
业主家有两个小男孩,乐大姐团队设计师将两个男孩房设计在同一个大套间内,以黄蓝色调为主,意在打造一个动静皆宜的空间。


儿童房的硬装简洁干练,只通过软装陈设来凸显这是一个个性鲜明的小男孩的房间,这样做的好处是,随着孩子年龄的增长,只需要更换相应的软装就能满足孩子的个性需求。


男孩房一侧背景墙采用文化砖的造型,与空间中充满科技与时尚感的跑车模型、足球、篮球、吉他等互为装点,凸显出孩童丰富无忧、趣味无穷的闲娱生活。

合理规划空间,摒弃多余是主卧设计整洁的关键所在。本着安静、舒适、简单功能为主,设计师将三层整个空间全部打通做成一个酒店式套房,集卧室、衣帽间、卫生间、休闲阳台于一体。
整个空间以温柔的浅色系为主,蓝灰色的床、锖浅葱色的床品、淡绿色的护墙板、灰色的墙纸,温柔缱绻,恬静美好,仿佛可以抚平生活的毛躁,在这里,业主能够最惬意的休憩、看书或者晒太阳。


私人空间哪怕在再大的住宅里也是其中一个很小的部分。在休闲阳台设计上,整体空间并没有过多的装饰,简单的沙发、错落有致的茶几搭配、舒适的单人沙发靠椅,构成了一幅舒适随意的画面,一个人沐浴着阳光,斑驳流年里岁月静好。
电视柜床头柜上简单的摆设,一如人生,当时间缓缓流动,灯光下两人独处的时光,胜过这世间万千繁华。
身处繁华都市太久便渴望一丝静谧的身心归处,设计师根据业主的需求,将地下室改造成充满阳光、茶香、鱼儿、花朵、枝蔓、尘埃的地方,业主在这可以听风、听雨、品茗、赏花、观鱼。业主十分享有这种姿态,生活的诗意而满足,睁开双眼,看到的便是美好。中式设计中大胆的留白讲究对空间、形体、色彩的把握,追求删繁就简,高度概括,“无”中生“有”,设计师通过一个花瓶、一支枯莲蓬、一墙黑白水墨背景,便让人感受到一种脱俗、超然、干练的东方诗意美感。一个好的空间设计绝不是靠外在的造型堆砌来实现,而所谓的装饰元素和符号是为了烘托空间给主体锦上添花,现代风格与新中式相结合的吊灯优雅大气线条流畅,为地下室空间注入典雅的中式风情,装点出古韵生香的诗意人生。
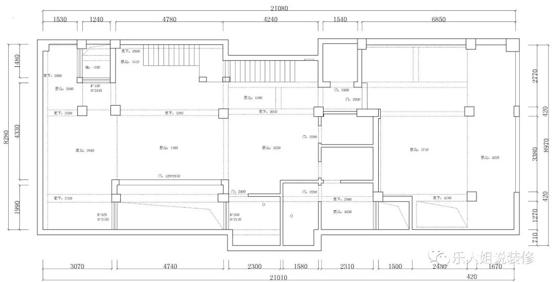
地下室原始户型图

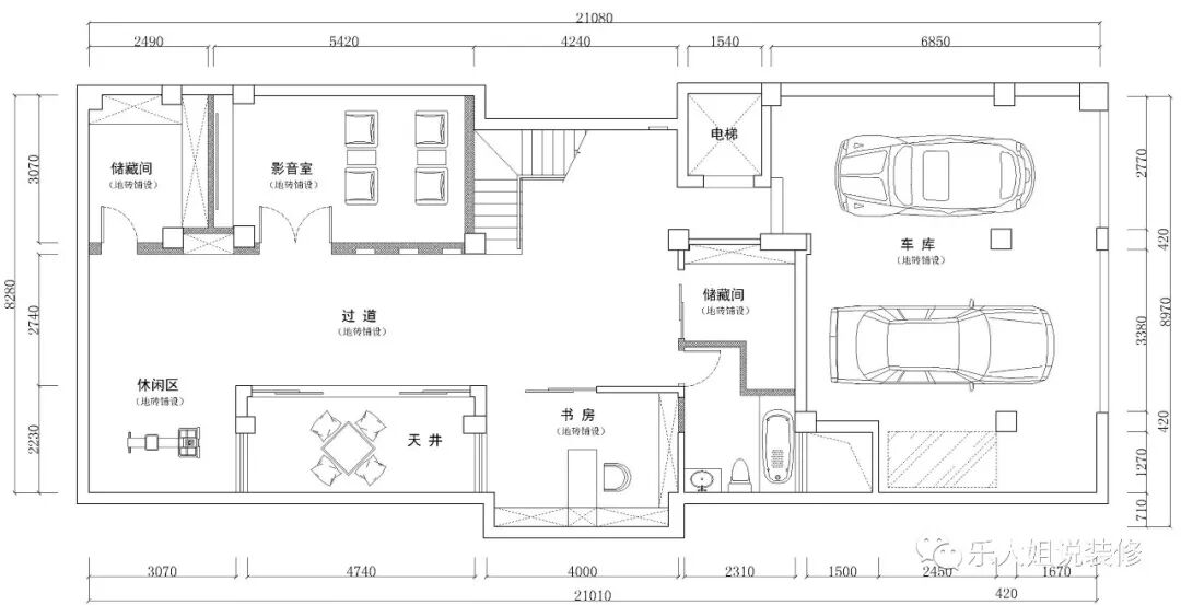
地下室改造后户型图

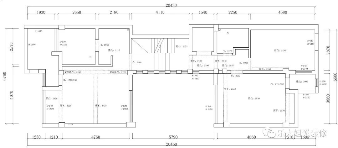
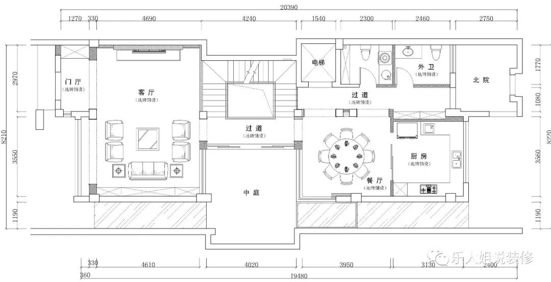
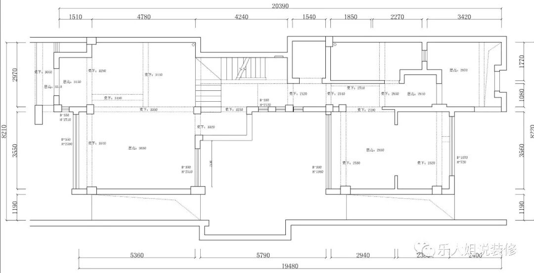
一楼原始户型图

一楼改造后户型图

二楼原始户型图

二楼改造后户型图

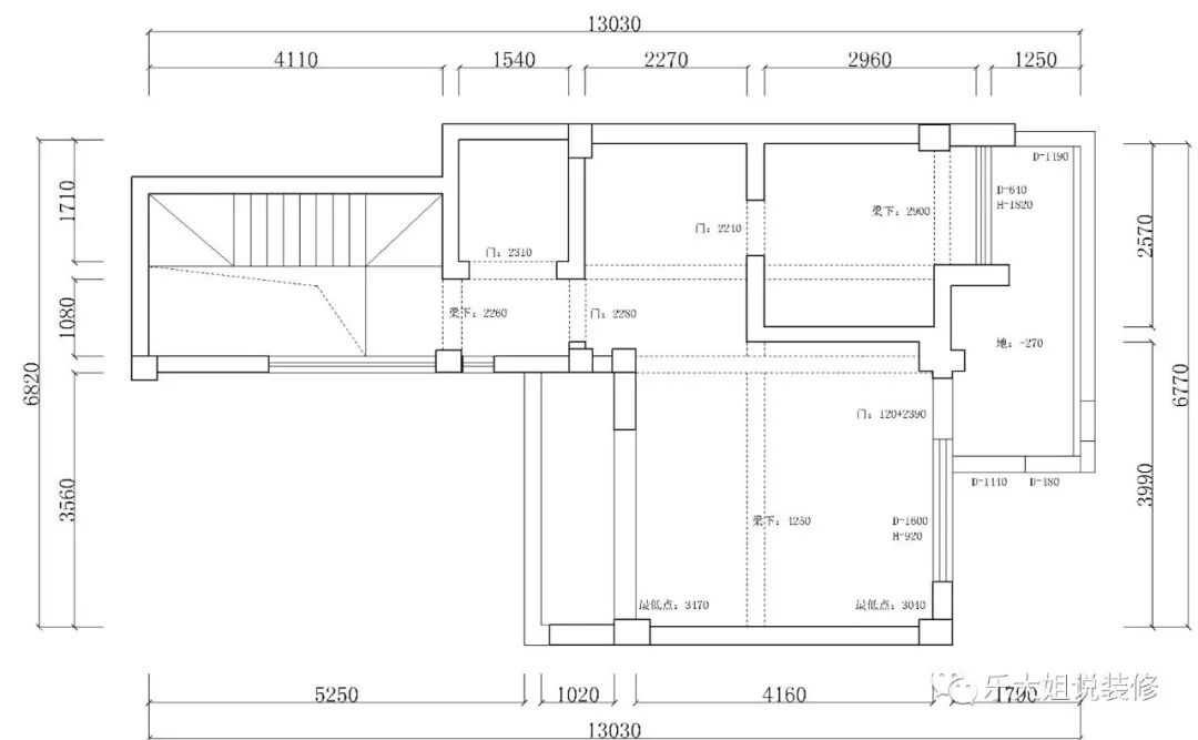
三楼原始户型图
- 原始结构中一层的楼梯开发商做的比较单一和突兀,所以乐大姐团队设计师将一层通往负一层的楼梯拆除重改,使得楼梯宽敞大气;
- 楼上原始结构比较复杂、基本都打通重新规划,根据家中每位成员量身定制,每个房间的采光和通风都良好;
https://vr.justeasy.cn/view/3055089.html
如果您觉得乐大姐说的内容很有价值
欢迎分享转发至您的朋友圈
让更多的朋友都能轻松装修,自在生活!
当然,您也可以添加乐大姐微信号13382100888
或扫描下方的二维码
说出您的装修难题、让乐大姐为您答疑解惑
不管您是装修完工了
还是即将装修的
或者正在装修的
乐大姐一定知无不言,言无不尽
在看是一种鼓励|分享是最好支持
点击右下角 写留言 发表你的心声
我们期待与您的交流