发布时间:2020-04-30

乐大姐
FM104.8《家在苏州--乐大姐说装修》栏目特邀嘉宾,
赫博别墅设计创始人之一;
多次受邀成为院校家居的授课讲师;
98年至今,
为万千家庭打造幸福家居同时,也相互成为了好朋友。
任何与装修有关的问题,欢迎您添加乐大姐微信:13382102277,
乐大姐会为您做一对一解答。

本案位于吴江松陵,业主买这套房子主要是用于与朋友聚会。业主平时都是住在市区的,女儿则长期在国外,所以房子的使用频率和使用人口都很少。
对于房子的期许,业主一家三口希望每次回到这里是一种完全放松的状态,不喜欢繁琐装饰的堆砌,“家,简单舒适就好”,但同时也不希望材质上过于单调,所以乐大姐团队设计师将整体风格定位为极简。















主卧主要收纳重任在床左侧的整面内嵌式衣柜,相当于一个步入式衣帽间。夏日午后,伴着蝉鸣,一书一茶再没有更惬意。
家是与人共生共长的空间,也是盛载生活琐碎的容器,是一个个平凡物件和现象的平铺直叙。设计的真正魅力与价值,恰恰在于回归生活本真,让一切都自然地发生,让居住者的灵魂与情感可以被诗意地安放。

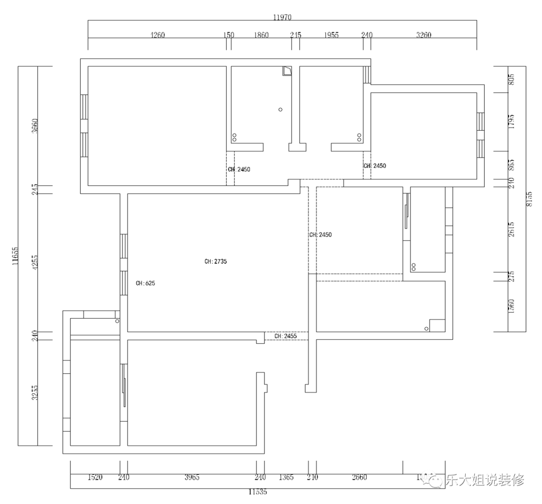
原始户型图

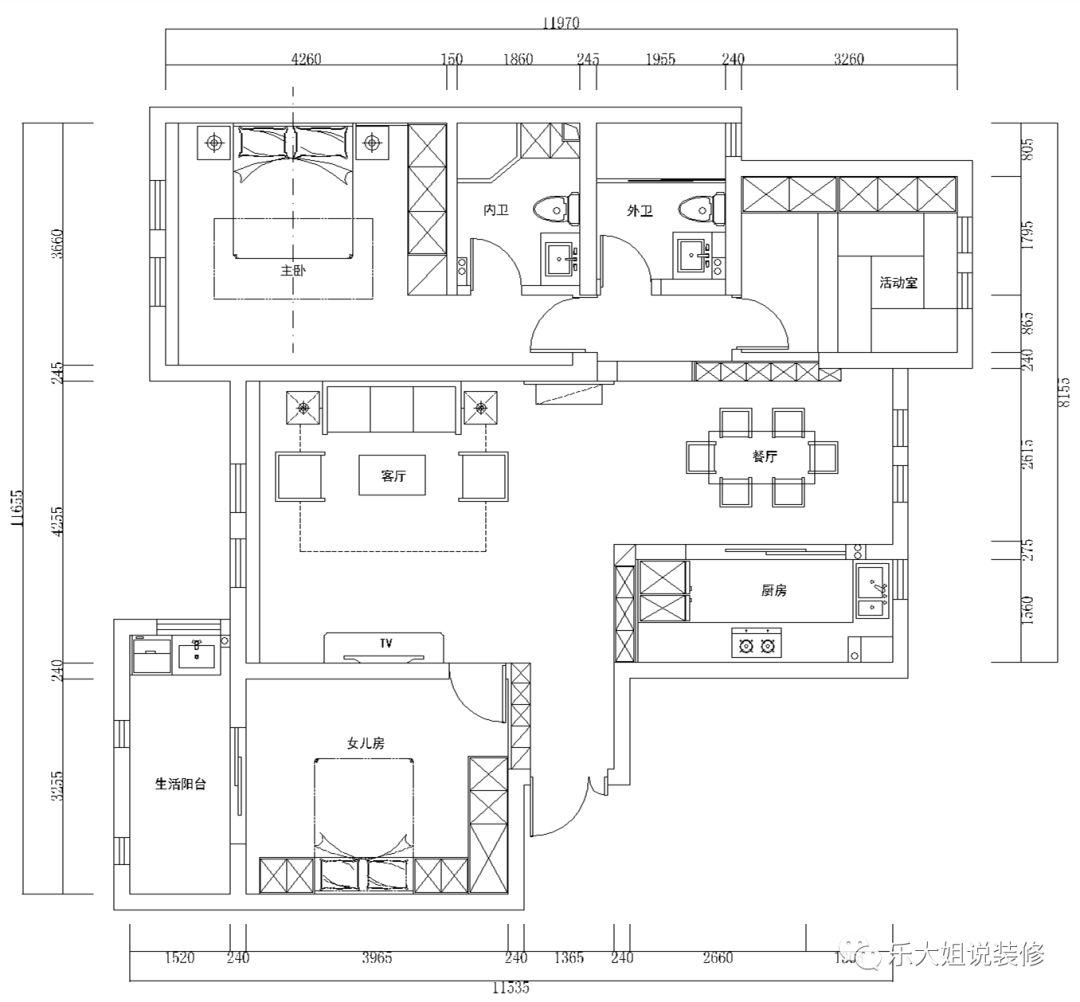
改造后户型图
因吴越祥院这个小区的平层都是剪力墙结构,可改造的空间比较受限,所以设计师对空间的改造主要集中在扩大空间和增加储藏空间,也就是以做墙体改动为主。

https://vr.justeasy.cn/view/6952182.html?from=timeline

如果您觉得乐大姐说的内容很有价值
欢迎分享转发至您的朋友圈
让更多的朋友都能轻松装修,自在生活!
当然,您也可以添加乐大姐微信号13382100888
或扫描下方的二维码
说出您的装修难题、让乐大姐为您答疑解惑
不管您是装修完工了
还是即将装修的
或者正在装修的
乐大姐一定知无不言,言无不尽




在看是一种鼓励|分享是最好支持
点击右下角 写留言 发表你的心声
我们期待与您的交流
长按二维码添加乐大姐微信号
装修不烦 大姐来谈