发布时间:2020-04-30

乐大姐
FM104.8《家在苏州--乐大姐说装修》栏目特邀嘉宾,
赫博别墅设计创始人之一;
多次受邀成为院校家居的授课讲师;
98年至今,
为万千家庭打造幸福家居同时,也相互成为了好朋友。
任何与装修有关的问题,欢迎您添加乐大姐微信:13382102277,
乐大姐会为您做一对一解答。

生活本应如水般清澈甘甜、简单纯粹,我要的,是如草木般积极向阳生长...
——by 乐大姐团队原创
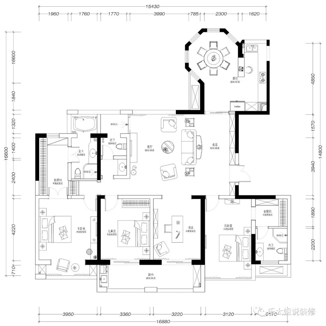
本案位于太湖新城(吴江)商圈,业主买这套房是作为一家人长久改善居住的,业主自己以前装过好几套,不过都是装美式、欧式,比较复杂,刚开始觉得好看,时间久了觉得不耐看。
所以这套房子业主想全权交给乐大姐团队来打造,提出“简约而不简单、经久耐看”的要求。业主一家人口不多,但对储藏空间的要求比较多;要求充分凸出大平层的湖景房效果。


现代简约风格更多的是围绕居住品质和生活品味展开的一场故事。业主追求建筑、人、自然的和谐相处,所以乐大姐团队设计师用简洁的表现形式来满足业主对于空间、环境、感性和理性的本能需求。用干净利落的线条,使空间变得柔软而有张力。
客厅去除复杂的装饰,用原始的木质色调搭配低调的灰黑白,颜色过渡自然,弱化了视觉上的冲击,表现出温柔而治愈的力量。


利用原木、抛釉砖、棉布材质、高级灰、无主灯设计、留白、结构和光与影的建筑氛围,给业主带来高品质的感受,简洁而克制。



餐厅正对着的就是厨房,餐厅与厨房相通,开放式的空间,在餐厅可以看到厨房内的一切,我时常想有个家,我坐在餐厅这头,你在厨房里头,偶尔你忙碌中回眸的一笑,就是这你我家中最温暖的时刻。


主卧从色彩搭配到家具软装的选择都显得干脆利落,不繁复不冗杂;仅仅只有背景墙采用了软包+装饰物去突出整个空间的层次感,尽显明快舒阔的现代风。




原始户型图

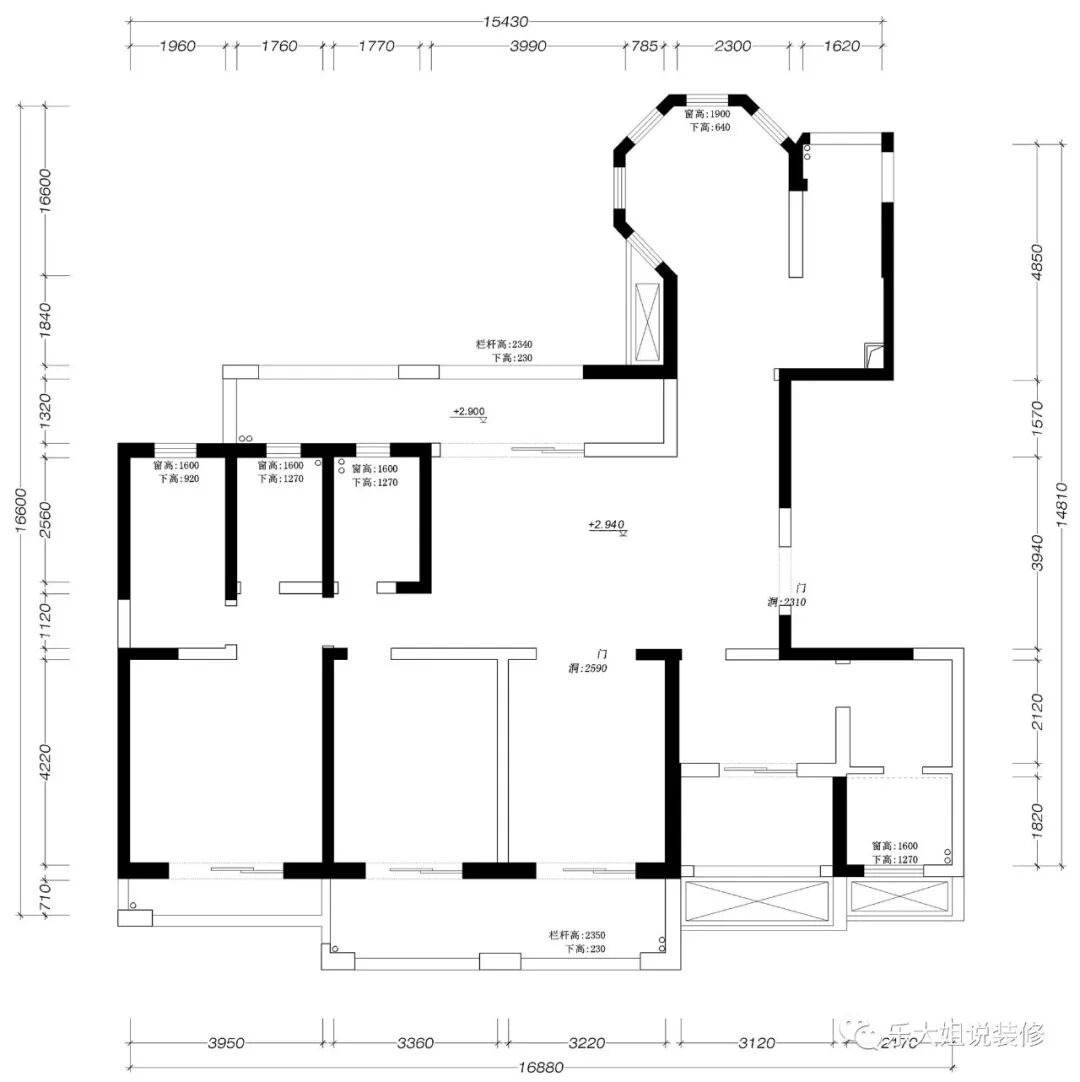
改造后户型图
本案户型客厅北面有一个十几米大阳台,考虑到视野问题将北阳台敲掉纳入客厅,增大客厅的使用面积,同理将南面房间做成开放式书房也是为了客厅视野的扩大,这样无形中客厅就大了一倍;
考虑到北面的湖景,乐大姐团队设计师将卫生间拓出去,主卫增加浴缸的空间,完成业主主卫浴缸的想法;
厨房整体扩大,与餐厅融为一体,开放式厨房更加凸现业主小资情调。

https://vr.justeasy.cn/view/6675971.html?from=timeline

如果您觉得乐大姐说的内容很有价值
欢迎分享转发至您的朋友圈
让更多的朋友都能轻松装修,自在生活!
当然,您也可以添加乐大姐微信号13382100888
或扫描下方的二维码
说出您的装修难题、让乐大姐为您答疑解惑
不管您是装修完工了
还是即将装修的
或者正在装修的
乐大姐一定知无不言,言无不尽




在看是一种鼓励|分享是最好支持
点击右下角 写留言 发表你的心声
我们期待与您的交流
长按二维码添加乐大姐微信号
装修不烦 大姐来谈