发布时间:2020-04-30

乐大姐
FM104.8《家在苏州--乐大姐说装修》栏目特邀嘉宾,
赫博别墅设计创始人之一;
多次受邀成为院校家居的授课讲师;
98年至今,
为万千家庭打造幸福家居同时,也相互成为了好朋友。
任何与装修有关的问题,欢迎您添加乐大姐微信:13382102277,
乐大姐会为您做一对一解答。


现在,
我就想回家,
在餐桌上和你谈谈我今天的见闻,
在灯光下和你聊聊我今天的趣事
……
——by 乐大姐团队原创
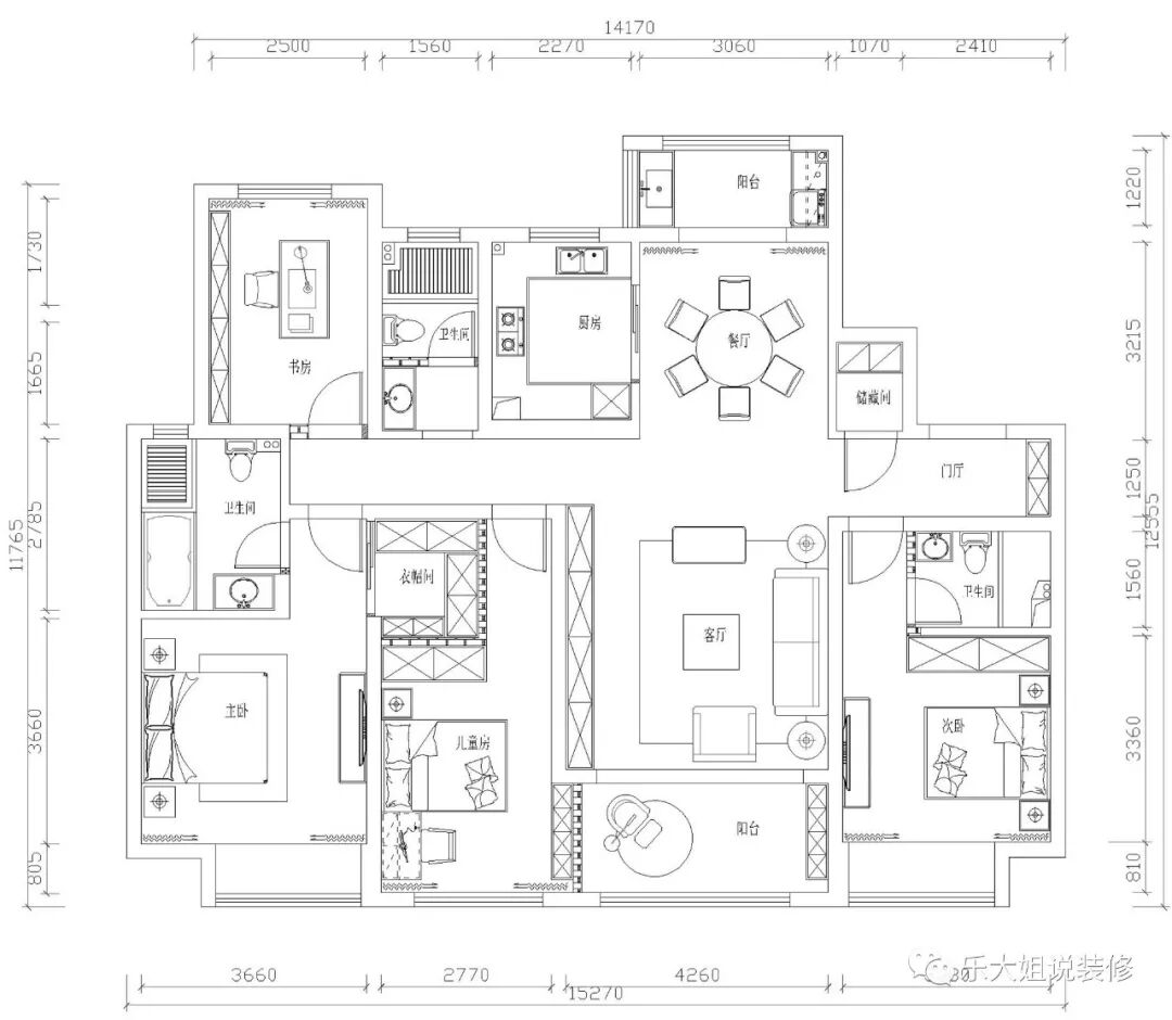
项目地点:吴江吾悦花园
项目面积:170㎡
项目风格:现代
项目性质:全屋整装
项目状态:正在施工
本案是学区房,业主买这套房子已经有好几年了,一直放着,现在考虑到小孩上学要过来住,准备好好装修一下。男业主跟乐大姐是属于同行,他本人开了一家工装装修公司,对装修比较精通,但是业主觉得工装做工比较粗糙,而且自己也很忙根本没时间管装修,所以最终选择了全屋整装!
每个人的生活习惯不同,造就的家也会不一样。业主做工程很多年,看多了各种花里胡哨的装修风格,自己家就喜欢清爽、大气的风格,所以风格选定为现代简约。

山下英子的《断舍离》里曾讲到,将所有“不需要、不合适、不舒服”的东西,替换成“需要、适合、舒服”的东西,然后过简单清爽的生活,享受自由惬意的人生。
业主偏爱现代简约风,重视家居设计的功能性,这一点和断舍离的某些观念不谋而合,也许我们每个人都应该思考一下自己的生活是不是过于冗杂,从而忘记了生活的本意。




用餐区域位于厨房与客厅之间,遵循整体的设计风格,显得较为简约,但是餐具的小细节处处显露着精致不将就的意味。











https://vr.justeasy.cn/view/5480803.html?from=singlemessage

如果您觉得乐大姐说的内容很有价值
欢迎分享转发至您的朋友圈
让更多的朋友都能轻松装修,自在生活!
当然,您也可以添加乐大姐微信号13382100888
或扫描下方的二维码
说出您的装修难题、让乐大姐为您答疑解惑
不管您是装修完工了
还是即将装修的
或者正在装修的
乐大姐一定知无不言,言无不尽




在看是一种鼓励|分享是最好支持
点击右下角 写留言 发表你的心声
我们期待与您的交流
长按二维码添加乐大姐微信号
装修不烦 大姐来谈