
乐大姐
FM104.8《家在苏州--乐大姐说装修》栏目特邀嘉宾,
赫博别墅设计创始人之一;
多次受邀成为院校家居的授课讲师;
98年至今,
为万千家庭打造幸福家居同时,也相互成为了好朋友。
任何与装修有关的问题,欢迎您添加乐大姐微信:13382102277,
乐大姐会为您做一对一解答。
EverytimeBritney Spears - In The Zone

All the leaves are brown.
And the sky is grey.
I've been for a walk.
On a autumn's day,
I'd be safe and warm.
雅戈尔璞墅
459㎡
美式
全屋整装
项目状态:正在施工
这套美式联排别墅是一个年轻小帅哥未来的家(他今年刚刚参加工作不久),上下总共四层,整体高贵大气。房子买了已经有六七年了,一直空关着,之前一直没有装修的打算,现在儿子长大了,父母准备把房子装修起来以后做儿子的婚房!房子性价比特别高,从地下室一直到三楼都可以往外扩建。
因为这套房子是给儿子的婚房,且以后十年二十年都不会再改动了,所以业主一开始会有很多担心,比如每一层都需要有什么空间,涉及哪些功能,担心哪些细节没有考虑周到……现在整个设计完成下来业主觉得完全没有担心的必要!这套美式方案呈现的时候,业主夫妻二人爱不释手!非常喜欢!

乐大姐团队设计师把玄关的作用极致化,金属栅栏式隔断,像极了显露与深藏的爱。深沉内敛的棕木色展示柜,让美式风格淋漓尽致,美观性和实用性并存,配以金属色的置物柜,增添了不少的格调。
你风尘仆仆的归来,这里用柔软将之包围;你精神奕奕的出门,这里用温暖将之填满。一进家门的爱意和温馨,全部在玄关给你。

暖阳与和风,红酒与笑容,以及四季与爱。最美的风景不过如此,古典与浪漫的结合。圆形吊顶和圆形餐桌上下呼应,餐边柜旁的古典的挂画,和美式的浪漫气息融为一体,打造娴静优美的用餐环境。


乍一进客厅,像是来到了一个奇妙国度,一切都是那么新鲜。远远看去,像是一幅美得让人窒息的画。
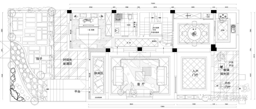
一楼空间采用开放过渡的空间排序,从门厅到客厅,餐厅到厨房,打破传统空间模式。
客厅的整体注重对线条、造型和颜色块面的灵感性运用。每一个角落似乎都渡上了一层金色的阳光,土壤般泛着暖意的地砖,厚软的皮质沙发,各色花纹的抱枕,墙上饶有意境的装饰画,以及精心摆放的绿植,让整个空间美得恰到好处。让人不由地想起沐浴在阳光里的山坡、农庄、葡萄园以及朴实富足的庄园生活。流光溢彩的山水纹理大理石背景墙辅以金色大理石边框,打破客厅沉稳的格局,让整个空间变得多样化和生动化,还增加了立体感。自然,客厅不只是正式会客的地方,在靠近院子的一角,置一个茶几,两三桌凳,约几好友,喝酒聊天,于人间烟火中品味惬意时光。设计师为了遮挡屋顶的横梁,采用独特的九宫格吊顶方式,显得大方得当,全体空间层次分明。
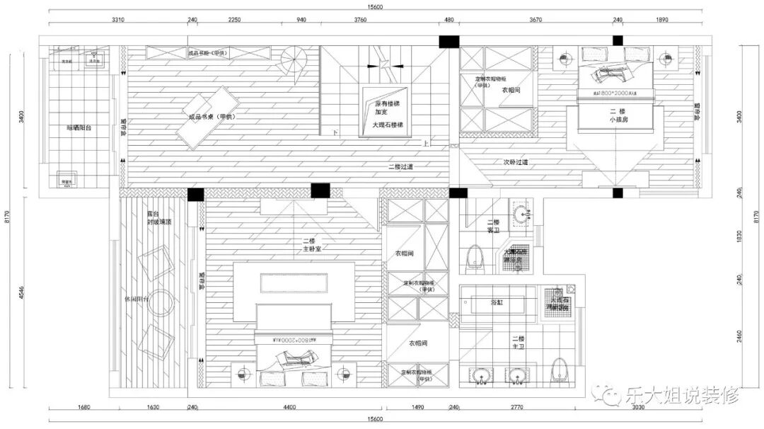
楼层空间的差落有致,区分了开放及私密空间,拾阶而上,大理石台阶、棕色木质扶手、盎然有趣的挂画延续了一楼非凡的质感。
挨着客厅的房间被设计师改成客卧。客卧用素雅的墙纸作为背景墙装饰,搭配素净的床品,使得温馨静谧的气息扑面而来,并通过木地板的温润和精美的灯饰烘托整个空间温暖的氛围。


在卧室的设计上,温润沉稳的木制家具彰显着细腻与典雅,并通过精致的灯饰提升空间的格调,以床为视觉中心,米色的护墙板为背景,营造了整个空间温馨的古典气质,丰富空间的视觉性。
卧室与阳台之间采用推拉玻璃门设计设计,明亮通透,向暖而行;雅致悦目的色调,给人带来直抵心灵的舒适品质感。考虑到男女主人衣物较多,乐大姐团队设计师打破常规的设计,分别设置了男、女衣帽间以方便使用,将精致深入到每一个细节。
当清晨的第一缕阳光打在脸上,揉揉惺忪的睡眼,惬意地伸个懒腰,美好的一天从这里开始。墙上的花鸟画、房顶的浮雕,那些花儿盛开在每一个难忘的瞬间,使主卧充盈着通透、舒适、宁静的氛围,给人强烈的浪漫舒适感。

二楼次卧色彩上以平和、古朴色系带来温馨关怀的感觉,柔和台灯营造静谧的休息氛围,又让人感觉温暖而不孤单。木质的清香深沉,在棉麻床品的柔软中,营造出一种宁静致远的闲适。
二楼开放式书房将生活和工作空间完美结合,理智与情感交融并进,奇思妙想迸发其中。宽阔的空间采光充足,格局通透,铺展开来的花纹地毯给人温润踏实的感受。设计师以紧贴墙面的书柜和搭配精致饰品的书桌,营造了舒适的阅读环境。与生活来说,执一卷书,看云卷云舒,看世界万象,看春华秋实,这是业主心里的某一点诗意,射向无穷的远方。与家来说,爱的方式像个魔方,有千万种表达,但最终仍旧回归于爱家。
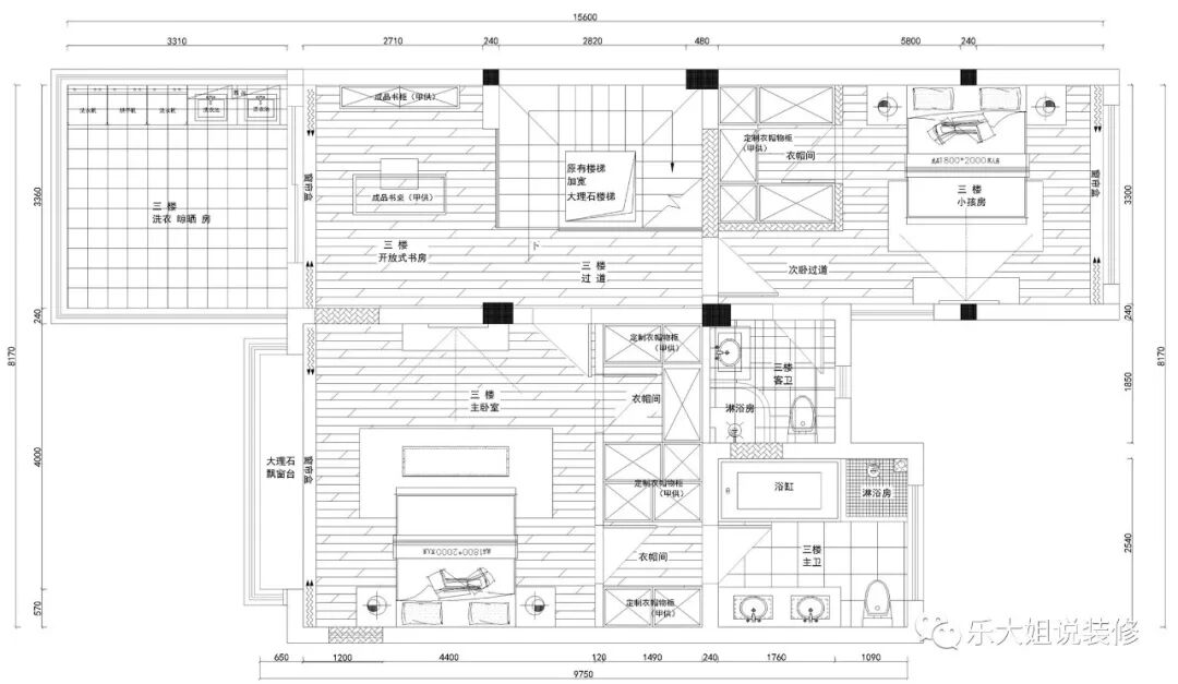
不同于二楼主卧庄重沉稳的美式风格,三楼主卧用米白色、金色、棕木色、灰色四种高级色的自然过渡让室内变得更奢华大气;配以带有现代时尚感的家具,又让硬朗的空间传递出一种温馨感。
为了让主卧空间更加宽敞、视野更加开阔,设计师采用挑高的吊顶、落地窗的设计,阳光投射进来的同时,给整间屋子注满生机,明丽的色彩使空间变得灵动欢快。
居室的一点一滴,都是对生活的一种态度。温馨柔软的布艺装点,软装和背景墙的搭配,沉静典雅的环境展现了业主舒适生活的追求,隔离喧嚣与繁忙,静享夜与梦的惬意。

三楼次卧以后用来作为儿童房,设计师考虑是小孩居住,去繁化简,采用素色系的布局,风格偏美式轻奢,更加符合居住人的心境。
在三楼的楼梯平台上打造了一个开放式书房,将是爱看书的小主人流连缱绻的地方。简洁干净的色调、造型简约的书桌书柜,让书房多了一份返璞归真的气质,主人心境更加豁达高远。



地下室作为功能区,设置了影音室、品酒区、棋牌室、会客区等,提供了一个朋友聚会聊天娱乐的绝佳去处。


地下室是更具趣味的会客娱乐空间,在色彩铺陈上,不仅将一楼的棕木色引入,更增加了黄色、橙色等鲜艳色彩,为主人提供惬意、放松的空间。
- 乐大姐团队设计师根据业主的需求规划整体空间布局,空间功能齐全,包括会客区、客厅、餐厅、厨房、卧室、书房等,把每一个空间都利用得淋漓尽致;
- 另外,设计师根据居者的不同调整空间配色,一楼二楼是父母居住,整体以深色为主,三楼是儿子居住,以浅色为主。
https://vr.justeasy.cn/view/5341238.html

如果您觉得乐大姐说的内容很有价值
欢迎分享转发至您的朋友圈
让更多的朋友都能轻松装修,自在生活!
当然,您也可以添加乐大姐微信号13382100888
或扫描下方的二维码
说出您的装修难题、让乐大姐为您答疑解惑
不管您是装修完工了
还是即将装修的
或者正在装修的
乐大姐一定知无不言,言无不尽
在看是一种鼓励|分享是最好支持
点击右下角 写留言 发表你的心声
我们期待与您的交流