发布时间:2020-04-30

乐大姐
FM104.8《家在苏州--乐大姐说装修》栏目特邀嘉宾,
赫博别墅设计创始人之一;
多次受邀成为院校家居的授课讲师;
98年至今,
为万千家庭打造幸福家居同时,也相互成为了好朋友。
任何与装修有关的问题,欢迎您添加乐大姐微信:13382102277,
乐大姐会为您做一对一解答。


你与自己的住所越息息相通,
你的自我就越与它难分难舍。
一个人选择居于何处绝不是偶然的,
因为它反映了你内心的渴望。
——by 弗朗西斯·梅斯
本案是相城区的高端楼盘,叠墅,以一家三口居住为主,业主是90后夫妻,地道苏州人,思想前卫时尚,所以整体设计采用的是美式工业风混搭。
业主的性格是比较喜欢事情在自己的可控范围内的,且他对于装修的预算自己是有打算的,所以不喜欢装修后期增项,不想陷入不可控的局面,每一笔钱怎么花,都有精确的划分!这套房子是2019年5/6月份才能拿到房的,但是业主2018年8月份就把装修定了下来,整整提前了10个月,比拿房的时候再定起码省下了25万左右!
01
色调Tone
项目地点:姑苏铭著
项目面积:180㎡
项目风格:美式工业风混搭
项目性质:全屋整装
项目状态:正在施工

“其实,很多人都爱问深色会不会压抑,我一直认为任何明度的颜色,只要有和谐的对比关系就可以生动明朗,这和色彩本身无关,只和搭配有关。”——by业主
根据业主的需求,乐大姐团队设计师果断放弃了大白墙,选择了业主喜欢的深邃背景(大红色+黑色+白色的搭配,形成鲜明的撞色),配合地面的中灰色水泥质感哑光砖,把整体色调向下拉,显得深沉富有质感,露出着强烈的自我主张。


要让画面有进深感,颜色有跳跃性,通过添置色彩系软装家具来加深装修风格是一条捷径。黑色钢琴搭配象牙展示柜,红色冰箱搭配黑色收纳柜,颜色刚刚好。摆上业主平时就喜爱的金属质感小摆件,轻奢时髦范儿get!
混搭风就是这样,乍见之初,以为是一团乱作乱麻,细看之下,才渐渐发觉了藏在它粗粝表面之下的精致。
02
厨房 Kitchen

男主人的业余爱好是烹饪,所以厨房设计是设计中讨论最多的空间。根据业主的需求,设计师做了开放式厨房及西厨区。深邃、静默的空间,配上顶部悬挂着的酒品展示柜,时而线条感,时而几何感,时而艺术感。
黑色吧台,金色座椅,不再是一扇门关住一屋的柴米油盐气,而是你我互享烹饪的小美好。
03
餐厅 Dining Room

餐桌椅色泽与后方皮质沙发相互呼应,灰白色质调为居家气氛增添几分温馨雅致。此外,水晶吊灯为空间注入古典气息,也赋予用餐环境细腻优雅印象。
04
客厅 Living Room


客厅以乳白色为主基调,满是不动声色的复古情怀,显示着主人享受生活的态度,也是好品味的集中体现。
当我们觉得餐厅厨房冰冷的钢筋快要压倒我们的整个情绪时,桌上却有几株花开得正艳,加上地上铺就的蓝色泼墨纹地毯,以及灰白色真皮沙发上有质感的抱枕,一起一伏间适当的跳色,把生活的气息注入了这个个性十足的工业风空间里。

而要说客厅最精炼的一笔,就是灯具。乐大姐团队设计师考虑到整体是美式工业风混搭,视觉冲击力强烈,而水晶吊灯对于层高很有要求,如采用水晶灯会让客厅很有压迫感,显得杂乱,所以最终采用了带有工业风的筒灯。
要装修出高级感,最简单的就是用高级元素,复杂花纹石膏线条就是其中一种,让看似粗糙的空间,多了一份精致!


窗户旁布艺沙发桌椅加金色支腿,另外加了几本书和一台半导体,全部颜值都在线!
这样的客厅似乎更适合夜晚,在暖黄色的灯光里,循环一个音乐电台,最好放的是爵士乐,去品味感受生活里的细琐小事,十分美好。
05
书房Study

主卧采用套间设计,一进门就是开放式书房,兼具工作室、阅读区或健身休闲等多元用途。整个书房以莫兰迪绿为主色调,远看像墨绿色,但是比墨绿色饱和度低,可以有效地降低对比色搭配中带来的视觉油腻感,使整个空间气质更为沉稳内敛。


简约线条加上裸露管道筒灯引出工业风的粗犷、不加修饰的味道。书房和卧室之间采用玻璃隔间的手法,营造出穿透、流动的领域氛围。

搭配一盏黄铜材质的台灯,满满的都是文艺小资调子。木质拼贴地板表现也是极佳,降低了墙面带给人的冰冷感,在视觉上,让空间变得柔和起来。
06
卧室 Master Bedroom


不同于书房的复古华丽,主卧睡眠空间则散发着温柔美好的基调,在色彩上用了白色+紫粉,十分清新清爽的配色。满眼温柔的床品、象牙白的床头柜、黄铜材质的吊灯,既丰富了空间色彩,又透出一丝雅奢的味道。


而床边的地毯相信会受很多人的喜爱,地毯图案有点像羽毛又有点像枝叶,随意中带着烂漫的味道,给房间增添了温柔的抚媚。
07
平面方案Flat Plan

一楼原始户型图

一楼改造后户型图

二楼原始户型图

二楼改造后户型图
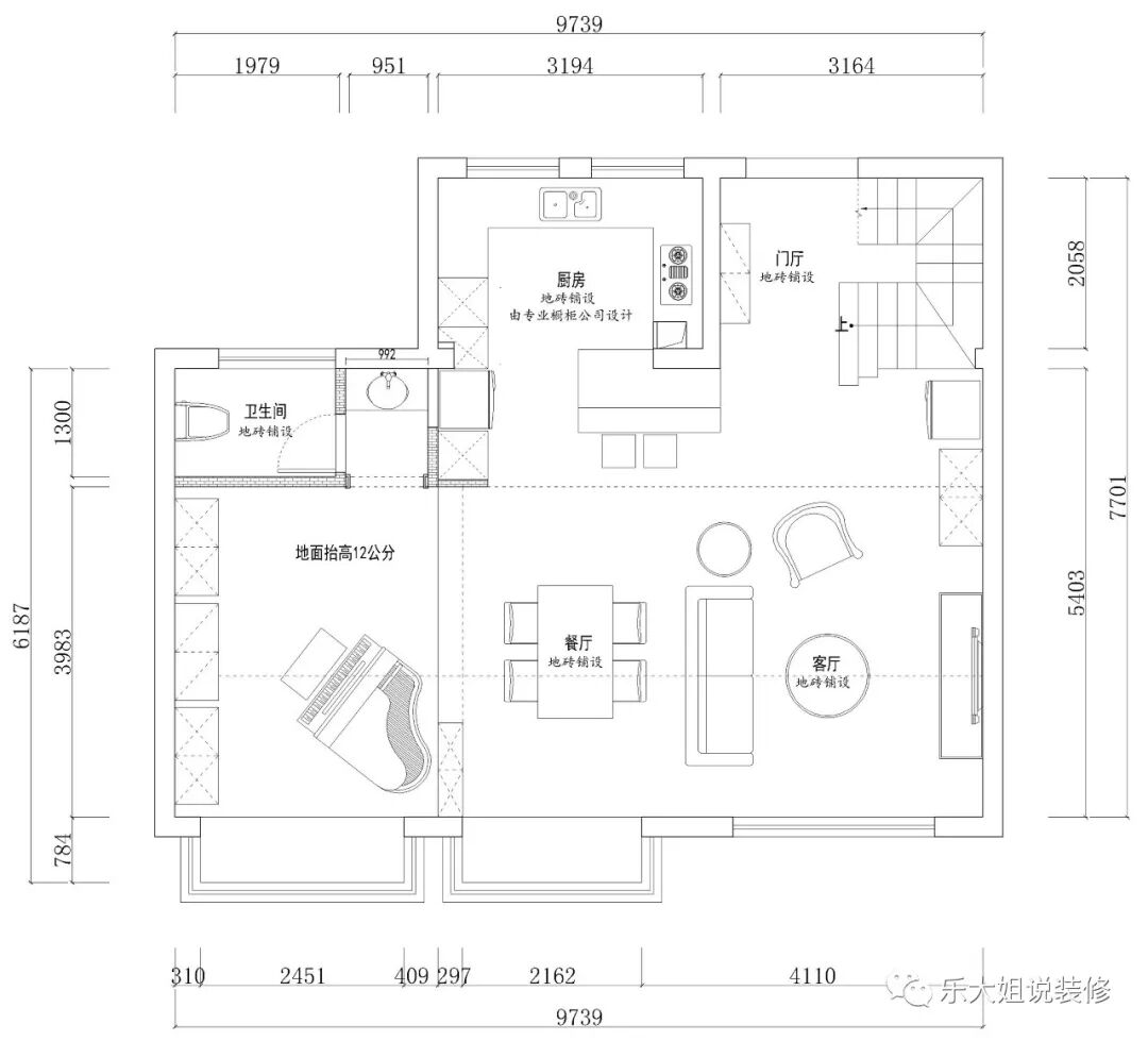
本案是上叠户型,原本一楼是有一个房间的,由于家里没有那么多人住(三口之家),所以乐大姐团队设计师将其改造为钢琴区,地面做了抬高,这样一楼变成了一个连贯的空间;
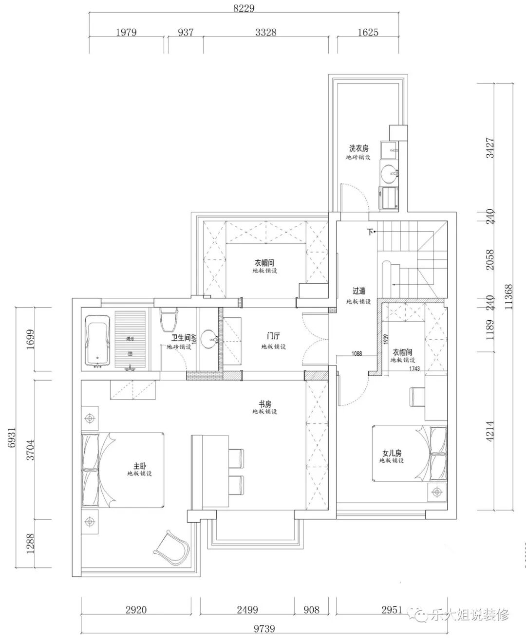
二楼主卧采用套间设计,包括衣帽间、书房、卧室、卫生间,功能齐全,使用便利。
08
全景图 Panorama

https://vr.justeasy.cn/view/3083564.html?from=sing...

如果您觉得乐大姐说的内容很有价值
欢迎分享转发至您的朋友圈
让更多的朋友都能轻松装修,自在生活!
当然,您也可以添加乐大姐微信号13382100888
或扫描下方的二维码
说出您的装修难题、让乐大姐为您答疑解惑
不管您是装修完工了
还是即将装修的
或者正在装修的
乐大姐一定知无不言,言无不尽



在看是一种鼓励|分享是最好支持
点击右下角 写留言 发表你的心声
我们期待与您的交流
长按二维码添加乐大姐微信号
装修不烦 大姐来谈