发布时间:2020-04-30

乐大姐
FM104.8《家在苏州--乐大姐说装修》栏目特邀嘉宾,
赫博别墅设计创始人之一;
多次受邀成为院校家居的授课讲师;
98年至今,
为万千家庭打造幸福家居同时,也相互成为了好朋友。
任何与装修有关的问题,欢迎您添加乐大姐微信:13382102277,
乐大姐会为您做一对一解答。
如今越来越多的房地产商推出精装修房,
对于业主来说,方便了不少,
但是也存在着千篇一律、质量参差不齐等问题,
无法满足业主对高品质生活的需求。
所以,一些业主就找设计师
通过硬装软装的改造升级以达到自己想要的效果。
那么
今天,和乐大姐、湖畔樾山业主一起
来看看这套刚竣工不久的精装修实景案例吧(*^__^*) ……


精装修改造前后对比
© 文内图片、视频来源乐大姐团队实景现场
装修背后的故事
本案是湖畔樾山李先生的家,一套精装修改造案例,这个小区所有的房子都是精装房,虽说是精装修,但基本上跟没装修一样,只是简单地做了硬装的处理,李先生拿房后对这样的装修很不满意。更让李先生无法忍受的是小区里相同户型装的都是一个样。


湖畔樾山精装房改造前
原本李先生买这套房是准备给孩子做婚房用的,对装修的效果和品质要求比较高。现在没有中央空调(原来精装修的房子没有将设备考虑进去),没有家具(空洞洞的),没有软装(冷冰冰的),没有自己想要的中式风格(千篇一律,没有个性,不符合业主一家的喜好)……
偶然的机会,李先生关注到了乐大姐,了解到全屋整装模式,可以给他们这套特殊的房子做整体规划,慕名前来,最后选择了全屋整装的服务模式进行对他家设计,施工服务。
湖畔樾山精装房改造后实景视频

业主对新家的满意度评价极高
装修背后的故事
项目名称 | 湖畔樾山
项目面积 | 130㎡
项目风格 | 新中式
项目状态 | 已完工
项目性质 | 全屋整装
项目地址 | 苏州市相城区

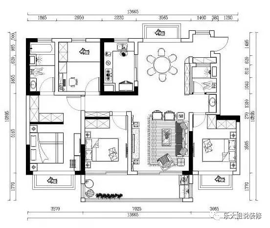
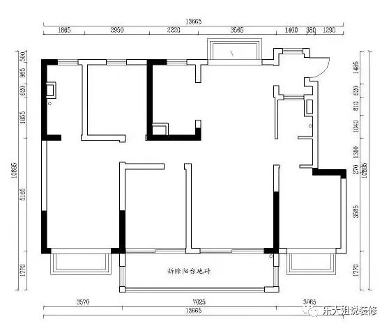
原始户型图

平面布置图
原始户型诊断及改造
本案户型是四室两厅两卫双阳台,户型方正,采光充足,空间上不需要做太大的改动;
根据业主的需求,硬装的升级、软装的改造主要集中在客厅、餐厅、卧室,厨房和卫生间硬装部分不做改动,保持原样,且其他空间的设计以厨房卫生间的色调为基础;
考虑到通风和采光的问题,设计师将与客厅相邻的带阳台卧室的墙体拆掉,改造为移门。
装修背后的故事
新中式将中式经典元素加以提炼,并与现代风格及材质兼容并蓄,既体现出人们对东方精神的追求,又为家居文化注入新的气息。


与原始结构完全不同的是,现在的客厅已是那般惊艳的模样:清雅与大气共生,含蓄与精致并存。室内大多采用对称式布局,格调高雅,造型纯朴。
客厅古典的木质家具融合现代沙发,理性却不失温度,旭日东升的背景墙让整体充满诗情画意。空间装饰多采用简洁硬朗的直线条,直线装饰在空间中的使用,更有一种内敛、质朴的设计风格,使整体设计更加实用、更富现代感。


云雾、梅花、牡丹、桌旗、圆枕、陶瓷,这些极具中式风味的配饰让典雅端庄的氛围呼之欲出,可谓是时尚与古典的柔媚组合。

客厅电视背景采用了简单对称的造型+石材进行修饰,设计师以现代人的审美需求打造出富有传统韵味的家居。

在整个空间规划上,卧室又被分隔出了一间衣帽间,方便主人日常使用。同时在卫生间做了一个套间格局,设计看似繁复,呈现出来却给人感觉简约舒适。

卧室的背景墙采用的是垂柳叶屏风式样的层次点缀,即贴合新中式的设计风格,也为空间注入了自然气息。拉丝黄铜的质感沙发床,注入了些微的时代感,巧妙的处理了当代元素与东方意境的关系。

布局上,餐厅和客厅是联通一体的空间。餐厅造型简练,色彩清雅。陶瓷与木材的搭配,柔软了时光,对宁静与质朴的追求,把所有的繁复遗忘,只剩下饭桌上的其乐融融。

餐边柜集收纳和陈列功能为一体。中式仿古灯更强调古典和传统文化神韵的再现,宁静而古朴。

餐厨一体,再用玻璃门进行隔断,既有开放式厨房的颜值,也有封闭式厨房的便利。
整个设计以白色和深胡桃色为主,搭配了白色的石材,让整个空间更加丰富和层次感。现代感的电器与质朴的中式相碰撞,擦出不一样的火花。品味利落线条下的厨房空间和在这样的氛围下诞生的一道道美味,是熟悉的家的味道。

使用干湿分离的设计,干区看着不大但上下柜的收纳空间,却能满足主人家一应日常需求,实用性超强。


写在最后
精装修房源在购买价格上,比毛坯贵很多。以往业主对精装修房源的后期软装搭配,倾向于自己动手。随着近几年精装修房源越来越多,70%以上业主会找设计师来设计方案。
以往自己挑家具材料,会根据自己喜爱,单品好看,并不考虑组合起来是否好看,一边做一边摸索,效果碰运气。而乐大姐团队设计师,会在控价的基础上,合理的进行产品的搭配,更加注重整体协调感与美感。对于注重生活品质的业主而言,设计,还是尤为重要的。

如果您觉得乐大姐说的内容很有价值
欢迎分享转发至您的朋友圈
让更多的朋友都能轻松装修,自在生活!
当然,您也可以添加乐大姐微信号13382100888
或扫描下方的二维码
说出您的装修难题、让乐大姐为您答疑解惑
不管您是装修完工了
还是即将装修的
或者正在装修的
乐大姐一定知无不言,言无不尽




在看是一种鼓励|分享是最好支持
点击右下角 写留言 发表你的心声
我们期待与您的交流
长按二维码添加乐大姐微信号
装修不烦 大姐来谈