发布时间:2020-04-30

乐大姐
FM104.8《家在苏州--乐大姐说装修》栏目特邀嘉宾,
赫博别墅设计创始人之一;
多次受邀成为院校家居的授课讲师;
98年至今,
为万千家庭打造幸福家居同时,也相互成为了好朋友。
任何与装修有关的问题,欢迎您添加乐大姐微信:13382102277,
乐大姐会为您做一对一解答。

项目地点:朗悦湾
项目面积:610㎡
项目风格:现代极简
项目性质:全屋整装
项目状态:正在施工
本案是610㎡的独栋,位于渭塘镇上,有些年头了,地上三层地下一层。业主是一对中年夫妇,渭塘本地人,有自己的工厂,这套房子是打算要长期居住的,对效果品质要求都比较高,希望在满足实用的基础上享受生活!
小主人正在上大学,所学专业也是设计类,对现代时尚的摩登风格情有独钟,接受一切设计感与现代感的元素,所以风格选定为现代极简,风格大气不过时,简约不简单!
门厅/Lobby


达芬奇说:“简单是终极的复杂。”极简,是一种生活方式,放下繁杂,丢弃旧思想,让生活简单极致,让心情愉悦。
业主喜欢的是一个安静,祥和,看上去明朗宽敞舒适的家,来消除工作的疲惫,忘却都市的喧闹。
客厅/Living Room



客厅是业主待客休闲的空间,乐大姐团队设计师基于黄金分割线上的布局、留白、比例、虚实,看似随意,却拿捏到位,取舍精准,以高超的设计手法使得空间灵动而有序,用最简练的方式传达了主人的个人品味和会客状态。
色彩上,米白、高级灰的主色调,奠定了空间沉稳内敛的底色。沙发背景墙上几何的软包,电视背景墙上的天然大理石,与棉麻、黄铜、大理石、玻璃等不同材质的组合,以新现代主义的审美视角展现当代气质。从容和缓的节奏,让空间更加轻盈通透,也随时可让居者在安静而不浮躁的状态下体会空间的美与奢。


整个客餐厅空间,做了无主灯设计,用了大量的点光源,点光源不仅不占据空间,还能柔化空间气氛,加强光线层次感,营造温馨的感觉,减轻空间压迫感。设计师在客厅的角落放置了一盏立灯,移动方便,适合阅读等需集中精神的活动,同时也能营造角落气氛,为客厅增色不少。
业主一家三口都喜欢大面采光与视野,设计师根据业主的需求南北面采用的都是整面落地玻璃窗,视野非常宽阔,一楼南院美景尽收眼底。


人什么样,怎样住,住什么,都是人的生活哲学。从现在开始,让生活恢复它本该有的简单清爽。
餐厅/Dining Room



餐厅延续客厅的设计,它们是连在一起的,在视觉上给人的感觉更为开阔,虽然相通,却又被设计师用类似垭口的设计,让空间既相通,视觉上又彼此分隔。

色彩上,磨砂黑、爱马仕橙的加入,与黄铜金属共同营造出餐厅丰盈的轻奢质感。
父母房/Parents' Room


次卧室同样保持着整体的风格,灰色是主色调,搭配麻灰色的床品和姜黄色的抱枕床前凳,低调中透着明快。


阳台设计在次卧里面,采用地台的形式,与睡眠空间区隔开来。休息之余,也可以在躺椅上晒晒太阳,一种怡然自得的惬意。
“好的卧室,让我愿意提早20分钟休息。”

阳台/Balcony


二层父母房视野极好,还带一个露天阳台,阳台采用玻璃房设计。天晴的时候,一抹阳光照射进来,洒在阳台的座椅上上,一杯茶,一本书,一次小憩,优哉游哉!
主卧/Master Bedroom



乐大姐团队设计师为主人量身定制酒店式主卧套房,整个三层都是主卧空间,集睡眠空间、主卫、衣帽间、书房、沙发休闲区五大功能于一体,不仅使日常生活更便利,同时也能平衡生活重心,提升生活品质。

主卧承袭公共区域的设计手法,以简练线条和纯粹色彩恰到好处的糅合,去营造与主人相匹配的空间,并用木质地板代替大理石,加入棕色来强调沉稳气质,让空间气质更为温润。


好的设计并不是强迫我们去断舍离,而是利用好隐藏空间,该藏则藏,该挡则挡。衣帽柜封闭与开放柜体结合,在变化的韵律中营造精致、高贵的生活态势。
主卫/Guardian


主卫,低调内敛的五十度灰与爵士白的调和统一,将现代极简的干净利落、当代质感的美学风度演绎得淋漓尽致。


整个卫生间配备浴缸、马桶、淋浴房、双人洗漱台,功能齐全,使用方便!
台球室/Billiard Room



地下一层为休闲娱乐空间,品酒区、台球室、影音室一应俱全,满足业主多元化的功能需求。台球室与品酒区一体而成,经由俊朗的材质强调线条垂直感以及映射延展性,塑造出丰富的立体构成。
影音室/Video Room




影音室宛如魔幻黑盒子,顶面参考星空的感觉来设计灯光的层次,立面则选用灯光和递进式立面,格调静谧,氛围十足。
平面方案/Flat Plan


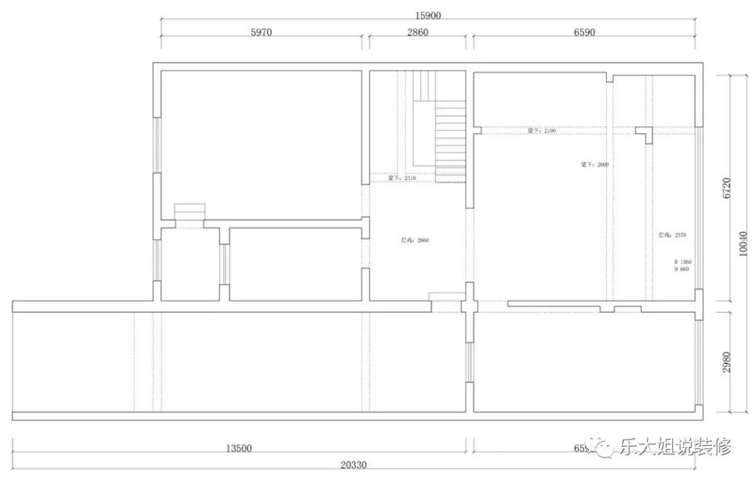
地下室原始户型图

地下室改造后户型图

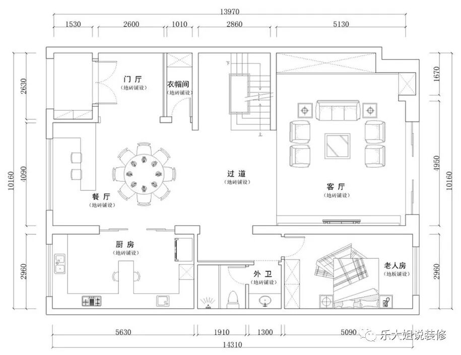
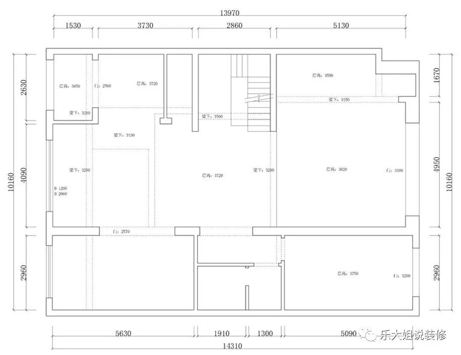
一楼原始户型图

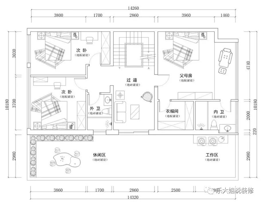
一楼改造后户型图

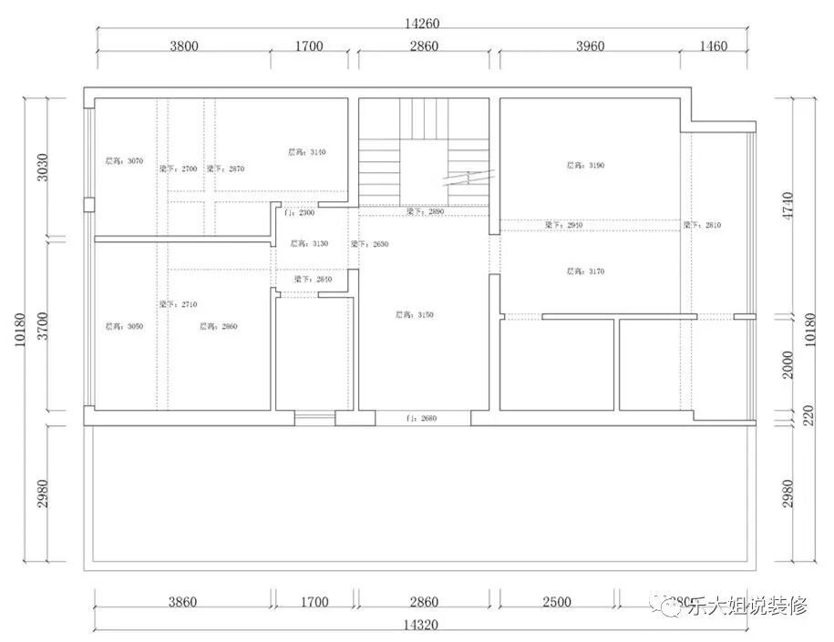
二楼原始户型图

二楼改造后户型图

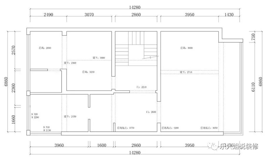
三楼原始户型图

三楼改造后户型图
本案是独栋型别墅,重新土建调整了格局,所以每个空间宽敞合理,所想功能基本都能实现,北面进门有独立的门厅,且规划了小小衣帽间,入户外套包包可以放置;
餐厅边上设有吧台区,休闲又时尚,厨房兼具岛台功能;
二楼三楼基本以套房为主,高档大气又方便。
全景图/Panorama


https://vr.justeasy.cn/view/4742992.html

如果您觉得乐大姐说的内容很有价值
欢迎分享转发至您的朋友圈
让更多的朋友都能轻松装修,自在生活!
当然,您也可以添加乐大姐微信号13382100888
或扫描下方的二维码
说出您的装修难题、让乐大姐为您答疑解惑
不管您是装修完工了
还是即将装修的
或者正在装修的
乐大姐一定知无不言,言无不尽




在看是一种鼓励|分享是最好支持
点击右下角 写留言 发表你的心声
我们期待与您的交流
长按二维码添加乐大姐微信号
装修不烦 大姐来谈