发布时间:2020-04-30

乐大姐
FM104.8《家在苏州--乐大姐说装修》栏目特邀嘉宾,
赫博别墅设计创始人之一;
多次受邀成为院校家居的授课讲师;
98年至今,
为万千家庭打造幸福家居同时,也相互成为了好朋友。
任何与装修有关的问题,欢迎您添加乐大姐微信:13382102277,
乐大姐会为您做一对一解答。


I love three things in this word.
Sun,Moon and you.
Sun for morning,
Moon for night,
and you forever.
——by 乐大姐团队原创
项目地点:吴江绿地香奈
项目面积:180㎡
项目风格:美式轻奢
项目性质:全屋整装
项目状态:设计完成
本案是父母买给女儿的婚房,对装修效果和品质的要求比较高。业主之前也装修过两套房子,但是每次装修不仅感觉过程特别长,繁杂琐碎,而且最终的装修效果都不是很理想,所以在给女儿挑装这套婚房的装修单位时就比较慎重。
本案属于上叠的户型,赠送的面积也比较多,双阳台户型,现浇完二楼两个朝南的房间都带有阳台,舒适度非常高。在风格的选择上,考虑到这套房子是给女儿结婚居住的,最终选择了比较适合年轻人的美式轻奢风格。
本案拿房时间虽然在2019年8月底,但是业主在2018年12月份就在乐大姐设计团队把装修定下来了,因为他们考虑房价一直在涨,装修市场也是同理,提前把装修定下来不仅可以剩下一笔费用还有足够的时间把设计做好。
客 厅/Living Room

生活是一曲舒扬的乐章,设计谱写着乐章的旋律。在本案中,乐大姐设计团队根据业主的喜好为这位即将新婚的美女业主设计了别致的美式轻奢风住宅,并改善了原有户型中的一些不完美,愿业主所遇所得都是最好的安排,愿每一位热爱生活的人都能乘梦以往,不负韶华。


奢华温馨的客厅,以灰色为背景,搭配白色的层级吊顶,灰白相间将视觉有效的放大,通过石膏线条叠加的安排,提升空间的层次感。

设计师十分擅长利用软装配件点缀空间,银灰色沙发和窗帘、地毯相呼应,巧妙地将爱马仕橙、樱花粉等亮色色调穿插搭配,透露出沉稳带俏皮的气息。植物的点缀为整个空间带来生机活力,奢华的金属吊灯、台灯提升了客厅空间的品质。
餐 厅/Dining Room

餐厅和厨房是一个家庭的核心区域,业主希望在实现功能最大化的同时,也让这个区域成为家庭成员之间亲密互动的纽带,因此厨房和餐厅之间采用玻璃移门,既可封闭也可开放,让空间的功能性得以延伸。

餐厅配以大理石台面餐桌,座椅也是质感浅色,自然纹理相照整体色调极为和谐,桌面上餐具,让人遥想那顿烛光中的暖意。
受厨房空间的局限,设计师在餐厅设置一排餐边柜,拥有强大的收纳能力,集合了蒸箱和烤箱。

楼梯采用的是大理石踏步+玻璃扶手+小射灯设计,既与整体风格相协调,又考虑到了采光的问题,让整个空间看起来开阔而明亮。不同材质的装饰使整个客厅有了渐进的层次感,摆脱了呆板的沉闷。
主 卧/Master Room


卧室的设计不浮夸繁杂,而是更生活化。乐大姐团队设计师考虑到这是一个两层的叠加结构,设计师把阳台、楼梯过道、卫生间的功能纳入房中,为主人量身定制酒店式主卧套房。把休憩、休闲、洗漱、收纳的功能放在同一空间,不仅使日常生活更便利,同时也能平衡生活重心,提升生活品质。


高级灰墙纸衔接金属线条的白色吊顶,金属水晶质感的吊灯,使整个风格统一。淡紫色床品与奢华中带点静谧的暗金色软包背景让舒适与宁静围绕整个睡眠空间。

明黄色休闲座椅与米色的窗帘相呼应,明亮通透的休闲阳台,望着窗外的风景,不失一种午后咖啡的感觉,享受独处的安静时光。
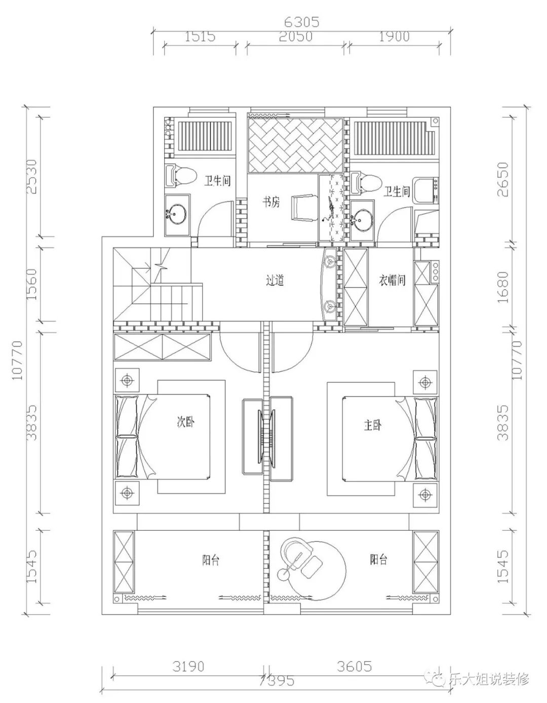
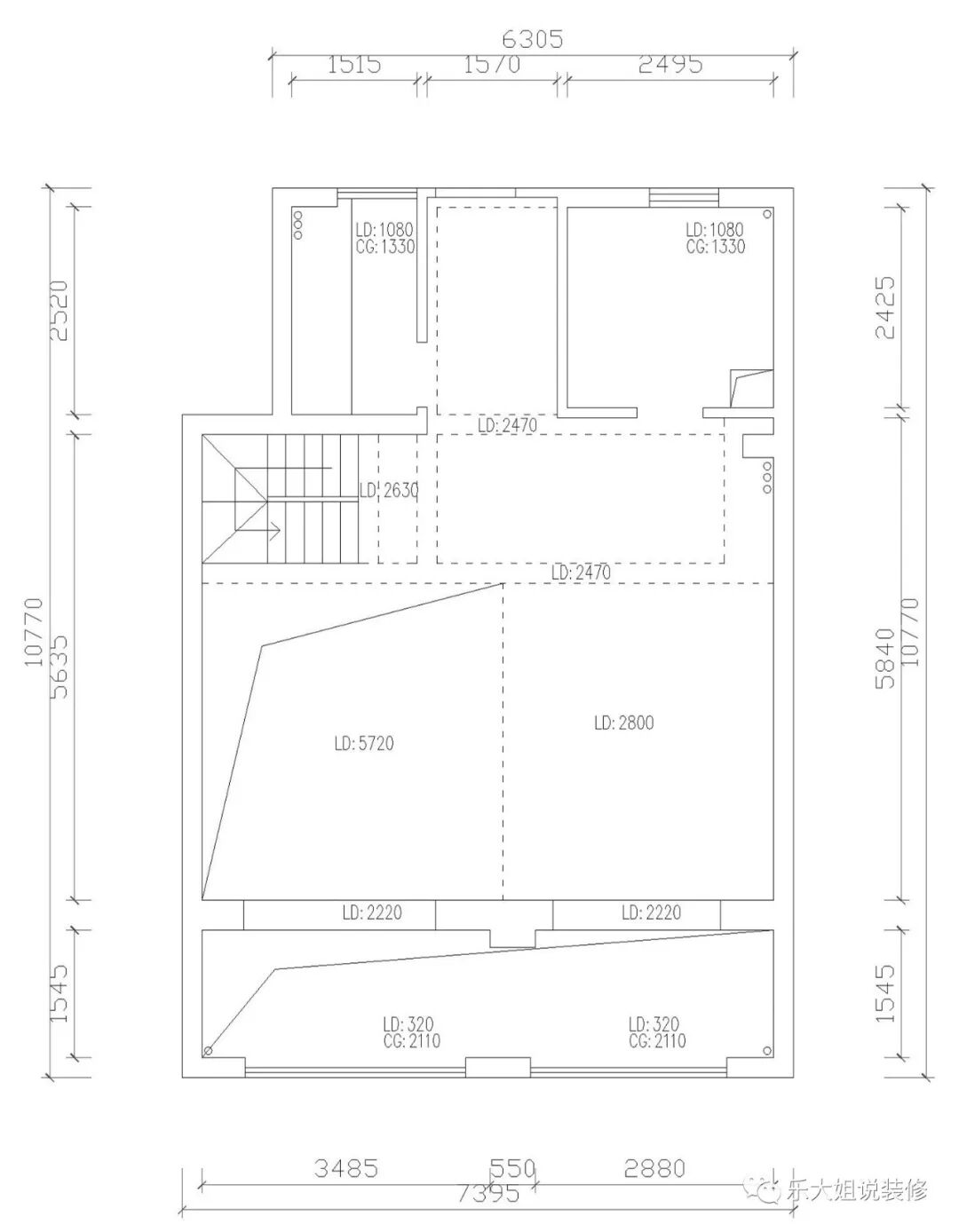
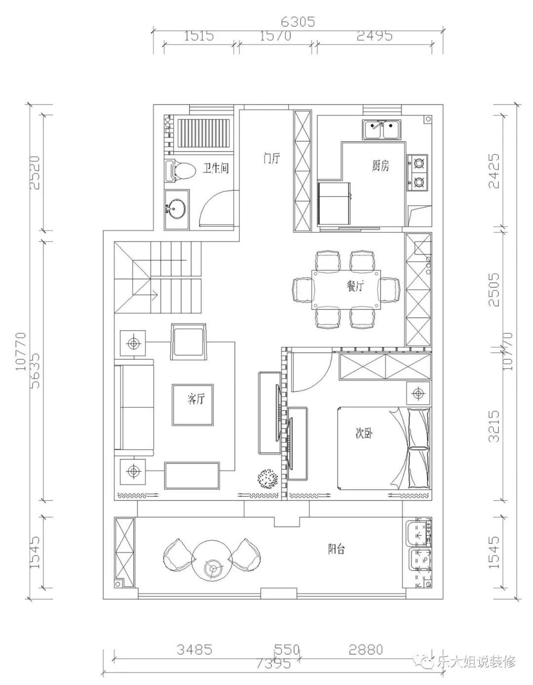
平面方案/Flat Plan

一楼原始户型图

一楼改造后户型图

二楼原始户型图

二楼改造后户型图
本案根据业主的需求,一楼二楼都有空间改动,因考虑到后期老人会不定期过来住帮忙带小孩,在不影响客厅空间的情况下设计师将一楼大通间留出了一个老人房;
考虑到业主是新婚夫妻,将二楼的阳台、卫生间、楼梯过道全部纳入主卧空间,做成酒店式主卧套房结构,功能性齐全,舒适度非常高。
全景图/Panorama

https://vr.justeasy.cn/view/4510469.html?from=singlemessage&isappinstalled=0

如果您觉得乐大姐说的内容很有价值
欢迎分享转发至您的朋友圈
让更多的朋友都能轻松装修,自在生活!
当然,您也可以添加乐大姐微信号13382100888
或扫描下方的二维码
说出您的装修难题、让乐大姐为您答疑解惑
不管您是装修完工了
还是即将装修的
或者正在装修的
乐大姐一定知无不言,言无不尽




在看是一种鼓励|分享是最好支持
点击右下角 写留言 发表你的心声
我们期待与您的交流
长按二维码添加乐大姐微信号
装修不烦 大姐来谈