发布时间:2020-04-30

乐大姐
FM104.8《家在苏州--乐大姐说装修》栏目特邀嘉宾,
赫博别墅设计创始人之一;
多次受邀成为院校家居的授课讲师;
98年至今,
为万千家庭打造幸福家居同时,也相互成为了好朋友。
任何与装修有关的问题,欢迎您添加乐大姐微信:13382102277,
乐大姐会为您做一对一解答。


我们之间没有延伸的关系,没有相互占有的权利,
只在黎明混着夜色时,才有浅浅重叠的片刻,
白天和黑夜只交替没交换,无法想象对方的世界,
我们仍坚持各自等在原地,把彼此站成两个世界。
——by 乐大姐团队原创
项目地点:保利悦玺
项目面积:146㎡
项目风格:极简
项目性质:全屋整装
项目状态:正在施工
本案业主是来自台湾的一对夫妻,在苏州的工作,平时很忙,希望回到家后能有一个可以放松、安静的环境,所以在轻奢、中式、美式、欧式等各种风格里,最喜欢极简风。
很多人都说台湾人做事特别细致,这种细致在装修上不仅体现在对工艺、对软装、对色调等入微要求,也体现在对灯光的层次、亮度等要求上,所以乐大姐团队设计师打造了白天/黑夜两种环境下不同氛围的家,让业主于细微处享受生活。
另外,业主非常注重家庭氛围的营造,希望家人回到家的时候有共同的活动区域,彼此之间可以互相交流;书架是必须要有的,以便从小培养孩子的阅读习惯;希望储藏空间越多越好。
客厅/Living Room

根据业主的需求,乐大姐团队设计师将本案打造成现代极简风。很多人认为,「极简」就是简单,然而,极简真正的含义并不在于简朴,它只是将一种全新的生活方式,融入到设计思考当中。
极简,也是一种极奢,它将设计的元素、色彩、照明、原材料,简化到最少的程度,但对材料的质感、工艺的要求却很高。

客厅、餐厅、书房之间采用开放式格局,既保持互通相连,又体现出每个空间的独立性,用简单的材料凸显细节,简单的造型完成需求,把设计的空间变成在使用上更舒适的生活空间,串联休闲、学习的生活主线,塑造现代优雅的时光立面。
另外,客厅与书房之间用半墙体隔断进行空间划分,从而让客厅不过于空旷。合理、可变又灵活的分配使得空间在无形中获得了扩容,延伸整个家庭对空间和功能的需求,并增设使用功能,使得房子的每一部分都能获得最高效的利用。


设计中局部黑白灰色调的运用,产生强烈对比,把克制地情绪表现得额淋漓尽致。黑色皮质沙发,安静站立在渐变的几何形状同色系地毯上,爵士白大理石墙面贯穿整个电视背景墙,空间中的静谧感被无声唤醒,所谓含蓄,不过如此。
从电视背景墙温暖的灯光,到橙色座椅带来鲜明的视觉冲击,映衬出黑白空间不一样的趣味。形与色的关系在持续、和谐、完成。
客厅/Living Room
因业主无法忍受一个空间只有一种光的环境,所以乐大姐团队设计师从以人为本出发,根据人在白天/夜晚对光线的不同需求(白天通透明亮,夜晚静谧安逸)打造立体灯光,营造轻松怡人的舒适环境。


客厅采用的是无主灯设计,以射灯、灯带、金属吊灯相结合,灯光设计简洁而有层次感,极具格调。无主灯设计使得客厅的层高被“拔高”,更显开阔。
让光从电视背景墙底部、柜体顶部透出来,除了界定空间关系外,也让电视背景、柜体显得轻盈立体。
由繁入简,由简入丰。生活会在不同的时间段,不同的环境中,有不同的呈现。
餐厅/Dining Room

餐厅用同等大理石材质,与整体设计呼应,淡灰色的现代座椅,头顶裸露的简约灯泡吊灯,以及干净的白色餐边柜,无不表现出通透、干净、全开放,甚至有一丝倔强的温暖。

一家四口亲密围坐的空间氛围里,不需要过于华丽的语言,简单舒服的座椅和圆桌,拉近了家人的距离,看着彼此面容中发自内心的笑意荡开,真是没有什么事情是一顿饭解决不了的。
餐厅/Dining Room
餐厅的灯光主要焦点在食物上,所以,吊灯是最好的照明方式。
主卧/Master Room


主卧采用全开放式的设计,大大的卧室兼容衣帽间和卫生间,打开空间的同时又清楚地分割开每个功能区域,不显空间凌乱,且互有交流。

睡眠空间用了大量的淡灰色墙纸,温暖的色调和柔和的灰调相得益彰。“高级灰”的运用,使空间设计增添了另外一种格调。一盏灯,一双人,就是空间的魂。
主卧/Master Room

卧室作为休息睡眠的空间,其实灯光本来就不必太强烈,非常适合采用无主灯设计。一盏落地灯,两个壁灯,几条灯带,已经能够给空间带来温馨和煦的微光。


虽然一提到极简,人们可能会想到大面积的留白或只挂几件灰白棉T恤的空荡衣橱,极简的真意并非强迫自己舍弃心爱之物,或者试着用最少的资源活下去,而是去探寻我们的真实所需。
极简,与其说是一种风格,不如说它是一种深深根植于内心的态度。
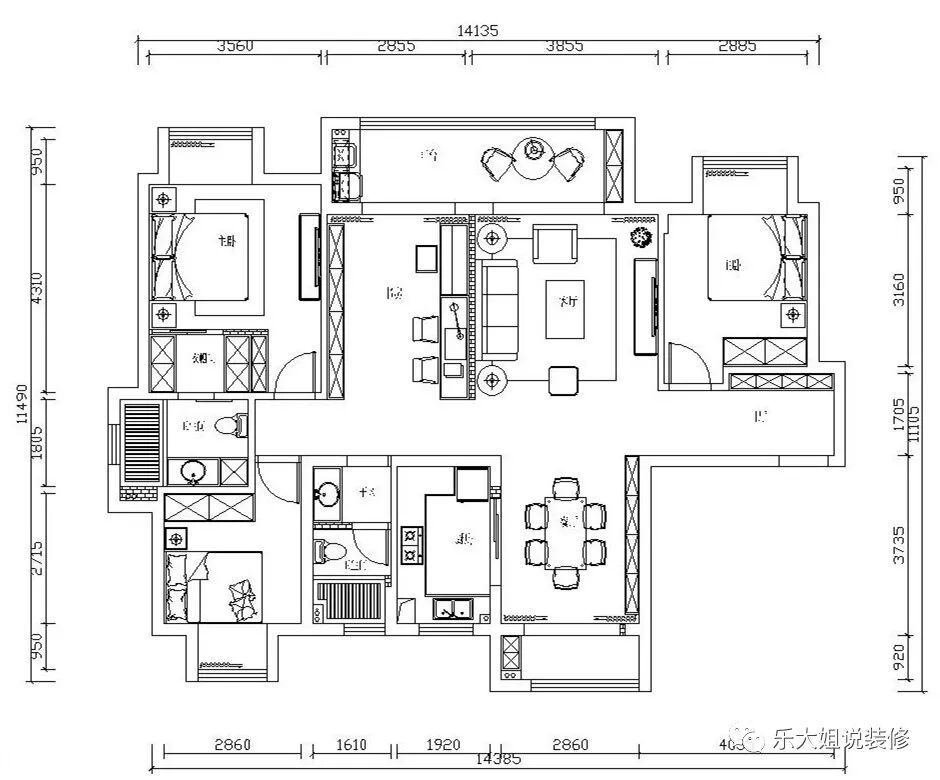
平面方案/Flat Plan

原始户型图

户型改造图
本案户型是四房两厅两卫双阳台,户型方正,采光充足,空间上不需要做太大的改动;
考虑到业主的整体需求,将客厅旁边的小房间打掉做成开放式的书房与原本的客厅融为一个整体,这样双阳台的采光也能更好的引进来。另外,因本案是湖景房,这样处理后视觉效果更好,同时增加客厅的功能需要,加大客厅的舒适度。
全景图/Panorama

https://vr.justeasy.cn/view/6154337.html?from=timeline

如果您觉得乐大姐说的内容很有价值
欢迎分享转发至您的朋友圈
让更多的朋友都能轻松装修,自在生活!
当然,您也可以添加乐大姐微信号13382100888
或扫描下方的二维码
说出您的装修难题、让乐大姐为您答疑解惑
不管您是装修完工了
还是即将装修的
或者正在装修的
乐大姐一定知无不言,言无不尽




在看是一种鼓励|分享是最好支持
点击右下角 写留言 发表你的心声
我们期待与您的交流
长按二维码添加乐大姐微信号
装修不烦 大姐来谈