发布时间:2020-04-30

乐大姐
FM104.8《家在苏州--乐大姐说装修》栏目特邀嘉宾,
赫博别墅设计创始人之一;
多次受邀成为院校家居的授课讲师;
98年至今,
为万千家庭打造幸福家居同时,也相互成为了好朋友。
任何与装修有关的问题,欢迎您添加乐大姐微信:13382102277,
乐大姐会为您做一对一解答。


半夏生,木槿荣。
耳边静,心里闲。
茶一盅,书一卷。
听风吟,看云卷。
——by 乐大姐团队原创
项目地点:独墅湾
项目面积:450㎡
项目风格:新中式
项目性质:全屋整装
项目状态:正在施工
本案是一个四口之家,业主夫妻两热情好客,人缘特别好,常邀请朋友来家里做客,女主人兴趣十分广泛,爱手工,喜烹饪。业主有一儿一女,女儿娇俏,儿子活泼,相处之间洋溢着幸福,深深地让我们触动~~
关于风格,因为小区整体风格定位就是中式园林式,配套园林景观做的很到位,所以业主想要内外呼应,享受远离城市喧嚣的闲适逍遥。根据业主的需求,乐大姐团队设计师前期和业主前期有考虑过红木家具,但红木虽庄重但难免缺失时尚感。故而后来选择了偏温馨时尚的新中式,这样家里的小朋友也喜欢。功能上,此套案例,地下室面积比较大,与业主热情好客性格特征相碰撞,激起丰富的宴客空间。

本案风格为新中式,因为房子尺寸足够,生活起居区域,以开敞式为主,通透大气,以咖色、米色、木色为基本色调,造型、摆件等上面采用了中式手法,显得整体空间赏心悦目,并充满意境。

人云“书房是脑,卧室是心,客厅似胸襟”,恰如其分的表现出中国传统文化在现代家居设计中的延续。
客厅的设计以方为主,方正的顶面/墙面设计与天然材料的互补,令人与自然和谐统一。地面采用米棕色大理石材质、电视背景墙采用爵士白大理石上墙,与客厅总体基调相照应,通透的地板映照出客厅里明亮的灯光,显得客厅整体有一种不失大气的奢华。

沙发背后的墙面由米色的墙布和棕色线条组成,将墙面分割成三部分,营造出空间的层次感。墙面挂着一幅极具特色的中式水墨画,扁长的画身视觉上丰富了墙面,韵味油然而生。定制家具以米色、咖色为主配以蓝绿色软装,造型素简,整体空间雅致沉稳、气度不俗。

一楼的餐厅主要用于家人日常用餐,与客厅之间不设置任何隔断,使整体空间更加开敞。餐厅设计不仅延续了含蓄、高雅的生活方式与礼制之道,提炼出经典元素加以简化和丰富。长条形餐桌更显简约与流畅,人性化布局搭配触感顶级的材质,营造安静、舒适的用餐空间。

墙面的圆形挂饰如一湾清泉中倒影的青山远黛,白云空流,相映成趣,层云掩映下的幽静之泉更惹人怜爱。

乐大姐团队设计师在楼梯的位置做了一道格栅隔断阻隔视线,极具禅意。实体的墙面与镂空木质格栅,虚实相生,实要空灵,虚可凝想,实而不塞,虚而不空。

午后的阳光,温暖着每一个角落。藕粉色、浅蓝色与白色组合展现成熟的少女感,令空间少了一份稚嫩多了些许内涵。

对真理的探索,对未知的好奇,是整个男孩房想表达的思想。男孩房背景墙选自于充满探险精神的航海图,让空间顿显求知和探索的乐趣,有利于帮助孩子建立快乐、自信和成功的人生观念。


主卧是本套户型的最大亮点之一,整个三楼都是主卧空间,主卧采用套房设计,将睡眠空间、卫生间、女主人衣帽间、男主人衣帽间融于一体,给予主人更强的居住舒适感和安全感。


卧室背景墙采用深棕色细木条竖向分割,稳重柔和的米色硬包、时尚稳重的家具以及暖色的灯光氛围,使空间兼具温馨舒适与典雅贵气。天花设计采用斜屋顶造型,用金属走边,大气而稳重;木质温润的触感、淡雅素净的配色及艺术品的点缀为主卧进行了全新的定位。

飘窗设置品茶区域,挖掘生活情趣的更多可能性,饮茶赏景,投射出从容、自然的氛围。


地下室作为用来待客的主要空间,挑空较高,乐大姐团队设计师采用大面积天然大理石和中式风格的墙纸线条铺就,舒缓了空间狭促之感,平添一份清雅质感。灯光皎皎,如从高处缓缓流淌下来的清泉,又像月光撒在山间,与大理石交相辉映,其境高山流水,曲高和寡。

人生若得一书房,有卷可读,有画可临,有物能赏,又涵养之,是谓心性得以安放。当然书房并非珍玩器具陈设罗列而成,心性的陶养在于自身的追求。书房可以是一本书,一个案头,笔墨纸砚,甚至它只是我们心中的方寸点滴,在此可与笔墨为亲,描绘属于你的精神面貌。


茶室这个在地下室中被单独规划出来的空间格外地雅致,实木制的茶台与木椅,采用柔和的流线型圆角设计,流露出文人雅士的高级品味,茶台背后的中式三连幅扇画,在灯光的照射下,古朴而又别具一格。

设计师特地在地下室划出一块区域做宴请餐厅。不同于一楼的家用餐厅,宴客餐厅设计契合中国团圆圆满一道,采用了圆形大理石桌和圆形吊顶,圆是美满,是一切幸福的时光。
一旁的酒窖可以储存美酒,并彰显主人的收藏品味和高雅风趣。颇具古韵的金属镂空隔断,与餐厅背景相互应,低调高贵。

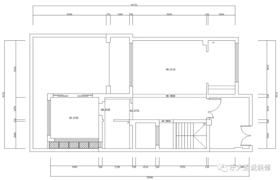
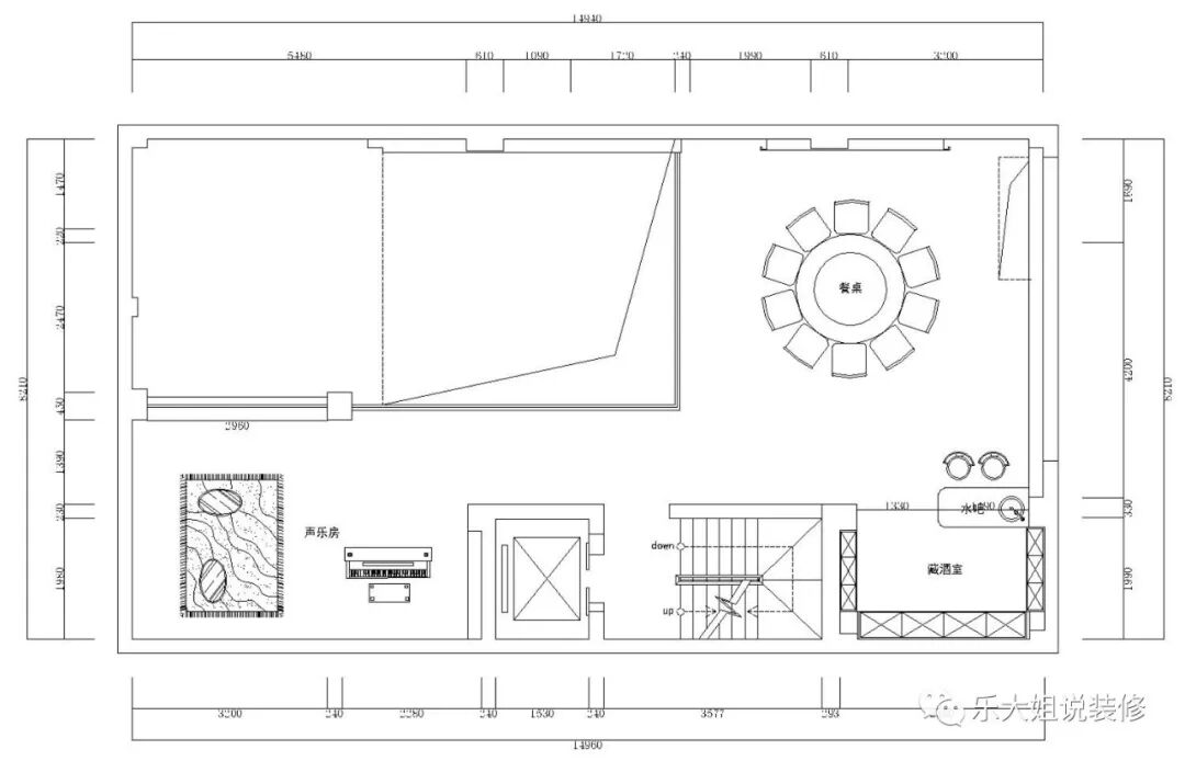
地下室原始户型图


地下室改造后户型图

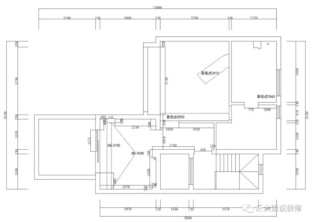
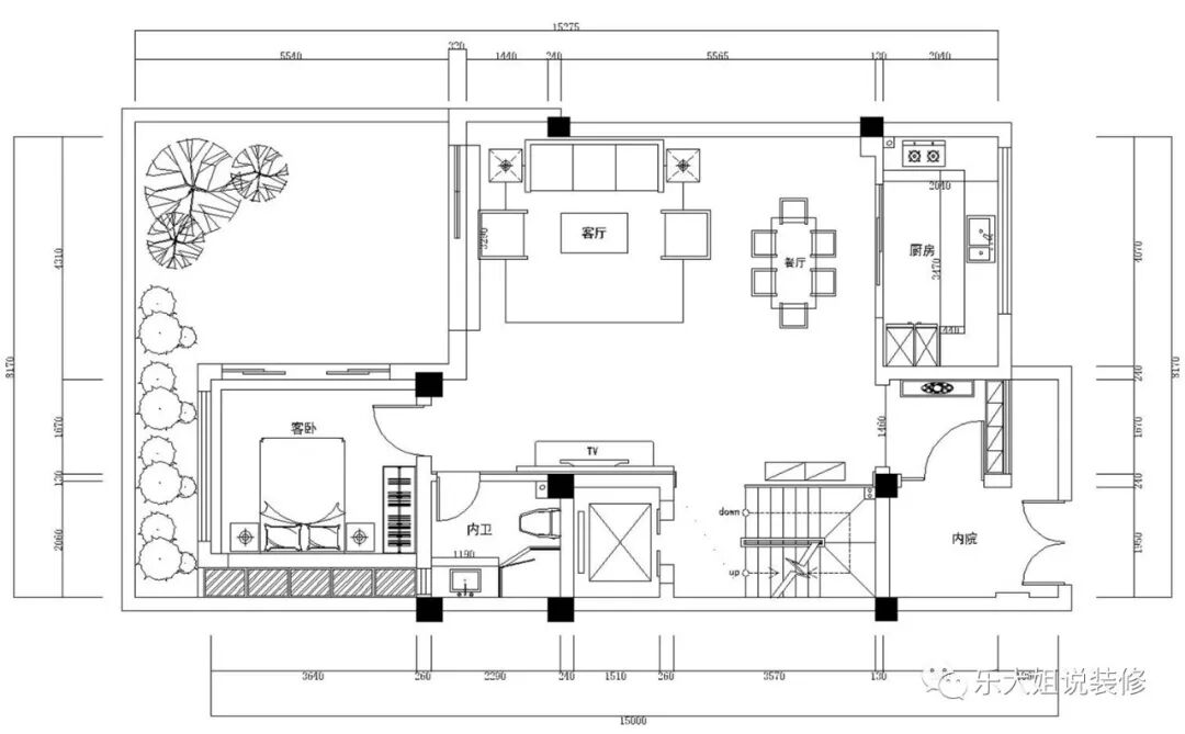
一楼原始户型图

一楼改造后户型图

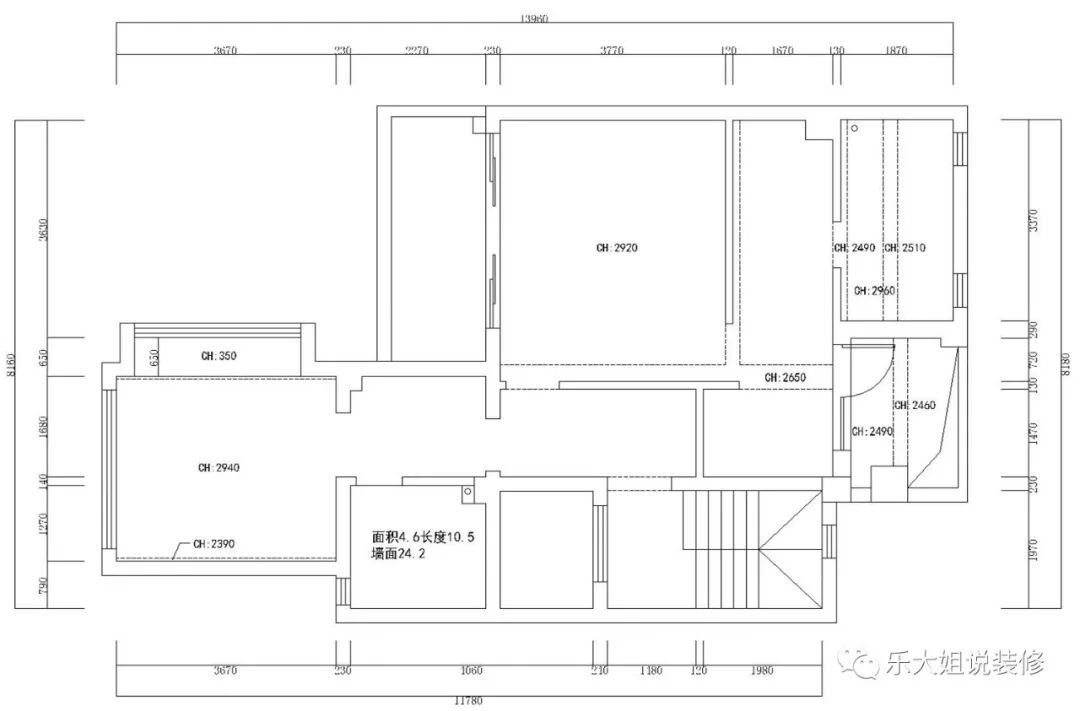
二楼原始户型图

二楼改造后户型图

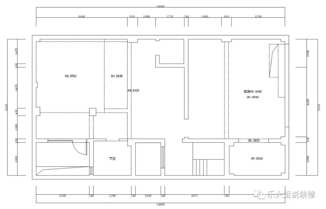
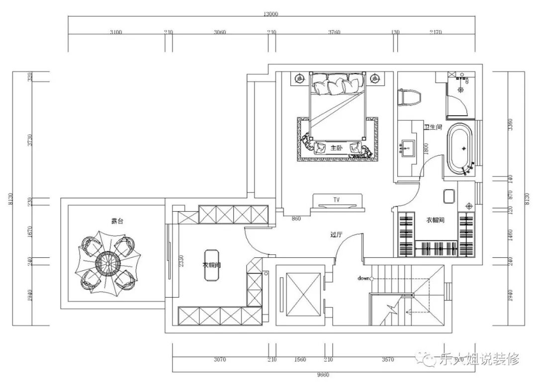
三楼原始户型图

三楼改造后户型图
✦ 本案地下室5.6米挑高,设置了半挑高空间,打造成家庭会所,有宴会厅、藏酒室、酒吧台、影音室、麻将室、茶室、音乐室、练舞区,招待朋友家庭聚会,是除了正常生活起居外,精神空间;
✦ 一楼为日常家庭活动空间,家人一起在家喝茶聊天,很浓的家庭氛围,两楼三楼为静区,休息空间,主要三个套房,分别满足家庭成员的独立需求。

https://vr.justeasy.cn/view/5504665.html

如果您觉得乐大姐说的内容很有价值
欢迎分享转发至您的朋友圈
让更多的朋友都能轻松装修,自在生活!
当然,您也可以添加乐大姐微信号13382100888
或扫描下方的二维码
说出您的装修难题、让乐大姐为您答疑解惑
不管您是装修完工了
还是即将装修的
或者正在装修的
乐大姐一定知无不言,言无不尽




在看是一种鼓励|分享是最好支持
点击右下角 写留言 发表你的心声
我们期待与您的交流
长按二维码添加乐大姐微信号
装修不烦 大姐来谈