发布时间:2020-04-30

乐大姐
FM104.8《家在苏州--乐大姐说装修》栏目特邀嘉宾,
赫博别墅设计创始人之一;
多次受邀成为院校家居的授课讲师;
98年至今,
为万千家庭打造幸福家居同时,也相互成为了好朋友。
任何与装修有关的问题,欢迎您添加乐大姐微信:13382102277,
乐大姐会为您做一对一解答。


海螺把梦藏进大海,
便有了浩瀚无边。
灯塔把梦藏进深夜,
便有了熠熠光亮。
我们把梦安进家里,
便有了阖家欢乐。
——by 乐大姐团队原创
项目地点:吴江滨河名墅
项目面积:220㎡
项目风格:现代简约
项目性质:全屋整装
项目状态:设计完成
这套房子是业主给儿子结婚用的婚房,220㎡的大平层,业主儿子是做建筑审计工作的,目前在外地,准备明后年回吴江工作,对房子的设计感和品质要求比较高。业主本人对品质和细节也很讲究,自身是做餐饮的,每天都会起早贪黑去挑选新鲜美味的食材,所以尽管很忙没时间,但却十分关注房子的装修品质。
业主儿子喜欢开阔明亮、轻松自由的空间,基于这一需求,乐大姐团队设计师将空间打通,能做开放式的就做开放式的设计,用中性色调、清新的搭配,还有令人倍感亲切的原木,打造出一间清新自然又明亮的住宅。
业主原没准备今年装修,本打算2020年初开工,但他们知道房价一直在涨,装修市场也是同理,提前把装修定下来不仅可以剩下一笔费用还有足够的时间把设计做好。
客 厅/Living Room

乐大姐团队设计师为业主逐一规划出生活空间,强调大尺度的空间感,将客厅、餐厅、厨房、书房等相整合,使各区域功能叠加使用,打造游走不受拘泥的互动生活动线。整个户型分为南北两部分,南部日照时间长,为静态区域,主要用于休息;北部为动态区域,主要是家人交流活动的部分。
整套设计置身其间,呼吸轻快的流动空气,然后在清晨、午后与夜晚和不同的光影与空间静谧相处,呈现最自在的生活态度,同时满足足够多的收纳需求。

现代化的客厅,大大的落地窗,在客厅无论是待客还是休闲,都能充分的吸收阳光和新鲜空气。
由于业主平时喜欢在家待客,对于客厅布局打破了以电视为中心的传统设计,采用围合式的设计,用沙发围着茶几布局,座位无主次之分,营造了一个轻松愉快的交谈环境。

高级灰搭配原木色呈现内敛、精致、耐人寻味的美感,通过橙色座椅的点缀,让空间色彩丰盈,结合以简驭繁的设计表达了人文的理想品质生活。不同材质的相互交融,让每个不经意的瞬间也变得如此暖心。

在不损电视背景效果和档次的基础上采用开放式书房,电视背景两边有对称通道进入书房,采用整体不锈钢门套,把电视背景纳入整体,既保证了整体感又保证了空间的通透性。
厨房+餐厅/Kitchen+Dining Room


由于业主喜欢开放式厨房,根据户型和业主的喜好,设计师除了采用了隐藏式厨房移门,还结合半岛台增加了轻食区,让业主能享受下厨的乐趣同时也能与家人互动。这种形式也是当下比较流行的一种家居设计形式,彰显时尚潮流。


与厨房相隔的是餐厅,用隐藏式移门进行隔断,把厨房烟火隔开,却不阻挡阖家团圆的温馨;厨房里热火朝天,圆桌旁家人团坐,互相嬉笑闲谈,吃着温热饭菜,眼里有光,心里有爱,是为家。
主 卧/Master Room


浅灰色地板、灰色床组、条纹硬包、木格子背景、几何吊灯、不规则几何形窗户收纳柜、小小临时办公区,在沉稳的色调和用材之下,浅色系的床品和浅绿色花艺在室内点缀,烘托着居家的暖意,让业主在令人心神安定的氛围中,感受到家的方向,也享受着家的温馨。这是家带给我们最迷人的地方。


主卧的窗户虽然是由一整面不规则几何形状的墙组成,但视野却极其地开阔,考虑到业主对收纳空间的需求,乐大姐团队设计师充分利用临窗的几何空间,沿墙设计了一排收纳柜。
午后的阳光肆意挥洒,让生活多了一份惬意,浅色调的搭配让屋主人的“温柔”无处不在,每一个搭配,都是对艺术的品味。

主卧除了临窗的收纳柜外,在主卫的边上又增设了一个小开放式衣帽间,方便了日常生活的使用;主卧更加注重空间质感,在细节处融入艺术的精致感。
次 卧/Second Room

一个愉悦的空间,一种舒适的生活,一方独享的天地,都在这里寻求最合适的表达。色块间的相互碰撞,让整个空间简约明快且品味不凡。自然的色彩与环境相互映衬,好似一曲交响乐,跌宕起伏。
平面方案/Flat Plan

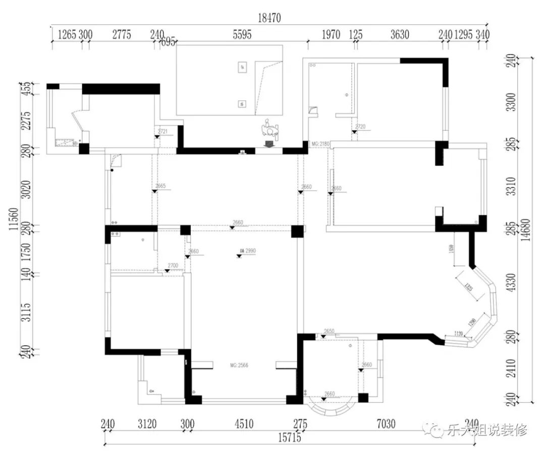
原始户型图

改造后户型图
✦ 本案是五房两厅的220㎡平层,但业主日常居住仅需三房,考虑到未来家庭发展规划,对储藏空间的需求比较大,故将北面靠近厨房的小房间(如做卧室舒适度差)改造为储藏间;
✦ 客户喜欢开放式厨房,但因地方政策关于燃气安全问题规定无法实现,所以设计师和业主沟通后采用隐藏式厨房移门做法,这样厨房移门在不用时可以收藏到轨道盒中,从而实现了业主期待的开放式厨房效果,厨房和餐厅之间视野十分开阔。另外,厨房还外加早餐台;
✦ 考虑到风水问题,乐大姐团队设计师在套内开放式衣帽间旁加了一排装饰柜来避开主卧门正对主卫门的情况。
全景图/Panorama

https://vr.justeasy.cn/view/5673315.html?from=timeline

如果您觉得乐大姐说的内容很有价值
欢迎分享转发至您的朋友圈
让更多的朋友都能轻松装修,自在生活!
当然,您也可以添加乐大姐微信号13382100888
或扫描下方的二维码
说出您的装修难题、让乐大姐为您答疑解惑
不管您是装修完工了
还是即将装修的
或者正在装修的
乐大姐一定知无不言,言无不尽




在看是一种鼓励|分享是最好支持
点击右下角 写留言 发表你的心声
我们期待与您的交流
长按二维码添加乐大姐微信号
装修不烦 大姐来谈