发布时间:2020-04-30

乐大姐
FM104.8《家在苏州--乐大姐说装修》栏目特邀嘉宾,
赫博别墅设计创始人之一;
多次受邀成为院校家居的授课讲师;
98年至今,
为万千家庭打造幸福家居同时,也相互成为了好朋友。
任何与装修有关的问题,欢迎您添加乐大姐微信:13382102277,
乐大姐会为您做一对一解答。


双重梦,
一重凝住时光,
如梦;
一重流光溢彩,
惊鸿。
——by 乐大姐团队原创
项目地点:中航樾园
项目面积:242㎡
项目风格:后现代
项目性质:全屋整装
项目状态:正在施工
设计,可以给生活带来更多的可能性。它源于生活,而生活也因设计而改变。
每个空间都承载着许多,而亲情和爱情便是这之中的主旋律。房子是改善型住房,业主家里面三代同堂住(6人居住),父母,两个小孩(一个女儿,一个儿子都还很小)和他们,需要4个独立的房间;因孩子多,业主本人又爱阅读,需要独立的学习工作空间及供孩子玩耍的地方;较多的储物空间。

本案业主认为家不仅是满足睡眠的空间,
更是彰显个人品质的重要场所,
所以乐大姐团队设计师尽可能地
让整个别墅做到每个角落都拥有设计的美感而又不过于繁杂,
包括很容易被忽略的楼梯过道,
利用灯饰与装饰画等让它变得优雅独特,
通过非传统的混合、叠加等手法,
营造出空间的多元氛围。

客厅以经典的黑白灰色系为主色调,
爵士白大理石墙面贯穿整个电视背景墙,
米白色的沙发/电视柜、沙发柜
与地面走边的配色遥相呼应,
一些亮色的软式进行点缀,
使得整个空间更有活跃性,
营造出柔和唯美的优雅感。

客餐厅原本是一个公共区域,
设计师通过
地面平花、立面隔断、柜体、背景墙的大理石、
不锈钢结合以及顶面设计造型
进行了区域划分,
使各自空间的动态不受影响。

开放式的布局让优雅迷人的气息延伸至餐厅,
爵士白的地面上,
大理石台面的餐桌搭配橙黄色调的餐椅,
质感的色彩更是凸显了独有的梦幻感,
从餐边柜摆件到吊顶,
多元材质的使用
大大地提升了空间的华丽与格调。

为了避免空间的乏味感,
确保楼梯过道的采光性,
采用了镂空书柜隔断、玻璃栏杆楼梯、
金属流苏形吊灯、装饰画等,
不同属性的材质丰富了视觉效果,
让楼梯区域犹如一处艺术品般的迷人、耐看。

粉色,
甜美、温柔,就甜甜的棉花糖一样,
包裹着那一颗粉色公主梦。
女儿房整体以粉色为基调,
搭配暖光和白色。
美美的床品、梦幻的吊灯,满满的少女心,
给人一种很温暖舒服的感觉,
作为小公主的闺房再合适不过。

小男孩的儿童房选用了冷色调,
但是温润的木地板、蓝色童趣的地毯、
橙色的窗帘、黄铜床头吊灯
又给整个空间带来了一种温暖的质感,
恰如其分地平衡了空间的冷暖。

根据业主的需求和喜好,
乐大姐团队设计师
特意二楼设计了一个开放式的书房
作为孩子和大人的学习工作玩耍的空间,
白色的书柜、丰富的藏书、简约利落的书桌、
暖色调的墙面、浅黄色的沙发、浅灰色的实木地板,
营造出一个舒适、自然安静的工作和阅读环境。

主卧延续了空间整体的格调,
背景采用了木饰面和硬包两种材质相结合,
使整个色系呼应现代的感觉。
灰咖色系床品可以减少元素过多带来的杂乱与压抑感,
与极具质感的背景装饰、黄铜床头灯、主卧吊灯
成为空间亮点,
小面积的点缀却轻松提升了空间的活力感。

地下室改造后户型图

地下室改造后户型图

一楼原始户型图

一楼改造后户型图

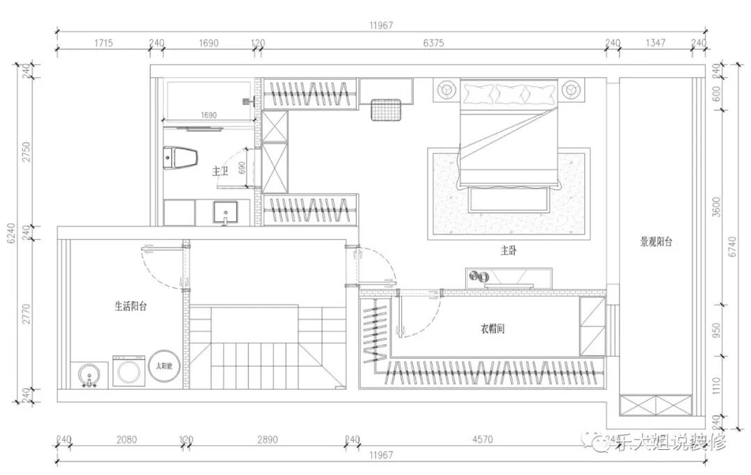
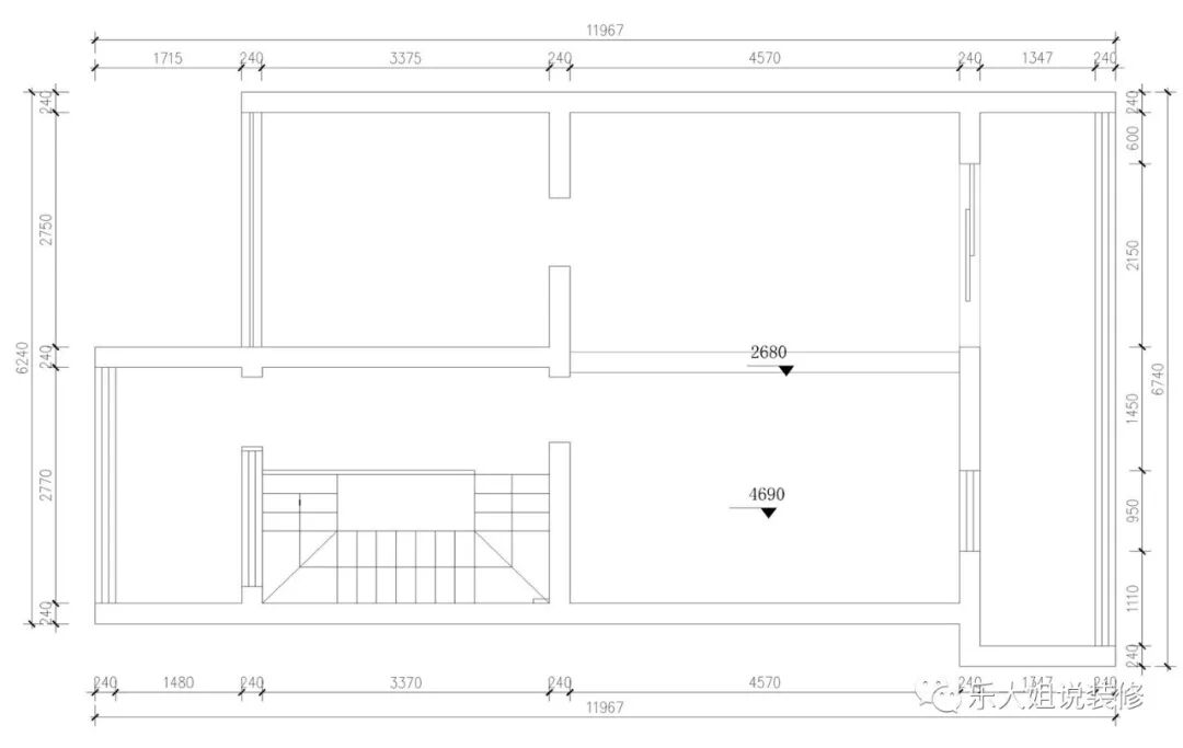
二楼原始户型图

二楼改造后户型图

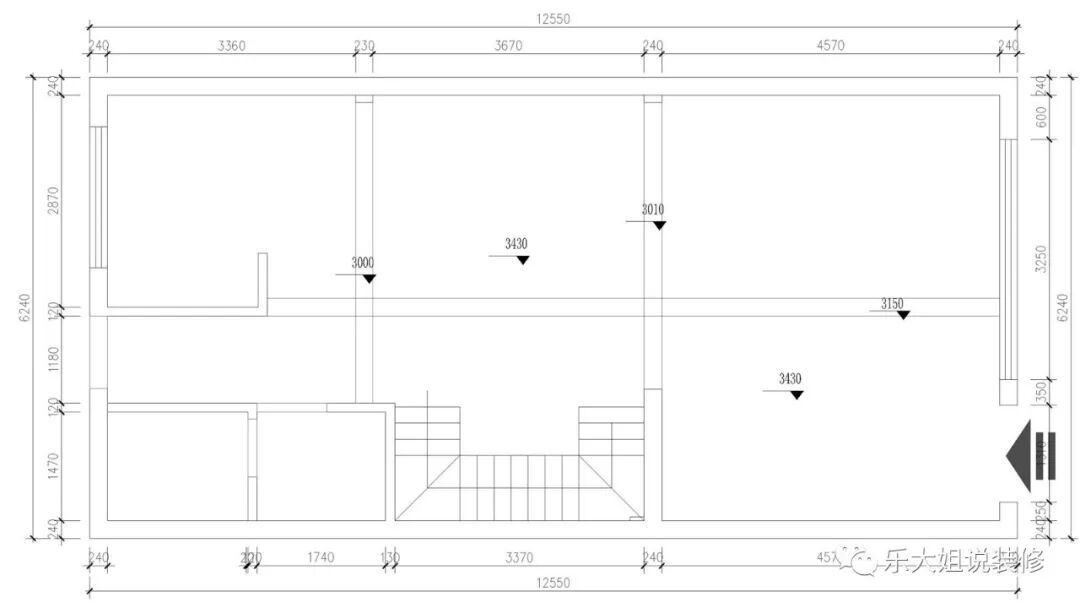
三楼原始户型图

三楼改造后户型图
✦ 乐大姐团队设计师考虑业主家中有两个小孩,把二楼原本一个卧室改造为2个小孩房,并根据每个小孩需求喜好选择色系、规划功能;
✦ 考虑未来10-20年的家庭发展规划,设计师在二楼设计了一个开放式的书房(现在孩子还小基本上给业主夫妻两办公用);除了满足孩子们学习需求,另外还在书柜下面设计了一个公共区域——地台,以供孩子们看书、休闲、玩耍…
✦ 主卧空间相对而言比较大(南面还有一个小阳台),阳光照射性很充足,所以在设计时候考虑把小阳台做为了一个休闲的地台抬高区域。

https://vr.justeasy.cn/view/5515364.html?from=timeline

如果您觉得乐大姐说的内容很有价值
欢迎分享转发至您的朋友圈
让更多的朋友都能轻松装修,自在生活!
当然,您也可以添加乐大姐微信号13382100888
或扫描下方的二维码
说出您的装修难题、让乐大姐为您答疑解惑
不管您是装修完工了
还是即将装修的
或者正在装修的
乐大姐一定知无不言,言无不尽




在看是一种鼓励|分享是最好支持
点击右下角 写留言 发表你的心声
我们期待与您的交流
长按二维码添加乐大姐微信号
装修不烦 大姐来谈