发布时间:2020-04-30

乐大姐
FM104.8《家在苏州--乐大姐说装修》栏目特邀嘉宾,
赫博别墅设计创始人之一;
多次受邀成为院校家居的授课讲师;
98年至今,
为万千家庭打造幸福家居同时,也相互成为了好朋友。
任何与装修有关的问题,欢迎您添加乐大姐微信:13382100888,
乐大姐会为您做一对一解答。


日子就像打开一颗咸鸭蛋,
外层蛋白只是铺垫,
内里的淡黄才是爆点。
设计如是,
一层层的勾勒
为的是最后的完美呈现。
——by 乐大姐团队原创
项目地点:世贸尚运苑
项目面积:136㎡
项目风格:现代简约
项目性质:全屋整装
项目状态:正在施工
每个人都有自己心中向往的童话,却偏偏被忙碌的生活沾染了世俗的气息,停下来疾走的脚步,给简单与纯粹留一些时间,必能如夏花一般,让单调的日子激起一丝涟漪,给人生多一些期许。
业主是一个对生活有独到见解的人。这套房子装修是为了改善自己和家人的居住环境,提升生活品质,所以对设计、对材料、对施工都有很高的要求与期许,效果上想要简单大气,不繁杂却要有韵味,在满足居住生活使用的条件下,尽可能多点情调。
客厅/Living Room

在乐大姐团队设计师看来,家的功能正逐渐弱化;
家应该是家人休息、亲朋好友聚会的地方;
过多的装饰或过少的物品都不是我们需要的家,
心里的归属感才是。
在本案中,设计师从“回归生活”出发,
遵循现代简约主义,
带着自我意识中对家居文化的理解和态度,
重新解构城市人居的陈设艺术与生活百态。


客厅以原木色和灰色系为主背景色,
借用金属色、绿色、黑色等的软装来点缀,
加强了空间的层次感的同时,
保证整体空间色彩的统一。
点点灯光像是星星一样,
闪耀在客厅上空,
使整个空间更加明亮清新。

沙发抱枕填补了沙发空旷的既视感,
可以起到很好的装饰美,
最重要的是它带来的舒适感。
下班回家,
躺在沙发里,
就像倒入一个温柔的怀抱……
餐厅/Dining Room


客餐厅采用了完全开放式的设计,
不仅使得视觉上得到延伸,
两个空间的光源也能通融交汇。
灰色餐椅和爵士白餐桌是默契的搭档,
两者置于空间中,
诠释出餐厅的质感。


黄色的花艺和挂画点缀其中,
给餐厅平添一份明亮时尚的气质。
吊灯增加了用餐的氛围,
餐椅和餐边柜的色调统一。
吃饭也是一件很高雅的事情。
主卧/Master Room


安静的灰调与原木色的木地板,
造就温润的视觉效果,
营造出安逸舒适的氛围。
深蓝色的窗帘,无可挑剔。
白色透明纱帘,
给卧室带来了温暖的自然光。


卧室主要是以安静的氛围为主,
换上家居服,
躺在舒适柔软的床上,
任凭屋外春夏秋冬,
只管沉沉睡去~
书房/Study Room

只要一本书,
就会让你远离尘世的喧嚣。
简单的线条勾勒出书房,
透露静谧的气息,
搭配精致简约风的桌椅,利落舒适。
书柜靠墙设计,储物空间大。
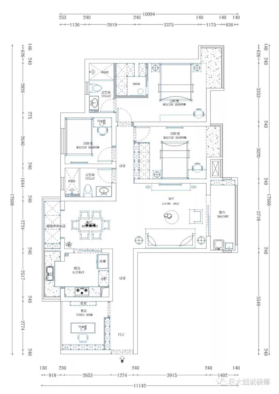
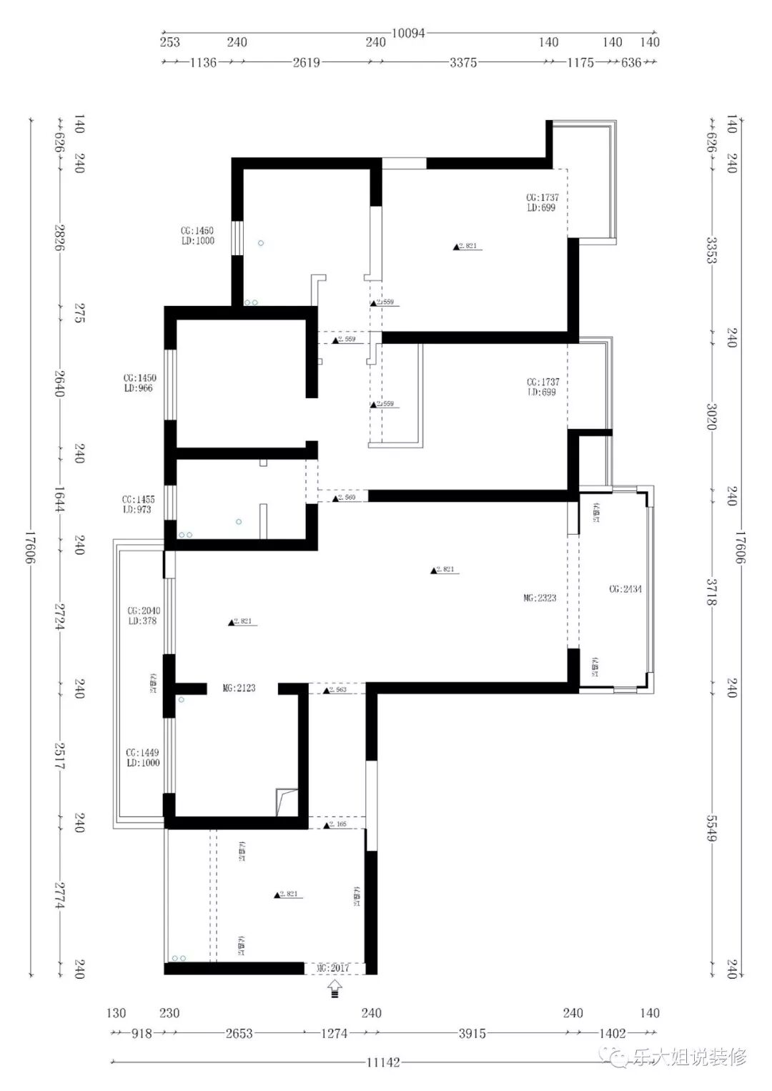
平面方案/Flat Plan

原始户型图

改造后户型图
✦ 本案户型过道狭长,而且有非常多的承重墙体,鉴于此限制,入户花园改造为半开放式的书房,书桌对面为一排花架,同时增加过道装饰柜,减少过道狭长的视觉感;
✦ 因原始户型中餐厅区域的北阳台不能完全拆除,乐大姐团队设计师与业主充分沟通之后,将此处利用起来做一个集休闲、喝茶、娱乐于一体的榻榻米飘窗休闲区;
✦ 原始户型中主卧内卫空间比较大,考虑到实用性,将其改造为主卧+衣帽间+内卫生间套房;
✦ 考虑到家庭人员结构以及舒适性,将所有的房间全部设立在朝南的区域,采光通风都特别好,朝北的区域相对安静则设置成书房以及客房。
全景图/Panorama

https://vr.justeasy.cn/view/5500089.html?from=timeline

如果您觉得乐大姐说的内容很有价值
欢迎分享转发至您的朋友圈
让更多的朋友都能轻松装修,自在生活!
当然,您也可以添加乐大姐微信号13382100888
或扫描下方的二维码
说出您的装修难题、让乐大姐为您答疑解惑
不管您是装修完工了
还是即将装修的
或者正在装修的
乐大姐一定知无不言,言无不尽




在看是一种鼓励|分享是最好支持
点击右下角 写留言 发表你的心声
我们期待与您的交流
长按二维码添加乐大姐微信号
装修不烦 大姐来谈