发布时间:2020-04-30

乐大姐
FM104.8《家在苏州--乐大姐说装修》栏目特邀嘉宾,
赫博别墅设计创始人之一;
多次受邀成为院校家居的授课讲师;
98年至今,
为万千家庭打造幸福家居同时,也相互成为了好朋友。
任何与装修有关的问题,欢迎您添加乐大姐微信:13382100888,
乐大姐会为您做一对一解答。


自古人生何其乐,
偷得浮生半日闲,
湖畔几间屋,
窗下一只猫,
一杯清茶一缕烟,
心情半佛半神仙。
——by 乐大姐团队原创
项目地点:水岸秀墅
项目面积:260㎡+138㎡地下室
项目风格:港派新中式
项目性质:全屋整装
项目状态:正在施工
人生的意义无非自由、舒适,抛开俗世的困扰,打造一个心灵归属之地。把理想糅合进设计里,一本书,一壶茶,都是不可或缺的描绘元素。与时光对话,留住这美好。
业主既喜欢中国传统文化的厚重,也喜欢现代装修风格的轻快明亮,在二者之间久久徘徊,所以乐大姐团队设计师将二者做了一个结合,打造了明亮温馨的港派新中式,设计后的效果却深得业主的心。

玄关,
隐而秘,若众妙之门。
灰色大理石搭配原木色护墙板、金属元素打造出空间高级感,
陈列其中的各种精致艺术品
则为空间带来了更多的灵动和艺术气息。
除此之外,乐大姐团队设计师
通过吊顶、地面大理石和电视背景隔断的变化,
将玄关分隔为三部分,
缩短了玄关的视觉距离,
同时循序渐进地给空间带来了不同层次的美感。

本案设计为港派新中式风格。
设计师在设计中打破了纯中式设计的观念,
将现代港派元素融入进来,
使整个空间大气、简约、沉稳。
考虑到层高的因素,
设计师一改往常新中式繁杂的吊顶手法,
采用大平顶,
使得整体空间看起来通透不压抑。

室内整体色调偏淡,
墙面以护墙板、硬包、壁画等高档材质
结合中国传承了几千年的文化符号,
没有过多累赘复杂的造型,
既表现了中式的本真,
又体现了主人含蓄内敛的气质。
采用了大量的原木色,整体感强烈。
又糅合了浅色的地砖,
增加了现代感。

电视背景采用
简单利落的金属栏隔断,
在灯光的照射下,
凸显了自身的线条美。


沙发背景墙的色彩
游走在原木色与米色之间,
带来“疏影横斜水清浅,暗香浮动月黄昏”的美。
沙发造型与地毯颜色的设计打破以往的搭配,
将新中式的底色翻开,
突出了空间稳重而活跃,尊贵而典雅。


中国人的烟火气息非餐厨不可,
设计师将不同的材质之间相互串联,
依照空间属性,多次交叠,
汇集生活的痕迹。
仿佛人生中各个阶段的感觉渗透,
尘世间最长情的告白,餐厅见证了太多。

圆形餐桌和方形座椅,
是中国人最古老的智慧,
象征着团结、和谐、热闹的民族品格。
水晶灯的搭配与客厅主灯遥相呼应,
照明、颜值全都不误。
餐边柜与餐桌融为一体,
视觉上的张力立即凸显了出来。

业主对茶文化颇有研究,
喜欢茶的谦静与平和,
即使在烦嚣压抑的都市中
也可尽享禅意的清静,
寻得一方净土,洗涤心灵。

茶室与餐厅两个空间
既相通共处于一个开间当中,
又用顶面设计进行相互的区隔,
开合之间,
把时空隔绝成两种形态。
一边是柴米油盐的俗世妖娆,
一边是宁静如诗的惬意空间,
横穿古今,
这大概就是新中式的魅力所在。

乐大姐团队设计师
用设计的维度去测量、延伸,
以全新的视觉展现历史与现代文明的关系,
把两者的肌理融合在空间里,
缓解都市人群内心的焦虑与恍惚,
使生活归于原始又跳出传统原始的厚重。


卧室空间
仅用简单的石材、木条、金属、皮质
就勾勒出了一幅优雅的新中式画卷,
行云流水,一气呵成。
同时考虑到男女主人衣物比较多,
打破常规,分别设置了男、女衣帽间以方便使用,
将优雅深入到每一个细节。


水晶吊灯轻柔氤氲的灯光挥洒下来,
与含蓄的台灯相互映衬,
使得空间宁静致远。

不同于客餐厅、主卧等空间的新中式,
女儿房采用的是现代简约风格,
粉色、黄色、淡蓝色等充满童真的色彩充斥整个空间,
让整体空间带有淡淡的梦幻感。

女儿房采用套房设计
把休憩、学习、洗漱和衣帽间的功能放在同一空间,
不仅使日常生活更加便利,
同时也能平衡生活重心,提升生活品质。

学习区设计在窗户旁边,
保证了充足的光线和开阔的视线,
当宝贝学习看书累了,
抬头就能看到窗外的景色,放松心情。

每一栋别墅都拥有与生俱来的贵气,
地下室作为别墅空间中很重要的一部分,
不仅可以作为灵动的储物空间,
更可以作为安放主人志趣的一方天地。
地下室健身房
彰显了主人独到的生活态度。

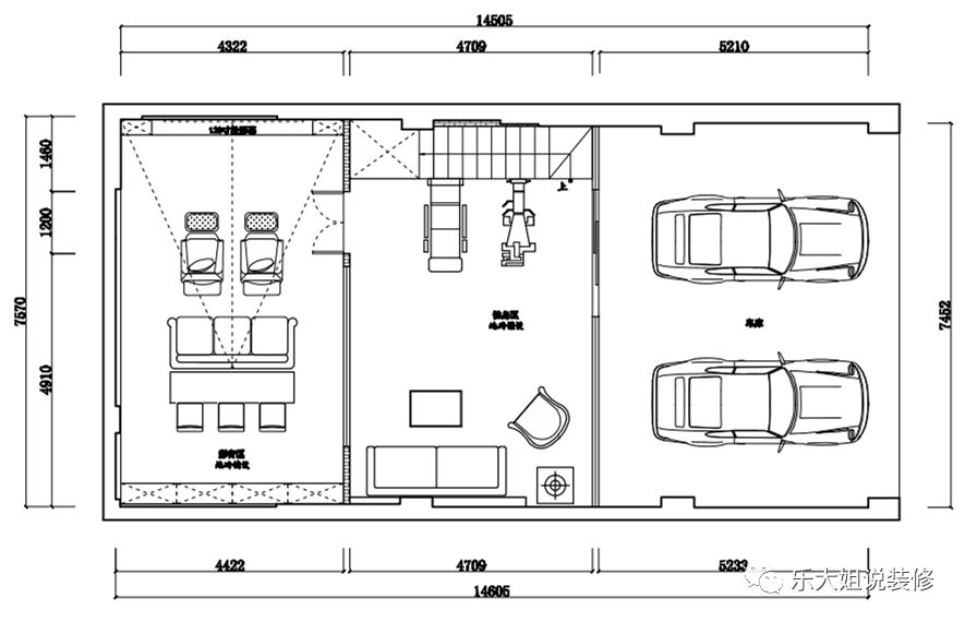
地下一楼原始户型图

地下一楼改造后户型图

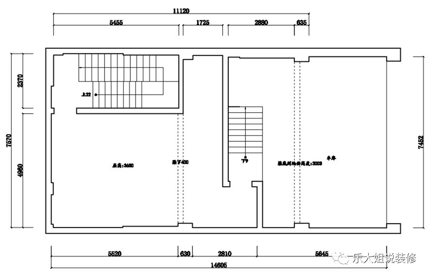
地下二楼原始户型图

地下二楼改造后户型图

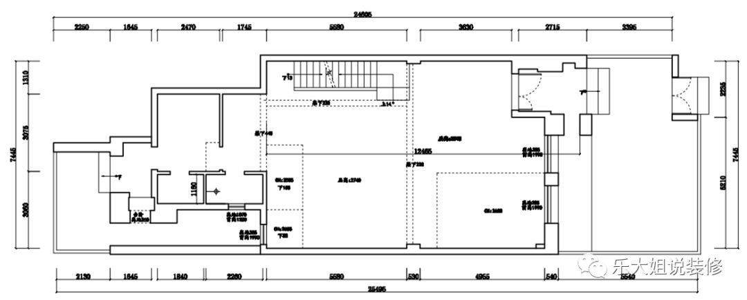
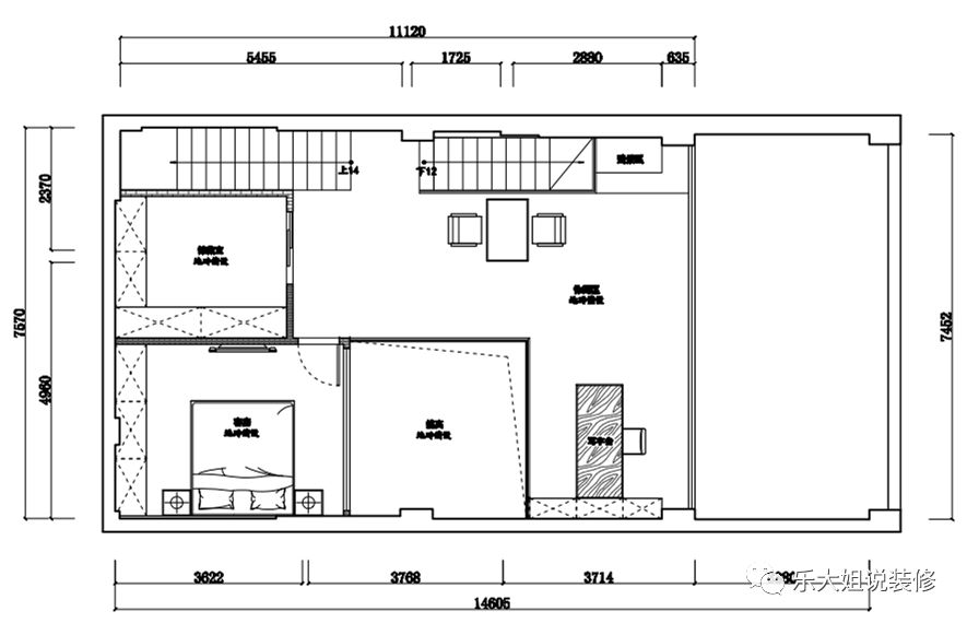
一楼原始户型图

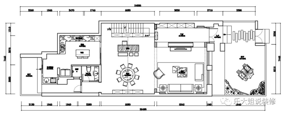
一楼改造后户型图

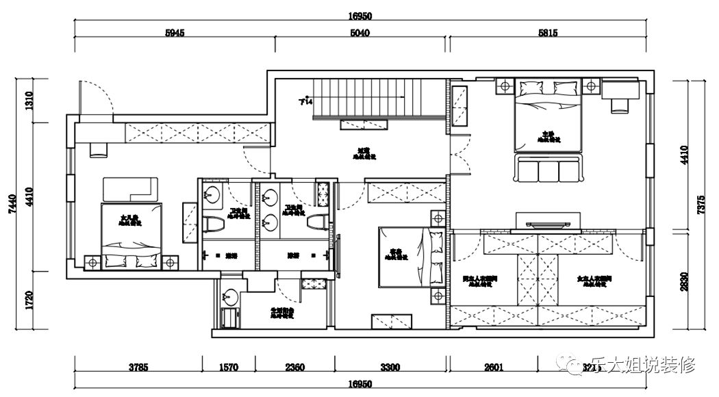
二楼原始户型图

二楼改造后户型图
✦ 本案户型功能区动静分离设计非常合理,一楼就是客餐厅厨房卫生间,二楼是休息区,地下室做休闲及健身区;
✦ 原始户型中一楼进门处跟客厅是连通的,设计师通过客厅电视背景隔断将空间一分为二,做出一个门厅的效果,同时电视背景处理成通透的双面效果,增加了整体空间的层次感;
✦ 原始户型中进厨房需经过卫生间的门口,设计师通过结构上的更改,使得两个空间完全独立开。

https://vr.justeasy.cn/view/5386595.html?from=timeline

如果您觉得乐大姐说的内容很有价值
欢迎分享转发至您的朋友圈
让更多的朋友都能轻松装修,自在生活!
当然,您也可以添加乐大姐微信号13382100888
或扫描下方的二维码
说出您的装修难题、让乐大姐为您答疑解惑
不管您是装修完工了
还是即将装修的
或者正在装修的
乐大姐一定知无不言,言无不尽




在看是一种鼓励|分享是最好支持
点击右下角 写留言 发表你的心声
我们期待与您的交流
长按二维码添加乐大姐微信号
装修不烦 大姐来谈