发布时间:2020-04-30

乐大姐
FM104.8《家在苏州--乐大姐说装修》栏目特邀嘉宾,
赫博别墅设计创始人之一;
多次受邀成为院校家居的授课讲师;
98年至今,
为万千家庭打造幸福家居同时,也相互成为了好朋友。
任何与装修有关的问题,欢迎您添加乐大姐微信:13382100888,
乐大姐会为您做一对一解答。
极简

与其说极简是一种风格,
毋宁说它是一种关注本质需求的生活态度,
并非是想尽办法的去除冗余,
而是在保证核心需求的同时,
削减不必要的成分;
Less is more,
简于形,奢于心。
——by 乐大姐团队原创
项目地点:太湖水泊堂前
项目面积:192㎡
项目风格:现代极简
项目性质:全屋整装
项目状态:准备开工
形式永远在功能之后,一个家的设计,无论多美,如果不舒服,都不算成功。
这是一个书香世家,男主人是老师,对家很有想法,喜欢偏日式的极简风,喜欢通透的空间,不要太繁杂的装饰堆砌,更不喜欢固定的空间界限。
另外,业主虽然只需要3个房间,但是需要大量储藏空间,需要景观设计和一些生活小趣,希望达到的装修效果是简约而不简单。
客厅/Living Room


每个人的生活习惯不一样,造就的家也会不一样。
郭先森一家不喜欢过于繁琐的装饰。
本案中乐大姐团队设计师
以功能为导向,
室内空间都采用简洁的造型、黑白灰的色调、
墙布/木饰面/石材等常见的材料
在满足基本需求的基础上,
解决空间、比例、光、材质的基本问题,
呈现简约、自然的现代风格。

客厅背景丢掉繁琐惹眼的背景墙装饰,
采用简洁的爵士白大理石上墙,
和原木色护墙板和收纳柜一起,
演绎空间的气质,
呈现宁静的氛围,
形成了一个独特而又鲜明的视觉感。


四人位黑皮沙发,轻便的茶几,
散着暖色光的壁灯,
简简单单,
却看起来那么舒适,
诠释了家的涵义。


乐大姐团队设计师考虑到餐厅、厨房空间比较狭小,
故而采用开放式设计,
使得客厅、转角端景、餐厅、厨房
四大空间同处于一个水平线上,
扩大整体视觉效果,
缓解压抑感和空间狭长的感觉。

这个楼梯转角的端景,
能满足不同需求使用;
看书、午觉、喝茶、赏花……
坐拥宁静,远离喧嚣,
浓淡相宜,令人回味无穷。
餐厅/Dining Room


业主喜欢西餐,平时不用明火,
故而采用开放式厨房和中央岛台的设计。
开放式的格局使得厨房和餐厅之间互动有序
在厨房忙碌的时候,
低头是为家人精心准备的菜肴,
而转身,
就能看见自己爱的人~~


业主独特品位
让每个家具与单品都是时尚精品,
低调之中
妆点着高贵的气息。
主卧/Master Room


主卧床头背景采用高级灰,
床品延续了整体色调,
暖色吊灯与屋子里冷色碰撞,
充满静谧的气息。
落地窗夹杂着些许阳光,
爬满原木地板,
悠闲轻适……

卧室内增设独立衣帽间,
为了引入采光和装饰的美感,
衣帽间的门采用铝框玻璃材质,
开放式的衣柜,
地面原木色的实木地板,
角度适宜的射灯,
流露出简约的美感。
女儿房/Daughter's room


与主卧不同,
女儿房更像是一个粉色带点青涩的梦,
有年少的理性又有少女的情怀。
楼梯踏步的设计增加了整体空间的层次感,
床品、挂画点亮空间色彩,
外置衣帽间丰富的储藏空间保证了室内的整洁性。
整个房间充满吾家有女初长成的单纯与美好,
这是公主梦的未完待续,
是郭爸妈的纵容与庇护。
儿童房/Children's Room


另外,乐大姐团队设计师
从整个家庭未来二十年的发展规划角度出发
设置了儿童房。
儿童房整体空间风格简单明了,
但功能非常齐全,
不仅有睡眠空间,还有收纳柜、书桌,
卧室外还设有衣帽间,
同时满足了家里第三代的睡眠、学习、休闲等需求。
地下室/Basement


最是书香能致远,
腹有诗书气自华。
在地下室改造的书房中,
一方环境、一片生活,一种人生,
沉稳的木、精致的灰,
一方安静、一种品位。
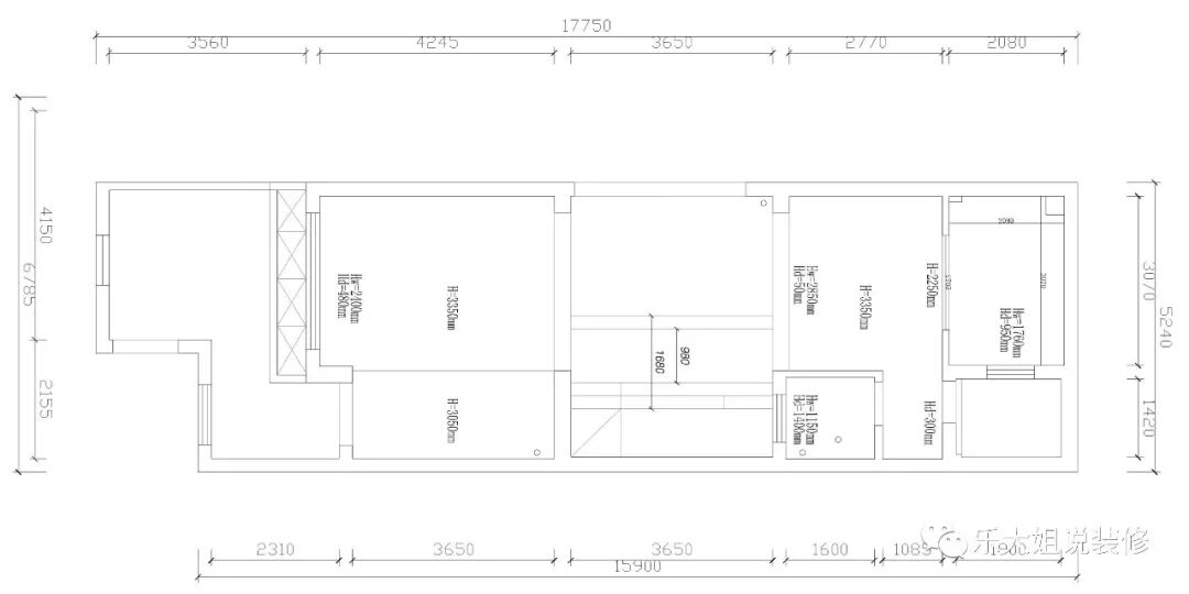
平面方案/Flat Plan


地下室原始户型图

地下室改造后户型图

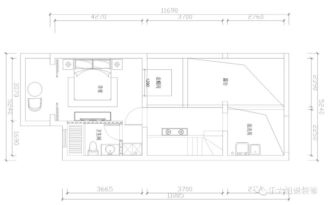
一楼原始户型图

一楼改造后户型图

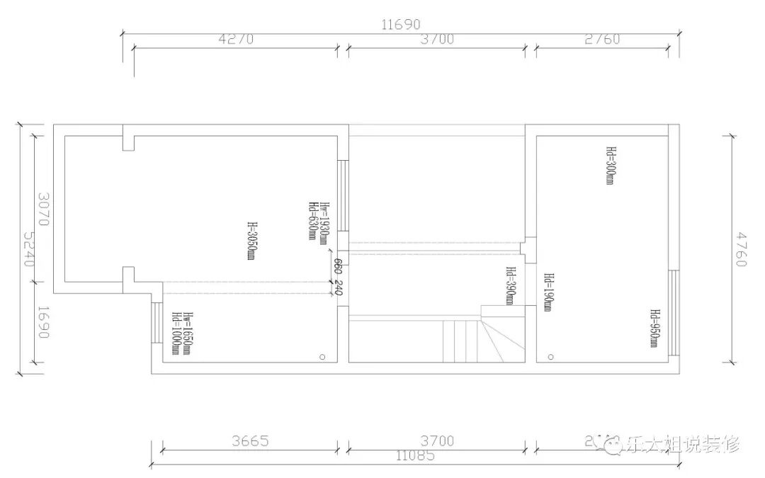
二楼原始户型图

二楼改造后户型图

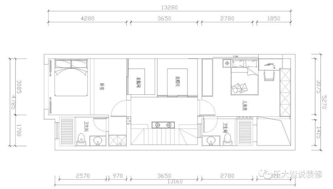
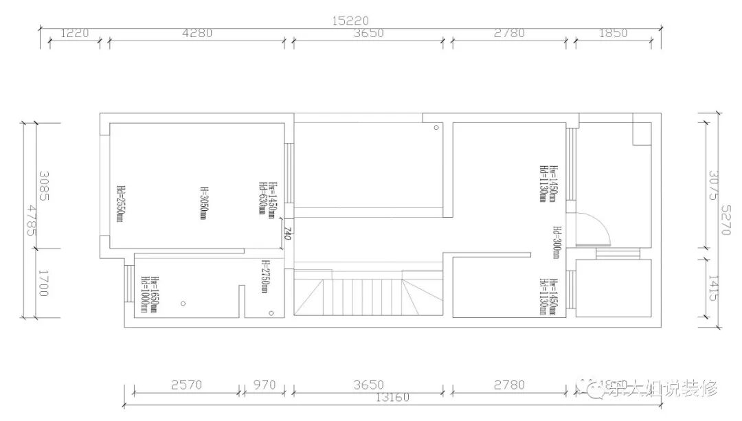
三楼原始户型图

三楼改造后户型图
✦ 本案户型原始结构有三个房间,但没有储藏空间,客户考虑在这套房子长住,所以乐大姐设计团队经过研究将二楼三楼天井进行现浇处理分割出三个衣帽间出来,来实现客户的需求;
✦ 原始结构的厨房比较拥挤,考虑到一楼不需要卧室,所以把采光井调整纳入进来,这样厨房完全变成敞开式,与餐厅客厅相连,实现一体化方案设计。同时此方案增大了厨房的合理性和实用功能,让女主人对回归家庭充满向往。
全景图/Panorama


https://vr.justeasy.cn/view/5274325.html?from=timeline

如果您觉得乐大姐说的内容很有价值
欢迎分享转发至您的朋友圈
让更多的朋友都能轻松装修,自在生活!
当然,您也可以添加乐大姐微信号13382100888
或扫描下方的二维码
说出您的装修难题、让乐大姐为您答疑解惑
不管您是装修完工了
还是即将装修的
或者正在装修的
乐大姐一定知无不言,言无不尽




在看是一种鼓励|分享是最好支持
点击右下角 写留言 发表你的心声
我们期待与您的交流
长按二维码添加乐大姐微信号
装修不烦 大姐来谈