发布时间:2020-04-30

乐大姐
FM104.8《家在苏州--乐大姐说装修》栏目特邀嘉宾,
赫博别墅设计创始人之一;
多次受邀成为院校家居的授课讲师;
98年至今,
为万千家庭打造幸福家居同时,也相互成为了好朋友。
任何与装修有关的问题,欢迎您添加乐大姐微信:13382100888,
乐大姐会为您做一对一解答。


你的衣着代表你的品位,
谈吐体现着学识与眼界,
但家的样子则是内心最真实的写照,
愿你出走半生,
归来仍是少年。
——by 乐大姐团队原创
项目地点:太湖水泊堂前
项目面积:200㎡
项目风格:美式轻奢
项目性质:全屋整装
项目状态:准备开工
懂生活的人更爱生活,家是家族传承重要的载体,岁月中所有的美好,家人间刻骨铭心的记忆,日积月累,形式不同但留下的值得珍藏一生的回忆。
这个落在太湖旁的美式轻奢空间,是陈女士一家的第二套房子。家里平时除了陈女士和她的先生外,还有两个可爱的小宝贝,最小的宝宝才两周岁,平时都是父母在带,所以他们对于装修的环保性非常注重。
这套改善型住宅,两百多平的房子,五室二厅,一厨四卫,还有地下室,如此格局让每间屋子都通透明亮。他们将对生活的所有的热爱都在这铺陈开来,这里的每分每秒都不紧不慢。
客 厅/Living Room

业主是一个独立而个性鲜明的年轻女士,
追求轻奢时尚的生活体验,
温馨舒适的休憩空间,
乐大姐团队设计师为其打造硬朗与柔和碰撞的居住空间。

设计师十分擅长利用软装配件点缀空间,
客厅以素雅的灰色和蓝色为主色调,
爱马仕橙挂画和不对称的现代风格沙发、窗帘等相呼应,
整个空间透露出
一种清爽冷艳中却优雅温馨的高品质视觉体验。

植物的点缀为整个空间带来生机活力,
奢华的吊顶提升了客厅空间的品质,
“以一种全新的家居形态呈现另一种高端生活方式”,
这也是乐大姐团队设计师的创作理念。

客厅左右两面的大面积的落地窗设计
在增加空间采光面积的同时
也加强了空气的流通性,
使得空间更加宽敞大气,
餐 厅/Dining Room

餐厅是一日三餐的承载,
年轻大气的女主人喜欢清爽简单的配色,
所以清新的配色从客厅蔓延到餐厅,
让人自然静下来聆听心灵的呼吸,
自在感受生活的美意。

米白色的木质餐边柜,上下分离,
既具有储藏功能又满足了展示功能,
与色彩鲜艳又不突兀的装饰画组合,低调优雅;
大理石餐桌对上水晶吊灯
在融合共生中又有对比碰撞,轻奢大气。


开放式的空间设计,
客厅、餐厅、厨房互通互联,
在楼梯入口布置阳光房休闲小景,
让家充满当代时尚的设计格调。
绿色的植物生机盎然地融入人们的心中,
让心灵自由,让思绪开放。

餐厅在融合创新中对各种生活方式给予悉心探索,
追求实用功能的格调,
蒸箱、烤箱、双开门冰箱等各种现代化的家电,
大大减少厨房的凌乱感,
解放了妈妈的双手。
妈妈和孩子可以一边游戏,
一边等着美食的出炉……
主卧/Master Room

卧室的设计不浮夸繁杂,而是更生活化。
考虑到这是一个四层的叠墅结构,
设计师把书房的功能纳入房中,
推开门就是开阔的阳台,
把休憩、工作和休闲的功能放在同一空间,
不仅使日常生活更加便利,
同时也能平衡生活重心,提升生活品质。
金色背景装饰的融入提升整个空间的魅力,
高贵大气又彰显时尚的活力。

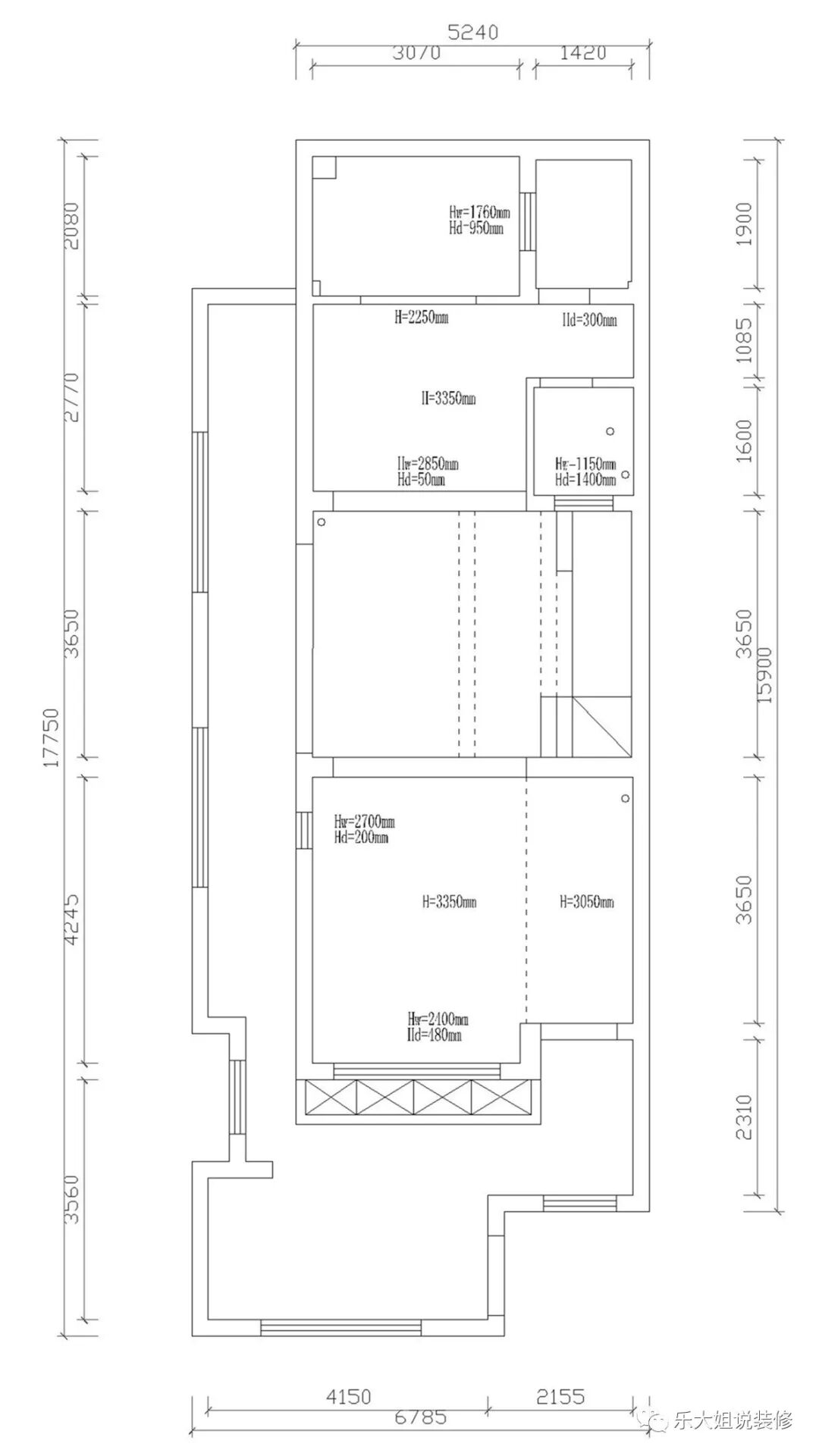
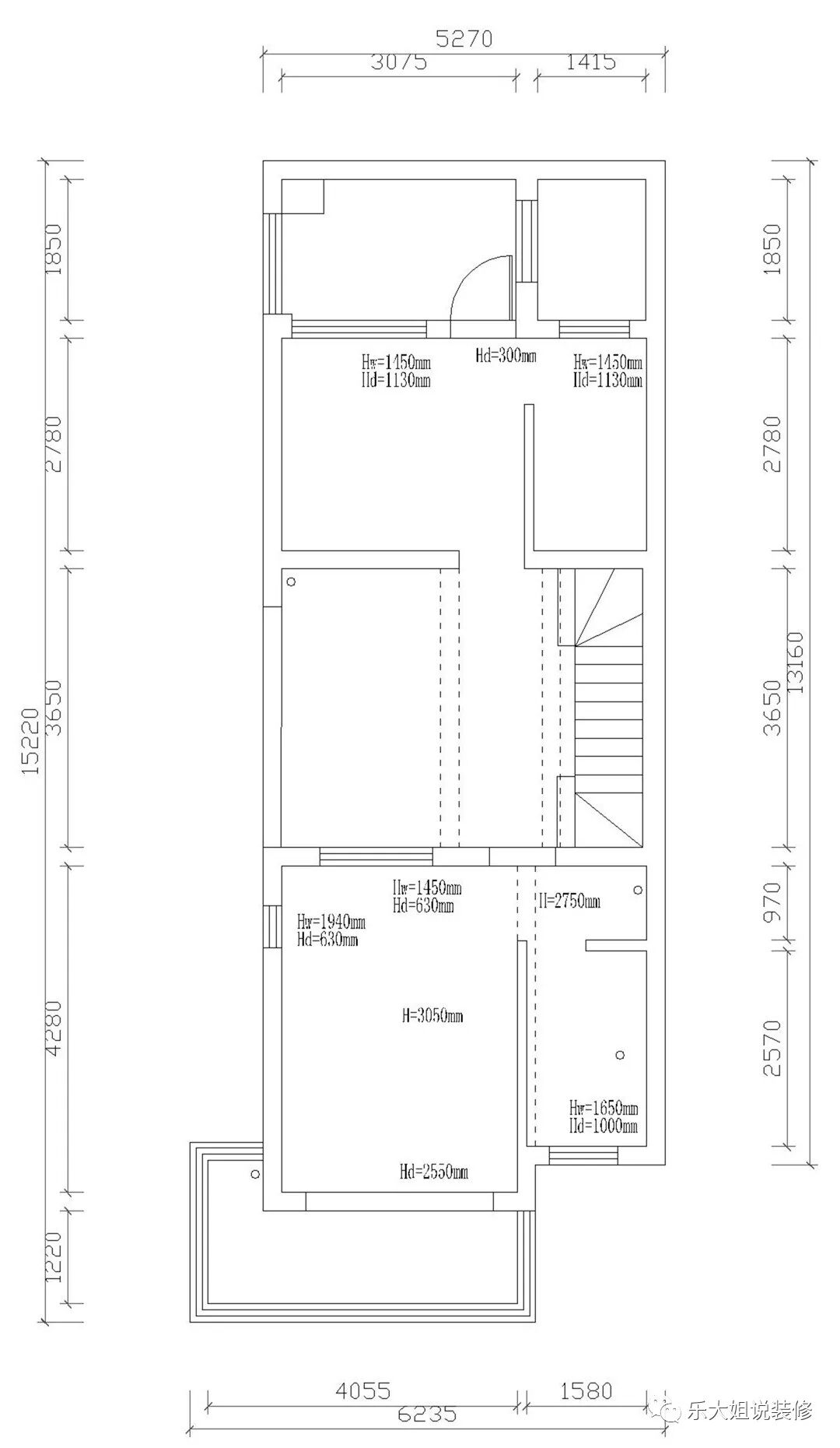
平面方案/Flat Plan

地下室原始户型图

地下室改造后户型图

一楼原始户型图

一楼改造后户型图

二楼原始户型图

二楼改造后户型图

三楼原始户型图

三楼原始户型图
✦ 本案户型原始结构只有三个房间,但家中长住要四个房间,还要一个客房,所以为了实现客户对居住空间的需求,设计师对于二楼和三楼的空间改造比较大;
✦ 原始结构的厨房餐厅区域比较拥挤,考虑到一楼没有卧室,对卫生间的洗浴需求不大,而二楼、三楼都有包含洗浴功能在内的卫生间,所以把一楼原始的卫生间拆除包进餐厅,从而使得餐厅户型更加方正,同时满足了客户对餐厅的收纳需求(要有高柜和酒柜)。
✦ 为了满足客户对厨房的现代化功能需求,设计师将双开门冰箱、蒸箱、烤箱等布置在餐厅区域一侧,这样就把厨房和餐厅的高柜连起来,既给餐厅增加了空间感又把用餐的功能结合在了一起,使得餐厅厨房的布局更加合理、实用。
全景图/Panorama


如果您觉得乐大姐说的内容很有价值
欢迎分享转发至您的朋友圈
让更多的朋友都能轻松装修,自在生活!
当然,您也可以添加乐大姐微信号13382100888
或扫描下方的二维码
说出您的装修难题、让乐大姐为您答疑解惑
不管您是装修完工了
还是即将装修的
或者正在装修的
乐大姐一定知无不言,言无不尽




在看是一种鼓励|分享是最好支持
点击右下角 写留言 发表你的心声
我们期待与您的交流
长按二维码添加乐大姐微信号
装修不烦 大姐来谈