发布时间:2020-04-30

乐大姐
FM104.8《家在苏州--乐大姐说装修》栏目特邀嘉宾,
赫博别墅设计创始人之一;
多次受邀成为院校家居的授课讲师;
98年至今,
为万千家庭打造幸福家居同时,也相互成为了好朋友。
任何与装修有关的问题,欢迎您添加乐大姐微信:13382100888,
乐大姐会为您做一对一解答。


谁家花阳台,
你我暮年,
闲坐庭院,
听雨,赏月,话往时,画往事。
家,有花,有树,有你,有我。
——by 乐大姐团队原创
项目地点:丽岛别墅
项目面积:290㎡
项目风格:新中式
项目性质:全屋整装
项目状态:正在拆除
这是一个三代同堂的五口之家,一对珍珠婚夫妇,一对年轻小夫妻,还有一个可爱的宝宝,目前都在苏州市区居住。爷爷是一位人民教师,这套房子买来是准备未来老两口养老居住的,现在则一大家子周末度假团聚用。这套房子面朝春申湖,环境优雅,鸟语花香,非常适合休闲养老。
设计师结合业主一家的书香气息和三代同堂的居住环境来打造一个三代同堂的新中式(带点港式)和谐之家,试图通过温馨的画面、情感场景的营造,让操劳一辈子的珍珠婚夫妻有一个可以观花品茗的地方,让身心疲惫的年轻小夫妻回到家里能休闲放松回归,也让钢筋森林中的孩子拥有一个纯真质朴的童年。
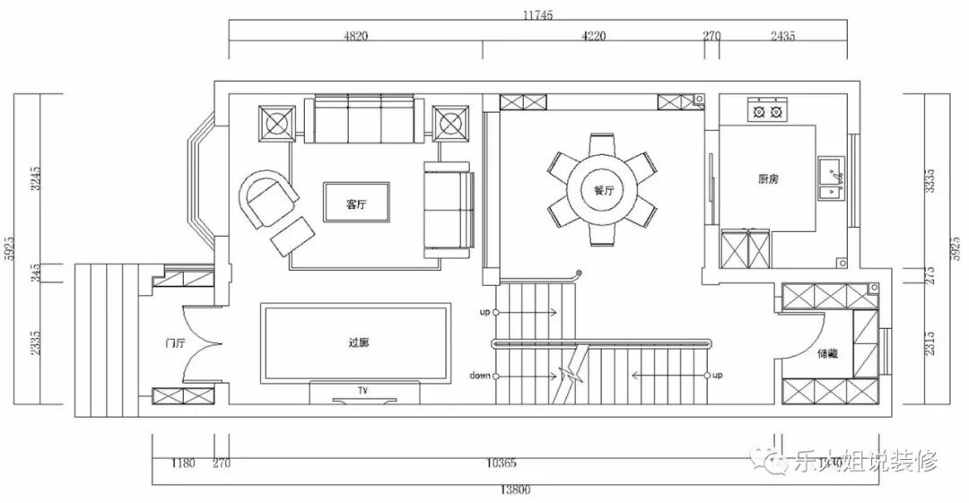
客厅/Living Room


业主说他们希望的家,
推开门就能让人产生归属感,温暖,明亮。
室内整体采用的是新中式风格,
同时乐大姐团队设计师又考虑到
不同年龄层人群的审美需求,
摒弃冷色系,
最终定位咖啡色系,带点港式风格的新中式。
让整个空间显得简约时尚,又不乏传统美学的沉淀。



因客厅整体层高比一般的客厅高,
所以设计师通过运用大面积的木饰面和大理石上墙
提升空间的气势感,
使得客厅稳重中不失档次,气派中没有浮夸。
另外设计师采用金属走边、中式元素的背景墙
平衡了原木色背景带来的沉寂感,
进而通过
木质茶几、布艺沙发、花艺、新中式摆件等打破沉默,
加入蕴含温暖和生机的元素,
让紧绷的人也能在这里彻底的放松下来;
观一隅而知春,守一隅而心暖。
餐厅/Dining Room

餐厅处于整个房子的中心位置,
是厨房、客厅、卧室等的必经之路,
是其余各空间交流互动的枢纽。
设计师在空间结构处理的时候,
采用了玻璃隔断和玻璃楼梯,
增加了整体空间之间的衔接感和通透感,
为家庭成员构造了一个开阔的互动娱乐空间。
让业主即使在厨房做饭或者餐厅吃饭的时候
也可以关注到在院里或是客厅玩耍的孩子。


主卧/Master Room


卧室是最私人的领域,
在这里的每一个角落都可以看到主人的偏好和品味。
设计师将主卧的露台外扩,形成了一个套间的格局;
书房、衣帽间、看书休憩的小阳台,
乐大姐团队的设计师
在这个相连的小空间里把业主的需求考虑的十分细致周到。

整个空间
都是温柔低调的蓝色、原木色、咖色,
仿佛可以抚平生活的毛躁,
在这里,
业主能够最惬意的休憩、工作或是看书。
书房/Study Room

宁静的下午,
阳光通过树叶散成细碎的影子,
窗明几净,
懒懒的窝在书房,
借午后慵懒阳光,
喝着咖啡,
阅一本好书,
赏一部电影,
这便是业主想要的生活。


平面方案/Flat Plan

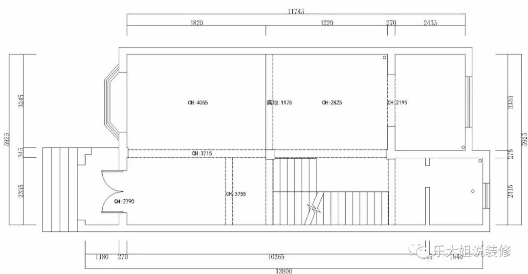
一楼原始户型图

一楼改造后户型图

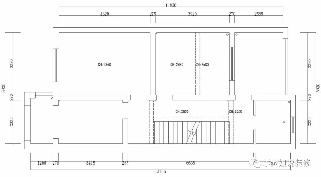
二楼原始户型图

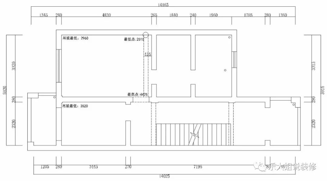
二楼改造后户型图

三楼原始户型图

一三楼改造后户型图
✦ 本案是联排,房子开间相对不大,加上整体房型比较规整,所以结构调整不大,设计重点放在细节上的划分和储藏空间的增加;
✦ 根据家庭成员的安排对房间进行了划分,因为房子作为长期规划,每个人都有独属于自己的标准个人空间。
全景图/Panorama

https://vr.justeasy.cn/view/5040019.html?from=timeline&isappinstalled=0

如果您觉得乐大姐说的内容很有价值
欢迎分享转发至您的朋友圈
让更多的朋友都能轻松装修,自在生活!
当然,您也可以添加乐大姐微信号13382100888
或扫描下方的二维码
说出您的装修难题、让乐大姐为您答疑解惑
不管您是装修完工了
还是即将装修的
或者正在装修的
乐大姐一定知无不言,言无不尽




在看是一种鼓励|分享是最好支持
点击右下角 写留言 发表你的心声
我们期待与您的交流
长按二维码添加乐大姐微信号
装修不烦 大姐来谈