发布时间:2020-04-30


城市的一角,
我们有充满阳光的居室,有静读的书房。
在这里,我们不由得放慢步子,
去感叹生命中种种平淡的奇迹,
原来诗意的生活离我们只是一个转角的距离。
都说50、60年代的人,是没有自我的一代,一辈子为国家、为集体、为子女,似乎永远不记得要为自己活一把。本案业主却让乐大姐看到了金婚夫妇的另一种生活方式。他们有一个定居国外的女儿(偶尔会回来住),还有一个可爱的外孙女,却还有一颗20岁年轻人热爱生活的好心态。他们喜欢中式的庄重与韵味,但又不喜欢中式家具的复杂化,希望将一些现代的元素融入到古典中式的设计中,让整个空间更加和谐还不失典雅。
项目地点:苏州石湖湾(吴中区)
项目性质:全屋整装
项目面积:186㎡
项目风格:新中式
项目状态:准备开工

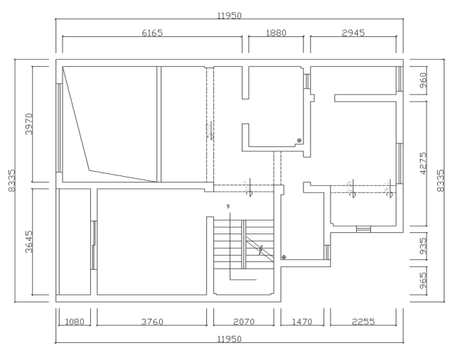
一楼原始户型图VS改造后户型图

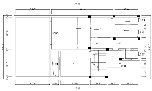
二楼原始户型图VS改造后户型图
✦ 本案户型客厅是挑高空间,考虑到业主的整体需求,乐大姐团队设计老师将挑高空间现浇做隔层处理,楼上作为主卧室使用,这样就可以增加主卧的功能需求,加大主卧使用的舒适度。
✦ 另外根据客户的家庭成员结构和功能使用率的基础上,将原始二楼次卧外的阳台囊括到卧室使用,增大次卧的空间,这样女儿带着孙女回国后可以住在一间,也有了孙女玩乐的空间。
✦ 书房原始空间比较小,考虑到外卫的淋浴房使用率几乎为零,所以借用外卫的空间,增大书房的面积。

根据客户的要求设计老师
将现代设计语言中揉进富有意境的东方元素,赋予空间气质。
空间中大面积的胡桃木色,与深红色、棕色,
新中式家具和灯饰重新阐释了新亚洲叙事语汇。
大理石背景墙与黑钢的搭配提升了整个空间的奢华品质,
沉稳而厚重、高贵又大气。

另外,设计老师
大胆的利用现代艺术感的不锈钢线条和中式韵味的实木线条,
多样式的线条可以使空间显得有层次感。
在整体的设计造型上,
打破了中式的方正,
在吊顶上加了一些弧形造型,
让整体的设计更富有现代感。

餐厅笔直的线条犹如一道灵动的光束拉开空间的维度,
开放式的空间让餐厅光线充足、视野广阔,
就餐时也会心情明媚灿烂,
空间集沉稳、现代、雅趣于一体。


家需要是一个最真实接近自己内心的地方,
在潋滟的湖光山色中,慢慢生活,慢慢思量。
主卧采用了沉稳厚重的棕色,配合白色吊顶,
彰显出主人高贵的气质。
不繁琐,不简单,
柔和静谧的包容下简单的家具摆设。


去除繁杂的装饰留下最精简干练的线条,
极尽表现生活中的舒适度和舒适性。
静谧的灰,低调的浅灰色、优雅的蓝色
与散发迷人魅力的金属线条
提升空间气质,形成独特空间气质,
隐喻独到的审美和气度。

书房需要营造的是安静淡雅的氛围,
所以设计师选择了
时尚现代的家具风格搭配东方意境的书柜、摆件,
在储物功能的基础上带来静谧的感觉,
延续空间的文化意境,中西融合碰撞,
产生更加高贵的氛围,也不失奢华。
家是私人专属空间,需要传达出主人的气息和秉性。


https://vr.justeasy.cn/view/4766522.html?from=timeline&isappinstalled=0

如果您觉得乐大姐说的内容很有价值
欢迎分享转发至您的朋友圈
让更多的朋友都能轻松装修,自在生活!
当然,您也可以添加乐大姐微信号13382100888
或扫描下方的二维码
说出您的装修难题、让乐大姐为您答疑解惑
不管您是装修完工了
还是即将装修的
或者正在装修的
乐大姐一定知无不言,言无不尽




在看是一种鼓励|分享是最好支持
点击右下角 写留言 发表你的心声
我们期待与您的交流
长按二维码添加乐大姐微信号
装修不烦 大姐来谈