发布时间:2020-04-30


人生三十而立,四十而不惑。三十岁前全部是加法,感情、事业、学历、人际关系、朋友,所有的加起来;到了四十岁,便是减法,将不是你心灵可以得到满足的东西和人尽量舍弃,这样会轻松很多。


嘿,这篇案例都有啥看点?
(一)项目概况
(二)平面方案
(三)180°效果图
(四)360°全景图


【案例信息】
项目地点:中航樾玺
项目性质:全屋整装
项目面积:357㎡
项目风格:新中式
【客户需求】
现代人的生活,被快速的节奏所掩盖,设计师通过与业主的多次沟通,决定给业主营造一个独立的家庭慢空间,业主偏爱中式,又想拥有现代的实用空间,于是就有了中西结合的的摩登东方空间,这个坐落于闹市的别墅拥有了东方的灵魂。
【户型改造】
✦ 本案户型结构方正,采光通风非常好,户型本身需改动的地方不大,以风格设计为主。
✦ 设计师根据业主的需求,功能上打破了原有的空间设置:一楼是起居接待空间,二楼及三楼是主人居住的空间,地下室开发为家庭娱乐的空间,楼层功能分区主要方便业主日常接待和生活起居。
【设计理念】
设计师在各个空间中大量使用点线面的设计,赋予空间层次感;以黑白灰为主色调,辅以蓝色、金色、原木色点缀,平衡各空间的舒缓张力;无论是设计感十足的装饰品,还是暗蕴对称美的空间处理,大而不空、厚而不重、别有韵味,细节用心和艺术手法可见一斑。


地下室


(原始户型图VS户型改造图)
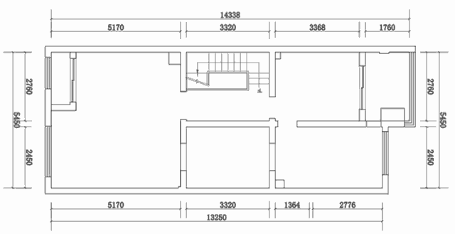
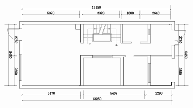
一楼


(原始户型图VS户型改造图)
二楼


(原始户型图VS户型改造图)
三楼


(原始户型图VS户型改造图)

门厅



客厅






餐厅





二楼主卧




三楼主卧





书房


衣帽间



地下室






如果您觉得乐大姐说的内容很有价值
欢迎分享转发至您的朋友圈
让更多的朋友都能轻松装修,自在生活!
当然,您也可以添加乐大姐微信号13382100888
或扫描下方的二维码
说出您的装修难题、让乐大姐为您答疑解惑
不管您是装修完工了
还是即将装修的
或者正在装修的
乐大姐一定知无不言,言无不尽




在看是一种鼓励|分享是最好支持
点击右下角 写留言 发表你的心声
我们期待与您的交流
长按二维码添加乐大姐微信号
装修不烦 大姐来谈