发布时间:2020-04-30



返璞归真,
减去不必要的琐碎,
回归最纯粹的静美。
清贵尔雅,
富贵自华。


嘿,这篇案例都有啥看点?
(一)项目概况
(二)平面方案
(三)180°效果图
(四)360°全景图

【案例信息】
项目地点:彩香新村(二手房)
项目性质:全屋整装
项目面积:115㎡
项目风格:新中式
【客户需求】
本案是二手房改造,客户是一对中年夫妇,风格要简单大方,看上去有品味,凸显出他们这个年龄段的沉稳和底蕴。以后他们孩子结婚了还要帮忙带宝宝所以,也要考虑后面的适合小孩子活动和玩耍的动线。
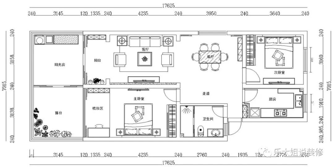
【户型改造】
✦ 首先是过道的位置没有放鞋柜的地方,利用厨房的空间在门厅里隔出一个鞋柜的位置,解决家里进门没有鞋柜的尴尬;
✦ 原始的卫生间的门是对着餐厅的位置的,这样无论是在餐厅就餐,还是卫生间的隐私,还是餐厅的背景上,都是缺陷,所以把卫生间的门改到过道里,解决了三个麻烦点,同时把卫生间的门和厨房间的错开,解决风水上纠结;
✦ 把原始户型的的阳台打通扩充到客厅里,做一个休闲区,也扩大了客厅的面积,显得空间更宽敞。同时在院子里做一个阳光房,可以满足家里的晾晒。
【设计理念】
设计在整体风格上以新中式为主,采用了大空间的暖色调,在局部用了绿色和墨兰色点缀、墙面运用对称的不锈钢线条突出现代感,用黑色的线条走出中式的花纹,整体突出新中式的元素,但又不显得复杂,彰显出客户想要的沉稳与大方。
改造前
改造前餐厅
改造前卧室
这是一套处于2楼的边户,
西边有扇窗户,
比非边套房源提高了入光量,
明厨明卫,南北卧室。
没有玄关,室内本身的装修陈旧,
客厅因为吊顶层高比较低,
硕大的沙发和餐桌挤在一起空间比较局促;
阳台的隔断移门比较厚重,
遮挡了很多入光量;
卫生间对着餐厅,
既不利私密性,又影响风水。
原始户型图

户型改造图

餐厅


客厅


卧室

厨房

如果您觉得乐大姐说的内容很有价值
欢迎分享转发至您的朋友圈
让更多的朋友都能轻松装修,自在生活!
当然,您也可以添加乐大姐微信号13382100888
或扫描下方的二维码
说出您的装修难题、让乐大姐为您答疑解惑
不管您是装修完工了
还是即将装修的
或者正在装修的
乐大姐一定知无不言,言无不尽
在看是一种鼓励|分享是最好支持
点击右下角 写留言 发表你的心声
我们期待与您的交流
长按二维码添加乐大姐微信号
装修不烦 大姐来谈