发布时间:2020-04-30


简单而精致
自由且快乐
奢华而低调
生活就是这样
摆脱所有的喧嚷
去邂逅一场蝶梦之旅

嘿,这篇案例都有啥看点?
(一)项目概况
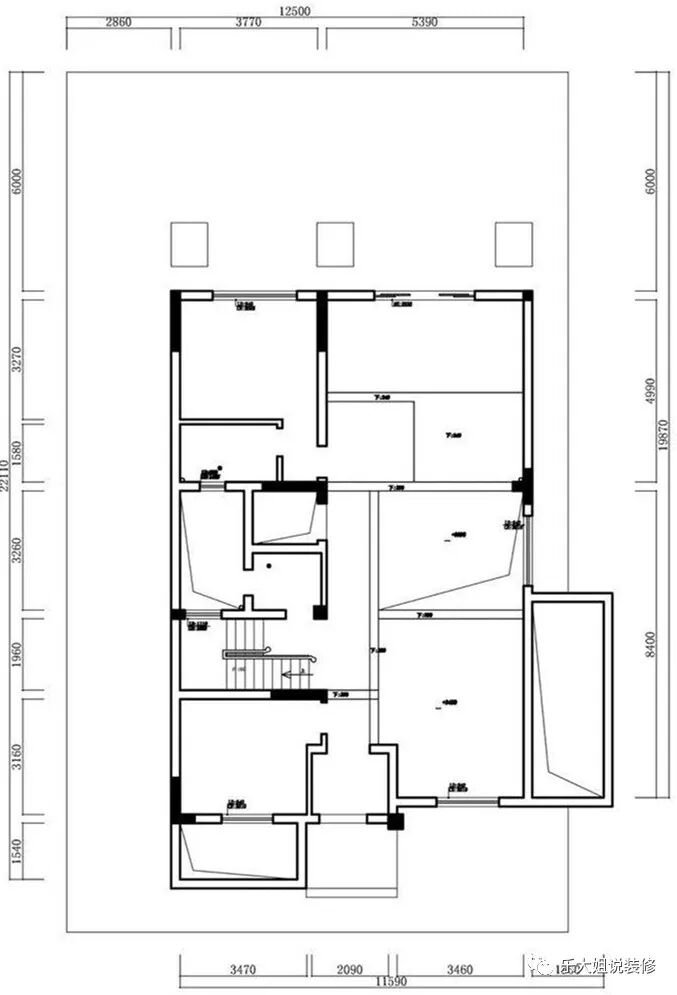
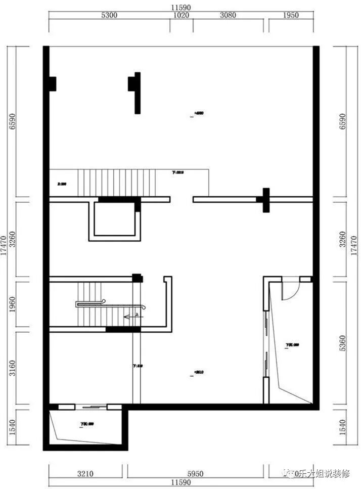
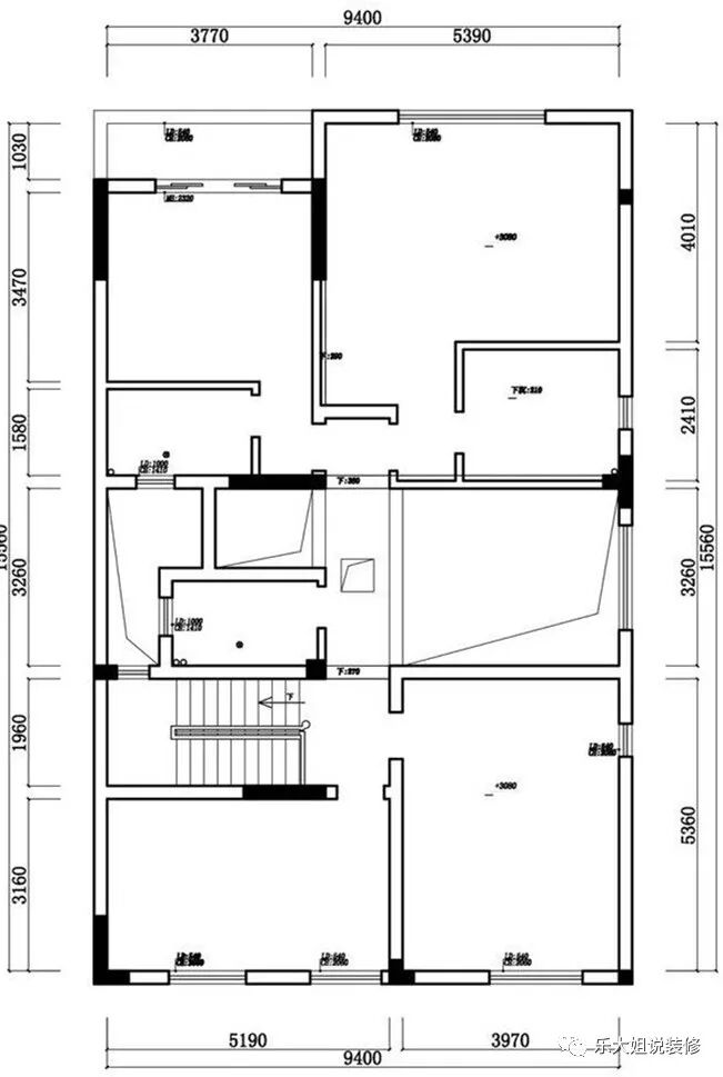
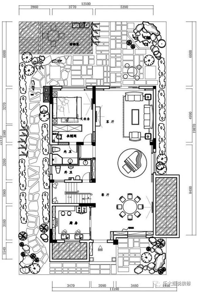
(二)平面方案
(三)180°效果图
(四)360°全景图


【案例信息】
项目地点:石湖湾
项目性质:全屋整装
项目面积:540㎡
项目风格:后现代
【客户需求】
在业主看来,家应该是基于一套充满爱的房子,简洁、明亮、有质感;爸爸妈妈、父母孩子在这里填充欢声笑语、幸福美好;大人有时间时就打桌球、跑步、品酒、做手工活、看电影以消磨闲暇的时光。等到孩子长大成人闯荡世界的时候,这里将是他童年的回忆,所以每一个物件都值得用心挑选。
【户型改造】
✦ 本案户型结构方正,采光通风非常好,户型本身需改动的地方不大,以风格设计为主。设计师根据业主的需求,将居住空间集中在二楼,一楼是居家活动区,地下室为休闲活动区(考虑到苏州潮湿的环境因素);
✦ 为了满足男主人的业余爱好,把地下室右侧车库上方现浇了一层,做为手工作品室。
【设计理念】
设计师在客、餐厅大量使用点线面的设计,赋予空间层次感;以黑白灰为主色调,辅以蓝色、金色点缀,平衡各空间的舒缓张力;无论是设计感十足的装饰品,还是暗蕴对称美的空间处理,细节用心和艺术手法可见一斑。


平面方案






客餐厅






主卧




男孩房





活动室




影音室



花园


https://vr.justeasy.cn/view/1620554.html?from=singlemessage&isappinstalled=0

如果您觉得乐大姐说的内容很有价值
欢迎分享转发至您的朋友圈
让更多的朋友都能轻松装修,自在生活!
当然,您也可以添加乐大姐微信号13382100888
或扫描下方的二维码
说出您的装修难题、让乐大姐为您答疑解惑
不管您是装修完工了
还是即将装修的
或者正在装修的
乐大姐一定知无不言,言无不尽




在看是一种鼓励|分享是最好支持
点击右下角 写留言 发表你的心声
我们期待与您的交流
长按二维码添加乐大姐微信号
装修不烦 大姐来谈