发布时间:2020-04-30

愿生活里有热汤和甜食,背包里有纸,笔,书。
书里故事如迷宫,迷宫通向海。
沟通使误解消除,善意如星辰。
枝头常有喜鹊歇脚,目明心亮。
走很远的路回家,混沌中生出新的自己
The Happy City
自己家百分之八十五的空间每天都会被利用起来的设计才是舒适的状态。
【案例信息】
项目地点:幸福城邦
项目性质:全屋整装
项目面积:300㎡
项目风格:北欧轻奢
【客户需求】
客户追求开阔的空间,收纳要多,喜欢有高级感的北欧轻奢风,自然、舒适又略带轻奢的精致感。喜欢经常约朋友、同事来家里聚会,所以希望家里有一个大的活动空间,不追求过分奢华,只想要随意自由轻松的家庭环境。
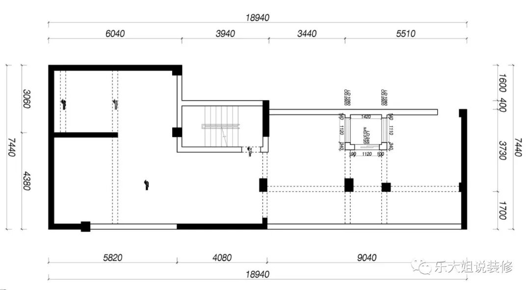
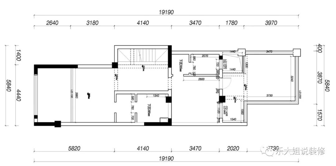
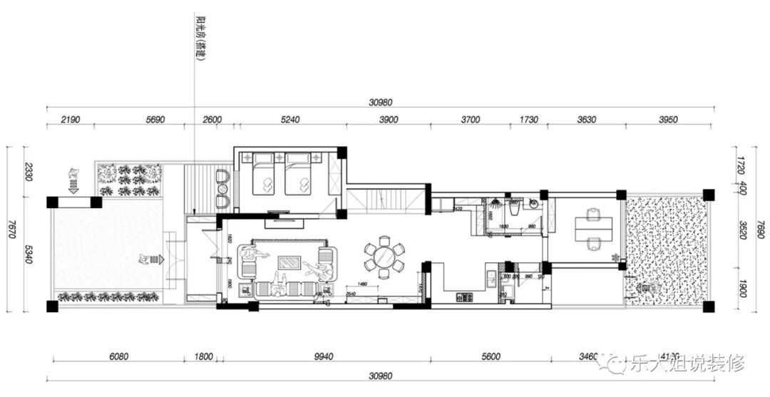
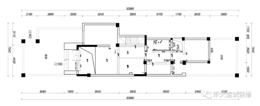
【户型改造】
户型优缺点:叠墅户型,两层带一个地下室,地下室4.5米挑高,面积大,空间足够宽阔,但户型狭长,不规整,功能区域划分不明显;
户型改造:
一楼,设计师考虑到客户对厨房、客餐厅大空间的要求,敲掉卫生间和客餐厅门厅,极大地拓宽了厨房和客餐厅的面积,同时丰富一楼区域功能,单独做了一个洗衣房,联通北院;
二楼,设计师重新规划功能分区,将原始结构中北边的卫生间和露台改造为带衣帽间的套房设计,这样二楼就成为了休憩空间,与一楼的房间构成三房的结构;
地下室,经过设计师的空间划分,变成集储藏间、家庭影院、健身房、酒柜、吧台、麻将桌、卫生间于一体的多功能区域,随时都可以邀请亲朋好友过来开Party!




















https://vr.justeasy.cn/view/1917882.html?from=singlemessage&isappinstalled=0
长按二维码添加乐大姐微信号
装修不烦 大姐来谈