发布时间:2020-04-30



是谁从山川湖海走来,
甘愿囿于昼夜、厨房和爱。
身有安稳之所,
心才得以自在流浪。
你,和有你的家
才是我最想要会到的家。
案例信息
项目地点:太湖上景
项目性质:全屋整装
项目面积:188㎡
项目风格:轻奢美式
客户需求
业主生活品味比较高,对家很有自己的想法,喜欢明亮的光线,通透的空间,不要太繁杂太花哨的装饰堆砌,更不喜欢固定的空间界限,希望拥有后期家居转变的灵活性(满足四季阴晴不定的心情);业主要求有3个固定房间,且有1个卧房兼书房的功能,希望有个优质的生活空间;喜欢美式偏淡雅一点的风格。
户型改造
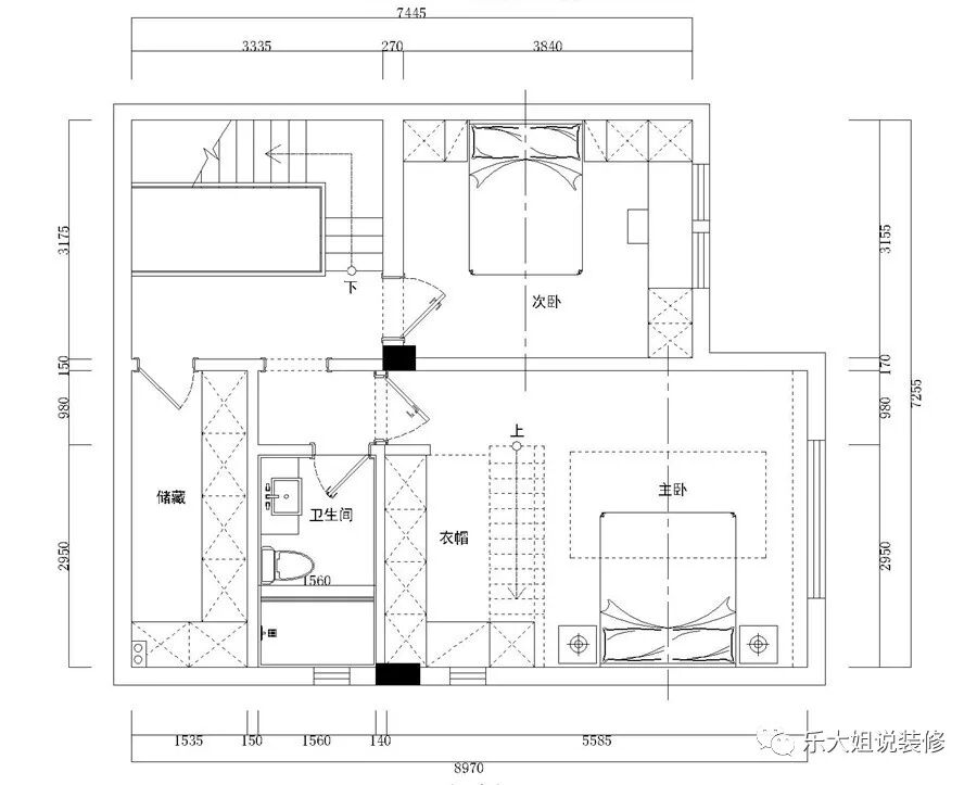
原户型为两层的复式小别墅,格局合理,采光、通风良好;房子造型十分特别,二楼是尖顶造型且层高很高,考虑到实用性,设计师巧妙利用这个结构特点将二楼做错层处理,改造为卧房兼书房的设计,提高空间利用率;设计师优化整个室内流动线,主卧是多功能区域,结构特别,布局合理,提高居住品质;考虑到家里有小朋友,在一楼设有钢琴房和榻榻米。
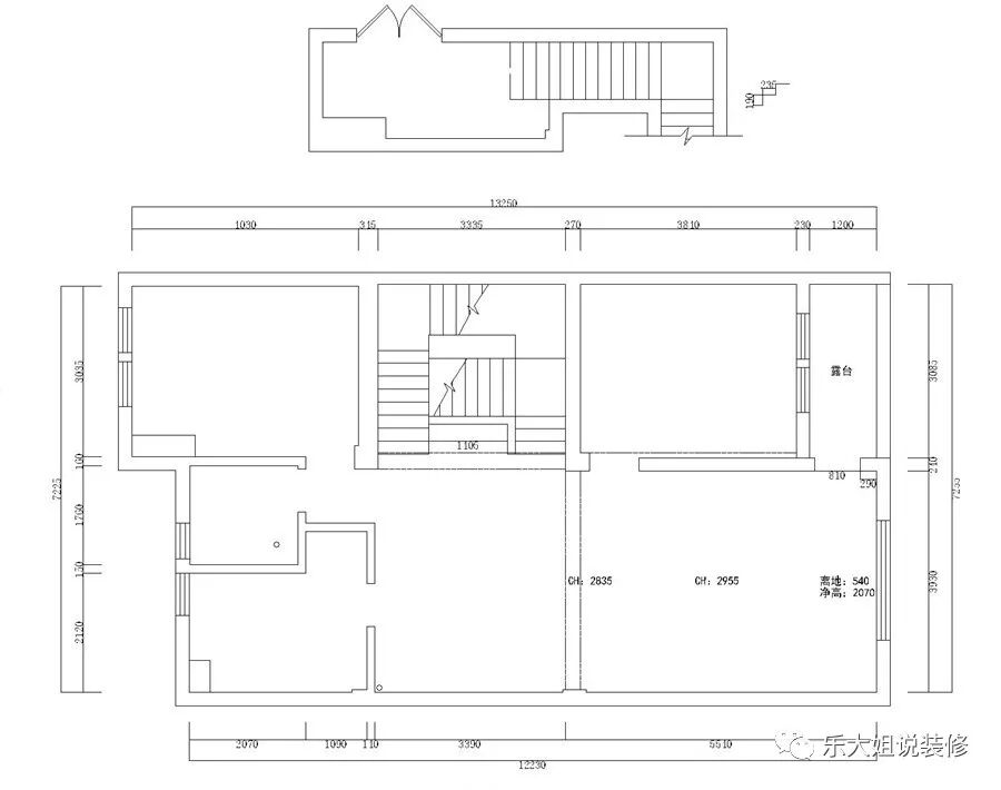
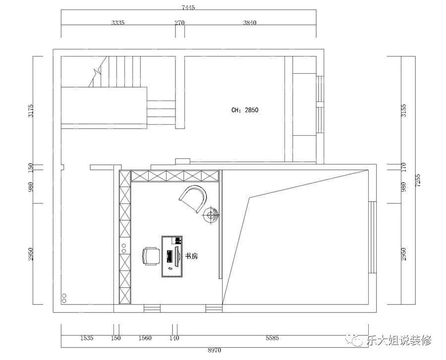
平面方案


(一楼原始户型图VS户型改造图)


(二楼原始户型图VS户型改造图)


(三楼原始户型图VS户型改造图)
效果图(180°)










全景图(360°)

【戳这里,有惊喜!】
https://vr.justeasy.cn/view/2965405.html?from=timeline&isappinstalled=0

如果您觉得乐大姐说的内容很有价值
欢迎分享转发至您的朋友圈
让更多的朋友都能轻松装修,自在生活!
当然,您也可以添加乐大姐微信号13382100888
或扫描下方的二维码
说出您的装修难题、让乐大姐为您答疑解惑
不管您是装修完工了
还是即将装修的
或者正在装修的
乐大姐一定知无不言,言无不尽




在看是一种鼓励|分享是最好支持
点击右下角 写留言 发表你的心声
我们期待与您的交流
长按二维码添加乐大姐微信号
装修不烦 大姐来谈