发布时间:2020-06-07

乐大姐
FM104.8《家在苏州--乐大姐说装修》栏目特邀嘉宾,
赫博别墅设计创始人之一;
多次受邀成为院校家居的授课讲师;
98年至今,
为万千家庭打造幸福家居同时,也相互成为了好朋友。
任何与装修有关的问题,欢迎您添加乐大姐微信:13382100888,
乐大姐会为您做一对一解答。


我们看过喧闹的都市,
生活就这样在大染缸面目全非。
而如今的我们望洗净纤尘,
在人生的又一个阶段找寻内心的安稳。
项目信息
项目地点:嘉宝花园
项目面积:261㎡
项目风格:简约度假风
项目性质:全屋整装
项目状态:正在施工
业主需求
本案是业主一家曾经居住十多年的老房子,一套小独栋(2层,纯地上,无地下室),充满了业主一家的回忆,一直舍不得卖掉,最终业主老俩口决定把这套房子重新装修用来养老。风格上业主并没有概念,但想要享受型的住宅,以五星级酒店的标准来设计,所以乐大姐团队推荐的是现代简约度假风,整体色调温婉舒适,在硬件设备上配置非常到位,虽然只有两层,但也配备了电梯、三恒系统、全屋净水及安防智能。









生活折射出的丝丝柔情都藏在无数个细节中。从一个空间过渡到另一个空间,楼梯是它们之间的桥梁。楼梯采用了通透玻璃+自然木质的设计,使原本各自独立的区域得到了视觉的延伸和空间的享受,除了让空间更加宽敞、明亮,顶天立地的收纳柜更是储物力Max。






餐厨区大气的装饰,很舒适自由,软装元素的运用上凸显出自然、疏朗的气质,各种不同的材质,木纹、玻璃和大理石花纹为空间交织出令人放松的况味。
华灯初上,愿与你慢品人间烟火色,闲观万事岁月长...


简约的厨房,非常有质感,不管是大理石的岛台,还是纯白木饰面制作的到顶橱柜,不仅将业主身上的个性气质完美体现,更代表了一种富有品质的生活状态。
整排靠墙的木色柜体,巧妙地隐藏存储电器、机械系统,兼顾了收纳需求及空间弹性。开放式厨房与餐厅之间形成更开阔的空间感受。


最能让人卸下一身疲惫的空间非卧房莫属,在家也能像度假般惬意,温馨的色调,点缀绿意植栽和时尚的丝绒座椅,调和出清新舒适的视觉效果,围塑度假养老的悠闲气息。




灰色背景墙加入金属线条,打造安静的睡眠环境,视觉上不显单调。主卧也采用无主灯设计,使整个空间更加宽敞,悬空吊顶设计拉伸空间高度,简约大气。

清晨,看着远处窗外树林摇晃,树叶悉悉簌簌,叶子上的晨露,晶莹剔透,不时传来阵阵鸟鸣声,别有一番令人赏心悦目的感觉。主卧的落地窗,既能观赏室外有景,又能多采室外自然光、多吸室外自然风。


卫生间,灰色大理石纹,简约的洗手台精致时尚,浴室柜集收纳、梳妆等功能于一体,淋浴房用金属线条走边铸就经典,让整个空间更有时尚艺术感。


次卧同样以度假风元素为主,整体空间结合了悠闲自在的木质饰面板,趣味盎然的家居摆件。以简单简洁为主,没有多特色的设计,却演变成另一种特色,简单也并不等于真正的简单。





当暖暖的阳光照进房间,捧一本书,沏一杯浓浓的咖啡,空气中浮动着香味,静静的回味,让我们在忙碌中拥有一份闲情,在快节奏中暂停脚步,享受那一刻的舒适、惬意。


以大理石砖铺满整个卫生间,墙地面泼墨般的花纹给空间增添时尚气息。梳妆镜增添明亮的灯带,简洁大气,极具现代气息的设计给业主更舒适的体验。


这是业主一家十几年前居住的老房子,随着家庭成员工作生活的发展,这套原始装修风格陈旧、设施设备过时、空间分割略显散乱、四处堆放生活杂物的老宅就被闲置了,现在业主老两口退休了,就想把这套房子重新装修用来养老。
这套别墅的装修耽误了8年,业主说:如果前后总归确定要装修,一定是越早越好,早装早享受嘛!毕竟过去的8年时光再也回不来了!


一楼原始户型图

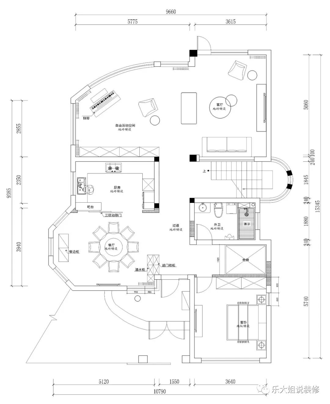
一楼改造后户型图

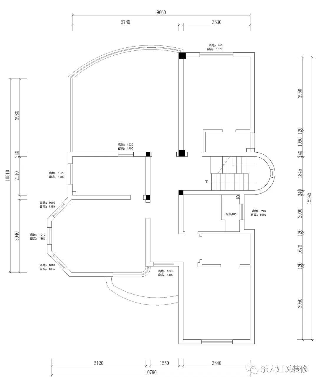
二楼原始户型图

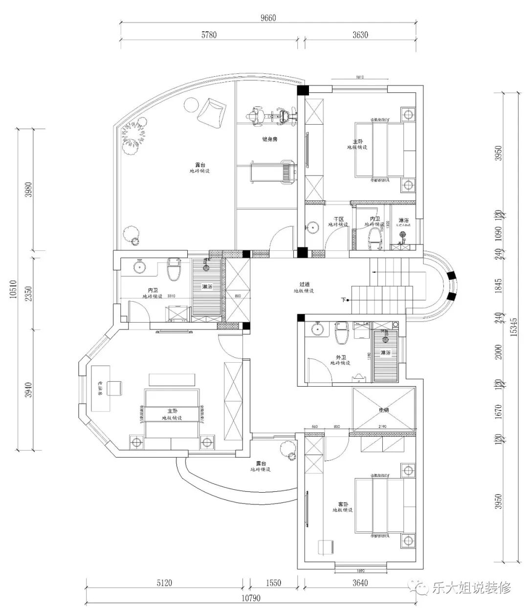
二楼改造后户型图
本案是一套独栋别墅,院子围绕房屋一圈,外环境非常舒适,原始结构比较合理,所以并没有过多改动,只是增加了电梯空间,以及把车库扩进整体房屋(室外车位足够用了);
根据业主的需求,乐大姐团队设计师将二楼的露台改造成兼具晾晒区域、健身及绿化区域(女主人喜欢养花草)三大功能于一体的区域;


https://vr.justeasy.cn/view/9588076.html?from=timeline

如果您觉得乐大姐说的内容很有价值
欢迎分享转发至您的朋友圈
让更多的朋友都能轻松装修,自在生活!
当然,您也可以添加乐大姐微信号13382100888
或扫描下方的二维码
说出您的装修难题、让乐大姐为您答疑解惑
不管您是装修完工了
还是即将装修的
或者正在装修的
乐大姐一定知无不言,言无不尽




长按二维码添加乐大姐微信号
装修不烦 大姐来谈