发布时间:2020-06-07

乐大姐
FM104.8《家在苏州--乐大姐说装修》栏目特邀嘉宾,
赫博别墅设计创始人之一;
多次受邀成为院校家居的授课讲师;
98年至今,
为万千家庭打造幸福家居同时,也相互成为了好朋友。
任何与装修有关的问题,欢迎您添加乐大姐微信:13382100888,
乐大姐会为您做一对一解答。


项目地点:无锡龙湖九墅
项目面积:143㎡
项目风格:新中式
项目性质:全屋整装
项目状态:正在施工
本案是业主买来养老的,平时就老两口住,小孩都已成家,各自独立居住了。业主想把这套平层装出别墅的感觉,喜欢有质感的装修,有厚重感,但颜色不要太冷,以暖色系为主,后期搭配红木家具,装饰可以有但不能过多,不喜欢太复杂,要简单些,所以最终选定了新中式的装修风格。当业主两口子看到这套设计方案的时候,一见钟情!
业主平时很喜欢四处旅游及喝茶聊天,不想在装修上费太多的心,所以特别看重乐大姐团队的全屋整装模式。因日常居住人口少,预留一个客房即可;另外,男业主的朋友比较多,希望有个会友的区域,可以一起喝喝茶聊聊天。




推开门扉的一瞬,入目的便是艺术与生活的缱绻交融,一幅抽象风格的现代挂画与颇具古意的艺术摆件,一间和着古味儿的茶室,这是东方意境与现代风尚的碰撞,突破了地域和时代的局限,在艺术上得以升华,于仪式上浅吟低唱。






移步入室,方知乐大姐团队设计师的手法从不单一,每一个空间都散发着独有的东方气韵,却并未局限于此,古典的文化与当下相结合,让空间以更为抽象的意境突破传统中式的厚重。


一览无余的客厅/餐厅/厨房/茶室,让有限的空间也有山水间的开阔明朗;内敛稳重的新中式布艺家具,高端定制的材质搭配,渲染出了贵胄不凡的气度。低调的灰咖色墙布与金属制品的线条,均以一种华贵、精致的仪态,传递着主人的高雅审美情趣以及极富文化底蕴的生活态度。









生活是雅诗轻和,是陈酿深酌,呼唤美好,释放闲情。本案主卧空间在现代强调主导下,复古意境点缀其间,一同诠释着优雅气质和如梦般的闲情。


主卧色调偏暖,以灰金调的墙面、深棕色的地板作为基调,穿插其间的家具、摆件都加以金边,处处有呼应,处处有细节,为睡眠空间注入优雅与高级感。

衣帽间兼书房是主卧套间的组成部分之一,也是现代生活中最实用的空间。干净的色调,利落的线条,功能与美学在此完美结合。










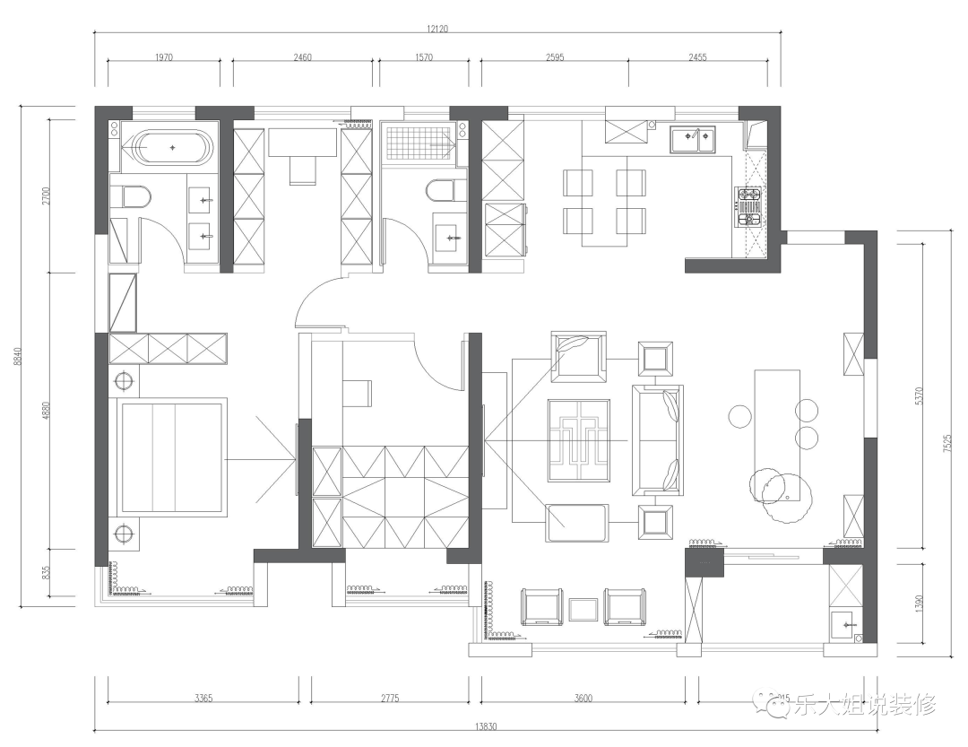
原始户型图

改造后户型图
本案户型原始结构为四房,因为常住人口较少,小孩都已成家各自独立居住,故改成一个套房加一个客房;
由于结构原始为双阳台,所以乐大姐团队设计师把客厅区域扩大,把一半的阳台融入客厅区域,另一半作为单独的洗衣房,增加客厅的面积和美观度;
原始结构的餐厅厨房都不大,直接打通厨房做开放式,和餐厅区域融合,既方便了厨房的操作空间,又扩大了餐厅区域的可活动位置。



https://vr.justeasy.cn/view/9899906.html

如果您觉得乐大姐说的内容很有价值
欢迎分享转发至您的朋友圈
让更多的朋友都能轻松装修,自在生活!
当然,您也可以添加乐大姐微信号13382100888
或扫描下方的二维码
说出您的装修难题、让乐大姐为您答疑解惑
不管您是装修完工了
还是即将装修的
或者正在装修的
乐大姐一定知无不言,言无不尽




长按二维码添加乐大姐微信号
装修不烦 大姐来谈