
乐大姐
FM104.8《家在苏州--乐大姐说装修》栏目特邀嘉宾,
赫博别墅设计创始人之一;
多次受邀成为院校家居的授课讲师;
98年至今,
为万千家庭打造幸福家居同时,也相互成为了好朋友。
任何与装修有关的问题,欢迎您添加乐大姐微信:13382100888,
乐大姐会为您做一对一解答。
本案是398㎡的叠加别墅,地下一层,地上两层,位于昆山,业主买这套房子是打算要长期居住的,所以虽然买了有两年多了,但是由于装修费用比较紧张,又不想将就影响一家人的生活品质,一直没装修。经过多方考量,最终选择了乐大姐团队!业主夫妻比较年轻,对现代时尚的摩登风格情有独钟,接受一切设计感与现代感的元素,所以风格选定为现代轻奢,风格大气不过时!

对于年轻一族来说,简洁、大方是映入眼帘的第一印象。而温暖、愉悦、充满生活气息的品质生活,才是他们真正的需求所在。设计师以丰饶的创意表达生活内涵和当代气质,将空间具化为实用与美学交织相融的生命体,赋予空间轻奢、雅致而舒适的生活氛围。本案的焦点之一是层高高达6米挑高客厅+落地窗的设计,使空间尺度被无限延伸放大,将窗外绚丽的美景收入家中,视觉更加宽阔。沙发背景采用可根据方案进行定制的硬包+木饰面,并在其两侧加T5灯管,增加层次感。巨幅艺术画扑面而来,提升空间品质感。
电视背景墙上,外形冷艳奢华的1200*2400定制瓷砖,遇上浪漫而不失奢华的金属+灯带点缀,高冷的纹理相遇别样的独树一帜,别样的高级范,精致而不繁复、简约而不简单,用爆炸的美感来形容也不足为过。
在城市的洪流中寻回那片精神归属之地,心灵栖居之所,演绎温润质朴的生活美学,诗意淋漓间意蕴悠长。
空间以金属、皮革的中性色调为主,用色彩的纯度传递细腻的质感,造型简洁、线条流畅的家具组合搭配,营造出稳定、协调、温馨的空间感受,满足现代年轻家庭的轻奢需求。
餐厅依偎着厨房,侧边做了一排餐边柜,冰箱隐藏其中,具备强大的收纳功能,让空间的功能得到新的补充,更具延伸与通透感。餐厅北面的窗户做落地窗,增大采光通风面积,效果更好,南北通透。大理石台面餐桌搭配米色铆钉餐椅,提升了整个空间的奢华气派与利落感,又不至于过度使用金属而流于俗气。
餐厅区域很多横梁,挂完中央空调之后基本就满了,所以顶部采用的是无主灯设计,出风口回风口做下出下回。

主卧同样以低饱和度色彩为主、高饱和度装饰营造空间质感,带有自然原木系风格, 注重简单、舒适、大气,以创意软装点缀 ,打造出极简轻奢的高雅生活风。有生活,有温度。主卧与主卫之间的过道区域被做成了小书房,通过墙面与顶面的木饰面以及T5灯管做出来的灯带,使小书房与主卧分隔,但又不显得格格不入,同时将现代气质悄然带入,也能让人沉静放松,将思想集中。



卫生间双台盆设计,满足男主女主同时洗漱方便。台上盆设计,水不容易溅出来,台盆更干净。台盆柜挂墙,没有卫生死角,清理更方便。淋浴房地面大理石拉槽,污水不会触脚,不会积水,美观实用。智能镜柜搭配灯光效果,自带美颜,防雾,使用效果更理想。




男业主跟女业主都是体育老师,特别喜欢收藏运动鞋,根据他们的需求乐大姐团队设计师在二楼的起居室为他们设计了一面鞋墙。各种品牌造型炫酷的运动鞋整整齐齐地摆放在墙上,无比地壮观。
这里男业主待得比较多,与朋友喝茶聊天,有这面鞋墙的点缀,也会让人显得不局促,谈点更多。



孩子是家庭快乐的源泉,色彩和家具在这里就变得浪漫活泼起来,以粉、蓝、白色调为主的女儿房,以蓝色、黄色、白色为主的男孩房,不对称的美感,增添了一丝浪漫的小调皮,别致的吊灯,精美的椅子,在这里,一切都是恰到好处。

厨房虽然不大,但拥有完善齐全的功能,合理利用,不浪费每一寸空间。米白色台面,让所有物件都变得整洁而醒目。




根据业主的需求,影音室被设置为兼顾观影和品酒功能的综合活动区。舒适的弧形沙发将整个空间点亮,整排的酒柜增加了视觉冲击力,彰显了独特的优雅气质和品味。

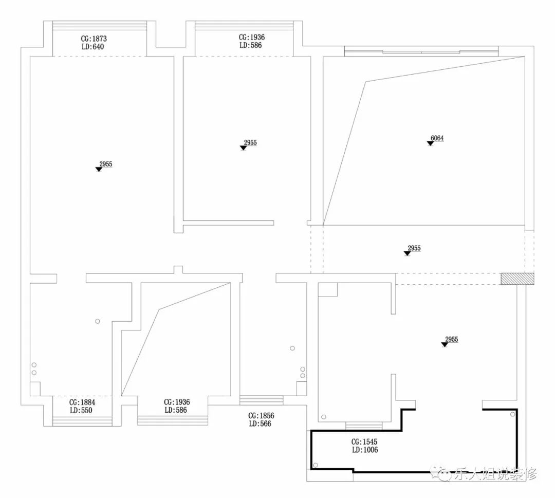
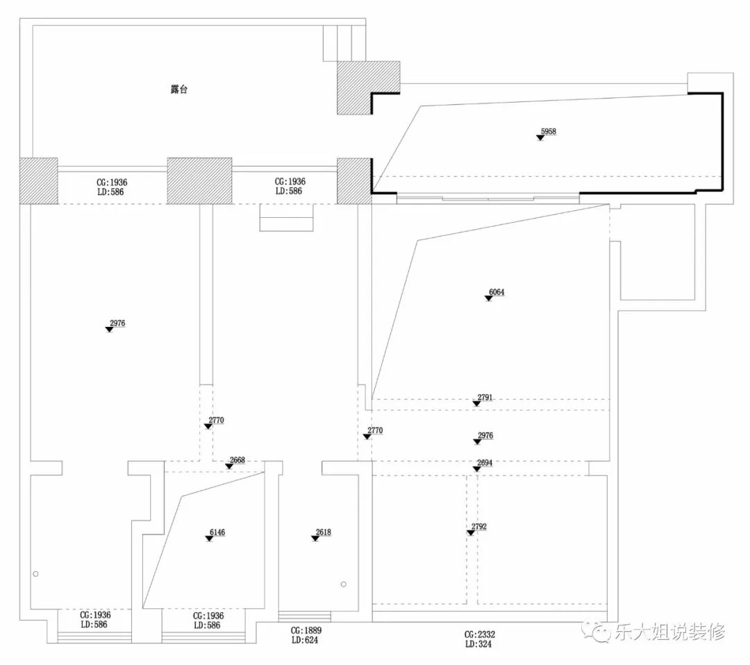
- 本案是叠加别墅,地下一层,地上两层,入户门位于二层的电梯区域,原始结构比较合理,采光通风良好,所以并没有过多改动。
- 因一层需安装一个空调出风口,而挑高空间二层与一层之间的过道原本是直的,且下面有梁,中央空调内机无法安置,乐大姐团队设计师因地制宜,将过道现浇出一个观景角台,这样既美观又实用,又解决了一层空调出风位置的尴尬局面。
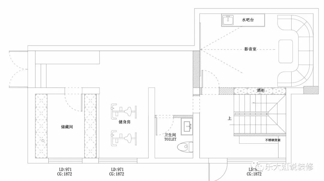
- 根据业主的需求,设计师将地下室打造成家庭会所,有储藏室、影音室、健身房、酒柜、水吧、卫生间,招待朋友家庭聚会,是除了正常生活起居外的精神空间。

点击下方“链接”,即可在线免费看本案例全景图(360°)。https://vr.justeasy.cn/view/9836196.html?from=timeline

如果您觉得乐大姐说的内容很有价值
欢迎分享转发至您的朋友圈
让更多的朋友都能轻松装修,自在生活!
当然,您也可以添加乐大姐微信号13382100888
或扫描下方的二维码
说出您的装修难题、让乐大姐为您答疑解惑
不管您是装修完工了
还是即将装修的
或者正在装修的
乐大姐一定知无不言,言无不尽