
乐大姐
FM104.8《家在苏州--乐大姐说装修》栏目特邀嘉宾,
赫博别墅设计创始人之一;
多次受邀成为院校家居的授课讲师;
98年至今,
为万千家庭打造幸福家居同时,也相互成为了好朋友。
任何与装修有关的问题,欢迎您添加乐大姐微信:13382100888,
乐大姐会为您做一对一解答。
There is only one happiness in life,
如果生命是一袭华美的袍,那么承载生活的家就应该是一幅五彩缤纷的画,有森林般的从容,又有草木绿色的生机,有写意一个人的独处,也有悦动一群人的欢愉。
生活不止是诗和远方,还要有眼前的缤纷多姿。
本案是一个三代同堂之家,业主小夫妻二人来自苏北泰州,是做粮油生意的(之前父母做了好多年的粮油生意),辛苦打拼积累了蛮多年才买了这套房子,很辛苦就希望有一个舒适的家!男业主偏爱简欧,喜欢豪华,其实简欧风格流行了好多年,设计却真的是挺难把握的,很多业主装了之后发现虽然做出了“壕”感,但却缺乏气质,不耐看!
乐大姐团队的设计方案完成后,夫妻二人第一次看设计效果就很喜欢,跟很多业主一样,之前装修不是太急(有房子住),看到自己家的设计全景图后,就特别期待快点住到这样的环境里,期待这套豪而不俗的欧式作品早点落成(*^▽^*)

鉴于业主对欧式古典美学的欣赏,乐大姐团队设计师在欧式设计的基础上,进行了一次美学上的优化升级,赋予空间素雅澄净、奢于自然的艺术内核,通过定制化的设计让生活的诗意万象浸润于点滴日常。整体空间以白色为主基调,搭配冷色系,突出房屋的空间感和立体感,欧式风格的沙发抱枕组合与挂画、大花纹地毯等软装,将奢华、典雅的特点展现的淋漓尽致,更增添情调。
颇具质感的皮质沙发点缀以时尚的柳丁,沉稳厚重的黑色家具则与雅致的香槟金金属产生碰撞,点缀热烈的颜色系花艺、饰品或线条提升空间时尚的气息,通过这些主打元素的连续性使用,以及材质层次丰富的打造,呈现出欧式雅致的时尚情怀。电视背景墙的设计以方形线条为装饰,简单中不失精致;吊灯华丽的造型,让整个客厅亮堂,而充满欧式气息。
闲暇之余,坐在沙发上,泡一杯咖啡,翻阅一本好书,拥有属于自己的静谧时光。或者邀三两好友,一边聊天一边享用美味的甜点,打造生活的仪式感。
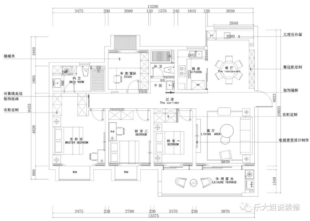
餐厅与客厅相邻,在保证良好采光的前提下,设计师紧邻餐桌侧边及餐厅窗户做了两排餐边柜,既丰富了餐厅的储藏功能,且餐边柜与墙壁和地板砖的颜色搭配也相得益彰,整体更加温馨舒适。吊顶采用圆形设计,与餐桌呼应,让空间层次更加丰富,让餐厅视野得到延伸。
精美的水晶吊灯、皮质桌椅上的金属线条点缀、晶莹剔透的餐桌摆设、质感的圆形餐桌,一切都是那么遥相呼应,完全沦陷在这绝美的就餐环境里。
进入主卧,浓郁的传统欧洲气息扑面而来,木质地板与床铺、床头柜、床上用品相辅相成,沉稳中又不失大气。在床头柜上放置欧式元素的台灯,营造浓郁的艺术氛围。美好,源于生活的每一个瞬间,是倚靠窗前享受阅读时光的宁静,是点燃香薰静气凝神的优雅精致,也是夜晚相拥而眠的酣睡时刻,一觉醒来,爱与阳光同在。
主卧卫生间面积相对宽敞,干湿分明,整体以米黄色为主,欧式造型的浴室柜、镜子等,充满温馨舒适的感觉,精致的生活贯彻在身体的每一个细胞里,不会与主卧的气氛冲突。

儿童房以蓝白色为主,床头墙上是一些宇宙星体图案,增添活泼的气息,考虑到孩子的衣物玩具多,设置专门的衣帽收纳柜,避免零散的堆放。
【设计难点】
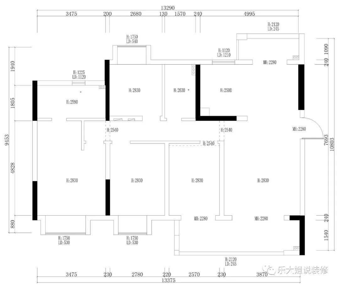
- 首先,本案是138㎡的平层,业主的需求是4房设计,但是这样整体空间会略显局促,做欧式新古典风格非常有挑战性。
- 其次,这种风格的家具整体占地体积偏大,而业主装修预算有限,不可能为了这个空间去定制,成本太大,那么在有限的空间里要做出欧式的大气,还不能俗,则是另一个难点。
- 因本案厨房面积较小,餐厅也只有2.6m宽,而业主一家三代都住在这个房子里,一日三餐必不可少,对厨房、餐厅的功能需求非常高,业主还提出一定要圆桌,还要在餐厅做一组酒柜,在面积有限的情况下是无法完成这个命题的,也是设计的一个难点。
- 本案户型有南北阳台,乐大姐团队设计师把北阳台与餐厅打通,让客餐厅的整体空间变大。
- 为了控制整体造型预算,设计师主要通过软装来体现整体风格,比如窗帘的窗幔及拼花、豪华的灯具欧式的灯盘点缀等,硬装上则采用了局部护墙板、大理石、地面拼花及石膏线。
- 为了实现业主对厨房、餐厅日常需求,设计师只能把原本不够大的厨房再压缩掉一点,然后在北阳台做了一个厨房功能的延伸区——西厨,将蒸烤箱放到这里,并沿窗做了一排矮柜,这样橱柜一共可做到6.9m,完全可以满足储藏。
点击左下方“阅读原文”,即可在线免费看本案例全景图(360°)。
如果您觉得乐大姐说的内容很有价值
欢迎分享转发至您的朋友圈
让更多的朋友都能轻松装修,自在生活!
当然,您也可以添加乐大姐微信号13382100888
或扫描下方的二维码
说出您的装修难题、让乐大姐为您答疑解惑
不管您是装修完工了
还是即将装修的
或者正在装修的
乐大姐一定知无不言,言无不尽