
乐大姐
FM104.8《家在苏州--乐大姐说装修》栏目特邀嘉宾,
赫博别墅设计创始人之一;
多次受邀成为院校家居的授课讲师;
98年至今,
为万千家庭打造幸福家居同时,也相互成为了好朋友。
任何与装修有关的问题,欢迎您添加乐大姐微信:13382100888,
乐大姐会为您做一对一解答。

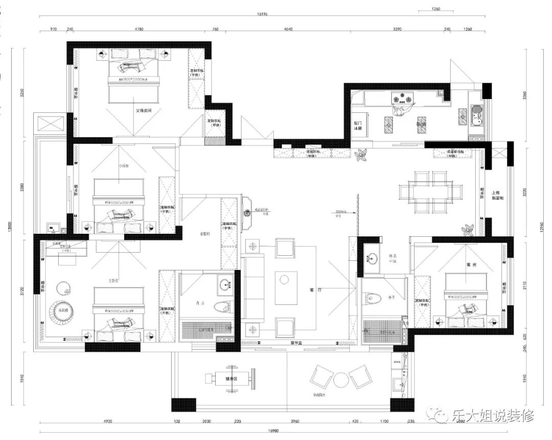
项目地点:盛泽乌桥水岸
项目面积:183㎡
项目风格:现代简约
项目性质:全屋整装
项目状态:正在施工
本案位于吴江盛泽,是业主为女儿准备的婚房(女儿刚刚参加工作,还没有男朋友,先装修好预备着),这个小区现在的房价在10000元/㎡左右,业主当时买才6000+元/㎡,这套大平层才200万元不到!这个房价在苏州是万万不敢想的!业主拿房已经好几年了,盛泽当地的设计及施工能力离业主及女儿的要求相差甚远,一次偶然的机会了解到乐大姐团队,再加上有好朋友的极力推荐,最终定了下来!业主女儿是做财务工作的,很喜欢温馨的环境,风格定为现代极简,方案完成后业主父女两对设计效果爱不释手,一眼定情!
乐大姐团队设计师通过对居住空间的重构,让居住者体验光影、材质、细节给生活带来的变化。透过以人为本的思考,探索现代住宅的生活方式,回归真实的需要。
玄关柜与过道背景、客厅电视背景连接呼应、材质统一。在玄关与客厅、餐厅的连接处,设计师以线条、灯光打造富有层次的过渡空间,使整体视觉更立体。

原木色过道墙面及顶面造型承载着空间的自然之气,水泥元素带有矿物气韵的沙发背景墙打破常规,配置整套的布艺家具让空间有沉静温和、协调舒适的整体感,设计师在简约中追求空间细腻的层次变化,目之所及,精致而有内容,让家不再千篇一律。
现场定制的白色柜门、原木色柜体与嵌入式电视柜,加上大面积的灰色地砖与点缀其间的一二跳色座椅抱枕,让整体空间保持明亮的同时又倍感温暖。



因客餐厅的面积很大,所以设计师在客厅与餐厅之间的做了一个金属屏风隔断,这样既起到了分割空间不阻隔光的作用,又与空间其他设计相呼应,让客餐厅规划更鲜明。在这里,营造一个静逸的空间,感受时间的生命力,在微弱和谐的对比中,细数每一寸斑驳界面里时光的蔓延。因原始结构中的沙发背景很长,而电视背景则很短,考虑到设计上的对称原则,设计师除了在电视背景一侧做了金属屏风隔断外,在沙发背景一端也采用了木饰面+长城板+线性灯的造型,大小宽度都经过精心的对比和设计,这样既美观又时尚,还避免了有压迫感。无处不在的光,客厅除了有主灯、筒灯、台灯以外,还有现在流行的网红线性灯作为设计的亮点,见光不见灯,提升整体空间光感,不会有因灯而带来的视觉负担。


客厅延伸至餐厅,有明显的区域划分,但又不影响与家人的情感交流,呈现一个通透亮彩的开放空间。华灯初上,愿与你慢品人间烟火色,闲观万事岁月长...


清风卷起白纱,撩动着一家人的温情时光。餐厅保持了现代风格中的理性特质,以干净清爽的暖白为基调,大理石台面的餐桌搭配质感的皮质桌椅,点缀金属元素,用餐时充分感受到木质的温润与大理石、金属的轻奢质感,给餐厅添了一份温馨与精致。
本案的主卧不同于其他户型的卧室,在主卧的床头处有一个转角的落地窗户,所以在处理时乐大姐团队设计师运用不对称的造型,只在靠衣帽柜一侧做了木饰面的造型,这样与另一侧的落地窗之间形成一种呼应,达到了设计的效果。往往一个小小的线条灯就是家里面最重要的亮点所在。主卧的休闲区打破了传统的吊跌级顶面的造型,采用了传统的筒灯造型+磁吸灯的设计,这样空间上不仅没有压迫感,反而更灵动。
拥有一个足够大的衣帽间大概是所有女生的梦想吧!结合业主需求,为女主人打造一个理想中的衣帽间。部分空间以玻璃作为隔断,辅以灯带,让收纳柜兼具展示、收藏的功能。
另外,考虑到进门就是衣帽间可能会有些闷,设计师在衣柜吊顶处预留了一条空挡的位置安置灯带,既保证了光源感,造型上也十分灵活。
现代风格的卫生间设计讲究简约流畅的线条和对比强烈的色差。本案以黑白灰基调,给人时尚前卫、不受拘束的感受。以简单的线条,极少的装饰元素,显示独特的美感。
父母房以低饱和度的色彩为主,呈现自然朴素、稳重内敛的气质。
设置一间装饰简单的儿童房为将来的宝宝做打算,也方便后期根据需求调整。整体空间以淡粉色和白色为主,点缀金属色提升整体质感,动物玩偶、小星星贴画等让空间不显单调,展现更多的童趣。设计过程中,尽量在有限的空间内为宝宝创造阳光清新的成长环境。
- 本案的户型客餐厅不是南北通透的格局,而是转角处户型,作为大平层来讲,客餐厅的面积很大,且功能分区明显,有较好的通风采光,不需要有太大的改动。
- 本案进门处有一道承重结构梁比较低,从整体风格上考虑可以采取两边拉平顶的现代简约风造型,但是如果全部拉平则会降低顶面的高度让人觉得压抑,所以乐大姐团队设计师采用借光处理,在高低顶面处放置灯带,这样既解决了高低的问题,又运用灯光起到了设计上的美观效果,十分灵动。
- 本案原始户型中厨房间空间很小,且只适合做个单开门,十分局促,设计师将原始户型中厨房外侧的小阳台外扩纳入厨房空间,从而增加了厨房的空间及使用率,同时对墙面进行改造做了对开的大移门,这样就增加了厨房的采光和通透。
点击左下方“阅读原文”,即可在线免费看本案例全景图(360°)。

如果您觉得乐大姐说的内容很有价值
欢迎分享转发至您的朋友圈
让更多的朋友都能轻松装修,自在生活!
当然,您也可以添加乐大姐微信号13382100888
或扫描下方的二维码
说出您的装修难题、让乐大姐为您答疑解惑
不管您是装修完工了
还是即将装修的
或者正在装修的
乐大姐一定知无不言,言无不尽