发布时间:2020-07-23

乐大姐
FM104.8《家在苏州--乐大姐说装修》栏目特邀嘉宾,
赫博别墅设计创始人之一;
多次受邀成为院校家居的授课讲师;
98年至今,
为万千家庭打造幸福家居同时,也相互成为了好朋友。
任何与装修有关的问题,欢迎您添加乐大姐微信:13382100888,
乐大姐会为您做一对一解答。


项目名称:吴江天和
项目面积:450㎡
项目风格:新中式
项目性质:全屋整装
项目状态:设计已完成

本案是业主一家曾经居住十多年的老房子,一套独栋别墅(4层,纯地上,无地下室),充满了业主一家的回忆,不过现在业主两口子觉得住着很不舒服,想要全部拆除重新装修用来养老。因为是用来养老的,业主对装修的品质要求非常高,希望硬件设备配置到位,比如说电梯、中央空调、地暖等。




每一次的新中式表达,都是一次独一无二的古今对话,更如同书写了一首意蕴深长的诗歌。根据业主的需求,在历史与当下、未来的时间坐标上,在复古情调与现代审美之间,乐大姐团队设计师找到了一个恰如其分的融合,极致东方情怀与现代山水意境。
门厅中大理石墙面凸显着山的刚劲,挂画与绿植昭示着水的柔情,不同材质深刻地表达着山与水的意境,在收放有致、虚实结合之间。


二层含有接待、聚会功能,设计师在这层强调回归文韵礼序的宁静致远。就空间整体风格而言,偏向现代简约,设计语言采用直线条为主,块面的分割,给人通透干练的感受。硬装材质方面则主要通过金属、大面积的木饰面和墙纸组成,主要背景墙由大理石铺贴而成。





书房与客厅同处于一个横厅空间内,将中式的意蕴和现代的简约择善而取,营造出宁静的空间意境,光影的饱满、情感的充盈,使得室内虚实相生。







餐厅则是中式形式与每日三餐相结合,采用开放交融式设计,通过门洞、镂空隔断、采光玻璃等打通餐厅的三面墙,让厨房、客厅、楼梯、电梯之间连通,提升空间开阔度,也是对现代生活方式的回归与重塑。
餐厅选用棕色的圆形餐桌,圆形能聚拢人气,代表着一家人团圆亲密,再搭配干净清爽的中式风格餐边柜和造型时尚的金属灯,给餐厅添了一份温馨与精致。











为了照顾到年轻一代的新审美,次卧为现代美式,着重在家具取材方面凸显美式的质感,突出个性化,清新爽朗显得空间更有活力和朝气,在空间的特征中就能传达居者的品味。






墙地砖带有天然石材的纹理与通透的光泽,简洁的卫浴空间无论是镜面、台盆、置物架还是坐便器都十分舒爽,现代感十足。










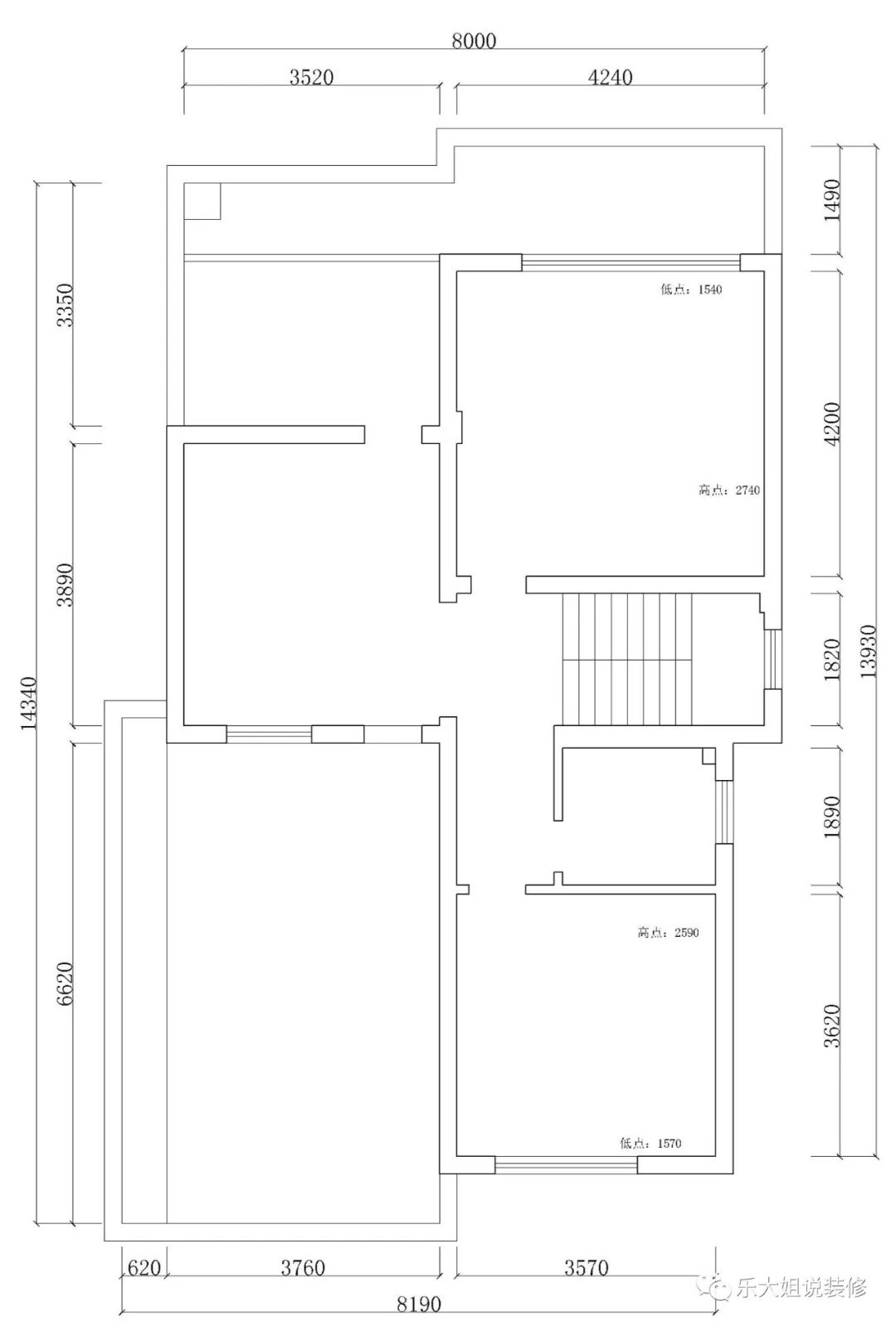
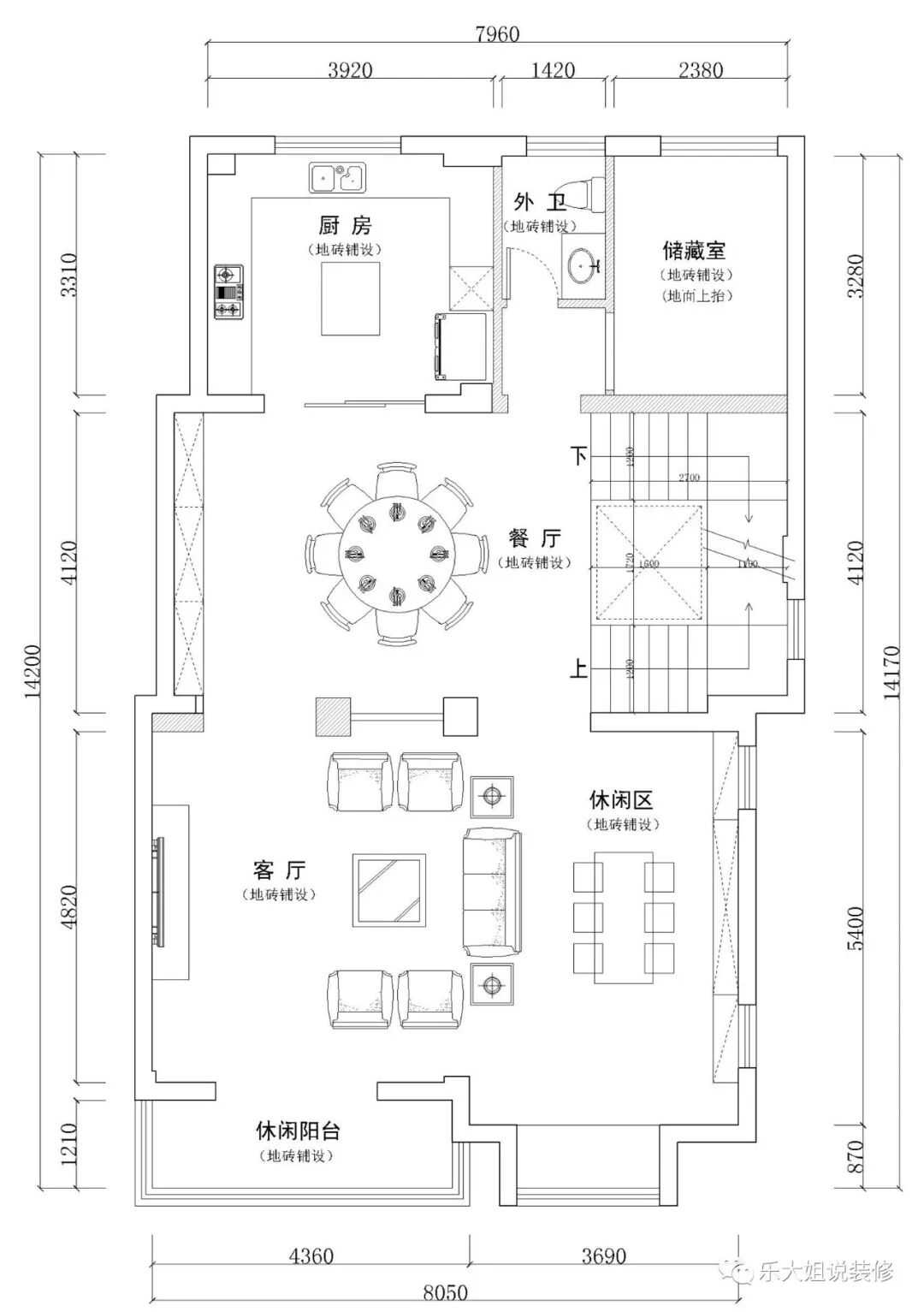
四楼改造后户型图
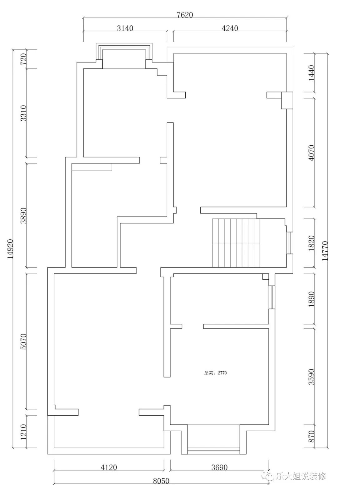
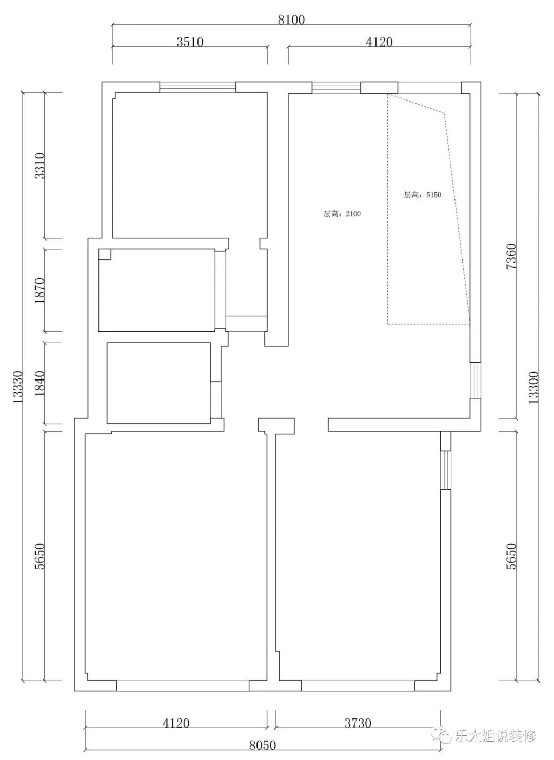
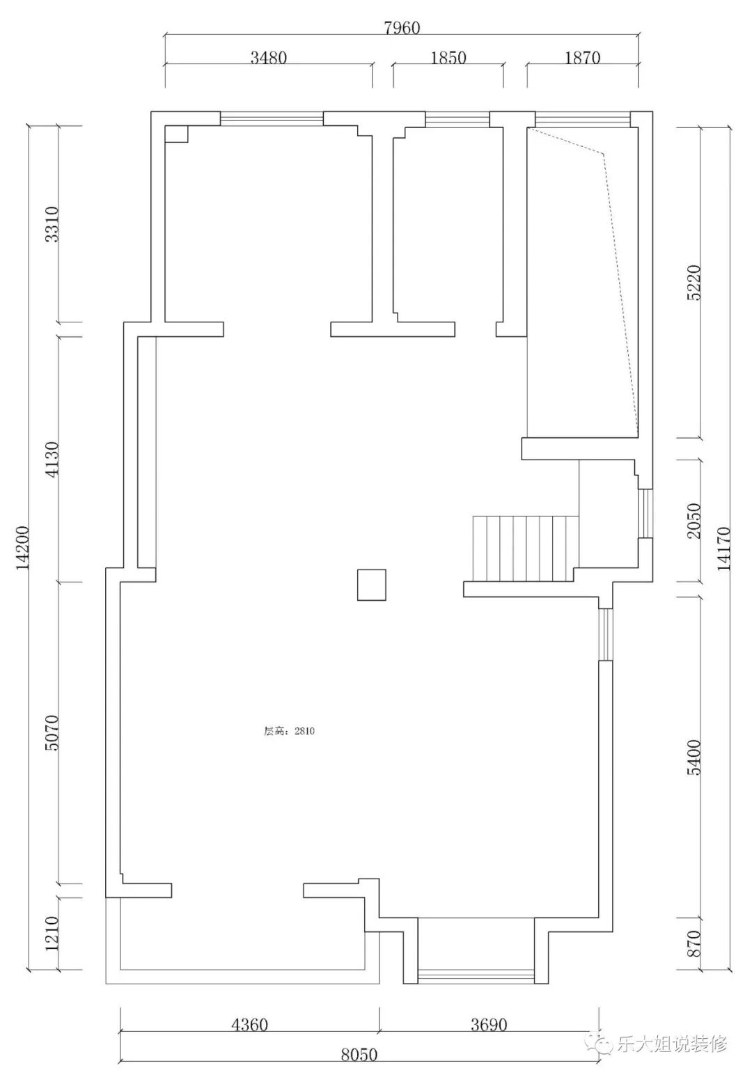
本案是独栋别墅,总共四层,没有地下室,入户门位于一层,原始结构比较合理,采光通风良好,所以并没有过多改动;
原始户型中入户门厅的吊顶空间是挑高的,跟旁边的顶面之间存在一个比较大的高低差,所以乐大姐团队设计师选用弧形来处理两者之间直角,从而在视觉上减弱了直角所带来的不适感,同时也呼应了门厅的圆形吊顶以及门套背景的圆形装饰画;
原始户型中开放式书房背景处只有一扇窗户,不论如何布置都不是很协调,所以设计师在对称的位置处重新开了一扇窗户,用书柜装饰,从而使得整个客厅空间更对称、归整,同时也增加了采光、通风;
原始户型中客餐厅之间有一根构造柱是无法拆除的,考虑到美观性和本案的中式风格,设计师人为地加了一根构造柱;
本案原始结构是没有电梯的,业主把房子重新装修也有想加装电梯的因素,毕竟没有电梯上下楼很不方便;
本案的所有门头都比较矮,又不能拆除做超高门,为了提升空间感,选择用门头装饰板进行里外的包裹,使门洞显得高挑,与周围配色更融洽。



点击左下方“阅读原文”,即可在线免费看本案例全景图(360°)。

如果您觉得乐大姐说的内容很有价值
欢迎分享转发至您的朋友圈
让更多的朋友都能轻松装修,自在生活!
当然,您也可以添加乐大姐微信号13382100888
或扫描下方的二维码
说出您的装修难题、让乐大姐为您答疑解惑
不管您是装修完工了
还是即将装修的
或者正在装修的
乐大姐一定知无不言,言无不尽




长按二维码添加乐大姐微信号
装修不烦 大姐来谈