
乐大姐
FM104.8《家在苏州--乐大姐说装修》栏目特邀嘉宾,
赫博别墅设计创始人之一;
多次受邀成为院校家居的授课讲师;
98年至今,
为万千家庭打造幸福家居同时,也相互成为了好朋友。
任何与装修有关的问题,欢迎您添加乐大姐微信:13382100888,
乐大姐会为您做一对一解答。
在夏天,我们吃绿豆,桃,樱桃和甜瓜。在各种意义上都漫长且愉快,日子发出声响。
项目名称:吴江汾湖 湖悦天境
项目面积:165㎡
项目风格:现代简约
项目性质:全屋整装
项目状态:设计已完成
本案位于吴江汾湖,是一套中叠,属于改善型住宅,要长久自住的,业主对装修的效果和品质要求都非常高,默默关注乐大姐朋友圈近2年的时间,最终在去年12月份将设计定下了。本来准备今年3月份开工的,但是由于疫情家庭收入也或多或少受到了影响,装修资金不足,却又不愿意降低装修标准,另外业主还担心后期人工材料价格继续上调,最后跟乐大姐团队协商2021年再施工,先把设计方案做好,把材料确定下来!
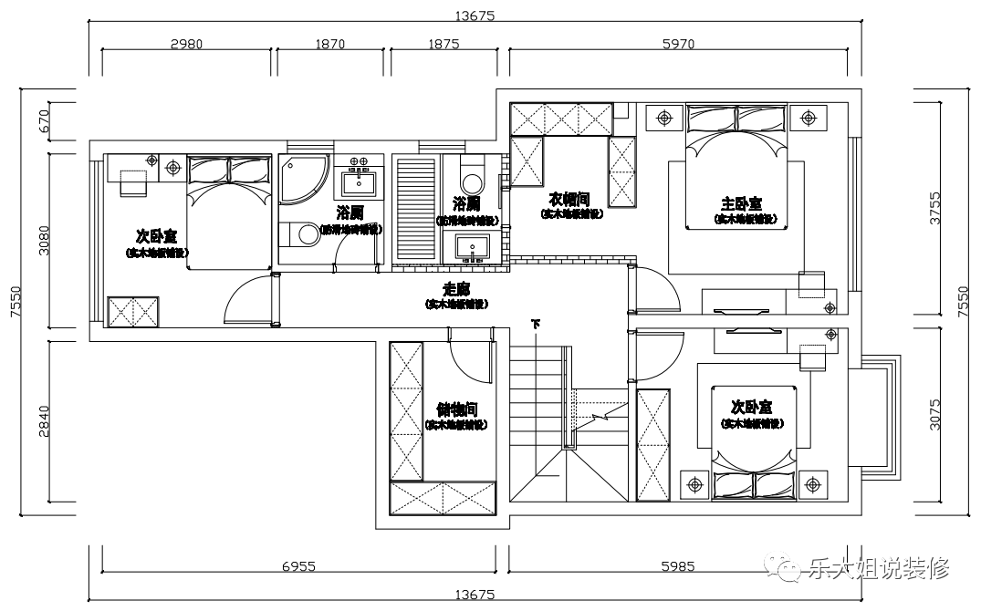
业主有两个孩子,女儿上高中了,儿子小一些。由于夫妻二人工作比较忙,需要老人来帮忙照顾孩子,所以规划了4个房间。


本案一层以活动区为主,乐大姐团队设计师通过空间规划将客餐厅、厨房、阳台、走廊等空间彼此贯穿,相互连接,整个空间无形地凝成连贯的动态流线。家人间真挚而温暖的情愫,也通过这不设限的空间弥漫整个家,温暖而美好。
空间的内置元素,也是不设限的,随意而和谐。通透而宽泛感强的楼梯连接起了门厅、客餐厅,其下的景观布置无序而又融合,一股随意的自由感扑面而来。
整个客厅以黑白灰为整体基调,软装配饰的主色选用中度灰体系,虽然看起来很不张扬,但却简约精致有品味,让人感受到主人低调随意的个性。同时植入灵动舒展的绿植、流韵溢彩的软织,再加以玻璃、布艺、天然石材等质感相异的材料进行有序的配搭,使空间色调主次分明,冷暖谐和,不是过分的渲染,却是恰到好处的点缀,身处其中,便可以感受到那份悠然自得的精致。
电视背景选用大理石+饰面板为主要材料,它美得并不张扬,却带有一种与生俱来的气场,不经意间撩拨着所有人的眼球,将时尚高雅的姿态充分表达,创造更高品质的生活体验。
当光线透过纱窗挥洒在绿植、装饰画、金属器物上,空间多了一丝艺术气质。最奢华的艺术,莫过于在平常岁月中发现最朴素直白的细节流露。

餐厅在延续空间主调的前提下,多了一丝纯粹的意蕴。精心挑选的橙色餐椅与餐桌上清丽的花儿勾起飨食的欲念,倚墙而立的餐边柜折射出静谧和乐的空间气质,空间是背景,陈设是前景,而中间则是生活本身,目光所及,春光明媚,生命美好。
空间是用来生活的,也是用来想象的。看似平常的物件,经由乐大姐团队设计师的组合搭配,便拥有最隽永的温情日常。灰白调的床头背景墙与深木色衣帽间形成平衡,比例光线、纵横线条关系简洁凝练;床品的几何元素与轻柔绵软、触手可及的质感使空间更加精尚,触及生活深处的舒适。考虑到女主人喜爱靓丽的颜色,所以主卧在保留整体灰色调的基础上,加入了相对跳跃的色彩。用家具软饰平衡整个空间,使之给予业主协调舒适的视觉感受和居住感受。金属元素的点缀让主卧不经意间透露精致浪漫气质。卫生间的高级质感与利落的线条运用搭配,实现干净且品质感极强的洗浴空间氛围。

居住环境对儿童的影响力不容小觑。在设计男孩房时,乐大姐团队设计师将舒缓身心的灰蓝色和航天元素相结合,在保持风格统一的基础上,让儿童房更富男孩子的冒险探索精神与坚韧气息。
合理运用每一平米的空间。在光撒入卧房的窗边设置了一个学习区,壁龛可放置各种玩具与装饰物,充足的采光让这一平米的空间更加舒适。
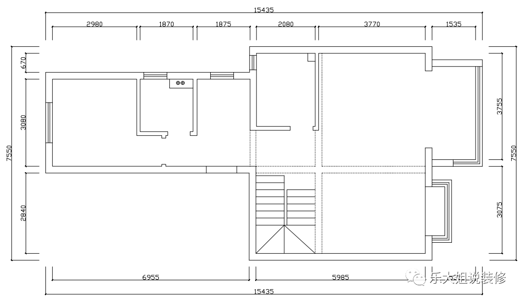
考虑到女儿已经上了高中,需要自己的独立空间,故将相对比较独立的二楼北卧室设计成女儿房。清新可爱的装饰画,灰粉的柔和配比,肌理柔和的圆毯,乐大姐团队设计师通过每一个小细节梳理出女孩的烂漫可人。当晨光射入室内,她仿若花朵新生般开启个性的一天。一楼原始户型图

一楼改造后户型图

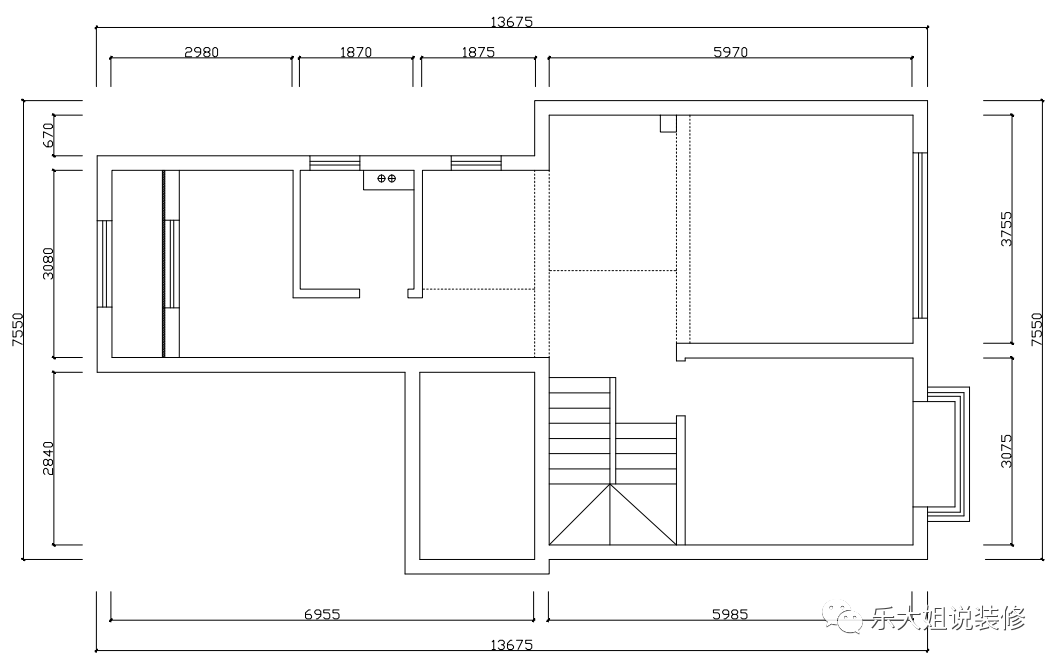
二楼原始户型图

二楼改造后户型图
- 原户型中是有独立的门厅区域的,但是在使用上过于局促,且考虑到楼下的房间是父母常住的,所以乐大姐团队设计师重新规划设计了这一块区域,将卫生间移动到门厅的位置,只留了进门鞋柜的空间,这样既增大卫生间的空间,也增大了父母房间的空间,更加舒适;
- 原户型中厨房的门在走廊上,不仅不利于采光,且厨房与其他区域之间的动线也不是最优的,故设计师将厨房的门改动至餐厅边上,这样不仅增大了采光,更形成了连体型餐厅,方便日常起居生活和厨房操作;
- 因原户型中只有3个房间,而家中日常居住需要4个房间,为了满足业主一家的居住需求,设计师将原户型中6米挑高的客厅现浇成房间使用;
- 考虑到业主需要大量的储物空间及其生活习惯,设计师利用现浇形成的主卧空间与二楼北卧室之间的过道空间设计了衣帽间和主卫,并将衣帽间一侧的衣柜门朝向主卧,这样既增加了装饰性也方便业主日常使用;
- 为了增加女儿房的空间感,将原始户型中二楼北卧室北侧赠送的小阳台纳入到房间。
点击左下方“阅读原文”,即可在线免费看本案例全景图(360°)。

如果您觉得乐大姐说的内容很有价值
欢迎分享转发至您的朋友圈
让更多的朋友都能轻松装修,自在生活!
当然,您也可以添加乐大姐微信号13382100888
或扫描下方的二维码
说出您的装修难题、让乐大姐为您答疑解惑
不管您是装修完工了
还是即将装修的
或者正在装修的
乐大姐一定知无不言,言无不尽