
乐大姐
FM104.8《家在苏州--乐大姐说装修》栏目特邀嘉宾,
赫博别墅设计创始人之一;
多次受邀成为院校家居的授课讲师;
98年至今,
为万千家庭打造幸福家居同时,也相互成为了好朋友。
任何与装修有关的问题,欢迎您添加乐大姐微信:13382100888,
乐大姐会为您做一对一解答。

遇·见
项目名称:合润御府
项目面积:486㎡
项目风格:现代中式
项目性质:全屋整装
项目状态:正在施工
本案是改善型住宅,一套3层的独栋别墅,男业主之前已经装修过3套房子了,仍然觉得自己在这方面不太专业,专业的事情还是要交给专业的人来做,而且工作非常忙,根本顾不上装修,又怕这么大的项目老婆操心太辛苦,经过多方考察最终选择了乐大姐团队!和之前分享的几套合润御府不同的是,业主虽然也喜欢中式的意蕴与禅意,但不喜欢家中氛围过于厚重,希望现代元素更多些,注重居住的舒适性与美观度。

入户玄关以开放包容的立意 ,将东方意境的飘逸神韵与现代的简朴放松进行统一的表达,恰到好处地实现了储藏和展示的双重功能。蕴含生命的张力,唤醒内心深处的依恋与回归。
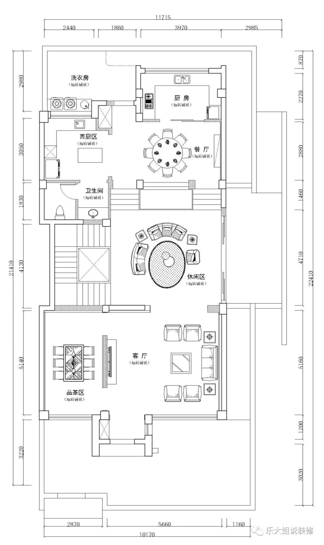
整个空间以现代手法与东方意美的糅合相衬,乐大姐团队设计师通过“取景布景与立象立意”的设计手法在静态的空间里做意韵,以唯美的传统去碰撞当代的简约格调,让人在东方的韵味中找寻更多现代生活的雅趣。客厅秉持优雅浅淡的基调,摒弃了繁冗复杂的色调与修饰,以开放式的设计和删繁去简的手法将自然引入空间意境,勾勒出场区域的大气之感。
现代形制的家具陈设糅合中式绵绵古意,贯穿于空间的景致中,将俊雅幽然的氛围无声渲染。安静的材质、禅韵悠悠,大道至简的陈设理念,将简与雅做到了极致,抒写着久违的东方情怀。墙上的梅花造型珐琅画寥寥几笔意境横生,而精致的中式茶具、现代风格的摆件、流露着时光痕迹的中式花样纹理,空间内这些错落有序摆放的小品,都透着日常的味道,细腻而温柔。

电视墙顶部的灯光层叠变化,让大理石的质感在低调中透出精致与奢华,与现代轻奢风的电视柜搭配得相得益彰。侧面透过玻璃门视觉延伸到庭院,光影的渲染又给空间注入了力量和生命灵性。
因本案定义为现代中式,故材料选用上更偏向现代化,线条的设计会更加精致。传统实木门套容易变形,且尺寸相对固定。不锈钢门套刚好可以解决这个问题,宽度可以自由定制,高度不受层高限制,且能很好地体现现代元素。灵活的布局让会客空间与茶室共处一域,增强了会客的功能与实用需求。写意的花鸟书画背景,气质恬淡优雅。室内空间与户外庭院由内而外地层次衔接,一处茶席,几张木椅,约上二三知己,在茶香浮动中聊天说笑。
一层的中间庭院内扩为休闲区后,采取了开放式的落地窗设计,从内到外,由表及里打破区隔,让空间与自然无缝融合。当每缕光线洋洋洒洒照落在室内,每一个角落都仿佛重生,每一口呼吸都拥有新鲜的味道。营造基调中选用灰色系的各式材质,以及在整体色调里保留同色系明暗度和对比度的选取,舒适在此处因柔和的利落而加倍放大,合着暗红色的人形沙发、自然惬意的外庭院环境,流露着在闲暇时所能体及的通透感。


在这里,阳光萦绕,三五亲朋至友,一杯咖啡,一杯茶,一首音乐,足以驻留一天的时间。
随着深入,乐大姐团队设计师在一层外扩和错层设计的基础上采用游园手法,景观内做,一步一景,餐厅和起居室的分割不会显得生硬,且餐厅也通过借景的手法,使得景观两面通用。面与面交叠产生的空间立体感,在光线的渲染下,产生特定的节奏和韵律,形散却意聚、暧昧却有力,渗透出写意之感,视觉惊艳。

一幅描绘着丰收福禄一景(葫芦、南瓜等)的重彩画,将中式风格的特征注入,与金属、大理石、皮质、柳钉等现代材质加以融合,打造出更贴切当下审美风格的就餐空间,格调更显高雅端妍。因房子的单层面积较大,空间改造后使用功能区变大,中西厨完全独立开,分工明确,操作便捷,且西厨为开放式,拥有中岛台,彰显了别墅大宅的豪气与格局。

主卧的设计由外至内层层剥离外界繁杂,开启充满仪式感的个人私享时光。穿过楼梯和过道,步入式衣帽间、卫生间、休闲区、卧室依次串联,合理的动线牵引,使各功能区域既独立且联通,在这里,有私享,亦有交流;有独立,亦有融合;有温暖,亦有浪漫。整个二楼的地面层全部铺贴实木多层地板,地板的选用打破常规规格,选用较现代的鱼骨拼地板,颜色也是搭配的原木色系,现代材料的运用和传统中式风格的碰撞,再点缀一些轻奢家具,使中式不再有传统的沉闷,使现代流行具有内涵。


设计师将真正的尊享藏于每个细节,青竹工笔画,宁静而高雅;梯形挑高吊顶,空间感更强;浅灰与深蓝色床品,闲适细腻,姜黄色的点缀,明亮而柔软,也进一步映射出东方气息与现代生活品质。
主卫按照星级酒店的标准来规划和设计,淋浴和浴缸的功能同时具备,如厕区、淋浴区分别为独立区,布置归整,使用便捷。
黑白灰系的色调,恰到好处的优雅质感,瓶艺杯盏,俯拾即是,温馨生动。
浴缸布置在视野较好的区域,180°顶层全景,犹如一轮明月,悬浮在空中,沐浴其中,可以同时放松心情。






点击左下方“阅读原文”,即可在线免费看本案例全景图(360°)。https://vr.justeasy.cn/view/1589rn9720r587g8.html?from=timeline
如果您觉得乐大姐说的内容很有价值
欢迎分享转发至您的朋友圈
让更多的朋友都能轻松装修,自在生活!
当然,您也可以添加乐大姐微信号13382100888
或扫描下方的二维码
说出您的装修难题、让乐大姐为您答疑解惑
不管您是装修完工了
还是即将装修的
或者正在装修的
乐大姐一定知无不言,言无不尽