发布时间:2020-09-15

乐大姐
FM104.8《家在苏州--乐大姐说装修》栏目特邀嘉宾,
赫博别墅设计创始人之一;
多次受邀成为院校家居的授课讲师;
98年至今,
为万千家庭打造幸福家居同时,也相互成为了好朋友。
任何与装修有关的问题,欢迎您添加乐大姐微信:13382100888,
乐大姐会为您做一对一解答。

项目地点 / 依云水岸(中叠)
项目面积 / 214㎡
项目风格 / 现代风格
项目性质 / 全屋整装
项目状态 / 正在施工
—


本案是业主十二年前买的房子,一直处于空关的状态。业主一家之前一直住在市区,周边环境相比依云水岸比较闹,业主就想晚年有个安逸一些的环境,过上慢节奏的生活,再加上女儿(已经成家了且有了自己的宝宝)非常希望父母改善一下居住环境,所以经过商量最终决定把依云水岸的房子作为养老用。
业主夫妻两都是资深财务,几乎做了一辈子财务工作。之前他们已经经历过6次装修了,这套房子之所以迟迟不装修也是因为装怕了,特别是有一次装修男业主操心操到生病!所以这一次经过多方考察最终选择了能让他们省心省力的乐大姐团队!设计上,业主希望新颖、年轻化,一再强调不要常规的设计,所以这套“从20岁到70岁都喜欢”的设计也非常地得业主的青睐与欢心!

玄关
Porch


金属材质的玄关壁灯和现代风格的挂画变幻出时尚摩登的家的初印象,皮质布艺靠椅静置玄关与客厅交界的一角,舒适悠闲,搭配黑色水磨石茶几,无论是与家人休闲放松还是与友人言笑晏晏,都无疑是一个绝佳场所。

客厅
Living room


简约风格要求严格,追求完美的比例感。你会发现这里没有过多的装饰,但空间中的每一个元素都是经过慎重选择和思考的,从而创造出宁静舒适的整体感受。
客厅的焦点是内嵌式的电视背景墙,电子壁炉+岩板+原木色的饰面板三种材质的拼接设计,带有一种与生俱来的气场,不经意间撩拨着所有人的眼球,将时尚高雅的姿态充分表达,创造更高品质的生活体验。


沙发背景保持了现代风格中的理性特质,以清爽的灰蓝为基调,搭配线条干净利落的端景与造型时尚的现代风挂画,在不对称中把握空间的尺度,给客厅添了一份温馨与精致。





餐厅+厨房
Dining room+Kitchen



主卧
Bedroom


一楼主卧是为业主夫妻两养老准备的,将简约与高级化身为一种低调的奢华,平静不失深刻,让卧室历久弥新。




四季皆宜的灰白、原木色空间褪去缤纷色彩,只保留一抹姜黄色,惊艳时光。

卫生间
Bathroom



简洁的卫浴空间,以清爽的大理石砖大面积铺贴,无论是墙砖还是地砖都泛着通透的光泽,镜面、台盆、坐便器,现代感十足。壁龛、台盆柜的设计,最大化地满足了业主对收纳的需求,加入灯带让卫浴空间更具格调。

主卧
Bedroom


二楼主卧是给女儿准备的,包含休闲阳台、卫生间、衣柜、梳妆台等,其流畅的居住动线,极大满足了居者对空间的要求,如此简单纯粹的居住印象深入人心。
女儿房一改整体白灰色、原木色的空间色调,以雾霾蓝为主色调,像蓝色的海水,滴在向往的生活里,在这里像诗一样地生活。大面积的地毯为踏入房门的居住者带去柔软的触感,城市带来的疲惫和压力随之化云烟消散。





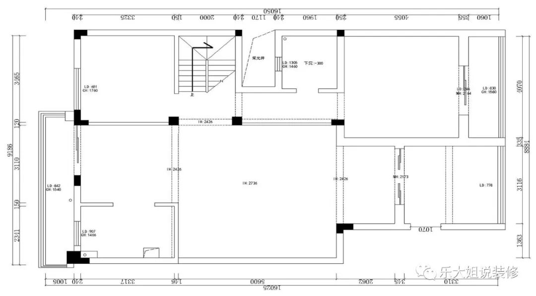
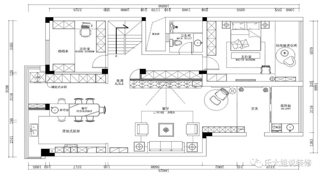
户型图
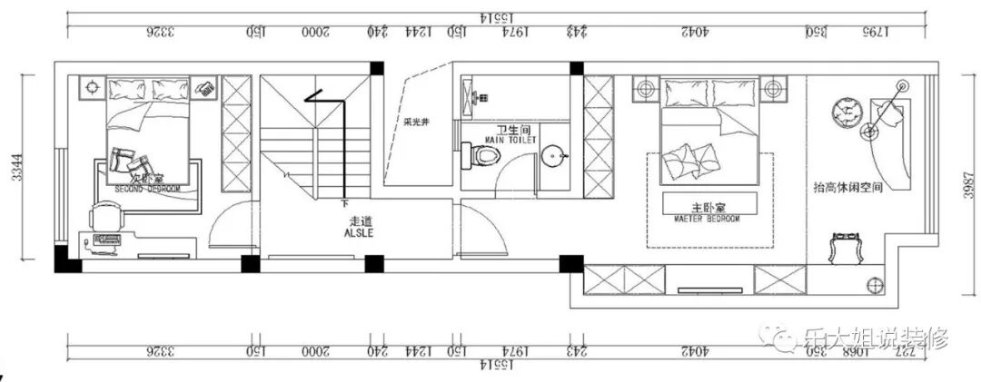
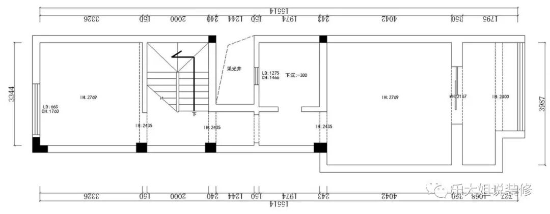
Plan

一楼原始户型图

一楼改造后户型图

二楼原始户型图

二楼改造后户型图
本案是业主的养老用房,是按长期居住的要求去规划设计的。原始户型中一楼的进户玄关比较浪费空间,经过改造把进户的一部分空间规划给了生活阳台,一部分给了室内的活动空间兼玄关,这样一来既满足了空间的合理规划,又增加了空间的使用性;
原始户型中进户的地面跟客厅地面之间(即改造后的生活阳台与客厅活动区域)有二十几公分的落差,由于是结构平台无法改动,所以乐大姐团队设计师采用了大理石下挂的灯槽设计,这样不仅视觉上不会显得突兀,而且晚上进出门都有灯光的衬托,也增加了安全性;
原始户型中的厨房面积很小,仅能容下一个人在里面操作,而业主本身对生活品质要求比较高,且女儿有在国外留学的经历,比较喜欢西式厨房,所以设计师将原有的北阳台内扩进厨房空间,再在原来的东面墙一侧做了一排高柜+蒸烤箱+嵌入式冰箱,大大地增加了美观度和使用性;
客厅区域中央空调常规的做法是采取下出下回的做法,但因本案的客厅沙发区域跨度很长,以致于做中央空调会有很长的回风口在头顶,既不美观又会出现冷凝水下落的情况。所以,设计师采用侧出侧回的设计,这样既增加了美观,又不会出现冷凝水的下落问题,且因沙发背景墙足够长,制冷制暖效果也不必担心;
二楼以睡眠空间为主——一个儿童房+一个主卧套房,儿童房需要一个独立的学习空间,主卧做成了套房的规划,这样可以增加主卧室的私密性。

全景图
Panorama


如果您觉得乐大姐说的内容很有价值
欢迎分享转发至您的朋友圈
让更多的朋友都能轻松装修,自在生活!
当然,您也可以添加乐大姐微信号13382100888
或扫描下方的二维码
说出您的装修难题、让乐大姐为您答疑解惑
不管您是装修完工了
还是即将装修的
或者正在装修的
乐大姐一定知无不言,言无不尽




长按二维码添加乐大姐微信号
装修不烦 大姐来谈