发布时间:2020-09-15

乐大姐
FM104.8《家在苏州--乐大姐说装修》栏目特邀嘉宾,
赫博别墅设计创始人之一;
多次受邀成为院校家居的授课讲师;
98年至今,
为万千家庭打造幸福家居同时,也相互成为了好朋友。
任何与装修有关的问题,欢迎您添加乐大姐微信:13382100888,
乐大姐会为您做一对一解答。


项目信息
业主需求












主卧是脏粉色与高级灰的结合,石膏线条在高级灰的衬托下更加精致温柔。两侧的轻奢风灯具、细腻的软装搭配,更是在优雅的空间气质中增添些许时尚现代气息。





主卧室的卫生间配套十分完善,白色的洗漱台,深蓝色的台盆柜,独立的淋浴与坐便空间,无一不是品质生活的写照。另一个亮点是圆形的梳妆镜和镜子上方的个性照明灯具,让室内看起来更宽敞。


进入次卧,设计师以最纯粹的线条来回应人们对空间环境的感性需求。墨绿色给人营造一种高贵的视觉享受,时尚清爽的同时提升整体的气质。布纹墙面配合柔和的光线,令空间柔软而优雅。








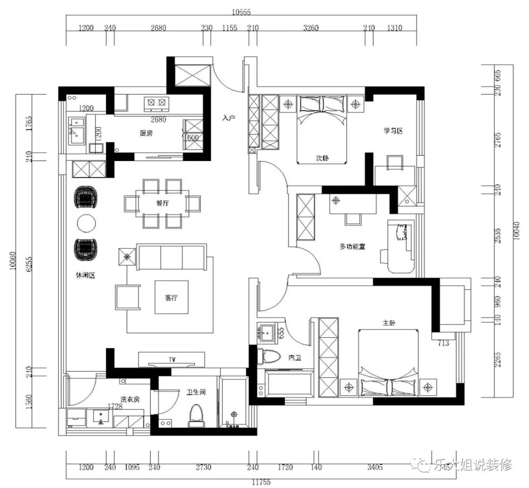
改造后户型图
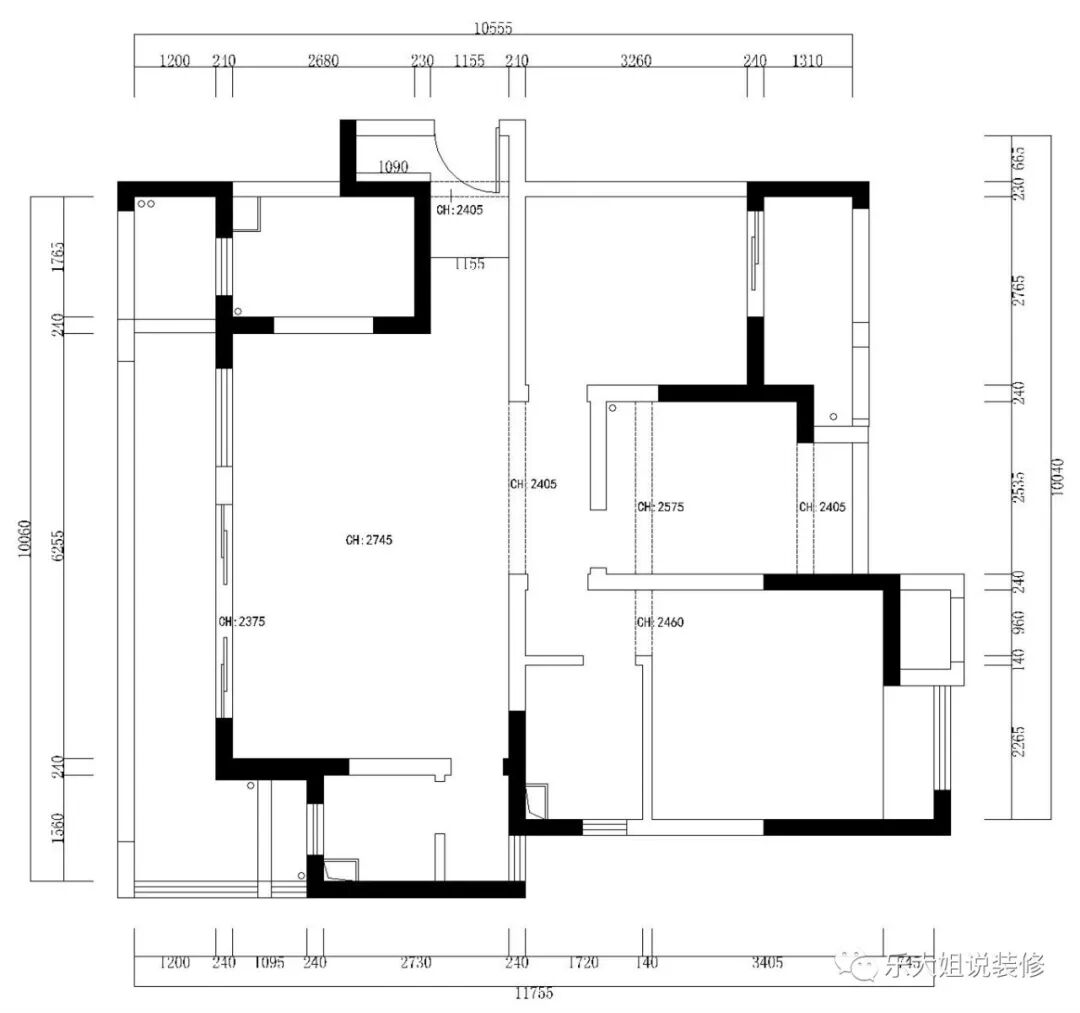
本案的原始结构比较合理,户型方正,所以并没有过多改动;
原始户型中主卧有一个内置的飘窗台,因睡眠空间比较小考虑到后期的居住感受将其敲掉以拓宽主卧空间;
因原始户型中主卧内置飘窗台对应的顶部上方还有一条梁,这条梁的存在导致床的位置和顶不能相呼应,所以乐大姐团队设计师采用装饰线角及线条来划分了床背景的主次,同时结合顶面造型,运用吊灯与台灯的装饰对比和装饰画的不对称挂法,从整体上平衡空间的结构,虽看似不对称,却又有规则可循。

https://vr.justeasy.cn/view/159180705hky3840.html?from=timeline

如果您觉得乐大姐说的内容很有价值
欢迎分享转发至您的朋友圈
让更多的朋友都能轻松装修,自在生活!
当然,您也可以添加乐大姐微信号13382100888
或扫描下方的二维码
说出您的装修难题、让乐大姐为您答疑解惑
不管您是装修完工了
还是即将装修的
或者正在装修的
乐大姐一定知无不言,言无不尽




长按二维码添加乐大姐微信号
装修不烦 大姐来谈