发布时间:2020-09-15

乐大姐
FM104.8《家在苏州--乐大姐说装修》栏目特邀嘉宾,
赫博别墅设计创始人之一;
多次受邀成为院校家居的授课讲师;
98年至今,
为万千家庭打造幸福家居同时,也相互成为了好朋友。
任何与装修有关的问题,欢迎您添加乐大姐微信:13382100888,
乐大姐会为您做一对一解答。


意蕴
择其所爱,爱其所择。前四个字是前半生,后四个字,便是余下的岁月了。
——马家辉
本案是一套改善型住宅,常住人口是业主夫妻两和父母,儿子正在上大学,偶尔会过来住,所以对房间要求没有很多,业主夫妻都喜欢宽敞明亮的居住空间,喜欢中式风格的底蕴,又不希望过于沉闷。
业主拿房有一段时间了,不过因之前有过两次不愉快的装修经历,加上男业主工作比较忙,没有时间管装修,所以这套房子女业主一直没有勇气装修!后来经朋友推荐,选择了乐大姐团队,最终设计效果出来业主夫妻两都十分喜欢,且经过一段时间设计、施工的对接后,业主还将乐大姐团队推荐给了他的朋友!

Living Room
客厅



乐大姐团队设计师以现代理念续写东方之意,突出优雅而低调的东方式奢华,诉说高雅品位的生活方式,陈设不过于浮夸,纯粹的色彩搭配光影的变化,婉约别致。
玄关是整个空间至关重要的部分,主人宾客由此进入,这里也是“净化”感官的第一线。设计师巧妙地利用进户门正对的那一堵墙,在其上用大理石材质制作了一个浓郁有致的内嵌式山水画,进门即见山见水,不仅加强了空间感,也让人不自觉心静神定,闲适安逸下来。



客厅整体氛围呈现以灰色、白色、原木为主,大块明窗映衬墙面,引景入室,再在不经意处点缀几抹翠绿,拥抱自然的纯粹与归属。改造后开放式的横厅设计,开阔了空间视野。大理石材质电视背景墙隐有“巍巍群山耸入云霄”的水墨写意之感,气势磅礴。
座椅、瓷具、书卷等在形制上采用古雅今情的表达,白色古雅造型的沙发搭配方正古味的茶几,再在沉稳的环境中以黑色金属线条做点缀,又增添了视觉上的一抹惊艳。





吊顶与地面的金属/黑色线条组合,以直线递增了层次感,拉伸了空间的纵深感。
落地窗一角的玉石摆件,仿佛让人由建筑的小空间走入宇宙的大空间,意境深远,可见一斑。

Dining Room
餐厅





Bar
吧台


餐桌和吧台的结合形式,除了满足日常就餐,更增加了生活的仪式感。和家人一起在这里准备点心、美食、聊天、分享趣事,这幸福的味道,大概就是“人间烟火气,最抚凡人心”了吧。



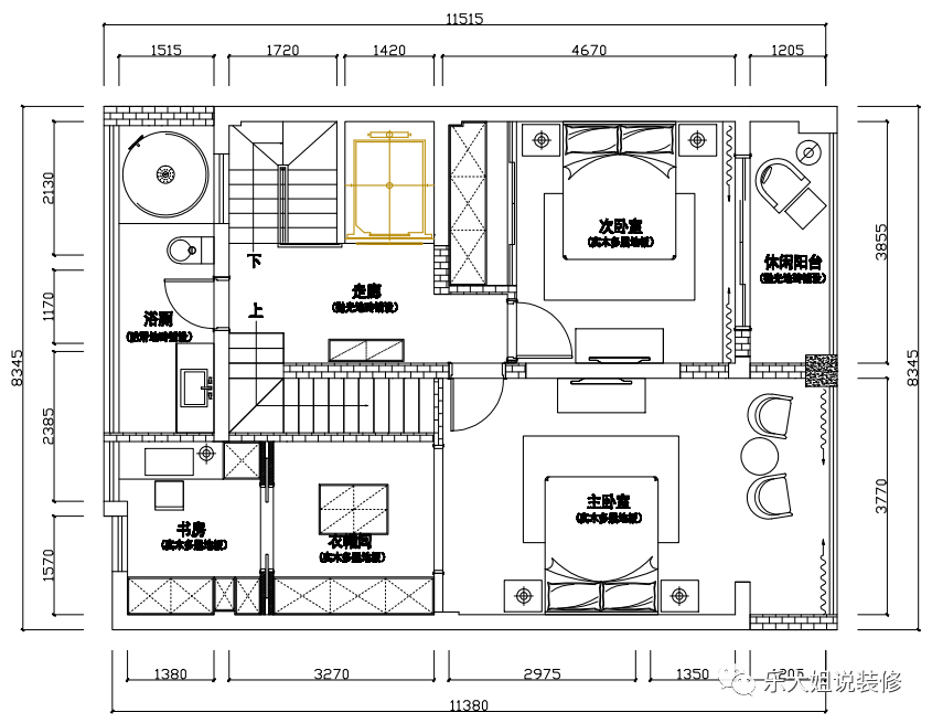
Master room on the second floor
二楼主卧




二楼卧室是业主夫妻两的睡眠之所,所以乐大姐团队设计师将南北房间和中间的过道全部作为卧室部分,以增加整体的空间感。另外,考虑到采光问题,衣帽间采用敞开式的设计。
考量充分的美学性,细微的闲情逸趣被写入床头内,以自然大气的米白色作为底色,清雅山水画卷背景调和其中,清隽别致间,渲染大隐于市的栖居生活。


此中若有眠,枕的应是月,盖的是满天星尘。

Second room on the second floor
二楼次卧







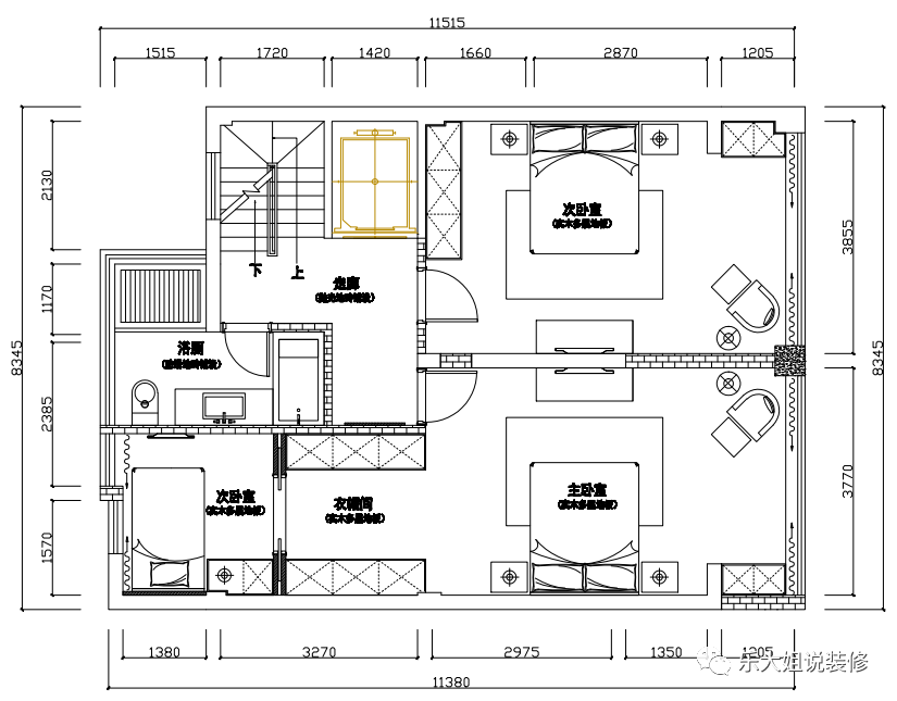
Master room on the third floor
三楼主卧







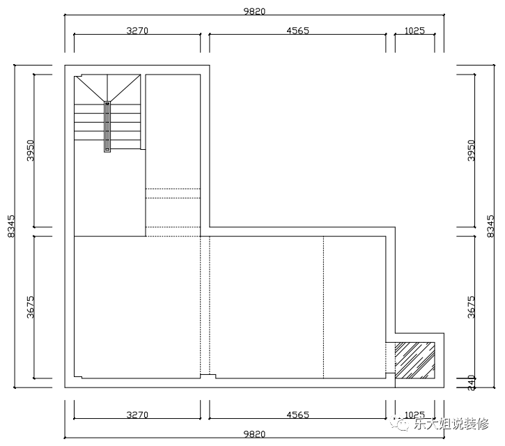
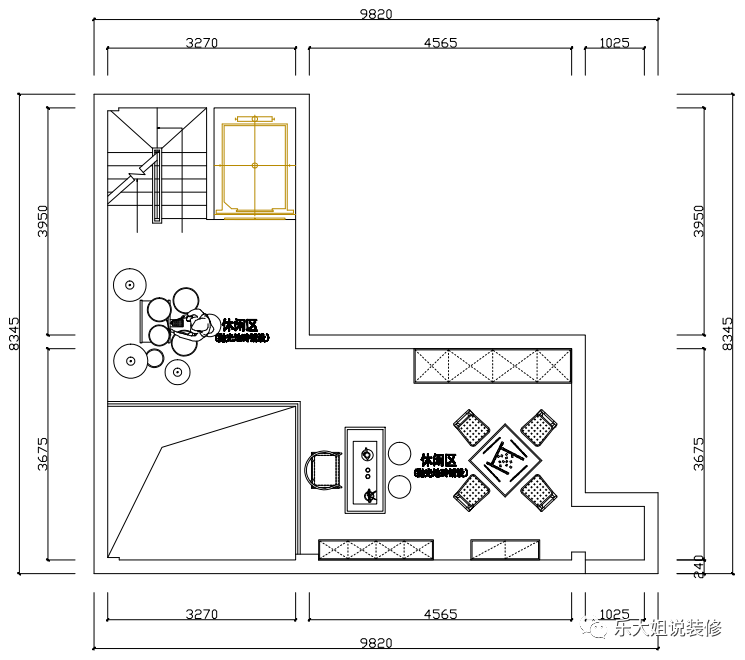
Basement
地下室


地下层是承载着家庭互动、社交活动等主要功能性的空间,乐大姐团队设计师根据成员的生活形态规划动线,体现多元诉求和轻松自由的生活。以大尺度的茶室为轴心,棋牌社、音乐区等,昭示着主人兴趣爱好及生活品质,自由多元的功能要求得以满足。



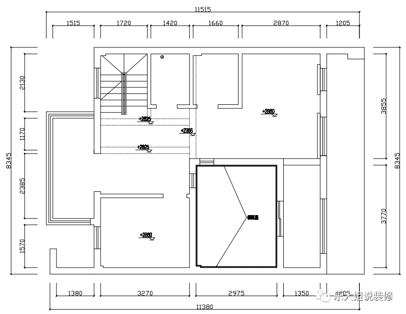
Flat Plan
平面方案












Panorama
全景图


https://vr.justeasy.cn/view/s159imp25z356014.html?from=timeline

如果您觉得乐大姐说的内容很有价值
欢迎分享转发至您的朋友圈
让更多的朋友都能轻松装修,自在生活!
当然,您也可以添加乐大姐微信号13382100888
或扫描下方的二维码
说出您的装修难题、让乐大姐为您答疑解惑
不管您是装修完工了
还是即将装修的
或者正在装修的
乐大姐一定知无不言,言无不尽




长按二维码添加乐大姐微信号
装修不烦 大姐来谈