发布时间:2022-03-07
乐大姐
FM104.8《家在苏州--乐大姐说装修》栏目特邀嘉宾,
赫博别墅设计创始人之一;
多次受邀成为院校家居的授课讲师;
98年至今,
为万千家庭打造幸福家居同时,也相互成为了好朋友。
任何与装修有关的问题,欢迎您添加乐大姐微信:13382103377,
乐大姐会为您做一对一解答。

从一间房子变成一个“家”
这过程需要付出很多的心血,
开工仪式还历历在目,
样板房拍摄已如期而至,
这不仅仅代表着一份成果,
更代表着
完成业主梦想中家的承诺,
有始有终才算圆满!
Feb. 10
2022
+
by: 乐大姐团队原创
/
实景赏析
看别人的家 装自己的生活
项目地点:花语江南
项目面积:198㎡
项目风格:经典美式
项目性质:全屋整装
项目状态:已交付
本案虽然是一套198㎡的大平层,但它整体的装修风格却是平层里非常少见的“大美风格”,不仅仅因为平层的层高往往有限,做大美风格可能会压抑,也因为很少会有年轻人喜欢这种传统美式,那么198㎡大平层打造成的经典美式婚房到底是什么样子的呢?今天就跟乐大姐一起来看竣工现场吧~
现在请横屏来看哦~
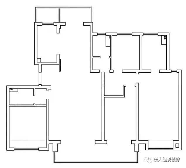
平面方案
原始户型图
改造后户型图
设计全景图
点击左下方“阅读原文”,即可在线免费看本案例全景图(360°)。
/
业主说
本案是套精装修房,父母买来给儿子做婚房用的,但是精装标准比较低,只是简单的刷刷墙、铺铺地砖,为了让儿子有更好的居住环境,父母最终还是考虑全部拆除掉。
▲ 乐大姐正在拍摄苏州电视台《第一时间》解析样板房装修知识点
谈到装修最终的效果,业主表示“这次装修幸亏听老婆跟儿子的建议选择了你们乐大姐团队,因为我们一家人都是从事财务金融工作的(现在包括儿媳妇,儿子刚刚结婚),做事情属于特别细致的那种,比如这次装修家里购买的每一样东西我们几乎都看了三次以上才确定要不要购买的,要求比较高,但是乐大姐团队给我们服务的每一个项目人员对我们的需要从来都是非常有耐心的,不厌其烦的,过程也非常用心,最终装修出来的效果我们非常满意!”
▲ 乐大姐正在拍摄苏州电视台《第一时间》解析样板房装修知识点
在聊天的过程中,董先生还提到一个小细节,他说“我是一个非常守时的人,约好的时间我一定会准时到的,这次乐大姐团队的工程经理凌经理在整个装修过程中约见面时一次都没有迟到过,这一点我要给你们点赞!因为现在市场上工程经理的素养参差不齐,像这么讲守时的很少!”
▲ 竣工验收单上业主的评语
本案装修竣工验收的时间是2021年的10月17日,本来乐大姐团队是准备10月底拍摄样板房的,但因董先生的儿子儿媳10月底就要在这套房子里举办了婚礼(即10月底就正式入住了),加上苏州本地的一些风俗习惯“要等小夫妻俩新婚满月才能拍摄”,所以最终照片拍摄和苏州电视台《第一时间》的样板房拍摄是分开进行的!大家看婚房拍摄现场的同时,也可以看下时隔两个月的样板房拍摄花絮哦(*╹▽╹*)
▲ 花语江南业主两口子还给乐大姐团队带了儿子结婚的喜糖
长按二维码添加乐大姐微信号
装修不烦 大姐来谈