发布时间:2022-03-07
乐大姐
FM104.8《家在苏州--乐大姐说装修》栏目特邀嘉宾,
赫博别墅设计创始人之一;
多次受邀成为院校家居的授课讲师;
98年至今,
为万千家庭打造幸福家居同时,也相互成为了好朋友。
任何与装修有关的问题,欢迎您添加乐大姐微信:13382103377,
乐大姐会为您做一对一解答。

每一个房子都在记录一个故事
/
实景赏析
看别人的家 装自己的生活
项目地点:昆山绿地21世纪
项目面积:516㎡
项目风格:简约欧式
项目性质:全屋整装
项目状态:已交付
欧式,作为别墅代表性风格,在家居空间的氛围营造上,几十年来一直被奉为经典。不过,本案业主虽然喜欢欧式的豪华感,但又觉得传统的欧式过于浮夸,那么,如何设计才能让家既奢华典雅,又没有那种因“华丽的冷漠”而产生的距离感呢?今天就跟乐大姐一起来欣赏下这套458㎡简约欧式联排别墅完整的竣工现场吧~
现在请横屏来看哦~
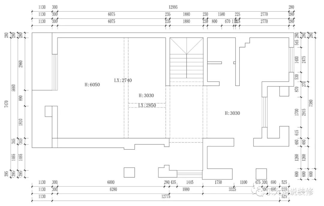
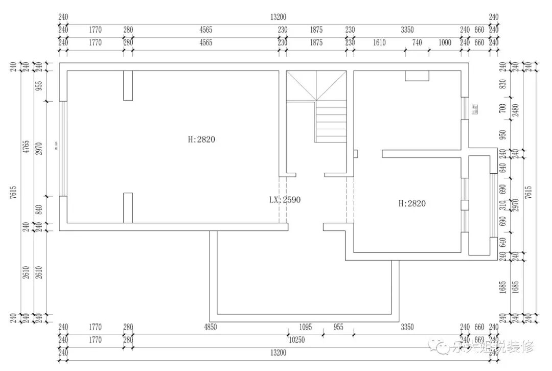
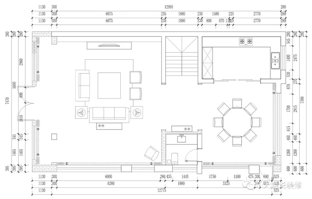
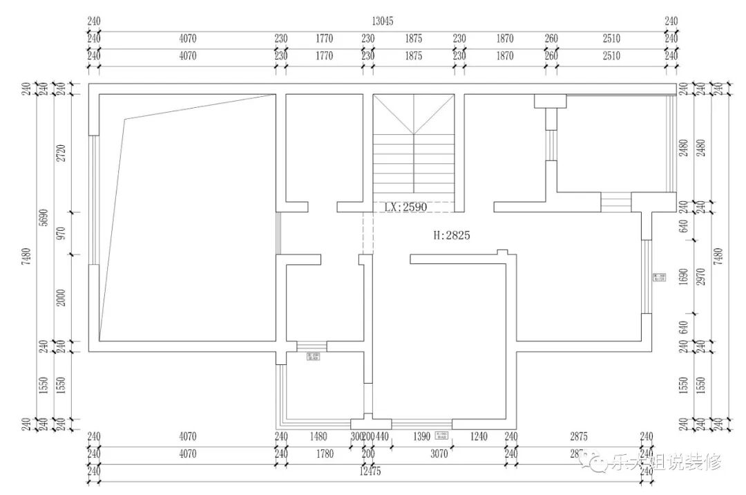
平面方案
地下室原始户型图
地下室改造后户型图
一楼原始户型图
一楼改造后户型图
二楼原始户型图
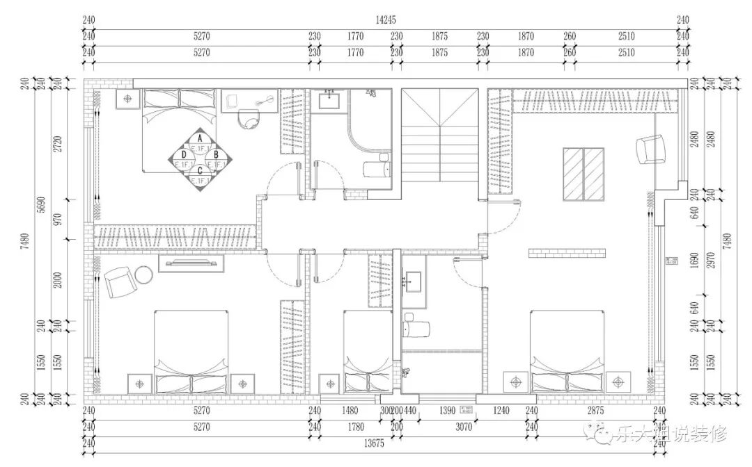
二楼改造后户型图
三楼原始户型图
三楼改造后户型图
设计全景图
点击左下方“阅读原文”,即可在线免费看本案例全景图(360°)。
https://vr.justeasy.cn/view/8331752-1603584957.html?from=timeline
/
业主说
本案是套改善性住宅,位于昆山,业主买这套房子已经好几年了,但是因夫妻两工作非常忙,一直没时间弄装修的事情。再加上他们之前自己也装修过两套平层的房子,对于装修的繁琐深有体会,而这套别墅他们是准备一家人长久住的,非常看重设计效果及施工品质,对装修团队的选择非常慎重!现在装修已完工,夫妻两对效果非常满意!
▲ 昆山绿地21世纪业主设宴宴请乐大姐团队贺竣工之喜
竣工酒现场,业主两口子跟乐大姐团队无所不谈,聊孩子、聊父母、聊装修、聊两口子从谈恋爱到现在的过程,等等,犹如多年不见的老朋友一样!沟通中女业主说:“我们家装修期间我已经介绍两个朋友去找你们乐大姐团队了,以后有朋友需要装修我还是要帮你们推荐的,因为你们乐大姐团队值得信任!”
长按二维码添加乐大姐微信号
装修不烦 大姐来谈