
乐大姐
FM104.8《家在苏州--乐大姐说装修》栏目特邀嘉宾,
赫博别墅设计创始人之一;
多次受邀成为院校家居的授课讲师;
98年至今,
为万千家庭打造幸福家居同时,也相互成为了好朋友。
任何与装修有关的问题,欢迎您添加乐大姐微信:13382103377,
乐大姐会为您做一对一解答。
只感到茉莉和忍冬的香味
沉睡的鸟儿的宁静
门厅的弯拱
湿气
这些事物
也许
就是诗
本案是业主很早之前买的二手房,拿房后没有重新装修,只是添置了点家具就直接搬进去住了,住了大概十年的时间,但是在这个过程中业主觉得之前装修的格局、效果、细节与自己的审美习惯、生活习惯很不符,加上材料的使用寿命到了期限,就想彻底重新装修下!因本案业主夫妻两比较喜欢中式风格,且女业主平时有礼佛的习惯,喜欢一些禅意的陈列,所以整体定位为中式风格,不过因本案是顶楼复式户型,一层108平,二层能正常使用的只有51平,还有40平层高都不足1米,如果做传统的中式风格会显得压抑,故乐大姐团队特地为他们量身定制了这套浅色系的新中式风格,业主两口子都非常喜欢!

原装修没有什么设计感,只是家具的简单陈列,整体比较暗淡,储藏空间也不多,东西堆放得到处都是。
步入空间,静观沉思。传统与现代交融,古朴与时尚相济,共同营建出清宁澄净、古朴秀雅的空间气质美学。
整个空间删繁就简,将古典诗情画意与现代生活气息糅为一体,优雅大气的同时又不失传统文化的精髓。低调素雅的颜色搭配,只以少量亮色作为点缀。
电视背景墙采用整面的大理石上墙,伯爵白大理石的浅灰色斜纹如丝绸般划过,傲然而立,气质翩然。底部,则采用格栅与灰镜相结合的设计,配上灯带,不仅让不大的空间更具延伸感,还表现出一种古典美和现代美相互融合的新中式魅力。


设计师通过陶瓷、茶器、摆件、壁龛等富有古典韵味的物件,结合定制家居,来丰富整个空间层次,在统一格调之余又赋予新中式风格更加深层的魅力。


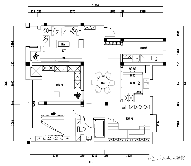
入户处,既要考虑收纳,又不能遮挡进出动线,故采用木饰面+玄关柜的设计,这样有地方挂包、挂衣服,也有地方坐着换鞋、放鞋,十分灵活。 
餐厅位于整个房子的中间位置,即各功能空间动线的交汇处,设计时不仅要考虑采光,还要将其与其他空间的关系纳入考量。
所以,设计师在餐厅与主卧衣帽间之间、餐厅与一楼外卫之间、餐厅与厨房之间,大面积采用长虹玻璃,借光的同时,也保证了各空间的隐秘性。暗稳的光感悠韵深邃、含蓄内敛。
餐厅背景墙上,一面质地不凡的银镜完好地将光影细节映射而出,通透了整个空间的视觉体验。


业主家里有一只柯基,家里人一直把他当成二宝对待,特地把其中一个卫生间改成了他的浴室,洗烘的设备都考虑在内。
在狗狗的浴室和厨房之间设计了吧台,用来放饮水机、吃早餐。

原楼梯间只有一个置物架,堆满了杂物,显得十分凌乱,设计师靠墙最大化地设计了开放式与封闭式的储物柜,满足了业主一家日常的各种收纳需求。另外,还特地留了一个空档,留给业主夫妻两放置麻将桌。楼梯间的空间打麻将也是可以的。





主卧窗明几净,宽敞舒怡。一窗、一门、一画,清简的线条与岁月相匹配,中性色调的卧房带给居者平静与安宁。春意盎然的花枝横斜在床头墙上,剩余墙面则选择同色布艺硬包,意味深远。


考虑到居住舒适性,将一楼次卧改造成衣帽间,纳入到主卧内。


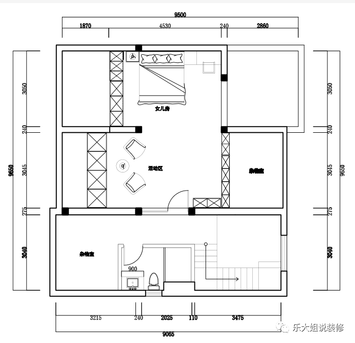
走上楼梯,便是阁楼,女儿房隐藏于此。
小姑娘正值花季,有很多的衣服、小摆件需要归置,然而原装修将空间划分为几个区,每个空间都很小,加上窗户比较少,采光差,居住舒适度很低。故乐大姐团队设计师把之前封闭的空间全部打通,重新划分功能分区,并结合斜顶,做了很多灯带,让空间看上去既通透、宽敞又温馨、时尚。

女儿房在风格上,不同于一楼的新中式,采用的是更符合小姑娘的现代风。整个空间去除多余装饰堆砌,重在细节处理,灰色墙纸搭配木质的床头背景、鱼骨拼的地板、简约的家具,丰盈了空间的内在气场。同时,靠墙设置了大面的带灯带的柜子,用来展示小姑娘收藏的盲盒。

一楼外卫通铺灰色大理石砖,营造视觉上的整体感,打造时尚优雅的卫浴空间。马桶边利用墙面设置壁龛,最大化增加收纳空间。


二层原始户型图

二层改造后户型图
- 本案除了是套老房子,还是套二手房,布局、审美方面很多地方不如业主一家人的意,所以户型改动比较多。
- 原装修中进门没有鞋柜,进出不是很方便,故设计师在进门处设置入户玄关柜,满足进出收纳的需求。
- 电视背景与阳台交界处的凹角,原装修虽然有设计一个收纳柜,但是与整体空间融合度不高,比较突兀,改造后将这块墙体深挖(非承重墙)做了一个内嵌式壁龛,并采用玻璃与木饰面做外饰,与周围环境浑然一体。
- 考虑到日常使用的便利性,通过改变原主卧内卫门的朝向将内卫改造成外卫。同时,在卫生间的门口设置玻璃隔断,做视觉的分割,避免尴尬。
- 将一楼空着的次卧纳入主卧做成衣帽间,在主卧内开门洞进出,增加居住舒适性。另外,考虑到餐厅的采光,将次卧原门洞的位置改造成玻璃隔断。
- 二楼是阁楼,结构十分复杂,层高差异比较大,原来也是女儿居住的,但是因设计不合理,储物空间不够,整体显得暗黑小,乐大姐团队设计师从业主女儿的居住需求出发,重新布局,将整个空间根据居住层高需求划分为睡眠区、储物区、活动区、展示区、卫生间等,居住起来十分舒适。
点击左下方“阅读原文”,即可在线免费看本案例全景图(360°)。https://vr.justeasy.cn/view/1zpv621y89897q58-1630818962.html