
乐大姐
FM104.8《家在苏州--乐大姐说装修》栏目特邀嘉宾,
赫博别墅设计创始人之一;
多次受邀成为院校家居的授课讲师;
98年至今,
为万千家庭打造幸福家居同时,也相互成为了好朋友。
任何与装修有关的问题,欢迎您添加乐大姐微信:13382103377,
乐大姐会为您做一对一解答。
一个人心中的家
并不仅仅是
一间属于自己的房子
而是长年累月
在这间房子里度过的生活
项目地点:九龙仓翠樾庭
项目风格:现代简约
项目面积:183.3㎡
项目性质:全屋整装
项目状态:正在施工
本案是套改善型住宅,业主买这套房子是为了一家四口(夫妻两口子带上两个儿子)长久自住的,所以他们非常重视这次装修,再加上业主一家现在住的房子是找熟人介绍的装修公司做的,选择的半包模式,不仅要自己买主材、搭软装,特别操心,入住以后还出现了漏水、异味、堵塞等各种问题,却没有售后!所以这次业主非常坚定地选择了乐大姐团队全屋整装模式!业主一家喜欢干净简单的现代风格,还有客餐厅一体的敞亮空间,所以设计师根据业主需求与习惯,打造出这个简约又不乏高级感的时尚世界!
在整体格局上,乐大姐团队设计师根据业主一家的生活状态规划空间的形态和功能,保留原始客餐厅的开放式格局,打造具有中西双厨配置,客厅、中岛与餐厅融合的社交型会客空间,塑造舒适与仪式感兼具的公共活动空间。



原木、高级灰、雅白简约配色,将居者对简洁品质生活的追求诉诸于空间。灰白两色大小几,将白色的高雅与灰色的大气糅合。在客厅当中,原木、高级灰、雅白不再仅仅是作为颜色而存在,而是一种态度的表达和情绪的抒发。

电视柜设计感十足,潘多拉岩板的点缀可以避免大面积同色同材质带来的视觉疲劳,让空间更有层次。
靠窗放置的弧形沙发能够容纳多人,柔美的曲线为空间多增一种形态,让空间更具亲和力。选择轻巧的小茶几,搭上一张构架感十足的单人椅,放松闲坐时,静听光阴的故事。

过道不再只是墙,也可以有设计感。卫生间干区的悬空金属酒架、书房过道的内嵌式壁龛,让生活的仪式感与舒适度达到微妙平衡。另外,从客厅看书房、卫生间干区、厨房,可见这三个空间的门框、踢脚线被一片温润的木色包裹连成一个整体,自成空间一景,且开放式的设计,让光线在各个区域之间自由穿梭、畅通无阻。

餐厅延续了客厅的风格,木饰面板拼接瓷砖的墙面达成视觉的统一。
增加了与餐桌相连的岛台,补充西厨的功能,还额外获得了收纳空间,不仅能让居者拥有更好的烹饪体验,也为家中添上一处小酌之所,享受生活,从这一刻开始~

次卧开门融于餐边柜,柜体采用隐形设计并做了变色的处理,视觉上拉伸层高,小空间中有了大气朗阔之感。一侧黑玻,线条利落,为空间注入一抹灵动悠然。
原户型中厨房移门比较小,采光不行,故将非承重墙敲掉,改做长虹玻璃,光影透过其间,就连空气都通透起来。

主卧,摒弃了过度华丽的硬装,以材质的变化营造空间韵律,深色软包沉淀出的大气沉稳氛围,浅灰色的硬包散发出低调优雅的质感,衣帽柜褐色玻璃纯净优雅,在室外自然光的引导下,不同材质交织,共同表现着审美力量与空间价值的统一。


主卧室整面的飘窗将屋外的自然美景与充沛的阳光带入室内,从临窗的坐垫到落地灯,无不释放着自由与放松的气息。当夜晚来临将窗帘拉上,便能营造出静谧又安宁的睡眠环境。

大面积灰色纹理的瓷砖通铺,充满整个卫生间墙面地面,给人简洁大气的视觉体验。台盆柜下方挑空不留卫生死角,方便扫地机器人进出打扫。承重墙上设计壁龛,与浴缸搭配,泡澡物品随手拿放,热气蒸腾中消去一身疲乏,静享岁月美好。




业主的两个儿子虽然年纪不大,但是业主充分尊重他们的喜好,大儿子喜欢深蓝色,所以床头背景和床靠背、床品都以深蓝色为主色调,与灰色的空间基调和谐统一,既优雅又不高冷,既含蓄又清新,营造出层次分明的时尚质感。
男孩房床头一侧以书桌代替床头柜,搭配柔软坐凳,方便孩子日常完成作业。桌子选色,与衣帽柜呼应,迎合了男孩对稳重简约色调的喜爱。吊灯上点缀黄铜,悄然增加空间精致浪漫情调。



每一个孩童的内心都有一个飞向太空的梦想,宇航员遨游太空的蔚蓝色床头背景,充满科技感的小吊灯,都在用父母的爱告诉小儿子:勇敢的去追寻你的梦想吧!

空间有个大的转角,设计师在柜子上做了造型,显得格外活泼。

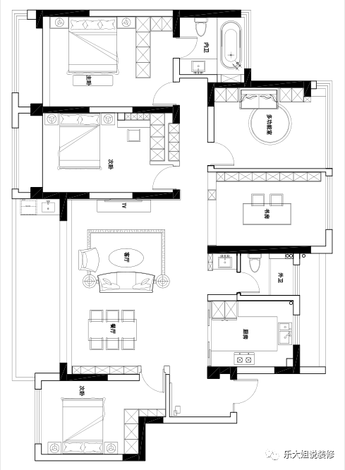
原始户型图

改造后户型图
本案户型整体比较方正,不需要有太大的改动,但是因为业主对生活的要求比较高,还是有一些细节性的设计需要注重。
首先,厨房的移门开间比较小,故将其两侧的非承重墙敲掉,改成长虹玻璃,这样不仅完善了厨房的装饰面,还延伸了空间视觉。
其次,将卫生间干区与客厅过道之间的原墙体拆除,改做面朝客厅的柜子及悬空金属酒架,这样不仅视觉上更通透,且与书房、厨房的门套、踢脚线连成一体,更具统一性。
书房采用开放式设计,将门拆除,只留门套,采光更好,空间更通透。且,在书房的过道墙体上安置了一个装饰柜,让过道更具设计美感。
因原户型中次卧的门位于餐厅背景上,为了确保餐厅背景的完整性,采用隐形门的设计,既满足了美观,也保证了功能。
因本案常住人口是四口人,两个卫生间就够用了,但是原户型中有三个卫生间,其中大儿子房的是暗卫,所以将其拆除并纳入到大儿子房扩大空间,不过敲掉后遗留了一个通气管,故乐大姐团队设计师结合通气管打造了一个书桌,方便孩子以后学习。
点击左下方“阅读原文”,即可在线免费看本案例全景图(360°)。
https://vr.justeasy.cn/view/1zf68j0240b82168-1624769562.html