清水江南别墅整装

设计说·第155期 | 319㎡现代中式叠墅,亦古亦今的清雅空间,传承东方清韵!

发布时间:2022-03-07

图片

乐大姐

FM104.8《家在苏州--乐大姐说装修》栏目特邀嘉宾,

赫博别墅设计创始人之一;

多次受邀成为院校家居的授课讲师;

98年至今,

为万千家庭打造幸福家居同时,也相互成为了好朋友。

任何与装修有关的问题,欢迎您添加乐大姐微信:13382103377

乐大姐会为您做一对一解答。


项目地点:苏州湾天铂(叠墅)

项目面积:186.25+地下室133㎡

项目风格:现代中式

项目性质:全屋整装

项目状态:正在施工


|遇见-东方风雅之美



穿越古今的风雅与浪漫
在喧嚣中慢慢沉静
用空间语言呼唤“归家”的恳切


 

-


01



THE CUSTOMER DEMANDS

业主需求



本案是套改善型住宅,业主是苏州吴江本地人,现在住的房子离自己工作的地方有点远,为了更好的照顾小孩和上班方便,所以特地买了这套下叠。

本案业主喜欢中式的感觉,但是又不喜欢传统中式的繁琐,所以乐大姐团队最后为他们量身定制出了这套现代中式风格!一家人看了都很喜欢!


 

-


02




LIVING ROOM+DINING ROOM

客餐厅



图片




图片




图片



图片

空间的氛围营造源自感性体验,成就于理性把握。




乐大姐团队设计师以当代设计笔触,提取东方水墨的抽象艺术形式,塑造出融汇传统文化意蕴与当代生活意趣的雅致空间。素净的岩板背景墙以水墨山水画卷装饰为点缀,深、浅、黑、白恰如其分,萦绕几分绿意,东方的恬静内敛和当代的利落明快和谐地融为一体,既有创意又富有古典韵味。



图片




图片




图片


原结构中大面积的落地门窗,加强了室内的通透性和流动性,促成空间彼此渗透的“借景”。夏日的午后,坐在窗边的角落,一边看书,一边品茗,尽享惬意时光。



图片


图片

因本案客厅的开间比较长,所以空间划分时将沙发背后的区域打造成储物柜,但只单做整面的储物柜会略显单调,所以设计师在柜子的设计上用尽巧思,器物的铺陈、材质的拼接,形制与肌理的呈现,每处细节都诉说着生活的意趣



图片



图片



图片


楼梯位于客餐厅中间,采光不是很好,故设计上将楼梯两侧的非承重墙拆除,改造成玻璃扶手,通透又大气,同时采用中式线条进行勾勒,不着痕迹的表达,空间之间的微妙联结,整体“隔而不断”,东方造物的灵巧展露无遗。


 


-


03



MASTER ROOM

主卧


图片



图片
明月松间照,清泉石上流。在主卧的设计上,设计师借由艺术化的精妙笔法与颇具创造性的想象力演化水墨山水元素,化繁为简,营造出淡雅悠然的东方幽境,给人以视觉上的“静”与“净”。



图片




图片


设计师还别出心裁地加了一个阳台休闲区,为主人家私密放松、加深交流和晾晒衣物(ps:本户型没有生活阳台)提供了更多的选择和便捷。不过,考虑到美观,设计上将电动晾衣架内嵌入石膏板吊顶内。
 


-




04



SECOND ROOM

次卧




图片




图片




图片

艺术的笔调包容自然和人文,克制地在一方空间内铺叙恬淡意境。


 


-


05



DAUGHTER'S ROOM

女孩房




图片


图片




图片



图片
二楼南次卧是给业主女儿居住的,设计师根据女孩儿的审美,以灰+棕的大地色系打造出一个简约雅致的质感空间。




在一片氛围之下,一线暖光、一个地台将空间一分为二,地台之上用来休闲、学习,地台之下则是睡眠空间,高低错落的设计丰富了家居的趣味性。



图片


图片




图片

 

-




06



BOY'S ROOM

男孩房




图片




图片




图片


试问哪一个小男孩没有一个探索宇宙奥秘的梦想呢?乐大姐团队设计师非常贴心的将床头背景打造成宇航员在太空遥望地球的画面,在睡梦中可能已经开始在探索宇宙的奥秘了吧!



图片


 


-


07



BASEMENT

地下室


图片




图片




图片




图片


本案地下室合理利用空间,优化布局,影音室、健身区、棋牌室、书房、钢琴曲、储藏室等功能区域相辅相成。同时,利用绿化连通室内外环境,引景入室,增加空间美感;利用墙面的镜子、玻璃扶手等扩大空间感;天花吊顶,也是以简约为主,增以线条,丰富细节。




图片




图片



图片


影音区,将地下室一层与二层之间的部分空间打通,打造出高达5.2米的挑空空间。高耸的拉伸感,不仅让整体空间通透明亮,避免给人以沉闷、压抑的氛围,也与地下室整体的风格相搭,时尚前卫。
 


-


08



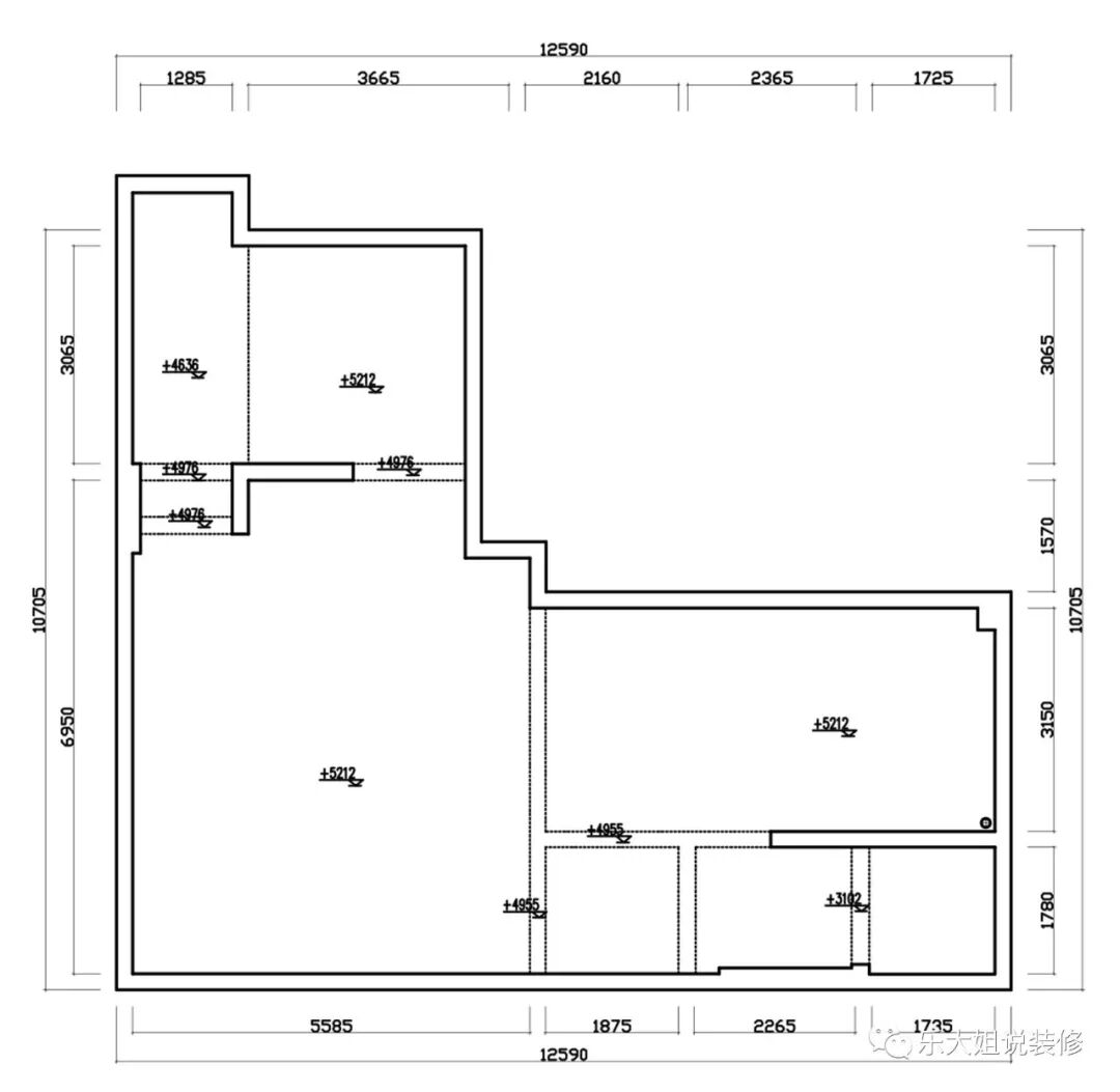
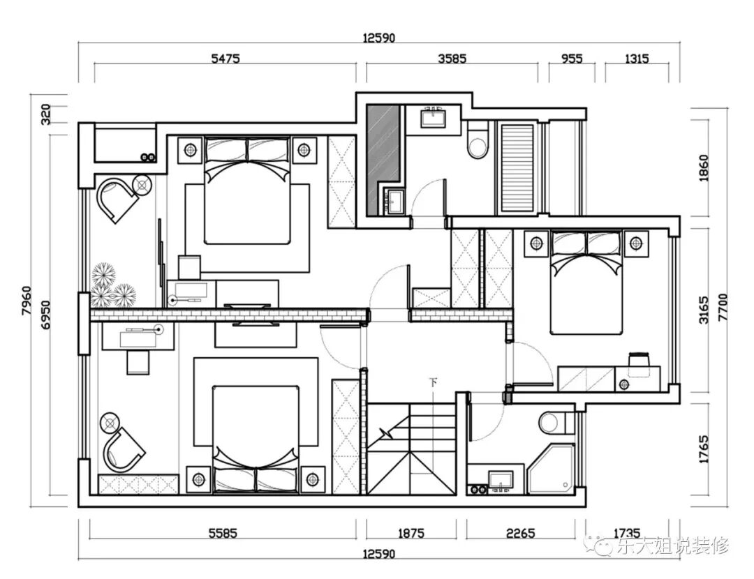
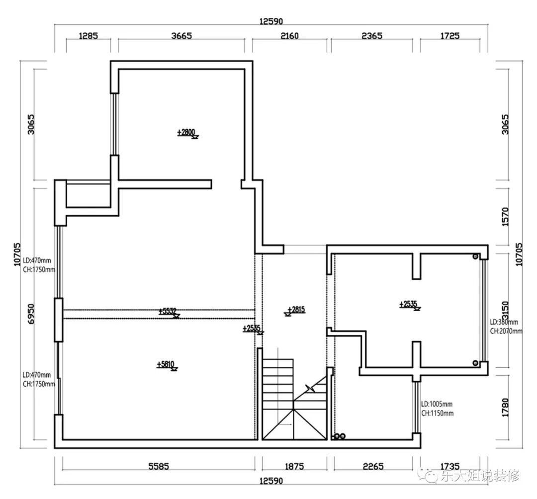
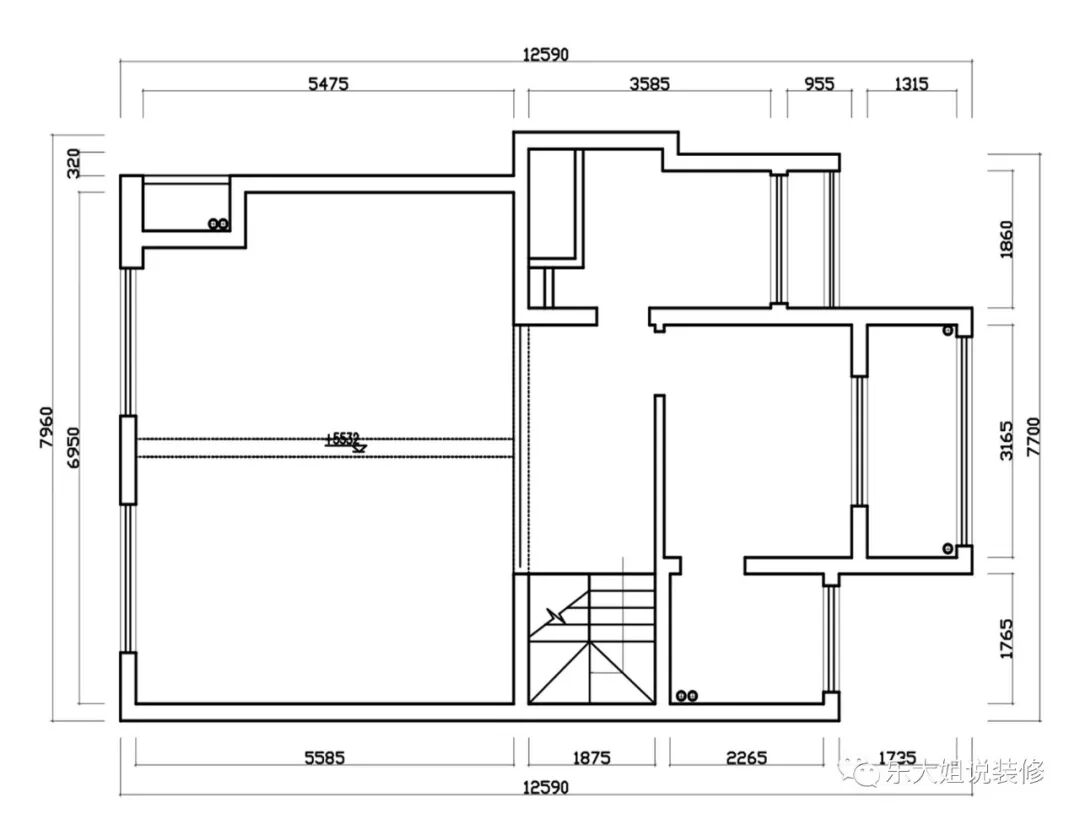
FLAT PLAN

平面方案


图片


负二层原始户型图
图片
负二层改造后户型图
图片
负一层原始户型图
图片
负一层改造后户型图
图片
一层原始户型图
图片
一层改造后户型图
图片
二层原始户型图


图片

二层改造后户型图

  • 原结构中入户门正对着一楼外卫的门,不利风水,故将外卫原先的门洞封掉,重新再开了一个门洞来规避这个问题。

  • 本案客厅与前院是相通的,且没有室内外的区分,这样从室内到院子里去的时候就涉及到换鞋的问题,故设计师将鞋柜的设计融入到电视背景墙当中,背景两边都做成了暗藏鞋柜,方便收纳。

  • 根据业主的居住需求,乐大姐团队设计师将二楼西南方位的房间、隔壁的外卫、部分的楼梯空间、部分北房间的空间全部纳入主卧打造成集睡眠、收纳、洗漱于一体的套房。另外,将北阳台直接纳入到北房间内,北房间往北移,北房间的内卫则改成外卫,从而打造出一个独立的男孩房和一个外卫。

  • 地下室,将负一层与负二层东南方位的空间完全打通,做成挑空空间,从而扩大了整体的空间感,提升了空间档次,改善了采光与通风。


 


-




09



PANORAMA

全景图



图片


点击左下方“阅读原文”,即可在线免费看本案例全景图(360°)。

https://vr.justeasy.cn/view/316zc6g2019i5451-1638862862.html

长按二维码添加乐大姐微信号

装修不烦 大姐来谈