发布时间:2022-03-07
乐大姐
FM104.8《家在苏州--乐大姐说装修》栏目特邀嘉宾,
赫博别墅设计创始人之一;
多次受邀成为院校家居的授课讲师;
98年至今,
为万千家庭打造幸福家居同时,也相互成为了好朋友。
任何与装修有关的问题,欢迎您添加乐大姐微信:13382103377,
乐大姐会为您做一对一解答。

本案是一套老独栋别墅,十几年前装修的,房门、木地板、楼梯当时都用的最好的材料(木制品都定的红木的,价格特别贵),这么多年用下来基本没什么变化,所以乐大姐团队并没有将其全部拆光重新装修,而是做的局部改造+软装搭配,原装修中保养完好的部分则保留了下来!
因房子是早期装修的,不能实现网络全覆盖,只有一个固定的地方上网,很不方便,且水电也出现了老化的现象,需要重新规划。且,原装修虽也是中式,但整体色调暗淡,风格并不凸显,设计师通过重新规划立面、顶面来改变空间气质。
中国水墨画在构图上讲究高远、深远、平远,韵味上讲究清、淡、湿、浓、焦,这与现代设计空间构成理论以及设计手法有异曲同工之处,形成空间中运用的“气与势”。
一进门,映入眼帘的便是巨幅的大理石电视背景墙贯通到顶,在感受到客厅挑空带来的豁然开朗之余,现代大理石的纹路、木饰面的肌理与中式风格互为映照,天然契合,留出无限暇想的想象空间,于方寸之地,得山水之真趣。
侧面长达两层楼高的浮雕装饰画,深与浅的晕染,形如太湖奇石,表面蜿蜒回转,别有洞天,让人神思悠远。挂画边上的花格,赋予传统的“意”与现代的“形”,引光入楼梯,让空间之间产生对话,灵动有趣。
闲暇时,坐在大面积的落地窗前,看窗外的景致,看美丽的夜空,忙碌的都市生活也需要偶尔放慢脚步,用心品味生活的美好。
在现代技艺的语境下对传统事物进行传承和创新,为了让沙发背后的墙面与原有中式案几桌椅相配,设计师特地使用带有山水画的壁画,有常青、背靠大山、平安之意。
考虑到起居室靠北,而业主夫妻两平时喜欢看看书,故靠墙做了一个电子壁炉,让本身冷调的空间瞬间温暖治愈。圆形沙发围合区,也让人与人、空间与空间的关系以更放松、和睦的方式连结起来。
主卧套房独占一层,宽敞的卧室与起居室、卫浴间、书房、步入式衣帽间、以及梳妆区一起,打造主人房礼序与尊贵并具的生活仪式。
在主卧内部,通过材质的光感营造简净高雅的质感美学,精细打磨的墙面搭配温润的木质地板、细腻柔软的暖棕色床品,柔和放松的休憩环境气息扑面而来,回到家中,拂去外界的烦恼,只想给心灵放个假。
顶部,流动感较强的弧形扇面元素令空间得以延伸,舒缓安谧的气息氤氲出沉沉的睡意...
卫生间是白与灰的主场,清冷的色彩与布局带来秩序感,带灯光与储物功能的镜柜、壁挂式的台盆柜、淋浴房的地面拉槽等人性化的设计让居者在洗浴室中有更好的体验感。
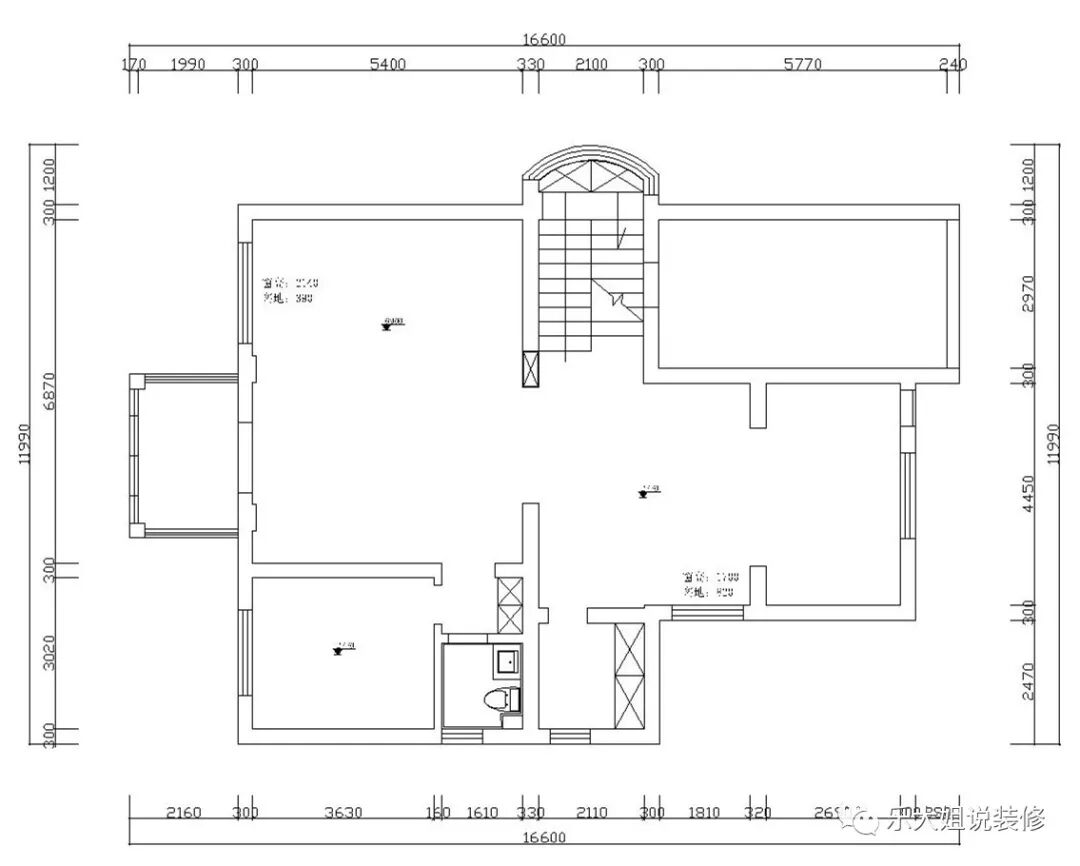
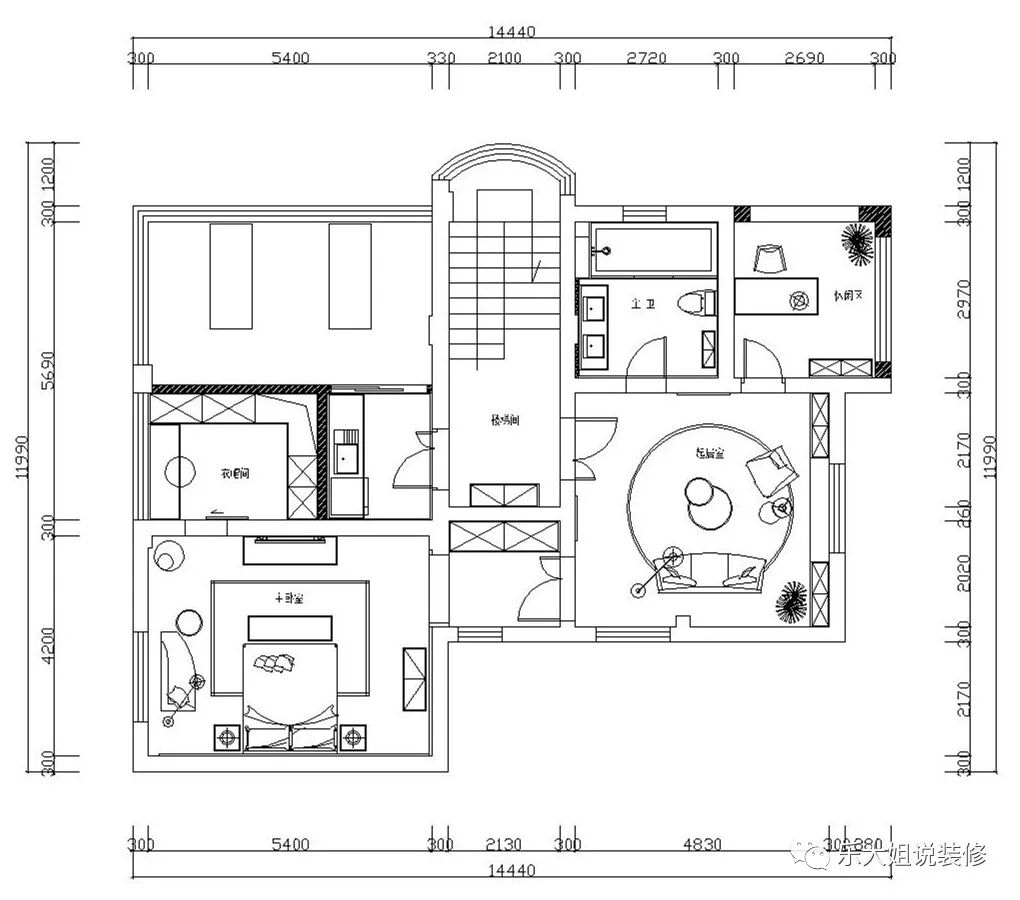
一楼原始户型图
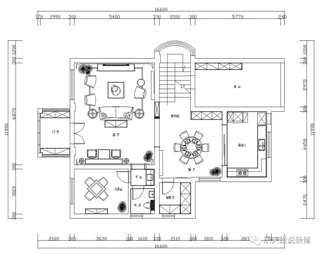
一楼改造后户型图
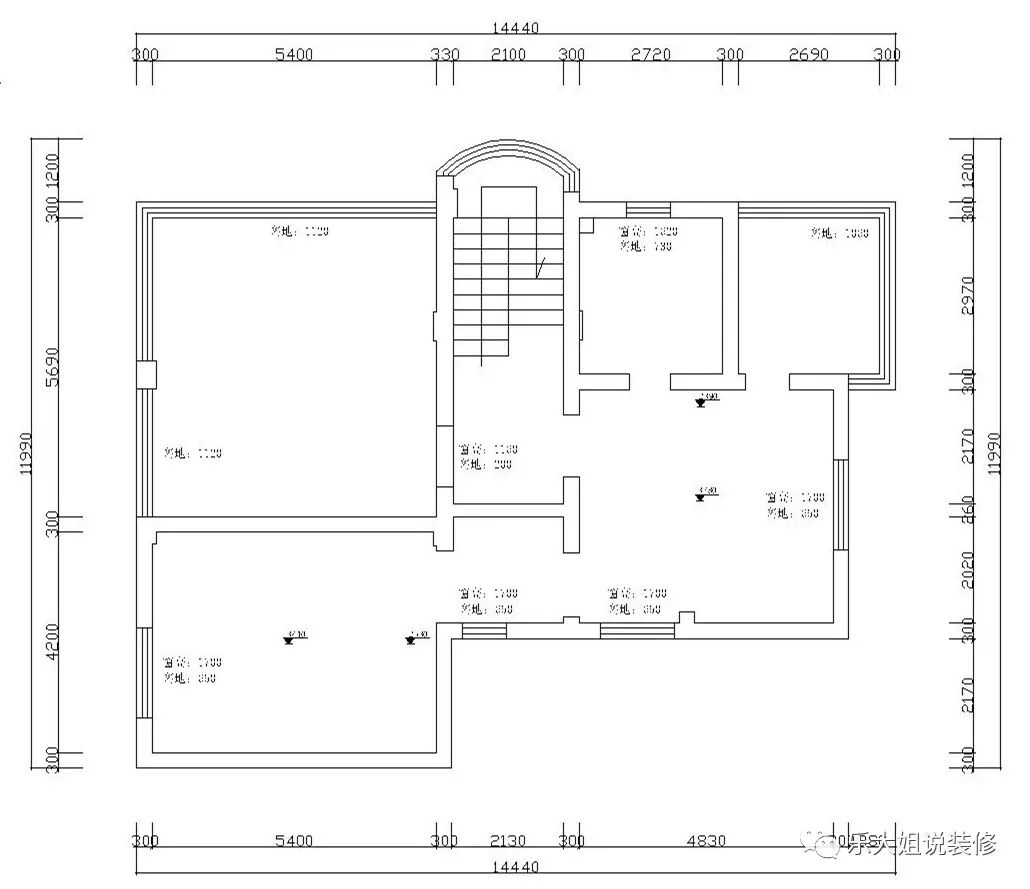
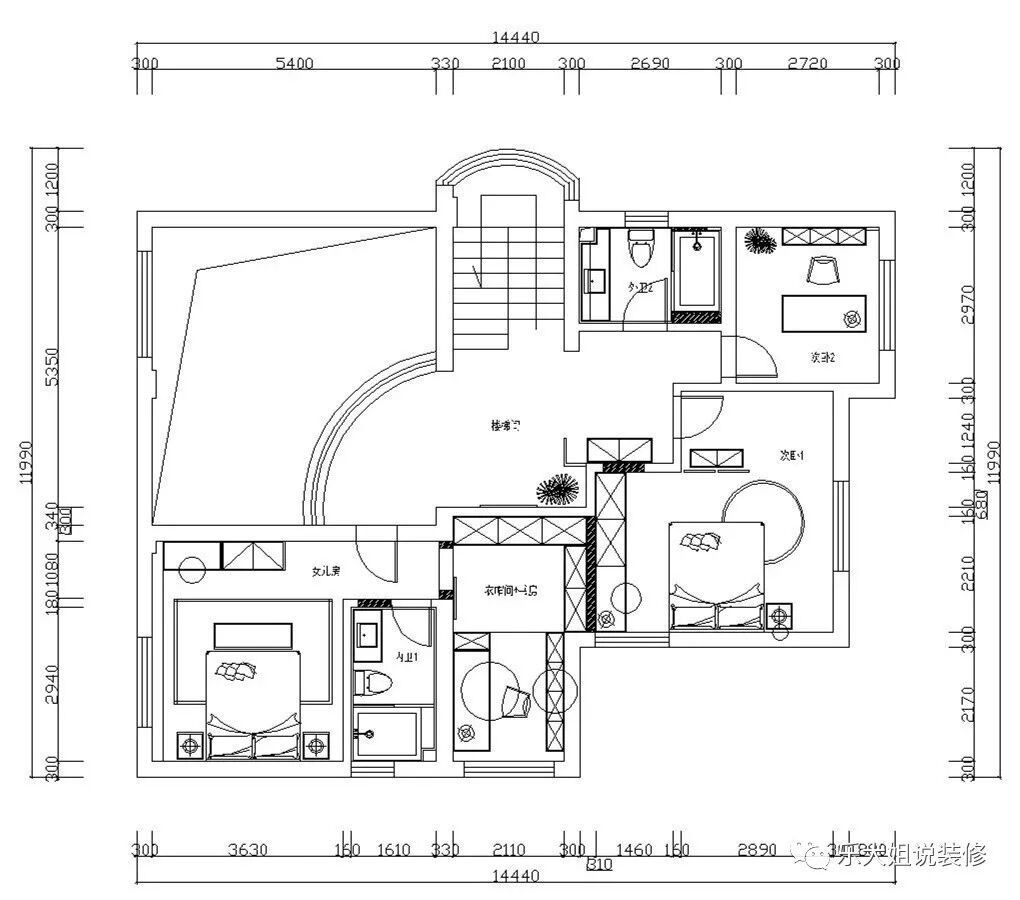
二楼原始户型图
期待 丨 Hope
设计效果的满意固然重要,但是竣工时的满意度才是乐大姐团队追求的目标。
本案昨天刚竣工,业主对乐大姐团队本次的服务给出了高度的评价——“清水江南团队凝聚力较强,从王老师的设计到吴经理的施工管理、乐大姐的远程监督,不负所托,交给了一份满意的答卷,全案整装名副其实,我们省心、省力、且放心。在此,特别感谢清水江南,喜欢其‘一次装修 一生朋友’的理念,希望清水江南越来越辉煌。”,对装修的效果非常满意,同时为了感谢乐大姐团队的全程付出,业主夫妻两还盛情邀请乐大姐团队参加本月底的竣工酒。(PS:想看典雅花园的竣工成品照片可以关注乐大姐的朋友圈,12月末会分享哦~~)
长按二维码添加乐大姐微信号
装修不烦 大姐来谈