
乐大姐
FM104.8《家在苏州--乐大姐说装修》栏目特邀嘉宾,
赫博别墅设计创始人之一;
多次受邀成为院校家居的授课讲师;
98年至今,
为万千家庭打造幸福家居同时,也相互成为了好朋友。
任何与装修有关的问题,欢迎您添加乐大姐微信:13382103377,
乐大姐会为您做一对一解答。
会看花的人
就会看云
看月
看星辰
并且在人世中的一切看到智慧
——林清玄
本案位于木渎,是套下叠,有独立的院子(南院有80平+北院20平),周边环境十分舒适。业主夫妻两是对神仙眷侣,他们保持着每年半年在国外休闲、半年在国内工作这样的状态已经好多年了!不过,近两年因为疫情的影响打乱了他们每年出国的计划,长时间住在国内他们才发现自己现在住的房子环境一般般,为了在苏州有更好的居住环境,他们决定着手装修正荣华府这套已经空置了好几年的房子。业主夫妻两喜欢简洁、包容、优雅的感觉,所以乐大姐团队设计师把生活空间的结构还原为生活的本质,去除多余的、浮夸的装饰图案,用简单的系统来营造生活场景。

入户门厅,白、灰、深胡桃色的主色调让静谧的空间多了家的温暖。超大收纳柜展现着家的包容力,提醒着主人卸下负担,享受家给我们带来的放松。
本案最大亮点在于为居者提供理想的高品质生活场景。
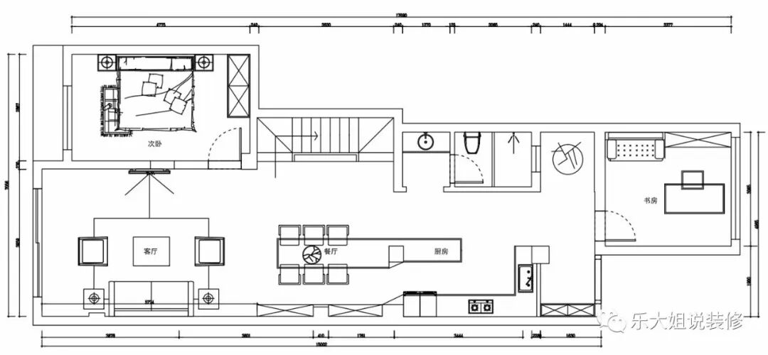
在起居与社交空间里,设计师采用开放式的处理,厨房、餐厅、客厅完全呈现在同一维度上,彼此之间没有具体的条条框框的切分,空间感从四方发散,阳光自然向深处蔓延,产生自在流动的穿透感,家人间的互动也变得随心所欲起来。
空间感的展现除了要有好的布局动线以外,立面设计也大有讲究。横向上,通过不同功能空间相同材质相同色调(比如木质、镜面等)的连续运用,将视线一直延伸至餐厅、厨房,从而加深了空间的纵深视觉感。同时,局部又通过不同材质(比如金属条、硬包等)的变化应对空间的功能划分,在立面上延展空间的丰富性与几何秩序之美,低调与素雅尽数展现。


值得一提的是,电视背景使用了一整块木饰面加上有规律的分缝,与进入次卧的门形成一个整体,不仅很大程度上扩大了原本电视背景墙的宽度,且让整个背景更富有灵动性。同时,搭配纹理自然随性的大理石表现疏朗感,节奏清晰分明,既凛冽,又温柔。

在空间配色方面,客厅以灰、白、深胡桃色等素色为基底营造沉稳内敛的空间气质,同时加入跳脱活力的橙色、红色来打破沉静,从而达到静而不闭,张而不扬,质而不俗的腔调。客厅不设主灯,分列有序的筒灯根据人在空间中的活动动线布置,光影之下,宽阔空间表露出独特的温柔情绪。黑白两色的简约落地灯,传达出居者对至简空间的追求,灯光洒落,照亮沙发一角,打造一片适宜静读的自在天地。


原户型中本案餐厅与厨房是由实墙隔开的长条形空间,十分狭小,采光通风也不好,故设计师采取餐厨一体的开放式设计,将非承重墙体全部拆除,从而打破了空间的憋屈沉闷感,呈现出统一大气的生活氛围。另外,保留餐厨之间的承重柱,安全的同时也让空间过渡更有趣。
靠近墙壁的一整排储物柜制作了不同规格的存储格,以满足各种存储展示需求,减轻餐厨区域的收纳负担和压力。

温润的木质餐桌与白色大理石岛台相结合的设计,刚柔并济,不仅美观,而且对空间的利用更加细致,有极强的功能性和氛围感,让一家人的用餐更为温馨,也让二人的饮酒时光充满浪漫和情趣。厨房橱柜门板选用亮面光感的材质,简洁的同时还能反射光线,与餐边柜的镜面相呼应,打造光影流转的精致家居氛围。

木质的润感特别适合书房,通过对光、色、形、材等元素的平衡运用,创造出功能性以外的品味空间。


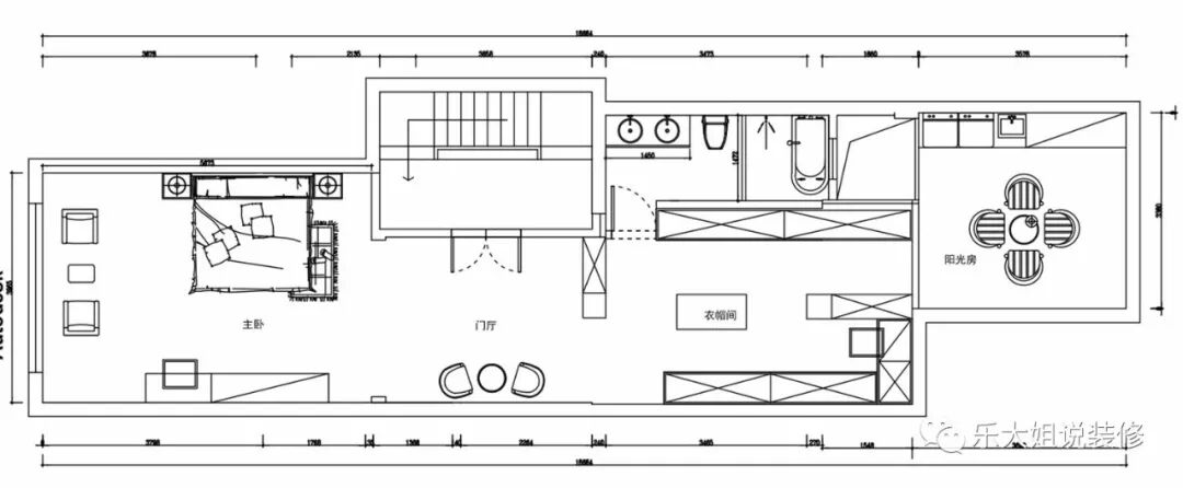
本案二楼原有空间加上客厅挑高现浇后的区域,全部被规划为主卧,宽敞的私人领域,打造出总统套房的感觉,既保证了主人的私密性,更是生活品质的象征。


超大尺度的主卧套房,其双开门沿对轴对称,缔造至上的仪式感。推开门,引入眼帘的是休闲门厅,米灰色的硬包背景,没有过多的色彩,却能在视觉上营造层次感,搭配两个对放的沙发单椅、一个小茶几,给人一种纯净安逸的氛围感。
另外,门厅还将睡眠空间与衣帽间、卫生间分隔开,起到功能划分的作用,同时也最大化保留空间感,凸出别墅的效果。

卧室色调高级干净 ,米灰色和木色搭配相得益彰, 融合空间氛围的同时,在床品、家具、饰物上进行跳色,运用不同的形态与材质来打破空间的沉静,提升空间的层次。灰色窗帘搭配飘逸的白纱彰显静美之意,木地板搭配深灰色地毯沉稳厚重,生机盎然的绿植搭配舒适的休闲沙发,空间元素相互连接,彼此牵引,氤氲着慵懒又不失质感的静谧休憩之所。

墙体由柜体代替,释放更大空间能量。
人与物品的关系重新被梳理,分门别类的收纳让所有物品都有自己合适的居处:大到清洁设备,小到穿戴配饰、生活用品、正装礼服……收纳井然有序, 牵领内心轻盈前行。

空间里那些「看不见」的关怀是居住品质的保证。比如卫生间里的镜面自带LED灯、台下盆+下方悬空设计、大理石拉槽…用细节保障品质,越久住,越舒适。
次卧选择了温馨的布艺由不同色度和质感搭配做出层次变化,营造出一个好眠的卧室氛围。


完全开放的地下室,以多样且丰富的形态匍匐于地面,金属、石材、玻璃、木质的强烈对比引人置入艺术交叠的绝妙之境。多功能会客厅、水吧区、喝茶区、钢琴房、书架、棋牌室、储藏室、卫生间,一应俱全。
会客厅肌理分明的大理石背景墙与钢琴区一体而上的格架相望而设,蓝色黄色布艺抱枕与艺术装置点缀其中,巧妙地为空间注入色彩与趣味性。嵌入式酒柜在隐形灯带的衬托下愈发精致,或相聚对饮、或品谈笑风,喜悦随之氤氲开来。

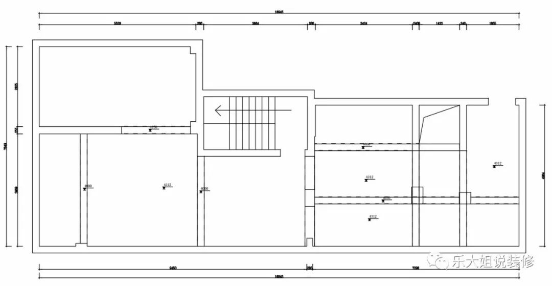
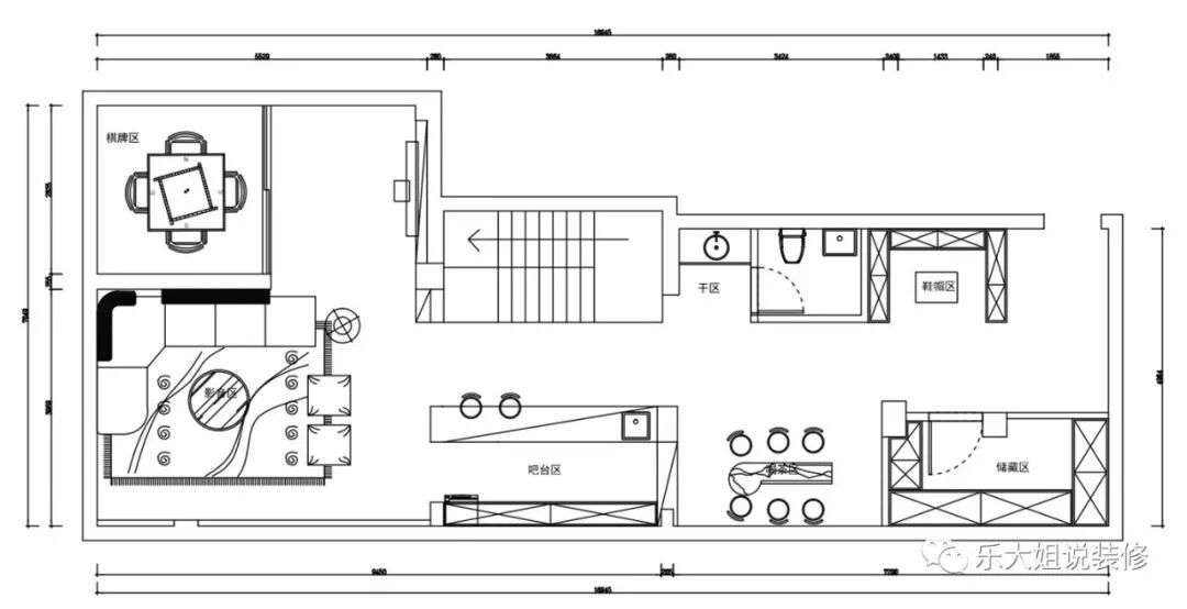
二楼改造后户型图
- 本案是套下叠墅,总共3层,功能分区清晰明确,动静分开,其中负一楼和一楼是动区,负一楼主要用来休闲娱乐,影音室、水吧区、品茶区、钢琴曲、麻将室一应俱全;一楼主要用来会客、用餐。二楼是静区,整层都被打造成主人套房,结构上设置门厅、房间、衣帽间、卫生间、露台。
- 因原始户型中厨房是封闭式的空间,且居于中间位置,整个一层的采光通风都受到影响,故将其与餐厅打通,做成开放式的餐厨空间,并与岛台相搭配,从而最大化地改善了空间的通风采光。
- 考虑到居住舒适度,将客厅的挑空空间现浇后规划为二楼主卧,并将整个二楼除阳光房外所有空间全部纳入主卧,将其打造成豪华主卧套房。
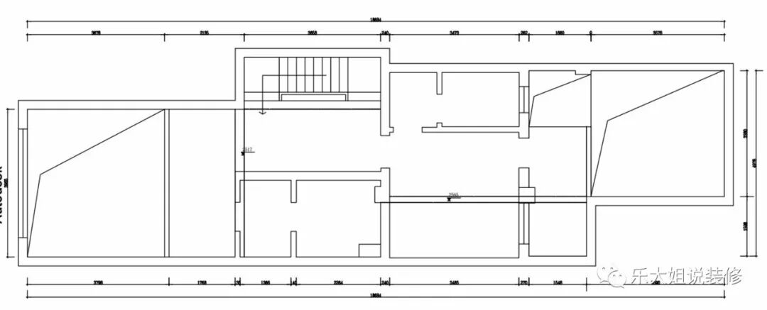
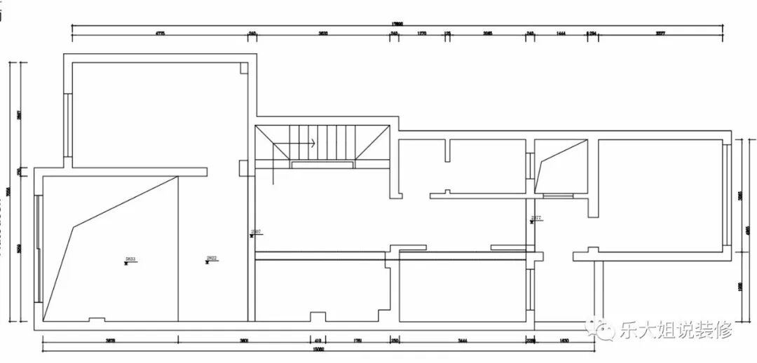
- 原户型中本案地下室是挑空的,层高在四米多,为了做出别墅的空间感,乐大姐团队设计师没有现浇一层出来,而是保留了原始的开阔感。
- 因本案地下室楼梯原来是全封闭的,只有一个门洞进出,不仅憋屈,且采光不好,故将楼梯墙体打掉,漏出楼梯,凸出别墅楼梯效果。
点击左下方“阅读原文”,即可在线免费看本案例全景图(360°)。https://vr.justeasy.cn/view/1vii622581s95o72-1630316404.html