
乐大姐
FM104.8《家在苏州--乐大姐说装修》栏目特邀嘉宾,
赫博别墅设计创始人之一;
多次受邀成为院校家居的授课讲师;
98年至今,
为万千家庭打造幸福家居同时,也相互成为了好朋友。
任何与装修有关的问题,欢迎您添加乐大姐微信:13382103377,
乐大姐会为您做一对一解答。

生命里第一个爱恋的对象
应该是自己
写诗给自己
与自己对话
在一个空间里安静下来
聆听自己的心跳与呼吸
我相信
这个生命走出去时不会慌张
本案小业主是个学霸,本科读的北大,研究生读的英国帝国理工,目前从国外学成归来,在园区湖东工作,所以父母特地为女儿买了春之韵的这套二手房!女业主没买房之前就一直在关注乐大姐团队,等帮女儿买了这套房之后,有一次跟老同学说起要装修的事情,才知道老同学家的房子也是乐大姐团队装修的,老同学极力推荐她装修就选择乐大姐团队,所以业主夫妻两慕名而来并第一次就签约了!因本案的原始房型很奇特(扇形的),空间利用率不高,而业主想把这套房子打造成女儿的专属会所,所以乐大姐团队“对症下药”地进行了户型的调整,把房子的原始缺陷改造成了优点,几乎做到了不浪费任何空间,从效果上来看,把一套小平层的房子打造出了大平层的效果!方案出来后业主母女两特别喜欢!本案虽然是二手房,但原装修效果并不破旧,只是有些简单老套,正常居住还是可以的,不过严重不符合本案小主人的审美要求和居住需求,所以最终全部拆掉重新装修。
本案小主人因工作的原因比较好客,想要把这套房子打造成属于自己的会所和私宅,故乐大姐团队设计师根据业主的需求对户型结构进行了调整,客厅、餐厅、厨房采用开放式设计,满足会客、开Party的全方位需求,并将原本独立的两个房间打造成主卧套房,另备有一个小客房。

生活绝不是简单的复制黏贴,本案小主人对于生活有着自己的一份坚持,要精致优雅又要保持特立独行的风格。乐大姐团队设计师从居者的需求出发,营造充满仪式感的生活空间。


基于居者会客与聚会的日常需求,整体空间格局的选择莫过于餐厨客厅一体化,所以设计的时候把客餐厅之间移门的位置尽量外扩到最大,然后让“西厨、餐厅、移门、电视柜、收纳柜”五景相互交织,相互融合,构造出一个与众不同的电视背景墙,既时尚大气又实用,且一点也不突兀。
电视背景上多功能收纳柜将日常的小惊喜汇聚一起,一开一合间,书香四溢的读本和造型别致的藏品,各自释放着品调十足的韵味。细节处,则透过木饰面、金属等材质搭佐,在沉稳率性之间,让空间层次跃然展开。

为了扩大客厅的空间视觉感,将原结构中入户门一侧的收纳柜拆除,并缩小尺寸重做。柜门则保留原户型中玻璃镜子的移门效果,起到照镜子功能的同时也让空间更灵活生动,且小主人喜欢健身,后期正好利用这个镜子来观看自己的健身情况。在客厅与主卧的连接处——过道,设计师打破了传统用筒灯的设计,采用当下流行的线型灯作为空间的区隔,既美观时尚,还与石膏线条、角花等遥相呼应,空间更有层次感。


开阔的空间布局带来极佳的视野和光线,用色彩渐变和不同材质进行功能区域划分。包裹感极强的美式布艺沙发,柔和的美式线条、法式角花和硬朗的现代质感,起承转合间流露出浪漫与轻奢的时尚腔调。弧形阳台将户外美景揽入室内,让人无论在餐厅还是客厅抑或是房间,开帘即见晨曦暮阳,春风秋雨。本案餐厨采用的是一体化的设计,不仅增加了空间的通透感,缩短了家居动线,还加强了空间的互动性和趣味性,可以说是打造了又一个新的社交中心。
餐桌还可配合岛台作为操作台面使用,实现多重功能。
主卧,延续公共区域的基调,安宁静谧的氛围营造,令踏入主卧门的第一时间便感受到安抚。现代美式柔和的色系与金属灯、法式角花搭配打造低调的摩登感。主卫的门巧妙地与衣帽柜的柜门设计在一起,推开中间的柜门就可以看见卫生间,隐藏式的设计让空间更具神秘感。 落地窗前,地台、梳妆台、书架围拢成独立的小天地。在这一隅,居者可以沉浸阅读、对镜梳妆,或享受阳光浴、放空大脑,闲适自由,好不惬意。
书房,主角的灰色,与大面积的白交织出充满诗意的淡雅宁静。在这里,可以赶走内心所有的烦闷、焦躁。顶面,采用无主灯设计,圆形+L形线性灯,将空间的流畅性和开阔性做到极致,氛围感十足。位于圆形吊顶下方的书桌,正面是开阔、有延伸感的书柜,侧面是阳光正好、微风吹拂的阳台,在这里放空自己、静思冥想,再适合不过了!
卫生间墙地砖一体的铺法可以在视觉上把卫生间的空间做大,更显通透、大气、明亮。台盆柜是定制的,与其他空间的木制品统一材质,牢牢把握住灰系美式的调性。

将通往主卧的过道与主卫之间的非承重墙体改造成自带模糊雾面的长虹玻璃,这样不仅能让光线映入长长的过道,空间还因失焦而更具有朦胧的美感,同时也规避了玻璃无法保证私密性的缺陷,设计的巧思可见一斑。
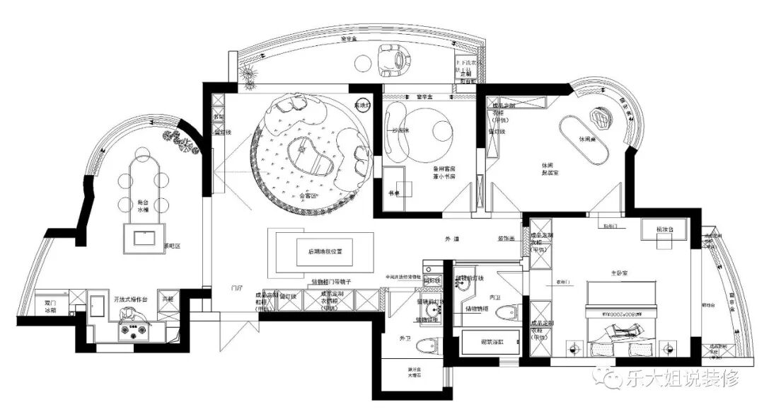
原始户型图
- 本案是套二手房,户型比较特别,是扇形结构的,故空间利用率有些受限,那么怎样在这样异形结构的户型里实现小主人想要把这套房子打造成属于自己的会所和私宅,是设计的最大难点与亮点。
- 因本案小主人喜欢会所的效果,但是原始户型结构并没有真正的大面积电视背景墙,故乐大姐团队设计师将客厅与餐厅之间的非承重墙拆除,最大化地扩大门洞,再将门洞与电视柜、收纳柜结合在一起打造出大气时尚的电视背景墙。
- 因本案常住人口只有小主人一个人,对房间的要求并不多,故主卧采用套房设计,将西侧的两个房间和一个卫生间规划为成主卧套房,极大提升居住舒适度。
- 考虑到原主卧的门正对着过道,私密性不够,故将其封掉,并将主卧套房的门改到书房,同时在书房又开一扇进出主卧的门。
- 因本案小主人的生活习惯是在家里时时、刻刻、处处都要有看书、放书的地方,所以设计师在主卧半弧形阳台处做了一个地台,边上还设计了书架,这样既符合小业主日常的生活习惯,空间也更加舒适温馨。
- 原始户型中过道位置有一处梁,考虑到整体性和美观性,将其直接隐藏在吊顶中。
点击左下方“阅读原文”,即可在线免费看本案例全景图(360°)。https://vr.justeasy.cn/view/36162x473t004tp7-1637320173.html