发布时间:2022-03-07
乐大姐
FM104.8《家在苏州--乐大姐说装修》栏目特邀嘉宾,
赫博别墅设计创始人之一;
多次受邀成为院校家居的授课讲师;
98年至今,
为万千家庭打造幸福家居同时,也相互成为了好朋友。
任何与装修有关的问题,欢迎您添加乐大姐微信:13382103377,
乐大姐会为您做一对一解答。

/
实景赏析
看别人的家 装自己的生活
项目地点:昆山晴碧园
项目面积:500㎡
项目风格:新中式
项目性质:全屋整装
项目状态:已交付
住在500㎡超大别墅里是什么样的感觉呢?当东方的雅致风韵与西方的摩登情调相遇,又会碰撞出怎样的浪漫故事呢?今天就跟乐大姐一起来欣赏下昆山晴碧园这套500㎡合院别墅完整的竣工现场吧~
现在请横屏来看哦~
设计全景图
点击左下方“阅读原文”,即可在线免费看本案例全景图(360°)。
https://vr.justeasy.cn/view/4573134-1550887836.html
/
业主说
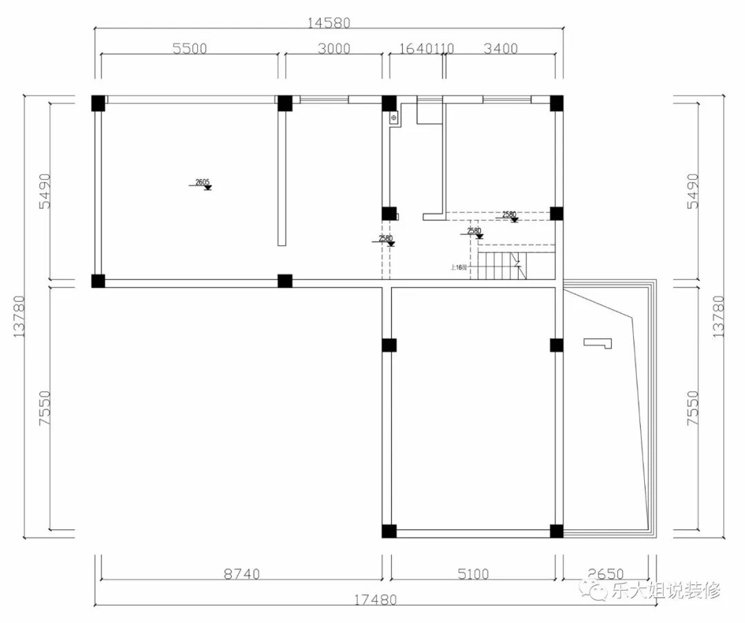
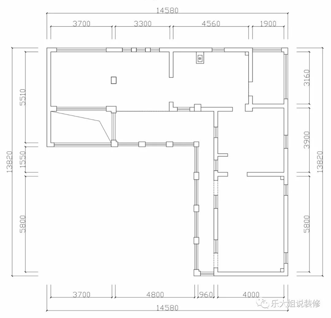
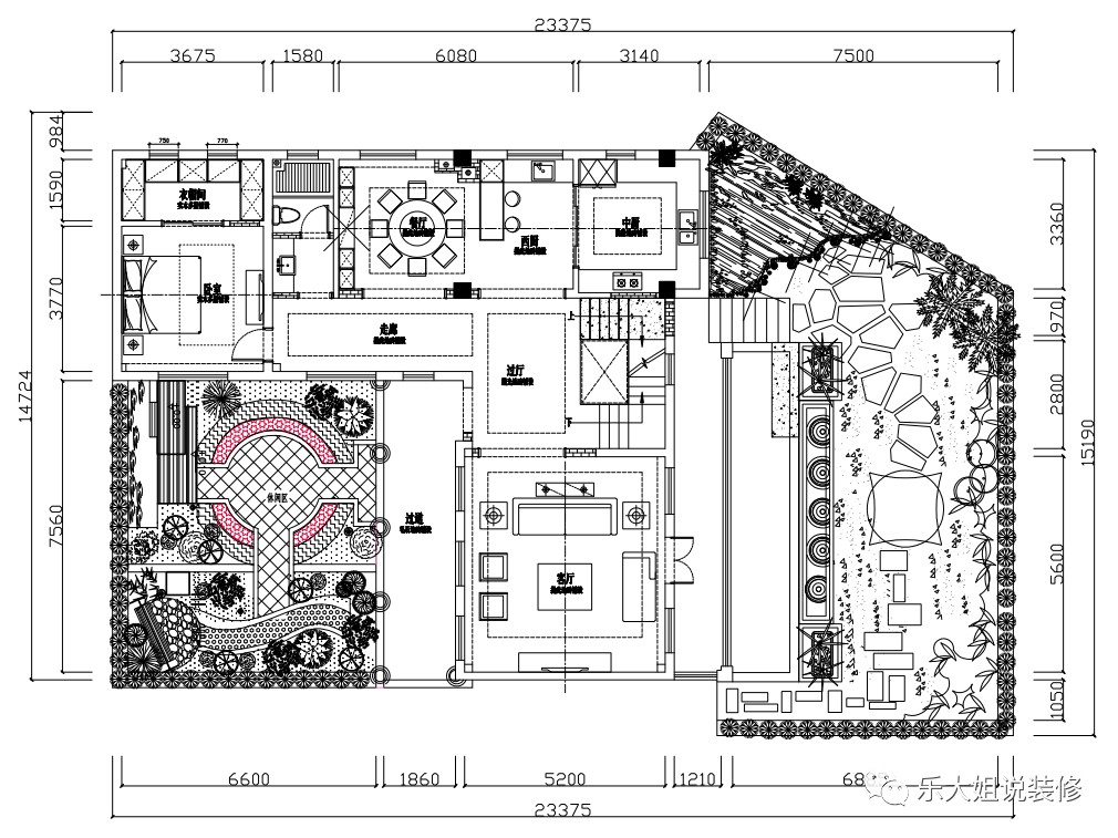
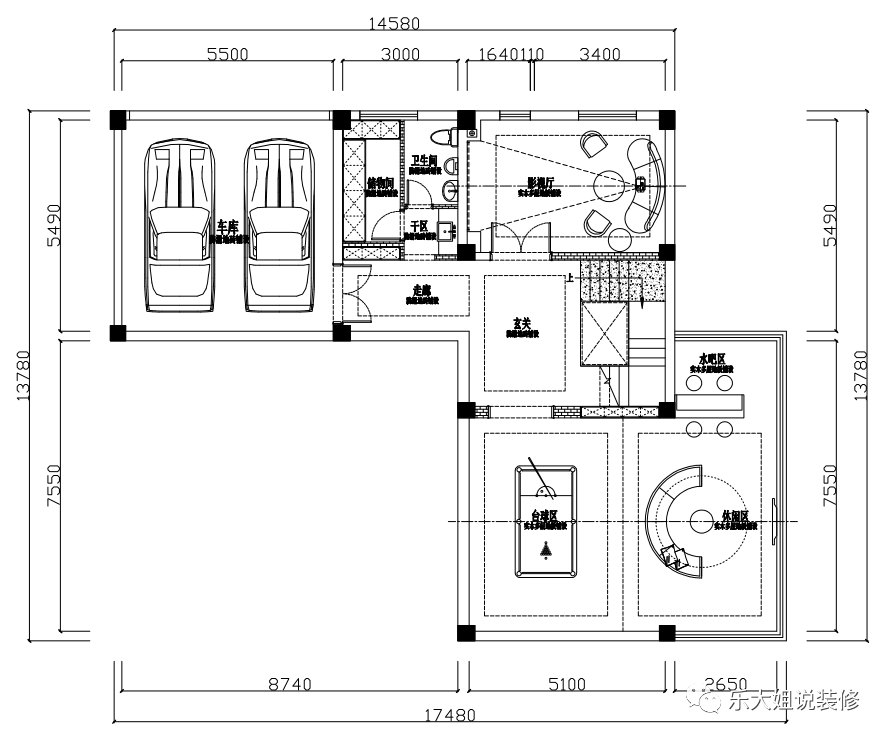
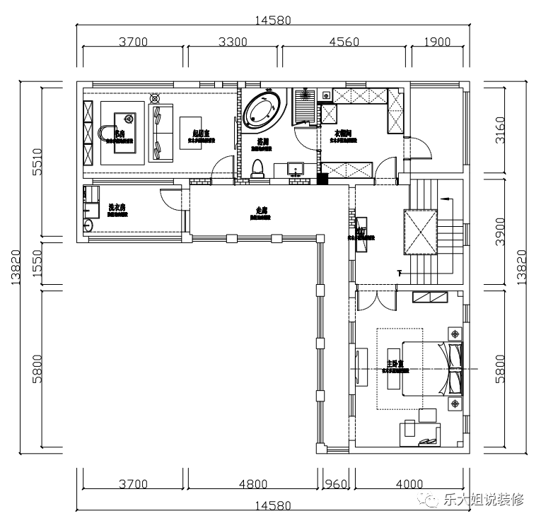
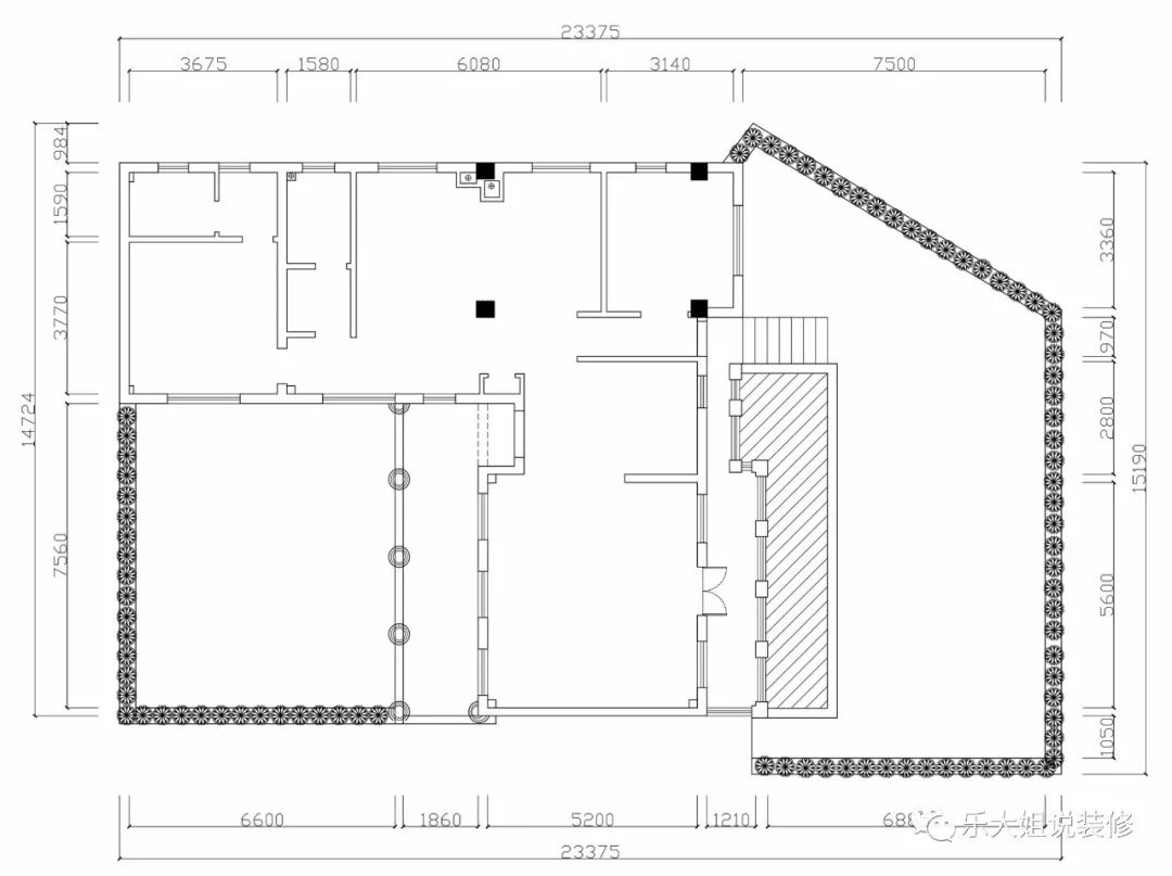
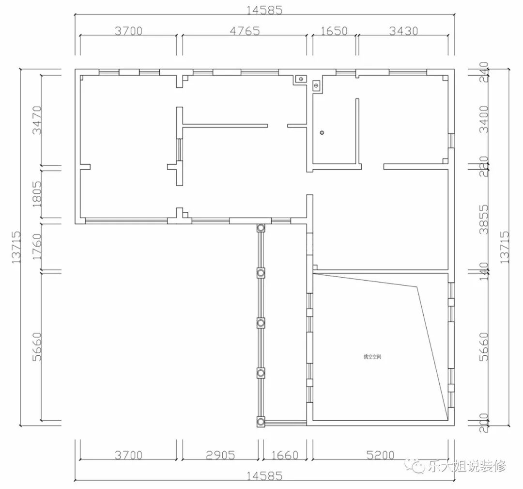
本案位于昆山,是一套少见的合院别墅,总共500㎡,有四层,地下一层150㎡,地上三层350㎡,前后拥有两个大庭院,非常宜居。小区环境也十分优越,坐落于阳澄湖国家3A级自然风景区内,西面一线临湖,与45万㎡城市公园鲜活林海紧相依连。
另外,本案地下室的开放式茶室也非常亮眼,虽是在地下室,但是经过特别处理的采光井让地下室大白天也非常敞亮,加上新风系统带来良好的内循环,整个空间不但大气,还十分舒适!
再次感恩业主
对乐大姐团队的信赖与认可
您的新家落成
我们来见证幸福、兑现承诺。
当梦想变成现实,家有了情感,
我们的缘分也有了新的定义,
竣工才是我们服务的开始,
时间是检验我们服务的试金石。
我们一定不会辜负您的这份信任!
长按二维码添加乐大姐微信号
装修不烦 大姐来谈