发布时间:2022-03-07
乐大姐
FM104.8《家在苏州--乐大姐说装修》栏目特邀嘉宾,
赫博别墅设计创始人之一;
多次受邀成为院校家居的授课讲师;
98年至今,
为万千家庭打造幸福家居同时,也相互成为了好朋友。
任何与装修有关的问题,欢迎您添加乐大姐微信:13382103377,
乐大姐会为您做一对一解答。

构筑一个家,
将个性需求和日常审美提炼出来,
生活也倏忽一下
跳脱出了单调的日常,
变得多姿多彩起来。
本案在找乐大姐团队做软装搭配之前就已经装修过了,不过是业主父母找人装修的,投入了不少时间与金钱,装出来的却是15年前的效果,也就是说刚刚装修好就是一套淘汰品!所以硬装完工一年多了业主一直不愿意带两个孩子过去住,因为不想将就着生活,但是又不想浪费父母的心血,所以他们决定在不动硬装的基础上,找乐大姐团队做软装改造,要求“不能破坏已经弄好的硬装,重新整容的费用越少越好,最关键的是效果要有翻天覆地的变化!”
01
客厅 Living Room
整个一层空间布局讲究依托原始户型,顺势而为。首先,保持原有的大横厅格局,以沙发、端景柜和横梁做为隔断划分空间,各功能区彼此独立,又不影响交互性,光影流转间更宽敞更明亮。
其次,厨房门口的过道,安置了一个精致的红色端景柜,与对面的钢琴区遥相呼应,呈现绝佳审美意识。墙面艺术留白,以两幅静物装饰画收尾,延伸出无限想象空间。
客厅阳台凭借宽阔的空间,成为天然的休闲观景台,居中放上一个多人手工台,大人可以和小朋友一起学习或做手工;两侧凹进去的区域做了两个休闲平台,平时可以和朋友在这里赏半轮新月,品一盏清茶。
02
餐厅 Dining Room
餐厅不管从色调上还是风格上都与客厅自然过渡,橙色与红色同属暖色系,是活力的象征,让空间为之一亮。大理石餐桌、精致花艺、抽象时钟是精奢的代表,给足生活仪式感,为空间注入生机与惬意。
03
主卧 Master Room
04
女儿房 Daughter's Room
05
男孩房 Boy's Room
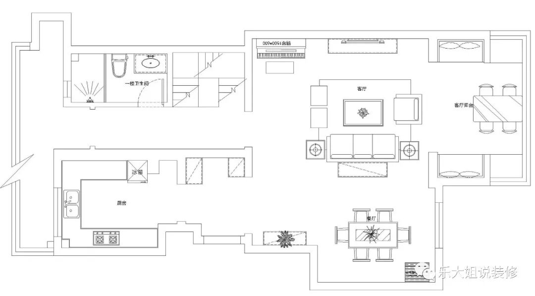
一楼原始户型图
一楼改造后户型图
二楼原始户型图
https://vr.justeasy.cn/view/3m1dv624853v60g5-1629162415.html
长按二维码添加乐大姐微信号
装修不烦 大姐来谈