发布时间:2022-03-07
乐大姐
FM104.8《家在苏州--乐大姐说装修》栏目特邀嘉宾,
赫博别墅设计创始人之一;
多次受邀成为院校家居的授课讲师;
98年至今,
为万千家庭打造幸福家居同时,也相互成为了好朋友。
任何与装修有关的问题,欢迎您添加乐大姐微信:13382103377,
乐大姐会为您做一对一解答。

项目地点:逅湾花园(联排)
项目风格:现代
项目面积:231㎡+地下室153㎡
项目性质:全屋整装
项目状态:正在施工
本案业主一家一直住在相城区,买逅湾的这套联排别墅之前已经经历过好几次装修了,第一套房找的当地“土木工”做的(即游击队),装修不但没效果,住进去以后还到处都是问题,烦的要命。因嫌装修麻烦,后来换房业主就选择了精装房,拿房后发现开发商用的材料都不太理想,装修效果一家人也不喜欢,但还是将就住了好几年!
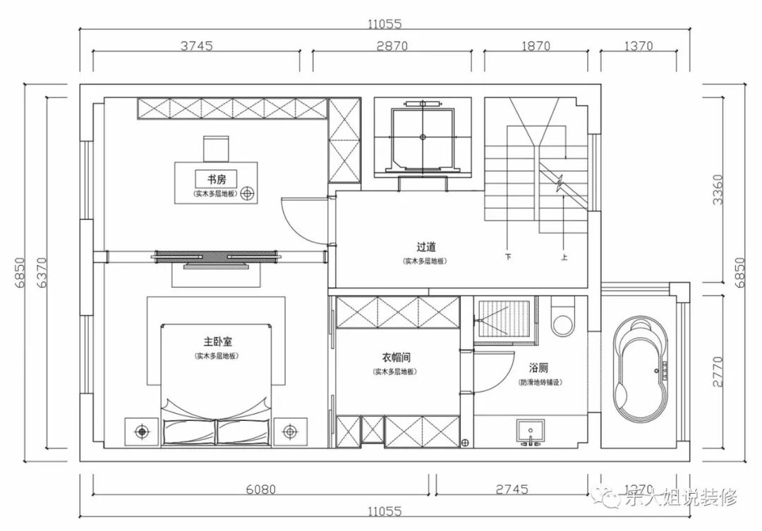
本案是给女儿买的婚房,有过几次惨痛装修经历的业主这次再三比较后决定选择乐大姐团队。风格上,设计师经过跟业主多次沟通,将除了三楼以外的区域设计为现代风格,三楼则全部规划为女儿的空间,女儿更倾向于原木色调,所以三楼是独立风格——现代日式。
二楼父母房内套卫生间和衣帽间,在卧室中上演实用主义美学。
睡眠区简约的配色,让居者告别浅层次的感官刺激,以氛围光和自然光交织出的丰富光影,形成直抵居者内心的空间气场。
书房与主卧处于同一空间,风格上也保持着一致性,以原木色与白色为主色调,营造出一种让人静气凝神的氛围。若是学习累了,不妨起身远眺一下窗外的花园,身心得到放松。
书籍是知识的载体,多格的书架满足不同的需求,特地配的玻璃柜门让视觉更具延伸感。为了方便业主寻找书籍,这里还有一个贴心的小设计——书架每层都藏着灯带,光照在书上,十分精巧。
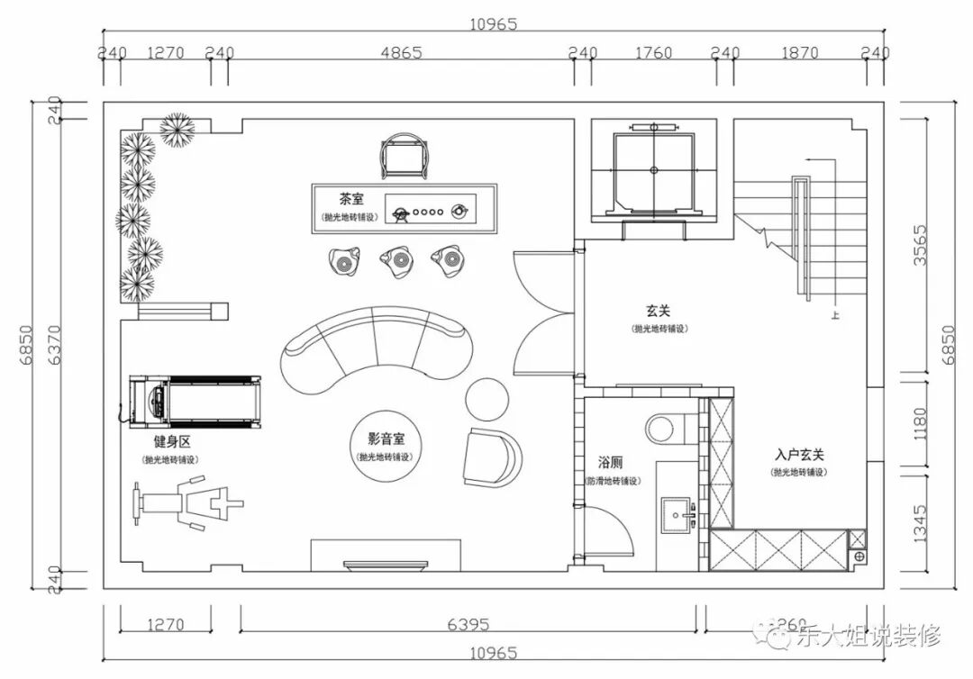
地下二层直接采用敞开式设计,整个场域没有任何阻隔,视野非常开阔。风格上,延续地上领域的现代式样,立面大面积采用饰面板,隔绝噪音的同时大气流畅。
室内的天井花园,将地上的天光带到地下空间,弱化了地下空间的幽闭感,运动时依旧感受到被日光、绿植包裹的美好。
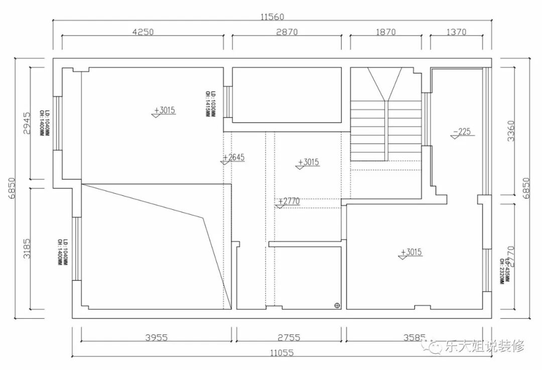
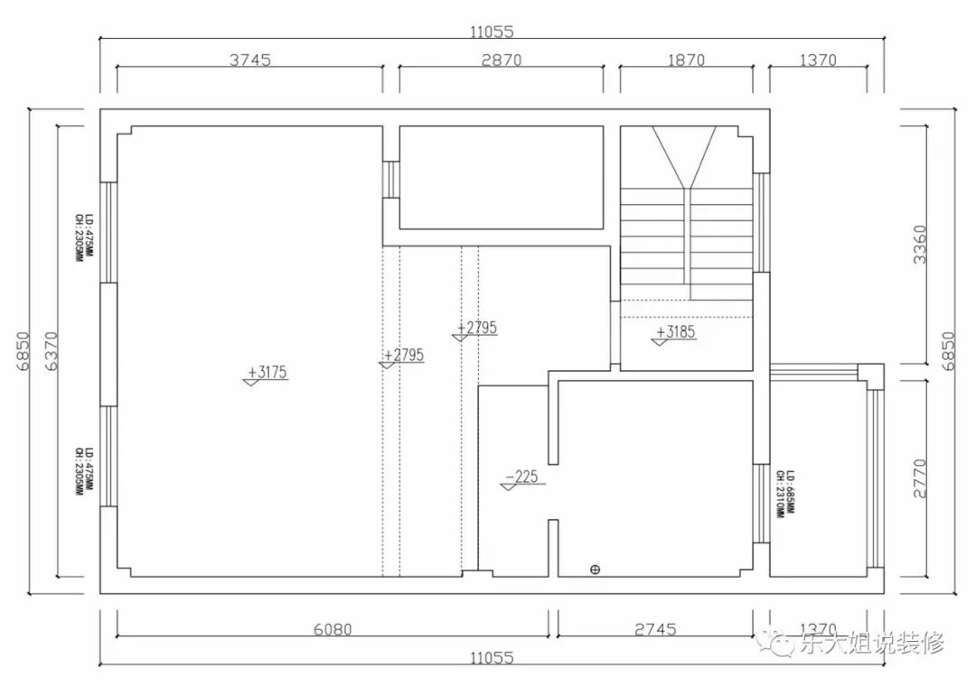
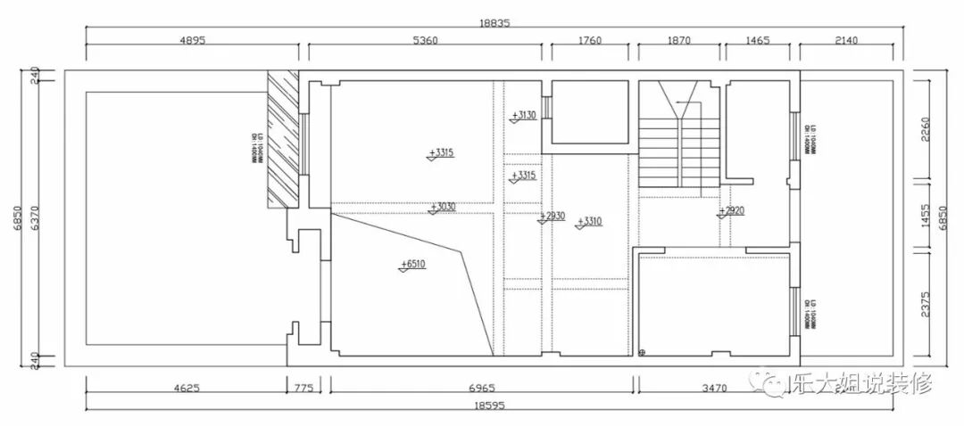
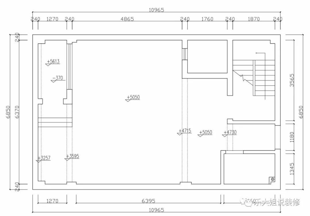
三楼改造后户型图
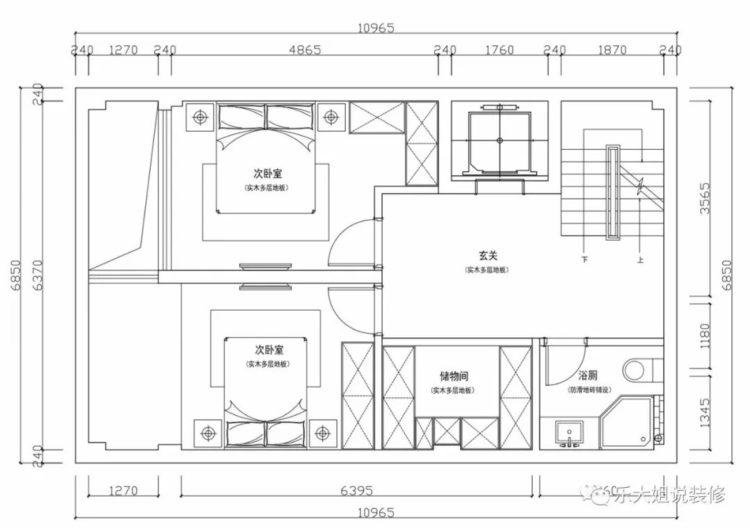
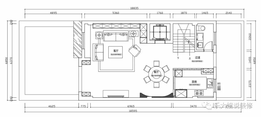
本案原始户型是没有玄关的,进门就是客厅,乐大姐团队设计师将外门厅纳入到客厅内作为玄关使用,右侧设计成入户鞋柜,左侧设计成落地更衣柜,这样不仅满足了功能的需要,也对空间进行了有效地分割。
https://vr.justeasy.cn/view/z16c709do04r5328-1627385756.html
长按二维码添加乐大姐微信号
装修不烦 大姐来谈